
| 賃料 | 予想金額:380,000〜400,000円程度 | 管理費 | 予想金額:0〜2,000円程度 |
| 礼金/敷金 | 非公開(アーカイブ) | 平米数 | 61.31㎡ |
| 初期費用概算(参考) | 目安:2,186,500〜2,286,500 円 | みなし賃料(月額・参考) | 418,469〜438,469 円 |
| 備考 | 本ページは過去募集のアーカイブです。表示の金額は周辺相場・過去募集を踏まえた参考レンジであり、実際の契約金額・条件ではありません。 | ||
※上記みなし賃料(月額)は仲介手数料割引・無料&キャッシュバックを加味した高級賃貸バイブル限定の金額です。一般的なみなし賃料とは異なります。
【建物ページ】AKASAKA K-TOWER RESIDENCEの詳細・最新空室はこちら▶▶選ばれる理由
仲介手数料無料・キャンペーン情報(毎月15名様限定)
〇仲介手数料割引キャンペーン
AKASAKA K-TOWER RESIDENCE 2603の口コミ・レビュー
AKASAKA K-TOWER RESIDENCE 2603、ここにあなたの新しい物語が始まる場所が待っています。東京の喧騒を一瞬忘れさせるような、この高級賃貸物件は、まるで洗練された映画のセットの一部のように、あなたの心を掴んで離しません。
この美しい住まいは、南東に面しており、朝日の柔らかな光が窓から差し込むシーンを想像してください。LD15.3帖の広々としたリビングは、穏やかな日差しを浴び…AKASAKA K-TOWER RESIDENCE 2603、ここにあなたの新しい物語が始まる場所が待っています。東京の喧騒を一瞬忘れさせるような、この高級賃貸物件は、まるで洗練された映画のセットの一部のように、あなたの心を掴んで離しません。
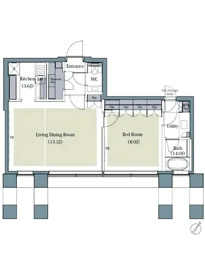
この美しい住まいは、南東に面しており、朝日の柔らかな光が窓から差し込むシーンを想像してください。LD15.3帖の広々としたリビングは、穏やかな日差しを浴び、パジャマのままコーヒーを楽しむ朝を演出します。その贅沢な広さは、優雅に流れる時間を感じさせ、日常の中に特別なひとときを作り出します。キッチンは3.6帖のスペースで、料理を楽しむことができる夢の場所。食材の香りが漂い、心を躍らせるメニューを考える楽しみがそこにあります。
そして、心の休息を与えてくれる洋室8帖には、夜、静かに本を読みながらリラックスする姿が浮かびます。窓の外には、都市の喧騒がまるで遠くのシンフォニーのように響き、心の安寧をもたらすのです。
AKASAKA K-TOWER RESIDENCE 2603では、24時間管理の安心感に包まれ、TVモニターホンやオートロックのあるセキュリティがあなたを守り、エンチャントされたラウンジでくつろぐひとときも、また格別です。フィットネスや宅配ボックスなど、最新の設備が揃っているため、毎日の生活がまるで特別なイベントのように感じられるでしょう。
このタワーの高さから望む景色は、まるで映画のワンシーンのように美しく、これまでの人生の全ての瞬間を特別にすることでしょう。周辺には歴史と文化が息づく赤坂が広がり、アートや美食を存分に楽しむことができる環境が整っています。
さらに、東京メトロ銀座線赤坂見附駅まで徒歩1分という恵まれた立地は、あなたの生活を便利にし、まるで街全体があなたの庭のように感じさせます。歴史的な意義を持ったこの地は、数多くの文化人やアーティストたちが集う場所でもあります。そんな赤坂の空気を感じながら、あなた自身の物語を紡いでください。
AKASAKA K-TOWER RESIDENCE 2603は、ただの住まいではなく、あなたの新しい人生を彩るキャンバスなのです。ここに住むことで、毎日が特別な瞬間で満ちていくことでしょう。あなたの物語を、この素晴らしい場所で始めてみませんか。
この美しい住まいは、南東に面しており、朝日の柔らかな光が窓から差し込むシーンを想像してください。LD15.3帖の広々としたリビングは、穏やかな日差しを浴び…AKASAKA K-TOWER RESIDENCE 2603、ここにあなたの新しい物語が始まる場所が待っています。東京の喧騒を一瞬忘れさせるような、この高級賃貸物件は、まるで洗練された映画のセットの一部のように、あなたの心を掴んで離しません。
この美しい住まいは、南東に面しており、朝日の柔らかな光が窓から差し込むシーンを想像してください。LD15.3帖の広々としたリビングは、穏やかな日差しを浴び、パジャマのままコーヒーを楽しむ朝を演出します。その贅沢な広さは、優雅に流れる時間を感じさせ、日常の中に特別なひとときを作り出します。キッチンは3.6帖のスペースで、料理を楽しむことができる夢の場所。食材の香りが漂い、心を躍らせるメニューを考える楽しみがそこにあります。
そして、心の休息を与えてくれる洋室8帖には、夜、静かに本を読みながらリラックスする姿が浮かびます。窓の外には、都市の喧騒がまるで遠くのシンフォニーのように響き、心の安寧をもたらすのです。
AKASAKA K-TOWER RESIDENCE 2603では、24時間管理の安心感に包まれ、TVモニターホンやオートロックのあるセキュリティがあなたを守り、エンチャントされたラウンジでくつろぐひとときも、また格別です。フィットネスや宅配ボックスなど、最新の設備が揃っているため、毎日の生活がまるで特別なイベントのように感じられるでしょう。
このタワーの高さから望む景色は、まるで映画のワンシーンのように美しく、これまでの人生の全ての瞬間を特別にすることでしょう。周辺には歴史と文化が息づく赤坂が広がり、アートや美食を存分に楽しむことができる環境が整っています。
さらに、東京メトロ銀座線赤坂見附駅まで徒歩1分という恵まれた立地は、あなたの生活を便利にし、まるで街全体があなたの庭のように感じさせます。歴史的な意義を持ったこの地は、数多くの文化人やアーティストたちが集う場所でもあります。そんな赤坂の空気を感じながら、あなた自身の物語を紡いでください。
AKASAKA K-TOWER RESIDENCE 2603は、ただの住まいではなく、あなたの新しい人生を彩るキャンバスなのです。ここに住むことで、毎日が特別な瞬間で満ちていくことでしょう。あなたの物語を、この素晴らしい場所で始めてみませんか。
バイブルスコア
バイブルスコア: 24.2
平均的なスコアです。
※バイブルスコア詳細はこちら
バイブルスコアとは独自のAI機械学習技術を利用した物件評価システムで、物件のおすすめ度を示します。最高得点は100点で、スコアが高いほど、よりおすすめの物件と評価されています。
写真
契約条件
| 賃料 | 予想金額:380,000〜400,000円程度 | 管理費 | 予想金額:0〜2,000円程度 |
| 礼金 | 非公開(アーカイブ) | 敷金 | 非公開(アーカイブ) |
| フリーレント | なし | 平米数 | 61.31㎡ |
| 間取り | 1LDK | 大型収納 | SIC |
| 契約期間 |
| 方角 | 南東 |
| 更新料 | 契約形態 | 普通賃貸借契約 | |
| 取引態様 | 媒介 | 内見状況 | 入居中 |
| 入居時期 | 入居中 | SOHO・事務所 | 事務所(SOHO)可 |
| ペット | 間取り内訳 | LD15.3 / K=3.6 / 洋8 | |
| キャンペーン情報・備考 | 本情報は賃料改定交渉の資料作成、収益物件の利回り試算、周辺エリアや最寄り駅の坪単価分析、次回募集開始時期の予測などにご活用いただけます。 | ||
※「どの不動産に頼めばいいのか分からない」「信頼できる営業マンの話を聞きたい」「一番親切な会社と契約したい」とお悩みの方におすすめなのが「高級賃貸バイブル」です。
高級賃貸バイブルは業界10年以上の熟練スタッフ群がお客様ファーストで対応します。
下記ボタンから、まずは無料でご相談下さい。
※内覧をご希望の際には、どうぞ物件のエントランス前にてお待ち合わせくださいませ。ご内覧後は、同じ場所でお別れとさせていただきます。お客様のご都合に合わせたスムーズなご案内を心がけておりますので、ご質問等がございましたら何なりとお申し付けください。 物件概要
| 物件名 |
| 築年月 |
|
|---|---|---|---|
| 所在地 | |||
| 交通 | |||
| 総戸数 |
| 総階数 |
|
| 構造 |
| ||
地図
物件までの道のりは、「拡大地図を表示」をクリックしてナビ機能をご利用ください。
部屋設備

















建物設備

24時間管理

TVモニターホン

エレベーター

オートロック

バイク置場

フィットネス

フロントサービス

ラウンジ

宅配ボックス

敷地内ゴミ置場

駐車場平置き

駐車場機械式

駐輪場
AKASAKA K-TOWER RESIDENCEの現在募集中のお部屋
- No rooms found for this property.





















