
| 賃料 | 予想金額:415,000〜435,000円程度 | 管理費 | 予想金額:0〜2,000円程度 |
| 礼金/敷金 | 非公開(アーカイブ) | 平米数 | 65.87㎡ |
| 初期費用概算(参考) | 目安:2,379,000〜2,479,000 円 | みなし賃料(月額・参考) | 456,750〜476,750 円 |
| 備考 | 本ページは過去募集のアーカイブです。表示の金額は周辺相場・過去募集を踏まえた参考レンジであり、実際の契約金額・条件ではありません。 | ||
※上記みなし賃料(月額)は仲介手数料割引・無料&キャッシュバックを加味した高級賃貸バイブル限定の金額です。一般的なみなし賃料とは異なります。
【建物ページ】AKASAKA K-TOWER RESIDENCEの詳細・最新空室はこちら▶▶選ばれる理由
仲介手数料無料・キャンペーン情報(毎月15名様限定)
〇仲介手数料割引キャンペーン
AKASAKA K-TOWER RESIDENCE 3001の口コミ・レビュー
AKASAKA K-TOWER RESIDENCE 3001は、都会の喧騒から一歩離れた静寂の中で、まるで洗練された映画のワンシーンのように、あなたを迎え入れます。東京都港区元赤坂の地で、北東の光が差し込むこの地は、まさに心の拠り所。専有面積65.87㎡の空間は、ラグジュアリーと機能性を両立させたデザインが施され、居住者に豊かな時間を約束します。
エレガントな印象を与える16.2帖のリビングダイ…AKASAKA K-TOWER RESIDENCE 3001は、都会の喧騒から一歩離れた静寂の中で、まるで洗練された映画のワンシーンのように、あなたを迎え入れます。東京都港区元赤坂の地で、北東の光が差し込むこの地は、まさに心の拠り所。専有面積65.87㎡の空間は、ラグジュアリーと機能性を両立させたデザインが施され、居住者に豊かな時間を約束します。
エレガントな印象を与える16.2帖のリビングダイニングは、まるで広大な空間があなたを包み込むかのよう。日中は穏やかな光が優しく注ぎ、夕暮れ時には、柔らかなオレンジ色の光がさまざまな表情を見せてくれます。ここで過ごす時間は、ワインを片手にゆったりとした音楽を楽しむのも良し、親しい友人と笑い合うひと時も、甘やかな香りの料理を共有する幸せな時間も、まるで映画のクライマックスを楽しむような特別な瞬間となることでしょう。
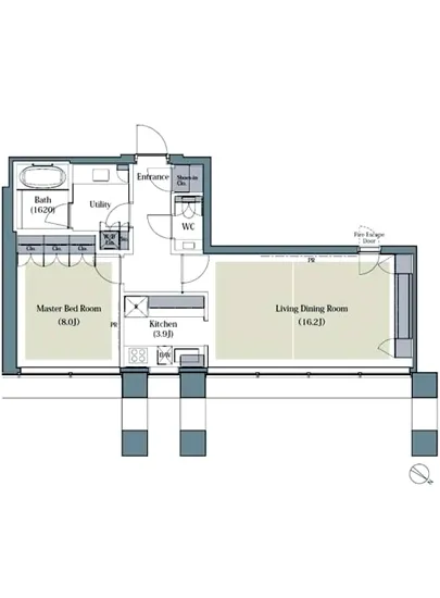
キッチンは3.9帖の広々としたスペースで、上質な調理器具に囲まれ、料理をする喜びがふくらみます。お気に入りのレシピを試す際には、豊かな香ばしさが漂い、心地よい音を響かせる鍋やフライパンの音が、あなたの創造力を掻き立ててくれることでしょう。隣接する8帖の寝室は、朝の光が優しく目覚めさせてくれる至福の場所。夢の中で過ごした物語の続きを、ここで静かに紡ぎ出すことができるのです。
AKASAKA K-TOWER RESIDENCE 3001には、24時間の管理体制やオートロック、宅配ボックスなど、現代のライフスタイルに必要なすべての設備が完備されています。まるで親友のように、あなたを守り、サポートしてくれる存在として、そのぬくもりを感じることができるでしょう。また、フィットネスルームやラウンジは、心身の健康を意識した暮らしを提案し、アクティブな日々を送りたいあなたに寄り添います。
さらに、周辺には歴史深い赤坂の街並みが広がり、文化や芸術に触れる機会が豊富にあります。東京メトロ銀座線赤坂見附駅から徒歩1分というアクセスの良さは、まさに都会の真ん中で生きる特権です。洗練されたカフェやアートギャラリー、劇場での感動的なパフォーマンスに囲まれ、あなたの日常はまるで映画の中の主人公のように彩り豊かなものとなるでしょう。
AKASAKA K-TOWER RESIDENCE 3001は、ただの住まいではなく、あなたの新たな物語が始まる舞台なのです。ここでの日々は、きっと未来の思い出へと変わり、心温まるワンシーンとして、あなたの人生に寄り添ってくれることでしょう。さあ、あなたの新しい生活を、この特別な空間で始めてみませんか。
エレガントな印象を与える16.2帖のリビングダイ…AKASAKA K-TOWER RESIDENCE 3001は、都会の喧騒から一歩離れた静寂の中で、まるで洗練された映画のワンシーンのように、あなたを迎え入れます。東京都港区元赤坂の地で、北東の光が差し込むこの地は、まさに心の拠り所。専有面積65.87㎡の空間は、ラグジュアリーと機能性を両立させたデザインが施され、居住者に豊かな時間を約束します。
エレガントな印象を与える16.2帖のリビングダイニングは、まるで広大な空間があなたを包み込むかのよう。日中は穏やかな光が優しく注ぎ、夕暮れ時には、柔らかなオレンジ色の光がさまざまな表情を見せてくれます。ここで過ごす時間は、ワインを片手にゆったりとした音楽を楽しむのも良し、親しい友人と笑い合うひと時も、甘やかな香りの料理を共有する幸せな時間も、まるで映画のクライマックスを楽しむような特別な瞬間となることでしょう。
キッチンは3.9帖の広々としたスペースで、上質な調理器具に囲まれ、料理をする喜びがふくらみます。お気に入りのレシピを試す際には、豊かな香ばしさが漂い、心地よい音を響かせる鍋やフライパンの音が、あなたの創造力を掻き立ててくれることでしょう。隣接する8帖の寝室は、朝の光が優しく目覚めさせてくれる至福の場所。夢の中で過ごした物語の続きを、ここで静かに紡ぎ出すことができるのです。
AKASAKA K-TOWER RESIDENCE 3001には、24時間の管理体制やオートロック、宅配ボックスなど、現代のライフスタイルに必要なすべての設備が完備されています。まるで親友のように、あなたを守り、サポートしてくれる存在として、そのぬくもりを感じることができるでしょう。また、フィットネスルームやラウンジは、心身の健康を意識した暮らしを提案し、アクティブな日々を送りたいあなたに寄り添います。
さらに、周辺には歴史深い赤坂の街並みが広がり、文化や芸術に触れる機会が豊富にあります。東京メトロ銀座線赤坂見附駅から徒歩1分というアクセスの良さは、まさに都会の真ん中で生きる特権です。洗練されたカフェやアートギャラリー、劇場での感動的なパフォーマンスに囲まれ、あなたの日常はまるで映画の中の主人公のように彩り豊かなものとなるでしょう。
AKASAKA K-TOWER RESIDENCE 3001は、ただの住まいではなく、あなたの新たな物語が始まる舞台なのです。ここでの日々は、きっと未来の思い出へと変わり、心温まるワンシーンとして、あなたの人生に寄り添ってくれることでしょう。さあ、あなたの新しい生活を、この特別な空間で始めてみませんか。
バイブルスコア
バイブルスコア: 20.8
平均的なスコアです。
※バイブルスコア詳細はこちら
バイブルスコアとは独自のAI機械学習技術を利用した物件評価システムで、物件のおすすめ度を示します。最高得点は100点で、スコアが高いほど、よりおすすめの物件と評価されています。
写真
契約条件
| 賃料 | 予想金額:415,000〜435,000円程度 | 管理費 | 予想金額:0〜2,000円程度 |
| 礼金 | 非公開(アーカイブ) | 敷金 | 非公開(アーカイブ) |
| フリーレント | なし | 平米数 | 65.87㎡ |
| 間取り | 1LDK | 大型収納 | SIC |
| 契約期間 |
| 方角 | 北東 |
| 更新料 | 契約形態 | 普通賃貸借契約 | |
| 取引態様 | 媒介 | 内見状況 | 入居中 |
| 入居時期 | 入居中 | SOHO・事務所 | 事務所(SOHO)可 |
| ペット | 間取り内訳 | LD=16.2J / K=3.9J / BR=8J | |
| キャンペーン情報・備考 | 本情報は賃料改定交渉の資料作成、収益物件の利回り試算、周辺エリアや最寄り駅の坪単価分析、次回募集開始時期の予測などにご活用いただけます。 | ||
※「どの不動産に頼めばいいのか分からない」「信頼できる営業マンの話を聞きたい」「一番親切な会社と契約したい」とお悩みの方におすすめなのが「高級賃貸バイブル」です。
高級賃貸バイブルは業界10年以上の熟練スタッフ群がお客様ファーストで対応します。
下記ボタンから、まずは無料でご相談下さい。
※内覧をご希望の際には、どうぞ物件のエントランス前にてお待ち合わせくださいませ。ご内覧後は、同じ場所でお別れとさせていただきます。お客様のご都合に合わせたスムーズなご案内を心がけておりますので、ご質問等がございましたら何なりとお申し付けください。 物件概要
| 物件名 |
| 築年月 |
|
|---|---|---|---|
| 所在地 | |||
| 交通 | |||
| 総戸数 |
| 総階数 |
|
| 構造 |
| ||
地図
物件までの道のりは、「拡大地図を表示」をクリックしてナビ機能をご利用ください。
部屋設備

















建物設備

24時間管理

TVモニターホン

エレベーター

オートロック

バイク置場

フィットネス

フロントサービス

ラウンジ

宅配ボックス

敷地内ゴミ置場

駐車場平置き

駐車場機械式

駐輪場
AKASAKA K-TOWER RESIDENCEの現在募集中のお部屋
- No rooms found for this property.





















