
| 賃料 | 予想金額:405,000〜425,000円程度 | 管理費 | 予想金額:0〜2,000円程度 |
| 礼金/敷金 | 非公開(アーカイブ) | 平米数 | 66.48㎡ |
| 初期費用概算(参考) | 目安:2,324,000〜2,424,000 円 | みなし賃料(月額・参考) | 445,813〜465,813 円 |
| 備考 | 本ページは過去募集のアーカイブです。表示の金額は周辺相場・過去募集を踏まえた参考レンジであり、実際の契約金額・条件ではありません。 | ||
※上記みなし賃料(月額)は仲介手数料割引・無料&キャッシュバックを加味した高級賃貸バイブル限定の金額です。一般的なみなし賃料とは異なります。
【建物ページ】AKASAKA K-TOWER RESIDENCEの詳細・最新空室はこちら▶▶選ばれる理由
仲介手数料無料・キャンペーン情報(毎月15名様限定)
〇仲介手数料割引キャンペーン
AKASAKA K-TOWER RESIDENCE 2706の口コミ・レビュー
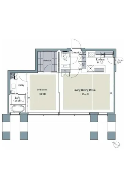
AKASAKA K-TOWER RESIDENCE 2706は、まるで都会の真ん中に佇む一つの芸術作品のようです。この特別な住空間は、あなたに新たな生活の扉を開く準備が整っています。2706号室は、66.48㎡の広さを持つ贅沢な1LDK。南西を向いているため、四季折々の光が優しくあなたの暮らしを包み込みます。朝の光が差し込む中、リビングダイニング(LD)は15.4帖の広さを誇り、まるで映画のセット…AKASAKA K-TOWER RESIDENCE 2706は、まるで都会の真ん中に佇む一つの芸術作品のようです。この特別な住空間は、あなたに新たな生活の扉を開く準備が整っています。2706号室は、66.48㎡の広さを持つ贅沢な1LDK。南西を向いているため、四季折々の光が優しくあなたの暮らしを包み込みます。朝の光が差し込む中、リビングダイニング(LD)は15.4帖の広さを誇り、まるで映画のセットのように、日常の一瞬一瞬を美しく演出します。
キッチン(K)は4.3帖で、料理をする楽しみを感じさせてくれます。新鮮な食材を切り刻むその音、香ばしい香りが漂い、あなたの五感を刺激し、友人との楽しいひとときを思い描かせることでしょう。寝室(BR)は8.9帖の広さがあり、あなたの夢を育む静寂な空間が広がっています。心を落ち着ける夜の時間、柔らかな寝具に身を委ねれば、至福の眠りへと導いてくれることでしょう。
AKASAKA K-TOWER RESIDENCE 2706の魅力は、その優雅さだけにとどまりません。24時間の管理体制が整っており、安心とともに暮らすことができます。また、オートロックシステムやTVモニターホンが備わっているため、訪れる者にもあなたの安全に対するこだわりを示すことができるのです。エレベーターで上がれば、まるで空に近づくかのような感覚を味わうことができます。高層の美しい景色を眺め、地上の喧騒から切り離された静寂があなたを包み込むことでしょう。
本物件は、フィットネスルームやラウンジ、フロントサービスを備えており、生活に彩りを添えてくれます。朝のランニングで新鮮な空気を吸い込み、友人と共にラウンジでお茶を楽しむ。そんなライフスタイルが、ここから始まります。周辺には歴史的な赤坂の文化が息づいており、散歩しながら感じることができるでしょう。近隣に広がる緑豊かな公園や、アートギャラリーも徒歩圏内で、心豊かな生活が送れます。
AKASAKA K-TOWER RESIDENCE 2706は、ただの住まいではなく、日常を特別な瞬間に変える魔法の場所です。あなたの物語がここから始まります。高級な暮らしを手に入れるための第一歩を、ぜひこの地で踏み出してみてはいかがでしょうか。
キッチン(K)は4.3帖で、料理をする楽しみを感じさせてくれます。新鮮な食材を切り刻むその音、香ばしい香りが漂い、あなたの五感を刺激し、友人との楽しいひとときを思い描かせることでしょう。寝室(BR)は8.9帖の広さがあり、あなたの夢を育む静寂な空間が広がっています。心を落ち着ける夜の時間、柔らかな寝具に身を委ねれば、至福の眠りへと導いてくれることでしょう。
AKASAKA K-TOWER RESIDENCE 2706の魅力は、その優雅さだけにとどまりません。24時間の管理体制が整っており、安心とともに暮らすことができます。また、オートロックシステムやTVモニターホンが備わっているため、訪れる者にもあなたの安全に対するこだわりを示すことができるのです。エレベーターで上がれば、まるで空に近づくかのような感覚を味わうことができます。高層の美しい景色を眺め、地上の喧騒から切り離された静寂があなたを包み込むことでしょう。
本物件は、フィットネスルームやラウンジ、フロントサービスを備えており、生活に彩りを添えてくれます。朝のランニングで新鮮な空気を吸い込み、友人と共にラウンジでお茶を楽しむ。そんなライフスタイルが、ここから始まります。周辺には歴史的な赤坂の文化が息づいており、散歩しながら感じることができるでしょう。近隣に広がる緑豊かな公園や、アートギャラリーも徒歩圏内で、心豊かな生活が送れます。
AKASAKA K-TOWER RESIDENCE 2706は、ただの住まいではなく、日常を特別な瞬間に変える魔法の場所です。あなたの物語がここから始まります。高級な暮らしを手に入れるための第一歩を、ぜひこの地で踏み出してみてはいかがでしょうか。
バイブルスコア
バイブルスコア: 23.5
平均的なスコアです。
※バイブルスコア詳細はこちら
バイブルスコアとは独自のAI機械学習技術を利用した物件評価システムで、物件のおすすめ度を示します。最高得点は100点で、スコアが高いほど、よりおすすめの物件と評価されています。
写真
契約条件
| 賃料 | 予想金額:405,000〜425,000円程度 | 管理費 | 予想金額:0〜2,000円程度 |
| 礼金 | 非公開(アーカイブ) | 敷金 | 非公開(アーカイブ) |
| フリーレント | なし | 平米数 | 66.48㎡ |
| 間取り | 1LDK | 大型収納 | WIC |
| 契約期間 |
| 方角 | 南西 |
| 更新料 | 契約形態 | 普通賃貸借契約 | |
| 取引態様 | 媒介 | 内見状況 | 入居中 |
| 入居時期 | 入居中 | SOHO・事務所 | 事務所(SOHO)可 |
| ペット | 間取り内訳 | LD=15.4J / K=4.3J / BR=8.9J | |
| キャンペーン情報・備考 | 本情報は賃料改定交渉の資料作成、収益物件の利回り試算、周辺エリアや最寄り駅の坪単価分析、次回募集開始時期の予測などにご活用いただけます。 | ||
※「どの不動産に頼めばいいのか分からない」「信頼できる営業マンの話を聞きたい」「一番親切な会社と契約したい」とお悩みの方におすすめなのが「高級賃貸バイブル」です。
高級賃貸バイブルは業界10年以上の熟練スタッフ群がお客様ファーストで対応します。
下記ボタンから、まずは無料でご相談下さい。
※内覧をご希望の際には、どうぞ物件のエントランス前にてお待ち合わせくださいませ。ご内覧後は、同じ場所でお別れとさせていただきます。お客様のご都合に合わせたスムーズなご案内を心がけておりますので、ご質問等がございましたら何なりとお申し付けください。 物件概要
| 物件名 |
| 築年月 |
|
|---|---|---|---|
| 所在地 | |||
| 交通 | |||
| 総戸数 |
| 総階数 |
|
| 構造 |
| ||
地図
物件までの道のりは、「拡大地図を表示」をクリックしてナビ機能をご利用ください。
部屋設備

















建物設備

24時間管理

TVモニターホン

エレベーター

オートロック

バイク置場

フィットネス

フロントサービス

ラウンジ

宅配ボックス

敷地内ゴミ置場

駐車場平置き

駐車場機械式

駐輪場
AKASAKA K-TOWER RESIDENCEの現在募集中のお部屋
- No rooms found for this property.





















