
| 賃料 | 予想金額:350,000〜370,000円程度 | 管理費 | 予想金額:0〜2,000円程度 |
| 礼金/敷金 | 非公開(アーカイブ) | 平米数 | 60.28㎡ |
| 初期費用概算(参考) | 目安:2,021,500〜2,121,500 円 | みなし賃料(月額・参考) | 385,656〜405,656 円 |
| 備考 | 本ページは過去募集のアーカイブです。表示の金額は周辺相場・過去募集を踏まえた参考レンジであり、実際の契約金額・条件ではありません。 | ||
※上記みなし賃料(月額)は仲介手数料割引・無料&キャッシュバックを加味した高級賃貸バイブル限定の金額です。一般的なみなし賃料とは異なります。
【建物ページ】AKASAKA K-TOWER RESIDENCEの詳細・最新空室はこちら▶▶選ばれる理由
仲介手数料無料・キャンペーン情報(毎月15名様限定)
〇仲介手数料割引キャンペーン
AKASAKA K-TOWER RESIDENCE 2606の口コミ・レビュー
AKASAKA K-TOWER RESIDENCE 2606。あなたの人生の新たな舞台が、ここにあります。この美しいタワーの2606号室は、まるで特別な映画のワンシーンから抜け出してきたかのように、日常を非日常へと変えてくれるでしょう。東京都港区元赤坂のこの地で、歴史と文化が交錯する魅惑の空間が、静かにあなたを待ち受けています。
北西を向いた窓からは、優雅な都心の風景が広がり、時間が経つのを忘れ…AKASAKA K-TOWER RESIDENCE 2606。あなたの人生の新たな舞台が、ここにあります。この美しいタワーの2606号室は、まるで特別な映画のワンシーンから抜け出してきたかのように、日常を非日常へと変えてくれるでしょう。東京都港区元赤坂のこの地で、歴史と文化が交錯する魅惑の空間が、静かにあなたを待ち受けています。
北西を向いた窓からは、優雅な都心の風景が広がり、時間が経つのを忘れて見入ってしまいます。景色が日々の表情を変える中、朝の柔らかな日差しがカーテンを通り抜け、あなたの心を温めてくれるでしょう。目を閉じて、耳を澄ませば、都会の喧騒の中に潜む静けさが聞こえてきます。時折、遠くで聞こえる車の音は、まるで生活のメロディーのように心地よく、あなたの暮らしを彩ります。
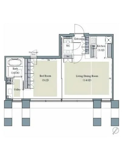
この部屋の間取りは1LDK、洋室は9.2帖、LDは14.0帖、Kは3.3帖と、豊かな空間を演出しています。リビングの広々とした14.0帖の空間は、まさに家族や友人との温かな交流の場。夕食の準備をしながら、香ばしい料理の香りが鼻をくすぐり、テーブルには美しい食器が並ぶ様子が目に浮かびます。料理の音と笑い声が響き渡る中、あなたの心は安らぎに包まれ、何気ない日常が特別な時間に変わっていきます。
このタワー内には、24時間の管理体制やオートロック、フィットネスルーム、フロントサービスなど、現代的な便利さが詰まっています。まるで自分が映画の主人公になったかのように、快適でラグジュアリーな生活を体験できます。エレベーターの扉が開くたびに、上質な空間があなたを迎え入れ、心を躍らせます。ラウンジで友人と過ごすひとときや、静かな時間を楽しむためにカフェで本を読むことも、特別な経験に変わります。
また、この地は日本の歴史と文化が息づく場所。周辺には名だたる美術館や歴史的なスポットが点在し、五感を刺激するアートに囲まれた日々を送ることができます。東京メトロ銀座線の赤坂見附駅からわずか徒歩1分の距離にあるこの物件は、あなたの日常に芸術を取り入れる絶好のロケーションです。美術館から帰る途中、ふわりとした和菓子の甘い香りに誘われて、心を満たすひとときを大切にすることができるでしょう。
AKASAKA K-TOWER RESIDENCE 2606は、ただの住まいではなく、あなた自身の物語を紡ぐためのステージです。ここでの日々が映画のように輝く特別なものとなり、心の底からの充実感と共に、あなたの新たな人生が始まることを願っています。
北西を向いた窓からは、優雅な都心の風景が広がり、時間が経つのを忘れ…AKASAKA K-TOWER RESIDENCE 2606。あなたの人生の新たな舞台が、ここにあります。この美しいタワーの2606号室は、まるで特別な映画のワンシーンから抜け出してきたかのように、日常を非日常へと変えてくれるでしょう。東京都港区元赤坂のこの地で、歴史と文化が交錯する魅惑の空間が、静かにあなたを待ち受けています。
北西を向いた窓からは、優雅な都心の風景が広がり、時間が経つのを忘れて見入ってしまいます。景色が日々の表情を変える中、朝の柔らかな日差しがカーテンを通り抜け、あなたの心を温めてくれるでしょう。目を閉じて、耳を澄ませば、都会の喧騒の中に潜む静けさが聞こえてきます。時折、遠くで聞こえる車の音は、まるで生活のメロディーのように心地よく、あなたの暮らしを彩ります。
この部屋の間取りは1LDK、洋室は9.2帖、LDは14.0帖、Kは3.3帖と、豊かな空間を演出しています。リビングの広々とした14.0帖の空間は、まさに家族や友人との温かな交流の場。夕食の準備をしながら、香ばしい料理の香りが鼻をくすぐり、テーブルには美しい食器が並ぶ様子が目に浮かびます。料理の音と笑い声が響き渡る中、あなたの心は安らぎに包まれ、何気ない日常が特別な時間に変わっていきます。
このタワー内には、24時間の管理体制やオートロック、フィットネスルーム、フロントサービスなど、現代的な便利さが詰まっています。まるで自分が映画の主人公になったかのように、快適でラグジュアリーな生活を体験できます。エレベーターの扉が開くたびに、上質な空間があなたを迎え入れ、心を躍らせます。ラウンジで友人と過ごすひとときや、静かな時間を楽しむためにカフェで本を読むことも、特別な経験に変わります。
また、この地は日本の歴史と文化が息づく場所。周辺には名だたる美術館や歴史的なスポットが点在し、五感を刺激するアートに囲まれた日々を送ることができます。東京メトロ銀座線の赤坂見附駅からわずか徒歩1分の距離にあるこの物件は、あなたの日常に芸術を取り入れる絶好のロケーションです。美術館から帰る途中、ふわりとした和菓子の甘い香りに誘われて、心を満たすひとときを大切にすることができるでしょう。
AKASAKA K-TOWER RESIDENCE 2606は、ただの住まいではなく、あなた自身の物語を紡ぐためのステージです。ここでの日々が映画のように輝く特別なものとなり、心の底からの充実感と共に、あなたの新たな人生が始まることを願っています。
バイブルスコア
バイブルスコア: 32.3
平均的なスコアです。
※バイブルスコア詳細はこちら
バイブルスコアとは独自のAI機械学習技術を利用した物件評価システムで、物件のおすすめ度を示します。最高得点は100点で、スコアが高いほど、よりおすすめの物件と評価されています。
写真
契約条件
| 賃料 | 予想金額:350,000〜370,000円程度 | 管理費 | 予想金額:0〜2,000円程度 |
| 礼金 | 非公開(アーカイブ) | 敷金 | 非公開(アーカイブ) |
| フリーレント | なし | 平米数 | 60.28㎡ |
| 間取り | 1LDK | 大型収納 | |
| 契約期間 |
| 方角 | 北西 |
| 更新料 | 契約形態 | 普通賃貸借契約 | |
| 取引態様 | 媒介 | 内見状況 | 入居中 |
| 入居時期 | 入居中 | SOHO・事務所 | 事務所(SOHO)可 |
| ペット | 間取り内訳 | 洋:9.2 LD:14.0 K:3.3 | |
| キャンペーン情報・備考 | 本情報は賃料改定交渉の資料作成、収益物件の利回り試算、周辺エリアや最寄り駅の坪単価分析、次回募集開始時期の予測などにご活用いただけます。 | ||
※「どの不動産に頼めばいいのか分からない」「信頼できる営業マンの話を聞きたい」「一番親切な会社と契約したい」とお悩みの方におすすめなのが「高級賃貸バイブル」です。
高級賃貸バイブルは業界10年以上の熟練スタッフ群がお客様ファーストで対応します。
下記ボタンから、まずは無料でご相談下さい。
※内覧をご希望の際には、どうぞ物件のエントランス前にてお待ち合わせくださいませ。ご内覧後は、同じ場所でお別れとさせていただきます。お客様のご都合に合わせたスムーズなご案内を心がけておりますので、ご質問等がございましたら何なりとお申し付けください。 物件概要
| 物件名 |
| 築年月 |
|
|---|---|---|---|
| 所在地 | |||
| 交通 | |||
| 総戸数 |
| 総階数 |
|
| 構造 |
| ||
地図
物件までの道のりは、「拡大地図を表示」をクリックしてナビ機能をご利用ください。
部屋設備
















建物設備

24時間管理

TVモニターホン

エレベーター

オートロック

バイク置場

フィットネス

フロントサービス

ラウンジ

宅配ボックス

敷地内ゴミ置場

駐車場平置き

駐車場機械式

駐輪場
AKASAKA K-TOWER RESIDENCEの現在募集中のお部屋
- No rooms found for this property.





















