
| 賃料 | 予想金額:410,000〜430,000円程度 | 管理費 | 予想金額:0〜2,000円程度 |
| 礼金/敷金 | 非公開(アーカイブ) | 平米数 | 60.28㎡ |
| 初期費用概算(参考) | 目安:2,351,500〜2,451,500 円 | みなし賃料(月額・参考) | 451,281〜471,281 円 |
| 備考 | 本ページは過去募集のアーカイブです。表示の金額は周辺相場・過去募集を踏まえた参考レンジであり、実際の契約金額・条件ではありません。 | ||
※上記みなし賃料(月額)は仲介手数料割引・無料&キャッシュバックを加味した高級賃貸バイブル限定の金額です。一般的なみなし賃料とは異なります。
【建物ページ】AKASAKA K-TOWER RESIDENCEの詳細・最新空室はこちら▶▶選ばれる理由
仲介手数料無料・キャンペーン情報(毎月15名様限定)
〇仲介手数料割引キャンペーン
AKASAKA K-TOWER RESIDENCE 2902の口コミ・レビュー
AKASAKA K-TOWER RESIDENCE 2902は、東京都港区元赤坂1-2-17にその姿を誇る、都市の喧騒を忘れさせるリトリートです。この美しいタワーは、南東の空へと開かれており、まるで朝日が昇る瞬間を毎日味わうために設計されています。2階の高みに位置するこの2902号室は、あなたを新たな生活の舞台へと導いてくれることでしょう。専有面積60.28㎡のこの物件は、贅沢さと実用性を兼ね備え…AKASAKA K-TOWER RESIDENCE 2902は、東京都港区元赤坂1-2-17にその姿を誇る、都市の喧騒を忘れさせるリトリートです。この美しいタワーは、南東の空へと開かれており、まるで朝日が昇る瞬間を毎日味わうために設計されています。2階の高みに位置するこの2902号室は、あなたを新たな生活の舞台へと導いてくれることでしょう。専有面積60.28㎡のこの物件は、贅沢さと実用性を兼ね備えた1LDKの心地よい空間です。
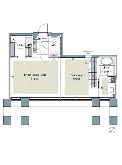
このAKASAKA K-TOWER RESIDENCE 2902では、ラグジュアリーな暮らしが手の届くところにあります。広々としたリビングダイニングは、14.0帖というゆとりを持ち、滑らかなカーペットの上で素足を心地よく感じることができます。窓の外には、都会の景色と青空が広がり、その暖かい日差しが部屋の中に優しく入り込みます。時折、通り過ぎる風のささやきが、日常のストレスを洗い流してくれることでしょう。
9.2帖の洋室は、心を落ち着かせるための隠れ家としての役割を果たします。そこに身をゆだねることで、まるで大自然の中にいるかのような静けさを得られます。ベッドに身を横たえると、心地よいシーツの肌触りがあなたを包み込み、眠る準備が整います。そして、目を閉じれば、やがて夢の世界へと旅立っていくことでしょう。
この物件の魅力は、デザイナーズの洗練された内装だけではありません。24時間管理されるセキュリティや、オートロックされたエントランスが安心感を提供し、フィットネスルームやフロントサービス、ラウンジなど、多彩な設備も魅力的です。宅配ボックスは、忙しい現代人にとっての強い味方です。大切な荷物を受け取ったとき、その心地よい期待感は、まるで待ち望んだ贈り物を手にする瞬間のようです。
AKASAKA K-TOWER RESIDENCE 2902の周囲には、文化と歴史が息づいています。近隣には赤坂見附駅があり、東京メトロ銀座線を通じて都心の利便性が手に入ります。芸術が溢れる場所には、著名な美術館や劇場が点在し、心に響く瞬間を求めてふらりと出かけることができるのです。文化に触れ、心を豊かにすることで、あなたの日常が更に彩りを増すことでしょう。
あなたがこのAKASAKA K-TOWER RESIDENCE 2902に住まう日々は、まさに映画のワンシーンのような展開が待っています。新たな出会いや、静かなひととき、何気ない日常が特別な瞬間に変わっていく様子を、ぜひ体感していただきたいのです。ここに住むことは、ただの生活ではなく、心豊かな人生を描くための舞台に立つことなのです。さあ、この美しいお部屋に、あなた自身の物語を紡いでみませんか。
このAKASAKA K-TOWER RESIDENCE 2902では、ラグジュアリーな暮らしが手の届くところにあります。広々としたリビングダイニングは、14.0帖というゆとりを持ち、滑らかなカーペットの上で素足を心地よく感じることができます。窓の外には、都会の景色と青空が広がり、その暖かい日差しが部屋の中に優しく入り込みます。時折、通り過ぎる風のささやきが、日常のストレスを洗い流してくれることでしょう。
9.2帖の洋室は、心を落ち着かせるための隠れ家としての役割を果たします。そこに身をゆだねることで、まるで大自然の中にいるかのような静けさを得られます。ベッドに身を横たえると、心地よいシーツの肌触りがあなたを包み込み、眠る準備が整います。そして、目を閉じれば、やがて夢の世界へと旅立っていくことでしょう。
この物件の魅力は、デザイナーズの洗練された内装だけではありません。24時間管理されるセキュリティや、オートロックされたエントランスが安心感を提供し、フィットネスルームやフロントサービス、ラウンジなど、多彩な設備も魅力的です。宅配ボックスは、忙しい現代人にとっての強い味方です。大切な荷物を受け取ったとき、その心地よい期待感は、まるで待ち望んだ贈り物を手にする瞬間のようです。
AKASAKA K-TOWER RESIDENCE 2902の周囲には、文化と歴史が息づいています。近隣には赤坂見附駅があり、東京メトロ銀座線を通じて都心の利便性が手に入ります。芸術が溢れる場所には、著名な美術館や劇場が点在し、心に響く瞬間を求めてふらりと出かけることができるのです。文化に触れ、心を豊かにすることで、あなたの日常が更に彩りを増すことでしょう。
あなたがこのAKASAKA K-TOWER RESIDENCE 2902に住まう日々は、まさに映画のワンシーンのような展開が待っています。新たな出会いや、静かなひととき、何気ない日常が特別な瞬間に変わっていく様子を、ぜひ体感していただきたいのです。ここに住むことは、ただの生活ではなく、心豊かな人生を描くための舞台に立つことなのです。さあ、この美しいお部屋に、あなた自身の物語を紡いでみませんか。
バイブルスコア
バイブルスコア: 13.9
高級な物件でない場合は割高な物件です。。
※バイブルスコア詳細はこちら
バイブルスコアとは独自のAI機械学習技術を利用した物件評価システムで、物件のおすすめ度を示します。最高得点は100点で、スコアが高いほど、よりおすすめの物件と評価されています。
写真
契約条件
| 賃料 | 予想金額:410,000〜430,000円程度 | 管理費 | 予想金額:0〜2,000円程度 |
| 礼金 | 非公開(アーカイブ) | 敷金 | 非公開(アーカイブ) |
| フリーレント | なし | 平米数 | 60.28㎡ |
| 間取り | 1LDK | 大型収納 | SIC |
| 契約期間 |
| 方角 | 南東 |
| 更新料 | 契約形態 | 普通賃貸借契約 | |
| 取引態様 | 媒介 | 内見状況 | 入居中 |
| 入居時期 | 入居中 | SOHO・事務所 | 事務所(SOHO)可 |
| ペット | 間取り内訳 | LD14.0 / K3.3 / 洋9.2 | |
| キャンペーン情報・備考 | 本情報は賃料改定交渉の資料作成、収益物件の利回り試算、周辺エリアや最寄り駅の坪単価分析、次回募集開始時期の予測などにご活用いただけます。 | ||
※「どの不動産に頼めばいいのか分からない」「信頼できる営業マンの話を聞きたい」「一番親切な会社と契約したい」とお悩みの方におすすめなのが「高級賃貸バイブル」です。
高級賃貸バイブルは業界10年以上の熟練スタッフ群がお客様ファーストで対応します。
下記ボタンから、まずは無料でご相談下さい。
※内覧をご希望の際には、どうぞ物件のエントランス前にてお待ち合わせくださいませ。ご内覧後は、同じ場所でお別れとさせていただきます。お客様のご都合に合わせたスムーズなご案内を心がけておりますので、ご質問等がございましたら何なりとお申し付けください。 物件概要
| 物件名 |
| 築年月 |
|
|---|---|---|---|
| 所在地 | |||
| 交通 | |||
| 総戸数 |
| 総階数 |
|
| 構造 |
| ||
地図
物件までの道のりは、「拡大地図を表示」をクリックしてナビ機能をご利用ください。
部屋設備

















建物設備

24時間管理

TVモニターホン

エレベーター

オートロック

バイク置場

フィットネス

フロントサービス

ラウンジ

宅配ボックス

敷地内ゴミ置場

駐車場平置き

駐車場機械式

駐輪場
AKASAKA K-TOWER RESIDENCEの現在募集中のお部屋
- No rooms found for this property.





















