
| 賃料 | 予想金額:115,000〜135,000円程度 | 管理費 | 予想金額:3,000〜7,000円程度 |
| 礼金/敷金 | 非公開(アーカイブ) | 平米数 | 37.31㎡ |
| 初期費用概算(参考) | 目安:486,500〜586,500 円 | みなし賃料(月額・参考) | 128,573〜148,573 円 |
| 備考 | 本ページは過去募集のアーカイブです。表示の金額は周辺相場・過去募集を踏まえた参考レンジであり、実際の契約金額・条件ではありません。 | ||
※上記みなし賃料(月額)は仲介手数料割引・無料&キャッシュバックを加味した高級賃貸バイブル限定の金額です。一般的なみなし賃料とは異なります。
【建物ページ】ライオンズマンション白金台の詳細・最新空室はこちら▶▶選ばれる理由
仲介手数料無料・キャンペーン情報(毎月15名様限定)
〇仲介手数料割引キャンペーン
ライオンズマンション白金台 803の口コミ・レビュー
ライオンズマンション白金台 803。それは、東京の洗練された空気を感じながら、日々の生活に彩りを添えるためにあなたを待っています。803という番号は、高層の魅力が詰まった小宇宙を意味し、あなたがこの特別な空間に足を踏み入れる瞬間から、物語が始まります。
この物件が位置する東京都港区白金台は、その名が示すとおり、歴史と文化が織り交ぜられた街。周囲には洗練されたカフェや高級レストランが立ち並び、まる…ライオンズマンション白金台 803。それは、東京の洗練された空気を感じながら、日々の生活に彩りを添えるためにあなたを待っています。803という番号は、高層の魅力が詰まった小宇宙を意味し、あなたがこの特別な空間に足を踏み入れる瞬間から、物語が始まります。
この物件が位置する東京都港区白金台は、その名が示すとおり、歴史と文化が織り交ぜられた街。周囲には洗練されたカフェや高級レストランが立ち並び、まるで映画の舞台のように、日常を特別なものに変えてくれます。白金高輪駅からわずか徒歩5分の距離は、あなたに心地よい静寂と交通の利便性をもたらします。
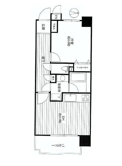
ライオンズマンション白金台 803のドアを開けた瞬間、広がる空間はまるで別世界。DK7.7帖のゆとりあるリビングは、あなたの創造性を刺激し、陽の光が優しく差し込む窓からは、東の街並みが美しいシルエットを描き出します。朝のコーヒーの香りが漂う中、心地よい風に吹かれながら、あなただけの特別な朝を迎えられることでしょう。
続いて、洋室6帖の静謐な空間へと進むと、もはやそこは夢の中のひととき。壁に寄りかかり、柔らかな光に包まれながら、お気に入りの本を手に取る瞬間、時間が止まるような感覚が訪れます。心地よい布団に包まれて、静かな夜を楽しむことも、思い出深い映画のシーンになるに違いありません。
また、ライオンズマンション白金台 803は、ただの住まいではなく、あなたのライフスタイルを豊かにするための舞台装置でもあります。TVモニターホンやオートロック、宅配ボックスといった最新の設備が、安心感と便利さを提供し、あなたの生活をスムーズに演出します。ここでは日常が非日常へと変わり、忘れられない瞬間が生まれていくのです。
この物件に住むことは、まるでアートの中に生きること。その周囲には、多くの美術館やギャラリーが点在し、光と色の饗宴があなたを待っています。訪れるたびに心が躍るような文化の香りが、あなたの感性を刺激し、毎日が新たな発見で満ちていくでしょう。
そして、ライオンズマンション白金台 803に住むことで、あなたはただの住人ではなく、物件自体と共に成長していく存在となります。この場所での生活は、まるで名画の中の一部として、あなた自身のストーリーが描かれていくかのよう。新たな出会いや経験が、あなたの人生に色を添え、素晴らしいメロディを奏でるでしょう。
ライオンズマンション白金台 803は、あなたを呼んでいます。一緒に新しい章を開き、美しい日常を描いてみませんか?この特別な空間での生活は、まさに夢のよう。さあ、あなたの運命をこの場所に託してみてください。
この物件が位置する東京都港区白金台は、その名が示すとおり、歴史と文化が織り交ぜられた街。周囲には洗練されたカフェや高級レストランが立ち並び、まる…ライオンズマンション白金台 803。それは、東京の洗練された空気を感じながら、日々の生活に彩りを添えるためにあなたを待っています。803という番号は、高層の魅力が詰まった小宇宙を意味し、あなたがこの特別な空間に足を踏み入れる瞬間から、物語が始まります。
この物件が位置する東京都港区白金台は、その名が示すとおり、歴史と文化が織り交ぜられた街。周囲には洗練されたカフェや高級レストランが立ち並び、まるで映画の舞台のように、日常を特別なものに変えてくれます。白金高輪駅からわずか徒歩5分の距離は、あなたに心地よい静寂と交通の利便性をもたらします。
ライオンズマンション白金台 803のドアを開けた瞬間、広がる空間はまるで別世界。DK7.7帖のゆとりあるリビングは、あなたの創造性を刺激し、陽の光が優しく差し込む窓からは、東の街並みが美しいシルエットを描き出します。朝のコーヒーの香りが漂う中、心地よい風に吹かれながら、あなただけの特別な朝を迎えられることでしょう。
続いて、洋室6帖の静謐な空間へと進むと、もはやそこは夢の中のひととき。壁に寄りかかり、柔らかな光に包まれながら、お気に入りの本を手に取る瞬間、時間が止まるような感覚が訪れます。心地よい布団に包まれて、静かな夜を楽しむことも、思い出深い映画のシーンになるに違いありません。
また、ライオンズマンション白金台 803は、ただの住まいではなく、あなたのライフスタイルを豊かにするための舞台装置でもあります。TVモニターホンやオートロック、宅配ボックスといった最新の設備が、安心感と便利さを提供し、あなたの生活をスムーズに演出します。ここでは日常が非日常へと変わり、忘れられない瞬間が生まれていくのです。
この物件に住むことは、まるでアートの中に生きること。その周囲には、多くの美術館やギャラリーが点在し、光と色の饗宴があなたを待っています。訪れるたびに心が躍るような文化の香りが、あなたの感性を刺激し、毎日が新たな発見で満ちていくでしょう。
そして、ライオンズマンション白金台 803に住むことで、あなたはただの住人ではなく、物件自体と共に成長していく存在となります。この場所での生活は、まるで名画の中の一部として、あなた自身のストーリーが描かれていくかのよう。新たな出会いや経験が、あなたの人生に色を添え、素晴らしいメロディを奏でるでしょう。
ライオンズマンション白金台 803は、あなたを呼んでいます。一緒に新しい章を開き、美しい日常を描いてみませんか?この特別な空間での生活は、まさに夢のよう。さあ、あなたの運命をこの場所に託してみてください。
バイブルスコア
バイブルスコア: 42.6
条件のいい物件です、引っ越しが2か月以内の場合は仮申し込みを検討すべき物件です。
※バイブルスコア詳細はこちら
バイブルスコアとは独自のAI機械学習技術を利用した物件評価システムで、物件のおすすめ度を示します。最高得点は100点で、スコアが高いほど、よりおすすめの物件と評価されています。
写真
契約条件
| 賃料 | 予想金額:115,000〜135,000円程度 | 管理費 | 予想金額:3,000〜7,000円程度 |
| 礼金 | 非公開(アーカイブ) | 敷金 | 非公開(アーカイブ) |
| フリーレント | なし | 平米数 | 37.31㎡ |
| 間取り | 1DK | 大型収納 | |
| 契約期間 |
| 方角 | 東 |
| 更新料 | 契約形態 | 普通賃貸借契約 | |
| 取引態様 | 媒介 | 内見状況 | 入居中 |
| 入居時期 | 入居中 | SOHO・事務所 | |
| ペット | 間取り内訳 | DK7.7畳 / 洋室6畳 | |
| キャンペーン情報・備考 | 本情報は賃料改定交渉の資料作成、収益物件の利回り試算、周辺エリアや最寄り駅の坪単価分析、次回募集開始時期の予測などにご活用いただけます。 | ||
※「どの不動産に頼めばいいのか分からない」「信頼できる営業マンの話を聞きたい」「一番親切な会社と契約したい」とお悩みの方におすすめなのが「高級賃貸バイブル」です。
高級賃貸バイブルは業界10年以上の熟練スタッフ群がお客様ファーストで対応します。
下記ボタンから、まずは無料でご相談下さい。
※内覧をご希望の際には、どうぞ物件のエントランス前にてお待ち合わせくださいませ。ご内覧後は、同じ場所でお別れとさせていただきます。お客様のご都合に合わせたスムーズなご案内を心がけておりますので、ご質問等がございましたら何なりとお申し付けください。 物件概要
| 物件名 |
| 築年月 |
|
|---|---|---|---|
| 所在地 | |||
| 交通 | |||
| 総戸数 |
| 総階数 |
|
| 構造 |
| ||
地図
物件までの道のりは、「拡大地図を表示」をクリックしてナビ機能をご利用ください。
部屋設備














建物設備

TVモニターホン

エレベーター

オートロック

宅配ボックス

敷地内ゴミ置場

駐車場平置き

駐輪場
ライオンズマンション白金台の現在募集中のお部屋
- No rooms found for this property.






















