
| 賃料 | 予想金額:470,000〜490,000円程度 | 管理費 | 予想金額:0〜2,000円程度 |
| 礼金/敷金 | 非公開(アーカイブ) | 平米数 | 92.92㎡ |
| 初期費用概算(参考) | 目安:2,201,500〜2,301,500 円 | みなし賃料(月額・参考) | 506,906〜526,906 円 |
| 備考 | 本ページは過去募集のアーカイブです。表示の金額は周辺相場・過去募集を踏まえた参考レンジであり、実際の契約金額・条件ではありません。 | ||
※上記みなし賃料(月額)は仲介手数料割引・無料&キャッシュバックを加味した高級賃貸バイブル限定の金額です。一般的なみなし賃料とは異なります。
【建物ページ】パークコート赤坂ザ・タワーの詳細・最新空室はこちら▶▶選ばれる理由
仲介手数料無料・キャンペーン情報(毎月15名様限定)
〇仲介手数料割引キャンペーン
パークコート赤坂ザ・タワー 33階 92.92㎡の口コミ・レビュー
パークコート赤坂ザ・タワー 33階 92.92㎡。この高級賃貸物件があなたの人生に新たな章をもたらす瞬間を想像してみてください。まるで映画のエッセンスを凝縮したかのような空間の中で、心躍る日常が待っています。
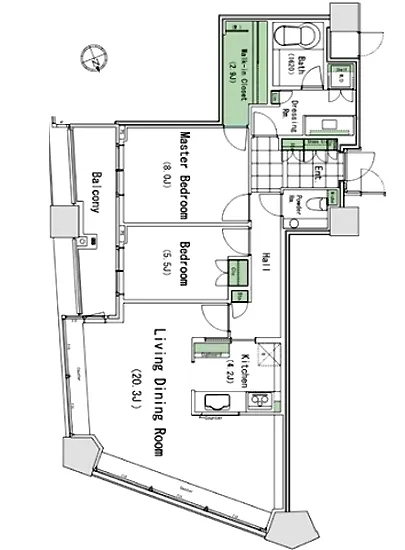
扉を開けると、優雅なLDK24.6帖が迎えてくれます。広々としたこのスペースは、未だ私たちが触れたことのない時間の流れを感じさせ、日常生活を特別なものへと昇華させるのです。光が優しく差し込…パークコート赤坂ザ・タワー 33階 92.92㎡。この高級賃貸物件があなたの人生に新たな章をもたらす瞬間を想像してみてください。まるで映画のエッセンスを凝縮したかのような空間の中で、心躍る日常が待っています。
扉を開けると、優雅なLDK24.6帖が迎えてくれます。広々としたこのスペースは、未だ私たちが触れたことのない時間の流れを感じさせ、日常生活を特別なものへと昇華させるのです。光が優しく差し込み、南東の窓からは、朝の柔らかな光と共に日々の新たな始まりを告げてくれることでしょう。撫でるような光が、あなたの心に安らぎをもたらし、毎朝がまるで優雅なカフェでのひとときのように感じられるでしょう。
キッチンは、まるでシェフが待機する舞台のように整えられ、4.2帖のクッキングスペースが心を躍らせます。新鮮な食材の香りが漂い、自らの手で創り出す料理が、家族や友人との特別な時間をより一層豊かにしてくれることでしょう。食卓には笑い声が響き、舌の上でとろける美味が心をつなぐのです。
そして、洋室5.5帖、洋室8帖は、それぞれの物語を静かに内包しています。ここはあなたの夢を育む場所。やわらかな布団に身を沈めれば、一日の疲れがすっと解けて、穏やかな夢の世界へ導かれることでしょう。目を閉じれば、心の中に鮮やかな花が咲き、無限の可能性が広がります。
パークコート赤坂ザ・タワーは、ただの住まいではありません。24時間管理の安心、エレガントに整ったフロントサービス、ゲストルームやラウンジを備えたこの場所は、贅沢な暮らしを象徴しています。エレベーターで33階に向かう途中、心躍る期待感が胸を高鳴らせることでしょう。毎日を特別にするための全てが、このタワーの中に凝縮されているのです。
周囲には赤坂の歴史と文化が息づき、落ち着いた街並みは、まるで絵画のように美しく、アートの香りが漂っています。芸術的な感性が育まれたこの地に住むことは、単なる生活を超えて、心の豊かさを与えてくれるでしょう。時には、街の端っこにひっそりと佇むギャラリーを訪ね、心を震わせる作品に出会う。そんな日々が、あなたの生活を彩り、心に残る宝物となるのです。
パークコート赤坂ザ・タワー 33階 92.92㎡は、ただの住まいではなく、あなたの人生を映し出すキャンバスです。ここに住むことは、心の豊かさを手に入れること、日常に芸術と遊び心を取り入れることなのです。この特別な空間で、あなた自身の物語を紡いでみませんか。
扉を開けると、優雅なLDK24.6帖が迎えてくれます。広々としたこのスペースは、未だ私たちが触れたことのない時間の流れを感じさせ、日常生活を特別なものへと昇華させるのです。光が優しく差し込…パークコート赤坂ザ・タワー 33階 92.92㎡。この高級賃貸物件があなたの人生に新たな章をもたらす瞬間を想像してみてください。まるで映画のエッセンスを凝縮したかのような空間の中で、心躍る日常が待っています。
扉を開けると、優雅なLDK24.6帖が迎えてくれます。広々としたこのスペースは、未だ私たちが触れたことのない時間の流れを感じさせ、日常生活を特別なものへと昇華させるのです。光が優しく差し込み、南東の窓からは、朝の柔らかな光と共に日々の新たな始まりを告げてくれることでしょう。撫でるような光が、あなたの心に安らぎをもたらし、毎朝がまるで優雅なカフェでのひとときのように感じられるでしょう。
キッチンは、まるでシェフが待機する舞台のように整えられ、4.2帖のクッキングスペースが心を躍らせます。新鮮な食材の香りが漂い、自らの手で創り出す料理が、家族や友人との特別な時間をより一層豊かにしてくれることでしょう。食卓には笑い声が響き、舌の上でとろける美味が心をつなぐのです。
そして、洋室5.5帖、洋室8帖は、それぞれの物語を静かに内包しています。ここはあなたの夢を育む場所。やわらかな布団に身を沈めれば、一日の疲れがすっと解けて、穏やかな夢の世界へ導かれることでしょう。目を閉じれば、心の中に鮮やかな花が咲き、無限の可能性が広がります。
パークコート赤坂ザ・タワーは、ただの住まいではありません。24時間管理の安心、エレガントに整ったフロントサービス、ゲストルームやラウンジを備えたこの場所は、贅沢な暮らしを象徴しています。エレベーターで33階に向かう途中、心躍る期待感が胸を高鳴らせることでしょう。毎日を特別にするための全てが、このタワーの中に凝縮されているのです。
周囲には赤坂の歴史と文化が息づき、落ち着いた街並みは、まるで絵画のように美しく、アートの香りが漂っています。芸術的な感性が育まれたこの地に住むことは、単なる生活を超えて、心の豊かさを与えてくれるでしょう。時には、街の端っこにひっそりと佇むギャラリーを訪ね、心を震わせる作品に出会う。そんな日々が、あなたの生活を彩り、心に残る宝物となるのです。
パークコート赤坂ザ・タワー 33階 92.92㎡は、ただの住まいではなく、あなたの人生を映し出すキャンバスです。ここに住むことは、心の豊かさを手に入れること、日常に芸術と遊び心を取り入れることなのです。この特別な空間で、あなた自身の物語を紡いでみませんか。
バイブルスコア
バイブルスコア: 46
条件のいい物件です、引っ越しが2か月以内の場合は仮申し込みを検討すべき物件です。
※バイブルスコア詳細はこちら
バイブルスコアとは独自のAI機械学習技術を利用した物件評価システムで、物件のおすすめ度を示します。最高得点は100点で、スコアが高いほど、よりおすすめの物件と評価されています。
写真
契約条件
| 賃料 | 予想金額:470,000〜490,000円程度 | 管理費 | 予想金額:0〜2,000円程度 |
| 礼金 | 非公開(アーカイブ) | 敷金 | 非公開(アーカイブ) |
| フリーレント | なし | 平米数 | 92.92㎡ |
| 間取り | 2LDK | 大型収納 | WIC |
| 契約期間 | 方角 | 南東 | |
| 更新料 | 契約形態 | 定期借家契約 | |
| 取引態様 | 媒介 | 内見状況 | 入居中 |
| 入居時期 | 入居中 | SOHO・事務所 | |
| ペット | 間取り内訳 | LDK24.6(K=4.2 / LD=20.3) / 洋5.5 / 洋8 | |
| キャンペーン情報・備考 | 本情報は賃料改定交渉の資料作成、収益物件の利回り試算、周辺エリアや最寄り駅の坪単価分析、次回募集開始時期の予測などにご活用いただけます。 | ||
※「どの不動産に頼めばいいのか分からない」「信頼できる営業マンの話を聞きたい」「一番親切な会社と契約したい」とお悩みの方におすすめなのが「高級賃貸バイブル」です。
高級賃貸バイブルは業界10年以上の熟練スタッフ群がお客様ファーストで対応します。
下記ボタンから、まずは無料でご相談下さい。
※内覧をご希望の際には、どうぞ物件のエントランス前にてお待ち合わせくださいませ。ご内覧後は、同じ場所でお別れとさせていただきます。お客様のご都合に合わせたスムーズなご案内を心がけておりますので、ご質問等がございましたら何なりとお申し付けください。 物件概要
| 物件名 |
| 築年月 |
|
|---|---|---|---|
| 所在地 | |||
| 交通 | |||
| 総戸数 |
| 総階数 |
|
| 構造 |
| ||
地図
物件までの道のりは、「拡大地図を表示」をクリックしてナビ機能をご利用ください。
部屋設備



















建物設備

24時間管理

TVモニターホン

エレベーター

オートロック

ゲストルーム

バイク置場

フロントサービス

ラウンジ

宅配ボックス

敷地内ゴミ置場

管理人

駐車場平置き

駐車場機械式

駐輪場
パークコート赤坂ザ・タワーの現在募集中のお部屋
- パークコート赤坂ザ・タワー 35階 81.64㎡ - 間取り: 2LDK+WIC - 賃料: 65万円
- パークコート赤坂ザ・タワー 22階 92.92㎡ - 間取り: 2LDK+WIC - 賃料: 70万円
- パークコート赤坂ザ・タワー 7階 68.61㎡ - 間取り: 2LDK+WIC+SIC - 賃料: 52.9万円
- パークコート赤坂ザ・タワー 6階 125.79㎡ - 間取り: 3LDK+WIC+SIC - 賃料: 260万円






























