
| 賃料 | 予想金額:420,000〜440,000円程度 | 管理費 | 予想金額:0〜2,000円程度 |
| 礼金/敷金 | 非公開(アーカイブ) | 平米数 | 67.7㎡ |
| 初期費用概算(参考) | 目安:1,579,500〜1,679,500 円 | みなし賃料(月額・参考) | 444,990〜464,990 円 |
| 備考 | 本ページは過去募集のアーカイブです。表示の金額は周辺相場・過去募集を踏まえた参考レンジであり、実際の契約金額・条件ではありません。 | ||
※上記みなし賃料(月額)は仲介手数料割引・無料&キャッシュバックを加味した高級賃貸バイブル限定の金額です。一般的なみなし賃料とは異なります。
【建物ページ】JP noie 恵比寿西の詳細・最新空室はこちら▶▶選ばれる理由
仲介手数料無料・キャンペーン情報(毎月15名様限定)
〇仲介手数料割引キャンペーン
JP noie 恵比寿西 401の口コミ・レビュー
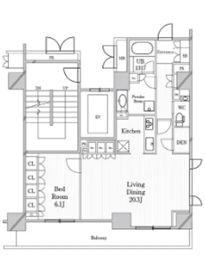
JP noie 恵比寿西 401。この美しい名前を持つ住まいは、まるで貴族の館が現代に蘇ったかのような存在感を放っています。東京の喧騒から少し離れた恵比寿西の街に位置し、その品格は一目見ただけで感じることができるでしょう。401という数字は、まるで特別な階にあなたを招待するかのように響き、67.7㎡の広さは、あなたの未来の物語が展開される舞台です。
このお部屋を開けると、そこに広がるのは20.3…JP noie 恵比寿西 401。この美しい名前を持つ住まいは、まるで貴族の館が現代に蘇ったかのような存在感を放っています。東京の喧騒から少し離れた恵比寿西の街に位置し、その品格は一目見ただけで感じることができるでしょう。401という数字は、まるで特別な階にあなたを招待するかのように響き、67.7㎡の広さは、あなたの未来の物語が展開される舞台です。
このお部屋を開けると、そこに広がるのは20.3帖のLDK。光が優雅に舞い込み、心地よい風が窓を通り抜ける瞬間に、まるで映画のワンシーンに紛れ込んだかのような気持ちになります。空間は、豊かな時間が流れるオアシスのようで、心が安らぐ瞬間に包まれます。日々の疲れを忘れさせる、あなた自身のリトリートがここにはあるのです。
このLDKは、訪れる人々に温もりを与え、友人たちとの歓談の場となり、そして大切な家族との団らんのひとときを演出します。柔らかい色調の壁と、上質なフローリングが優雅さを引き立て、まるで心地よい絨毯の上で優雅に舞い踊るような体験をもたらしてくれます。そして、キッチンから漂う香ばしい料理の香りは、目を閉じるだけで五感を刺激し、幸福感に包まれます。料理をしながら、ふと目に入る窓の外の景色。代官山駅からのアクセスも徒歩3分と、とても便利な立地でありながら、周囲には静かな住宅地が広がり、まるで休日を迎えるためのパラダイスのようです。
さらに、6.1帖の洋室は、あなた自身のプライベート空間として、特別な安らぎを提供します。深い眠りにつくためのベッドや、心を落ち着ける読書のための椅子を配置することで、まるで自分だけの隠れ家を手に入れたような感覚を味わえます。そこで感じる柔らかな布団の温もりや、静けさがもたらすリラックス感は、日々のストレスを忘れさせてくれるのです。
JP noie 恵比寿西 401は、他の賃貸物件とは一線を画する高級な設備も整っています。オートロックや宅配ボックスがあることで、セキュリティ面でも安心して暮らすことができ、あなたの大切な生活をしっかり守ってくれます。また、駐輪場やバイク置場も完備されており、アクティブなライフスタイルをサポートします。
恵比寿西の歴史ある街並みや、人々の温かさを感じながら、あなたの新たな生活が始まる場所。それは、ただの住宅ではなく、情熱と夢が息づく場です。JP noie 恵比寿西 401に住むことで、あなたは日々の生活を映画のように彩り豊かにすることができるでしょう。この空間で、どうぞあなた自身のストーリーを紡いでください。
このお部屋を開けると、そこに広がるのは20.3…JP noie 恵比寿西 401。この美しい名前を持つ住まいは、まるで貴族の館が現代に蘇ったかのような存在感を放っています。東京の喧騒から少し離れた恵比寿西の街に位置し、その品格は一目見ただけで感じることができるでしょう。401という数字は、まるで特別な階にあなたを招待するかのように響き、67.7㎡の広さは、あなたの未来の物語が展開される舞台です。
このお部屋を開けると、そこに広がるのは20.3帖のLDK。光が優雅に舞い込み、心地よい風が窓を通り抜ける瞬間に、まるで映画のワンシーンに紛れ込んだかのような気持ちになります。空間は、豊かな時間が流れるオアシスのようで、心が安らぐ瞬間に包まれます。日々の疲れを忘れさせる、あなた自身のリトリートがここにはあるのです。
このLDKは、訪れる人々に温もりを与え、友人たちとの歓談の場となり、そして大切な家族との団らんのひとときを演出します。柔らかい色調の壁と、上質なフローリングが優雅さを引き立て、まるで心地よい絨毯の上で優雅に舞い踊るような体験をもたらしてくれます。そして、キッチンから漂う香ばしい料理の香りは、目を閉じるだけで五感を刺激し、幸福感に包まれます。料理をしながら、ふと目に入る窓の外の景色。代官山駅からのアクセスも徒歩3分と、とても便利な立地でありながら、周囲には静かな住宅地が広がり、まるで休日を迎えるためのパラダイスのようです。
さらに、6.1帖の洋室は、あなた自身のプライベート空間として、特別な安らぎを提供します。深い眠りにつくためのベッドや、心を落ち着ける読書のための椅子を配置することで、まるで自分だけの隠れ家を手に入れたような感覚を味わえます。そこで感じる柔らかな布団の温もりや、静けさがもたらすリラックス感は、日々のストレスを忘れさせてくれるのです。
JP noie 恵比寿西 401は、他の賃貸物件とは一線を画する高級な設備も整っています。オートロックや宅配ボックスがあることで、セキュリティ面でも安心して暮らすことができ、あなたの大切な生活をしっかり守ってくれます。また、駐輪場やバイク置場も完備されており、アクティブなライフスタイルをサポートします。
恵比寿西の歴史ある街並みや、人々の温かさを感じながら、あなたの新たな生活が始まる場所。それは、ただの住宅ではなく、情熱と夢が息づく場です。JP noie 恵比寿西 401に住むことで、あなたは日々の生活を映画のように彩り豊かにすることができるでしょう。この空間で、どうぞあなた自身のストーリーを紡いでください。
バイブルスコア
バイブルスコア: 40.9
条件のいい物件です、引っ越しが2か月以内の場合は仮申し込みを検討すべき物件です。
※バイブルスコア詳細はこちら
バイブルスコアとは独自のAI機械学習技術を利用した物件評価システムで、物件のおすすめ度を示します。最高得点は100点で、スコアが高いほど、よりおすすめの物件と評価されています。
写真
現在写真が登録されていません契約条件
| 賃料 | 予想金額:420,000〜440,000円程度 | 管理費 | 予想金額:0〜2,000円程度 |
| 礼金 | 非公開(アーカイブ) | 敷金 | 非公開(アーカイブ) |
| フリーレント | なし | 平米数 | 67.7㎡ |
| 間取り | 1LDK | 大型収納 | DEN |
| 契約期間 | 2年 | 方角 | |
| 更新料 | 1ヶ月 | 契約形態 | 普通賃貸借契約 |
| 取引態様 | 媒介 | 内見状況 | 入居中 |
| 入居時期 | 入居中 | SOHO・事務所 | 不可 |
| ペット | 不可 | 間取り内訳 | 洋:6.1 LDK:20.3 |
| キャンペーン情報・備考 | 本情報は賃料改定交渉の資料作成、収益物件の利回り試算、周辺エリアや最寄り駅の坪単価分析、次回募集開始時期の予測などにご活用いただけます。 | ||
※「どの不動産に頼めばいいのか分からない」「信頼できる営業マンの話を聞きたい」「一番親切な会社と契約したい」とお悩みの方におすすめなのが「高級賃貸バイブル」です。
高級賃貸バイブルは業界10年以上の熟練スタッフ群がお客様ファーストで対応します。
下記ボタンから、まずは無料でご相談下さい。
※内覧をご希望の際には、どうぞ物件のエントランス前にてお待ち合わせくださいませ。ご内覧後は、同じ場所でお別れとさせていただきます。お客様のご都合に合わせたスムーズなご案内を心がけておりますので、ご質問等がございましたら何なりとお申し付けください。 物件概要
| 物件名 |
| 築年月 |
|
|---|---|---|---|
| 所在地 | |||
| 交通 | |||
| 総戸数 |
| 総階数 |
|
| 構造 |
| ||
地図
物件までの道のりは、「拡大地図を表示」をクリックしてナビ機能をご利用ください。
部屋設備












建物設備

TVモニターホン

エレベーター

オートロック

バイク置場

宅配ボックス

敷地内ゴミ置場

管理人

駐輪場
JP noie 恵比寿西の現在募集中のお部屋
- JP noie 恵比寿西 301 - 間取り: 1LDK - 賃料: 45万円
- JP noie 恵比寿西 502 - 間取り: 1LDK+WIC+SIC - 賃料: 47万円
