
| 賃料 | 予想金額:265,000〜285,000円程度 | 管理費 | 予想金額:8,000〜12,000円程度 |
| 礼金/敷金 | 非公開(アーカイブ) | 平米数 | 106.29㎡ |
| 初期費用概算(参考) | 目安:744,000〜844,000 円 | みなし賃料(月額・参考) | 285,813〜305,813 円 |
| 備考 | 本ページは過去募集のアーカイブです。表示の金額は周辺相場・過去募集を踏まえた参考レンジであり、実際の契約金額・条件ではありません。 | ||
※上記みなし賃料(月額)は仲介手数料割引・無料&キャッシュバックを加味した高級賃貸バイブル限定の金額です。一般的なみなし賃料とは異なります。
【建物ページ】リバージュ品川の詳細・最新空室はこちら▶▶選ばれる理由
仲介手数料無料・キャンペーン情報(毎月15名様限定)
〇仲介手数料割引キャンペーン
リバージュ品川 704の口コミ・レビュー
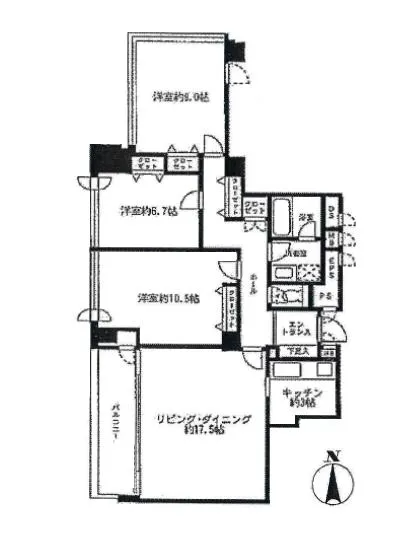
リバージュ品川 704。あなたがこの特別な空間に一歩足を踏み入れるとき、まるで静かな物語が始まるかのような気持ちが湧き上がります。この3LDKの住まいは、106.29㎡の広がりを持ち、穏やかな西の光が部屋を優しく包み込みます。品川駅からわずか6分の距離に位置しながらも、その喧騒を忘れさせるような静けさと落ち着きを備えています。
リバージュ品川 704は、あなたを家として迎え入れ、温かい抱擁をやさ…リバージュ品川 704。あなたがこの特別な空間に一歩足を踏み入れるとき、まるで静かな物語が始まるかのような気持ちが湧き上がります。この3LDKの住まいは、106.29㎡の広がりを持ち、穏やかな西の光が部屋を優しく包み込みます。品川駅からわずか6分の距離に位置しながらも、その喧騒を忘れさせるような静けさと落ち着きを備えています。
リバージュ品川 704は、あなたを家として迎え入れ、温かい抱擁をやさしく施します。LD17.5帖の広々としたリビングルームは、家族の幸せな会話や友人との楽しい夕べを彩ります。ここで、やわらかな光の中、心地よい音楽を流しながら、家族と共に未来を語り、笑い声が響く様子が目に浮かびます。愛しき人たちの幸せな顔を見ながら、心の底からの満足を感じることでしょう。
洋室9.0帖、洋室10.5帖、洋室6.7帖、それぞれの部屋がもたらす独自の魅力に心が躍ります。ゆったりとした 個室は、プライベートな空間として心を安らげます。寝室での朝日を浴びながら目覚めれば、新しい一日の始まりが、まるで新作映画のオープニングシーンのように感じられます。窓から見える景色は、日々のストーリーを語りかけるように、変化し続ける都会の風景です。
キッチン3.0帖の空間は、美味しい料理を創り出すための舞台です。新鮮な食材の香りが漂い、熱を帯びた鍋から立ち上る湯気が、家族の食卓を囲む幸福な瞬間を引き寄せます。ここには、素材の味を引き出す料理の魔法が宿っているようです。
リバージュ品川 704の設備は、ただの機能ではなく、生活をより豊かにするための細やかな配慮が凝縮されています。TVモニターホンやオートロック、宅配ボックスは、日常の安心感をもたらし、エレベーターでの移動も快適です。駐車場や駐輪場も完備され、あなたのライフスタイルに寄り添います。
周囲を見渡せば、文化と歴史が息づくこの港区。おしゃれなカフェやアートギャラリーが点在し、あなたの生活をより彩ることでしょう。ここでは、時代の流れに感謝しながら、日常が非日常に変わる瞬間を楽しむことができます。
リバージュ品川 704は、ただの住居ではなく、人生の金色の瞬間をキャッチするための特別な舞台です。あなたの物語をここから始め、共に紡いでいきましょう。ここに住むことで、毎日が映画のワンシーンのように感じられることでしょう。新しい生活の幕が上がるその日を、心から楽しみにしています。
リバージュ品川 704は、あなたを家として迎え入れ、温かい抱擁をやさ…リバージュ品川 704。あなたがこの特別な空間に一歩足を踏み入れるとき、まるで静かな物語が始まるかのような気持ちが湧き上がります。この3LDKの住まいは、106.29㎡の広がりを持ち、穏やかな西の光が部屋を優しく包み込みます。品川駅からわずか6分の距離に位置しながらも、その喧騒を忘れさせるような静けさと落ち着きを備えています。
リバージュ品川 704は、あなたを家として迎え入れ、温かい抱擁をやさしく施します。LD17.5帖の広々としたリビングルームは、家族の幸せな会話や友人との楽しい夕べを彩ります。ここで、やわらかな光の中、心地よい音楽を流しながら、家族と共に未来を語り、笑い声が響く様子が目に浮かびます。愛しき人たちの幸せな顔を見ながら、心の底からの満足を感じることでしょう。
洋室9.0帖、洋室10.5帖、洋室6.7帖、それぞれの部屋がもたらす独自の魅力に心が躍ります。ゆったりとした 個室は、プライベートな空間として心を安らげます。寝室での朝日を浴びながら目覚めれば、新しい一日の始まりが、まるで新作映画のオープニングシーンのように感じられます。窓から見える景色は、日々のストーリーを語りかけるように、変化し続ける都会の風景です。
キッチン3.0帖の空間は、美味しい料理を創り出すための舞台です。新鮮な食材の香りが漂い、熱を帯びた鍋から立ち上る湯気が、家族の食卓を囲む幸福な瞬間を引き寄せます。ここには、素材の味を引き出す料理の魔法が宿っているようです。
リバージュ品川 704の設備は、ただの機能ではなく、生活をより豊かにするための細やかな配慮が凝縮されています。TVモニターホンやオートロック、宅配ボックスは、日常の安心感をもたらし、エレベーターでの移動も快適です。駐車場や駐輪場も完備され、あなたのライフスタイルに寄り添います。
周囲を見渡せば、文化と歴史が息づくこの港区。おしゃれなカフェやアートギャラリーが点在し、あなたの生活をより彩ることでしょう。ここでは、時代の流れに感謝しながら、日常が非日常に変わる瞬間を楽しむことができます。
リバージュ品川 704は、ただの住居ではなく、人生の金色の瞬間をキャッチするための特別な舞台です。あなたの物語をここから始め、共に紡いでいきましょう。ここに住むことで、毎日が映画のワンシーンのように感じられることでしょう。新しい生活の幕が上がるその日を、心から楽しみにしています。
バイブルスコア
バイブルスコア: 48
条件のいい物件です、引っ越しが2か月以内の場合は仮申し込みを検討すべき物件です。
※バイブルスコア詳細はこちら
バイブルスコアとは独自のAI機械学習技術を利用した物件評価システムで、物件のおすすめ度を示します。最高得点は100点で、スコアが高いほど、よりおすすめの物件と評価されています。
写真
契約条件
| 賃料 | 予想金額:265,000〜285,000円程度 | 管理費 | 予想金額:8,000〜12,000円程度 |
| 礼金 | 非公開(アーカイブ) | 敷金 | 非公開(アーカイブ) |
| フリーレント | なし | 平米数 | 106.29㎡ |
| 間取り | 3LDK | 大型収納 | |
| 契約期間 |
| 方角 | 西 |
| 更新料 | 契約形態 | 普通賃貸借契約 | |
| 取引態様 | 媒介 | 内見状況 | 入居中 |
| 入居時期 | 入居中 | SOHO・事務所 | 事務所(SOHO)可 |
| ペット | 間取り内訳 | 洋室9.0 洋室6.7 洋室10.5 LD17.5 K3.0 | |
| キャンペーン情報・備考 | 本情報は賃料改定交渉の資料作成、収益物件の利回り試算、周辺エリアや最寄り駅の坪単価分析、次回募集開始時期の予測などにご活用いただけます。 | ||
※「どの不動産に頼めばいいのか分からない」「信頼できる営業マンの話を聞きたい」「一番親切な会社と契約したい」とお悩みの方におすすめなのが「高級賃貸バイブル」です。
高級賃貸バイブルは業界10年以上の熟練スタッフ群がお客様ファーストで対応します。
下記ボタンから、まずは無料でご相談下さい。
※内覧をご希望の際には、どうぞ物件のエントランス前にてお待ち合わせくださいませ。ご内覧後は、同じ場所でお別れとさせていただきます。お客様のご都合に合わせたスムーズなご案内を心がけておりますので、ご質問等がございましたら何なりとお申し付けください。 物件概要
| 物件名 |
| 築年月 |
|
|---|---|---|---|
| 所在地 | |||
| 交通 | |||
| 総戸数 |
| 総階数 |
|
| 構造 |
| ||
地図
物件までの道のりは、「拡大地図を表示」をクリックしてナビ機能をご利用ください。
部屋設備














建物設備

TVモニターホン

エレベーター

オートロック

宅配ボックス

敷地内ゴミ置場

駐車場機械式

駐輪場
リバージュ品川の現在募集中のお部屋
- No rooms found for this property.


















