
| 賃料 | 予想金額:72,000〜92,000円程度 | 管理費 | 予想金額:10,000〜14,000円程度 |
| 礼金/敷金 | 非公開(アーカイブ) | 平米数 | 22.65㎡ |
| 初期費用概算(参考) | 目安:182,500〜282,500 円 | みなし賃料(月額・参考) | 87,135〜107,135 円 |
| 備考 | 本ページは過去募集のアーカイブです。表示の金額は周辺相場・過去募集を踏まえた参考レンジであり、実際の契約金額・条件ではありません。 | ||
※上記みなし賃料(月額)は仲介手数料割引・無料&キャッシュバックを加味した高級賃貸バイブル限定の金額です。一般的なみなし賃料とは異なります。
【建物ページ】シーフォレシティ芝浦の詳細・最新空室はこちら▶▶選ばれる理由
仲介手数料無料・キャンペーン情報(毎月15名様限定)
〇仲介手数料割引キャンペーン
シーフォレシティ芝浦 1204の口コミ・レビュー
シーフォレシティ芝浦 1204、ここはただの物件ではありません。605の素晴らしい海の息吹を感じながら、貴方を待ち望む空間がここに広がっています。エレベーターで軽やかに12階に昇ると、目の前には東京湾の贅沢な眺望が広がり、朝の光が貴方を優しく包み込みます。その日の始まりは、海から昇る太陽が、金色の光を射し込むことで、まるで映画の一シーンのように貴方の心を高鳴らせるのです。
シーフォレシティ芝浦 …シーフォレシティ芝浦 1204、ここはただの物件ではありません。605の素晴らしい海の息吹を感じながら、貴方を待ち望む空間がここに広がっています。エレベーターで軽やかに12階に昇ると、目の前には東京湾の贅沢な眺望が広がり、朝の光が貴方を優しく包み込みます。その日の始まりは、海から昇る太陽が、金色の光を射し込むことで、まるで映画の一シーンのように貴方の心を高鳴らせるのです。
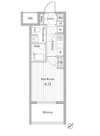
シーフォレシティ芝浦 1204は、自由な生活を求める若者やクリエイターのためのインスピレーションに満ちた場所です。22.65㎡というコンパクトな設計ながらも、1Kの間取りは、洋室6.2帖の空間を最大限に活かし、貴方の想像力を膨らませます。この空間には、洗練されたデザイナーズのエッセンスが息づき、どこか温もりを感じる落ち着いた雰囲気があります。素朴な素材と現代的なデザインが融合し、まるでアートのギャラリーにいるかのようです。
足元から伝わるフローリングの温かさと、柔らかな日差しが差し込む窓辺で、朝食の香ばしいトーストが焼ける音が心地よく響き渡ります。心地よい風が時折、窓を優しく叩き、そこに漂う海の香りが食欲をそそります。貴方は、贅沢なひとときに身を委ねながら、朝の支度を進めるのです。
シーフォレシティ芝浦 1204には、宅配ボックスや駐車場機械式、駐輪場も完備されており、生活の利便性も申し分ありません。忙しい日常の中でも、シンプルさと便利さを両立させる設計は、貴方の充実した毎日をサポートします。オートロックとTVモニターホンによるセキュリティも充実し、安心して暮らすことができるのです。
周辺には歴史と文化が息づくエリアが広がり、豊かな芸術の香りを感じながら散策を楽しむことができます。田町駅までの道のりは、都会の喧騒から一歩離れた静かな時間を演出してくれます。近隣には、洗練されたカフェやレストランも点在しており、友人との優雅な食事会や、ひとりでの読書に最適な空間が揃っています。
シーフォレシティ芝浦 1204での生活は、まるで作品のように美しい日常を彩ることができます。この高級賃貸物件は、ただの住まいではなく、貴方自身が主人公となり、日々の物語を紡いでいく舞台なのです。新たな発見や出会いが待つこの場所で、貴方の心が躍る瞬間を、思い存分味わってください。
シーフォレシティ芝浦 …シーフォレシティ芝浦 1204、ここはただの物件ではありません。605の素晴らしい海の息吹を感じながら、貴方を待ち望む空間がここに広がっています。エレベーターで軽やかに12階に昇ると、目の前には東京湾の贅沢な眺望が広がり、朝の光が貴方を優しく包み込みます。その日の始まりは、海から昇る太陽が、金色の光を射し込むことで、まるで映画の一シーンのように貴方の心を高鳴らせるのです。
シーフォレシティ芝浦 1204は、自由な生活を求める若者やクリエイターのためのインスピレーションに満ちた場所です。22.65㎡というコンパクトな設計ながらも、1Kの間取りは、洋室6.2帖の空間を最大限に活かし、貴方の想像力を膨らませます。この空間には、洗練されたデザイナーズのエッセンスが息づき、どこか温もりを感じる落ち着いた雰囲気があります。素朴な素材と現代的なデザインが融合し、まるでアートのギャラリーにいるかのようです。
足元から伝わるフローリングの温かさと、柔らかな日差しが差し込む窓辺で、朝食の香ばしいトーストが焼ける音が心地よく響き渡ります。心地よい風が時折、窓を優しく叩き、そこに漂う海の香りが食欲をそそります。貴方は、贅沢なひとときに身を委ねながら、朝の支度を進めるのです。
シーフォレシティ芝浦 1204には、宅配ボックスや駐車場機械式、駐輪場も完備されており、生活の利便性も申し分ありません。忙しい日常の中でも、シンプルさと便利さを両立させる設計は、貴方の充実した毎日をサポートします。オートロックとTVモニターホンによるセキュリティも充実し、安心して暮らすことができるのです。
周辺には歴史と文化が息づくエリアが広がり、豊かな芸術の香りを感じながら散策を楽しむことができます。田町駅までの道のりは、都会の喧騒から一歩離れた静かな時間を演出してくれます。近隣には、洗練されたカフェやレストランも点在しており、友人との優雅な食事会や、ひとりでの読書に最適な空間が揃っています。
シーフォレシティ芝浦 1204での生活は、まるで作品のように美しい日常を彩ることができます。この高級賃貸物件は、ただの住まいではなく、貴方自身が主人公となり、日々の物語を紡いでいく舞台なのです。新たな発見や出会いが待つこの場所で、貴方の心が躍る瞬間を、思い存分味わってください。
バイブルスコア
バイブルスコア: 44
条件のいい物件です、引っ越しが2か月以内の場合は仮申し込みを検討すべき物件です。
※バイブルスコア詳細はこちら
バイブルスコアとは独自のAI機械学習技術を利用した物件評価システムで、物件のおすすめ度を示します。最高得点は100点で、スコアが高いほど、よりおすすめの物件と評価されています。
写真
契約条件
| 賃料 | 予想金額:72,000〜92,000円程度 | 管理費 | 予想金額:10,000〜14,000円程度 |
| 礼金 | 非公開(アーカイブ) | 敷金 | 非公開(アーカイブ) |
| フリーレント | なし | 平米数 | 22.65㎡ |
| 間取り | 1K | 大型収納 | |
| 契約期間 |
| 方角 | 東 |
| 更新料 | 契約形態 | 普通賃貸借契約 | |
| 取引態様 | 媒介 | 内見状況 | 入居中 |
| 入居時期 | 入居中 | SOHO・事務所 | |
| ペット | ペット可 | 間取り内訳 | 洋室6.2畳 |
| キャンペーン情報・備考 | 本情報は賃料改定交渉の資料作成、収益物件の利回り試算、周辺エリアや最寄り駅の坪単価分析、次回募集開始時期の予測などにご活用いただけます。 | ||
※「どの不動産に頼めばいいのか分からない」「信頼できる営業マンの話を聞きたい」「一番親切な会社と契約したい」とお悩みの方におすすめなのが「高級賃貸バイブル」です。
高級賃貸バイブルは業界10年以上の熟練スタッフ群がお客様ファーストで対応します。
下記ボタンから、まずは無料でご相談下さい。
※内覧をご希望の際には、どうぞ物件のエントランス前にてお待ち合わせくださいませ。ご内覧後は、同じ場所でお別れとさせていただきます。お客様のご都合に合わせたスムーズなご案内を心がけておりますので、ご質問等がございましたら何なりとお申し付けください。 物件概要
| 物件名 |
| 築年月 |
|
|---|---|---|---|
| 所在地 | |||
| 交通 | |||
| 総戸数 |
| 総階数 |
|
| 構造 |
| ||
地図
物件までの道のりは、「拡大地図を表示」をクリックしてナビ機能をご利用ください。
部屋設備














建物設備

TVモニターホン

エレベーター

オートロック

宅配ボックス

敷地内ゴミ置場

駐車場機械式

駐輪場
シーフォレシティ芝浦の現在募集中のお部屋
- No rooms found for this property.









