
| 賃料 | 予想金額:133,000〜153,000円程度 | 管理費 | 予想金額:8,000〜12,000円程度 |
| 礼金/敷金 | 非公開(アーカイブ) | 平米数 | 40.76㎡ |
| 初期費用概算(参考) | 目安:415,250〜515,250 円 | みなし賃料(月額・参考) | 150,203〜170,203 円 |
| 備考 | 本ページは過去募集のアーカイブです。表示の金額は周辺相場・過去募集を踏まえた参考レンジであり、実際の契約金額・条件ではありません。 | ||
※上記みなし賃料(月額)は仲介手数料割引・無料&キャッシュバックを加味した高級賃貸バイブル限定の金額です。一般的なみなし賃料とは異なります。
【建物ページ】シーネクスプレミア浅草橋の詳細・最新空室はこちら▶▶選ばれる理由
仲介手数料無料・キャンペーン情報(毎月15名様限定)
〇仲介手数料割引キャンペーン
シーネクスプレミア浅草橋 201の口コミ・レビュー
シーネクスプレミア浅草橋 201。あなたの新たな生活の舞台が、ここに用意されています。この美しい物件は、東京都台東区蔵前1-2-8に位置し、北西や北東からの自然光が柔らかく差し込む空間を提供します。まるで時間がゆっくりと流れているかのような、優雅で心安らぐ場所です。ここでの生活は、まるで贅沢な映画のワンシーンを切り取ったような、特別な瞬間で満たされることでしょう。
シーネクスプレミア浅草橋 20…シーネクスプレミア浅草橋 201。あなたの新たな生活の舞台が、ここに用意されています。この美しい物件は、東京都台東区蔵前1-2-8に位置し、北西や北東からの自然光が柔らかく差し込む空間を提供します。まるで時間がゆっくりと流れているかのような、優雅で心安らぐ場所です。ここでの生活は、まるで贅沢な映画のワンシーンを切り取ったような、特別な瞬間で満たされることでしょう。
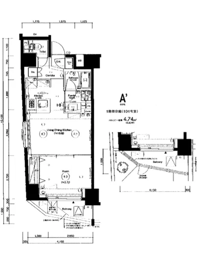
シーネクスプレミア浅草橋 201に足を踏み入れた瞬間、心地よい香りが漂ってきます。それは、洗練されたインテリアと調和した素材から生まれる、温もりある空気です。広々としたLDKは10.6帖のスペースを誇り、まるで特別な舞台のように感じられます。ここでは、あなたの料理の腕が試される瞬間が待ち受けています。食材が切り刻まれる音、香ばしい香りが立ち上る中、家族や友人たちとの会話で心が温まることでしょう。
洋室は5.7帖の落ち着いた空間で、プライベートの心地よさを提供します。ここはあなたの安らぎの場所であり、夜に静かに読書を楽しむも良し、朝日を浴びながらゆったりとした時間を過ごすも良し。窓の外には賑やかな街並みが広がり、日常の喧騒を忘れさせてくれる風景です。
エレベーターで上がる度に、貴族のような気持ちを味わえます。また、オートロックやTVモニターホンといったセキュリティ設備も充実し、安心して暮らすことができる環境が整っています。宅配ボックスも完備されているため、忙しいあなたの生活をサポートします。
シーネクスプレミア浅草橋 201は、まさに歴史と文化に包まれた立地です。徒歩7分の場所には都営地下鉄大江戸線蔵前駅があり、東京のあらゆる魅力を簡単に享受できます。周辺にはアートギャラリーや伝統的な商店街が点在し、心を豊かにする体験が待っています。日本の伝統と現代アートが交錯する街で、あなたの日常は芸術的なインスピレーションに満ちていることでしょう。
この地で新たな物語を始めてみませんか?シーネクスプレミア浅草橋 201があなたを迎え入れ、人生の特別な瞬間を一緒に紡いでいくのです。毎日に新しい感動をともにし、思い出を大切に育てていく。ここは、ただの住居ではなく、あなたの生活を彩る美しい舞台です。さあ、あなたの物語をここから始めましょう。
シーネクスプレミア浅草橋 20…シーネクスプレミア浅草橋 201。あなたの新たな生活の舞台が、ここに用意されています。この美しい物件は、東京都台東区蔵前1-2-8に位置し、北西や北東からの自然光が柔らかく差し込む空間を提供します。まるで時間がゆっくりと流れているかのような、優雅で心安らぐ場所です。ここでの生活は、まるで贅沢な映画のワンシーンを切り取ったような、特別な瞬間で満たされることでしょう。
シーネクスプレミア浅草橋 201に足を踏み入れた瞬間、心地よい香りが漂ってきます。それは、洗練されたインテリアと調和した素材から生まれる、温もりある空気です。広々としたLDKは10.6帖のスペースを誇り、まるで特別な舞台のように感じられます。ここでは、あなたの料理の腕が試される瞬間が待ち受けています。食材が切り刻まれる音、香ばしい香りが立ち上る中、家族や友人たちとの会話で心が温まることでしょう。
洋室は5.7帖の落ち着いた空間で、プライベートの心地よさを提供します。ここはあなたの安らぎの場所であり、夜に静かに読書を楽しむも良し、朝日を浴びながらゆったりとした時間を過ごすも良し。窓の外には賑やかな街並みが広がり、日常の喧騒を忘れさせてくれる風景です。
エレベーターで上がる度に、貴族のような気持ちを味わえます。また、オートロックやTVモニターホンといったセキュリティ設備も充実し、安心して暮らすことができる環境が整っています。宅配ボックスも完備されているため、忙しいあなたの生活をサポートします。
シーネクスプレミア浅草橋 201は、まさに歴史と文化に包まれた立地です。徒歩7分の場所には都営地下鉄大江戸線蔵前駅があり、東京のあらゆる魅力を簡単に享受できます。周辺にはアートギャラリーや伝統的な商店街が点在し、心を豊かにする体験が待っています。日本の伝統と現代アートが交錯する街で、あなたの日常は芸術的なインスピレーションに満ちていることでしょう。
この地で新たな物語を始めてみませんか?シーネクスプレミア浅草橋 201があなたを迎え入れ、人生の特別な瞬間を一緒に紡いでいくのです。毎日に新しい感動をともにし、思い出を大切に育てていく。ここは、ただの住居ではなく、あなたの生活を彩る美しい舞台です。さあ、あなたの物語をここから始めましょう。
バイブルスコア
バイブルスコア: 35.9
平均的なスコアです。
※バイブルスコア詳細はこちら
バイブルスコアとは独自のAI機械学習技術を利用した物件評価システムで、物件のおすすめ度を示します。最高得点は100点で、スコアが高いほど、よりおすすめの物件と評価されています。
写真
契約条件
| 賃料 | 予想金額:133,000〜153,000円程度 | 管理費 | 予想金額:8,000〜12,000円程度 |
| 礼金 | 非公開(アーカイブ) | 敷金 | 非公開(アーカイブ) |
| フリーレント | なし | 平米数 | 40.76㎡ |
| 間取り | 1LDK | 大型収納 | |
| 契約期間 |
| 方角 | 北西 / 北東 |
| 更新料 | 契約形態 | 普通賃貸借契約 | |
| 取引態様 | 媒介 | 内見状況 | 入居中 |
| 入居時期 | 入居中 | SOHO・事務所 | |
| ペット | 間取り内訳 | 洋:5.7 LDK:10.6 | |
| キャンペーン情報・備考 | 本情報は賃料改定交渉の資料作成、収益物件の利回り試算、周辺エリアや最寄り駅の坪単価分析、次回募集開始時期の予測などにご活用いただけます。 | ||
※「どの不動産に頼めばいいのか分からない」「信頼できる営業マンの話を聞きたい」「一番親切な会社と契約したい」とお悩みの方におすすめなのが「高級賃貸バイブル」です。
高級賃貸バイブルは業界10年以上の熟練スタッフ群がお客様ファーストで対応します。
下記ボタンから、まずは無料でご相談下さい。
※内覧をご希望の際には、どうぞ物件のエントランス前にてお待ち合わせくださいませ。ご内覧後は、同じ場所でお別れとさせていただきます。お客様のご都合に合わせたスムーズなご案内を心がけておりますので、ご質問等がございましたら何なりとお申し付けください。 物件概要
| 物件名 |
| 築年月 |
|
|---|---|---|---|
| 所在地 | |||
| 交通 | |||
| 総戸数 |
| 総階数 |
|
| 構造 |
| ||
地図
物件までの道のりは、「拡大地図を表示」をクリックしてナビ機能をご利用ください。
部屋設備












建物設備

TVモニターホン

エレベーター

オートロック

宅配ボックス

敷地内ゴミ置場

管理人

駐輪場
シーネクスプレミア浅草橋の現在募集中のお部屋
- No rooms found for this property.











