
| 賃料 | 予想金額:139,000〜159,000円程度 | 管理費 | 予想金額:8,000〜12,000円程度 |
| 礼金/敷金 | 非公開(アーカイブ) | 平米数 | 40.76㎡ |
| 初期費用概算(参考) | 目安:578,000〜678,000 円 | みなし賃料(月額・参考) | 158,979〜178,979 円 |
| 備考 | 本ページは過去募集のアーカイブです。表示の金額は周辺相場・過去募集を踏まえた参考レンジであり、実際の契約金額・条件ではありません。 | ||
※上記みなし賃料(月額)は仲介手数料割引・無料&キャッシュバックを加味した高級賃貸バイブル限定の金額です。一般的なみなし賃料とは異なります。
【建物ページ】シーネクスプレミア浅草橋の詳細・最新空室はこちら▶▶選ばれる理由
仲介手数料無料・キャンペーン情報(毎月15名様限定)
〇仲介手数料割引キャンペーン
シーネクスプレミア浅草橋 701の口コミ・レビュー
シーネクスプレミア浅草橋 701。ここは、まるで一篇の詩のように、洗練された日常と非日常が交差する場所です。701という数字は、ただの階数ではなく、あなたの新しい生活の舞台の第一幕が始まる場所。青空高くそびえるこの美しい建物は、北西と北東に広がる風景を背に、都市の喧騒から少し離れた静寂を約束します。さあ、ドアを開けましょう。あなたの新たなる日常がここから始まります。
玄関を一歩踏み入れると、まず…シーネクスプレミア浅草橋 701。ここは、まるで一篇の詩のように、洗練された日常と非日常が交差する場所です。701という数字は、ただの階数ではなく、あなたの新しい生活の舞台の第一幕が始まる場所。青空高くそびえるこの美しい建物は、北西と北東に広がる風景を背に、都市の喧騒から少し離れた静寂を約束します。さあ、ドアを開けましょう。あなたの新たなる日常がここから始まります。
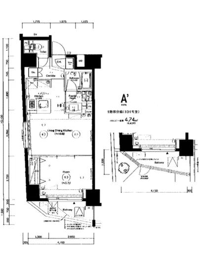
玄関を一歩踏み入れると、まず感じるのは、心地よい光と影が織り成すドラマティックな雰囲気です。専有面積40.76㎡の空間は、広々としたLDK10.6帖と洋室5.7帖の高貴な組み合わせ。あなたの想像力をかき立てるその空間では、温かな日の光が窓から差し込み、オートロックの安全性が心を安らげてくれます。まるで、見えない守護者のように、あなたの日常を見守る存在です。
LDKでゆったりとした時間を過ごせるのは、ただの食事や談笑の場に留まらず、さまざまなストーリーが生まれる場所。特に、料理の香りが心地よく漂い、あなたの五感を刺激します。スパイスの香ばしい香りや、焼き上がるパンの温もり。さらには、家族や友人との楽しいひとときを分かち合う音楽のメロディーが、都会の喧騒を忘れさせてくれるでしょう。
寝室となる洋室は、プライベートの隠れ家としての役割を果たします。静寂に包まれたこの空間で、心を休め、夢の中へと誘われることでしょう。柔らかな布団に身を委ね、外の音が遠くなる瞬間、まるで時が止まったかのように感じることでしょう。雑音のない穏やかな夜は、まるで映画のワンシーンのように美しい。
シーネクスプレミア浅草橋 701は、ただの住まいではありません。都営地下鉄大江戸線 蔵前駅から徒歩7分という立地は、便利さとアクセスの良さの中に、周囲の豊かな歴史と文化を感じることができます。江戸の面影を残す街並みやアートに囲まれた環境は、日々の生活をより豊かに彩ります。
宅配ボックスや管理人サービス、駐輪場まで完備され、生活の利便性も損ないません。これらの設備は、まるで創造的なインスピレーションを与えてくれる隠れた存在。あなたの新しい物語の中で、このシーネクスプレミア浅草橋 701がどのように輝くのか、心躍らせながら想像してください。
この素晴らしい舞台で、あなたの人生の新たな章が始まります。シーネクスプレミア浅草橋 701は、あなたを待っています。さあ、この空間でともに素晴らしい瞬間を創り出していきましょう。あなたの生活が、映画のような美しいストーリーで溢れますように。
玄関を一歩踏み入れると、まず…シーネクスプレミア浅草橋 701。ここは、まるで一篇の詩のように、洗練された日常と非日常が交差する場所です。701という数字は、ただの階数ではなく、あなたの新しい生活の舞台の第一幕が始まる場所。青空高くそびえるこの美しい建物は、北西と北東に広がる風景を背に、都市の喧騒から少し離れた静寂を約束します。さあ、ドアを開けましょう。あなたの新たなる日常がここから始まります。
玄関を一歩踏み入れると、まず感じるのは、心地よい光と影が織り成すドラマティックな雰囲気です。専有面積40.76㎡の空間は、広々としたLDK10.6帖と洋室5.7帖の高貴な組み合わせ。あなたの想像力をかき立てるその空間では、温かな日の光が窓から差し込み、オートロックの安全性が心を安らげてくれます。まるで、見えない守護者のように、あなたの日常を見守る存在です。
LDKでゆったりとした時間を過ごせるのは、ただの食事や談笑の場に留まらず、さまざまなストーリーが生まれる場所。特に、料理の香りが心地よく漂い、あなたの五感を刺激します。スパイスの香ばしい香りや、焼き上がるパンの温もり。さらには、家族や友人との楽しいひとときを分かち合う音楽のメロディーが、都会の喧騒を忘れさせてくれるでしょう。
寝室となる洋室は、プライベートの隠れ家としての役割を果たします。静寂に包まれたこの空間で、心を休め、夢の中へと誘われることでしょう。柔らかな布団に身を委ね、外の音が遠くなる瞬間、まるで時が止まったかのように感じることでしょう。雑音のない穏やかな夜は、まるで映画のワンシーンのように美しい。
シーネクスプレミア浅草橋 701は、ただの住まいではありません。都営地下鉄大江戸線 蔵前駅から徒歩7分という立地は、便利さとアクセスの良さの中に、周囲の豊かな歴史と文化を感じることができます。江戸の面影を残す街並みやアートに囲まれた環境は、日々の生活をより豊かに彩ります。
宅配ボックスや管理人サービス、駐輪場まで完備され、生活の利便性も損ないません。これらの設備は、まるで創造的なインスピレーションを与えてくれる隠れた存在。あなたの新しい物語の中で、このシーネクスプレミア浅草橋 701がどのように輝くのか、心躍らせながら想像してください。
この素晴らしい舞台で、あなたの人生の新たな章が始まります。シーネクスプレミア浅草橋 701は、あなたを待っています。さあ、この空間でともに素晴らしい瞬間を創り出していきましょう。あなたの生活が、映画のような美しいストーリーで溢れますように。
バイブルスコア
バイブルスコア: 29.7
平均的なスコアです。
※バイブルスコア詳細はこちら
バイブルスコアとは独自のAI機械学習技術を利用した物件評価システムで、物件のおすすめ度を示します。最高得点は100点で、スコアが高いほど、よりおすすめの物件と評価されています。
写真
契約条件
| 賃料 | 予想金額:139,000〜159,000円程度 | 管理費 | 予想金額:8,000〜12,000円程度 |
| 礼金 | 非公開(アーカイブ) | 敷金 | 非公開(アーカイブ) |
| フリーレント | なし | 平米数 | 40.76㎡ |
| 間取り | 1LDK | 大型収納 | |
| 契約期間 |
| 方角 | 北西 / 北東 |
| 更新料 | 契約形態 | 普通賃貸借契約 | |
| 取引態様 | 媒介 | 内見状況 | 入居中 |
| 入居時期 | 入居中 | SOHO・事務所 | |
| ペット | 間取り内訳 | 洋:5.7 LDK:10.6 | |
| キャンペーン情報・備考 | 本情報は賃料改定交渉の資料作成、収益物件の利回り試算、周辺エリアや最寄り駅の坪単価分析、次回募集開始時期の予測などにご活用いただけます。 | ||
※「どの不動産に頼めばいいのか分からない」「信頼できる営業マンの話を聞きたい」「一番親切な会社と契約したい」とお悩みの方におすすめなのが「高級賃貸バイブル」です。
高級賃貸バイブルは業界10年以上の熟練スタッフ群がお客様ファーストで対応します。
下記ボタンから、まずは無料でご相談下さい。
※内覧をご希望の際には、どうぞ物件のエントランス前にてお待ち合わせくださいませ。ご内覧後は、同じ場所でお別れとさせていただきます。お客様のご都合に合わせたスムーズなご案内を心がけておりますので、ご質問等がございましたら何なりとお申し付けください。 物件概要
| 物件名 |
| 築年月 |
|
|---|---|---|---|
| 所在地 | |||
| 交通 | |||
| 総戸数 |
| 総階数 |
|
| 構造 |
| ||
地図
物件までの道のりは、「拡大地図を表示」をクリックしてナビ機能をご利用ください。
部屋設備












建物設備

TVモニターホン

エレベーター

オートロック

宅配ボックス

敷地内ゴミ置場

管理人

駐輪場
シーネクスプレミア浅草橋の現在募集中のお部屋
- No rooms found for this property.











