
| 賃料 | 予想金額:87,000〜107,000円程度 | 管理費 | 予想金額:6,000〜10,000円程度 |
| 礼金/敷金 | 非公開(アーカイブ) | 平米数 | 25.2㎡ |
| 初期費用概算(参考) | 目安:393,000〜493,000 円 | みなし賃料(月額・参考) | 102,208〜122,208 円 |
| 備考 | 本ページは過去募集のアーカイブです。表示の金額は周辺相場・過去募集を踏まえた参考レンジであり、実際の契約金額・条件ではありません。 | ||
※上記みなし賃料(月額)は仲介手数料割引・無料&キャッシュバックを加味した高級賃貸バイブル限定の金額です。一般的なみなし賃料とは異なります。
【建物ページ】シーネクスプレミア浅草橋の詳細・最新空室はこちら▶▶選ばれる理由
仲介手数料無料・キャンペーン情報(毎月15名様限定)
〇仲介手数料割引キャンペーン
シーネクスプレミア浅草橋 503の口コミ・レビュー
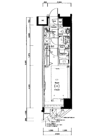
シーネクスプレミア浅草橋 503、それは洗練されたデザインが織りなす、高級賃貸の真髄とも言える空間です。この特別な場所に足を踏み入れた瞬間、心地よい静寂とともに、微かな贅沢の香りが漂い、あなたの感覚を優しく揺さぶるでしょう。広さ25.2㎡のこの1Kは、単なる居住空間ではなく、日常を特別な物語に変える舞台なのです。
北西向きの窓からは、都心の喧騒とは一線を画す、柔らかな光が差し込みます。日々の忙…シーネクスプレミア浅草橋 503、それは洗練されたデザインが織りなす、高級賃貸の真髄とも言える空間です。この特別な場所に足を踏み入れた瞬間、心地よい静寂とともに、微かな贅沢の香りが漂い、あなたの感覚を優しく揺さぶるでしょう。広さ25.2㎡のこの1Kは、単なる居住空間ではなく、日常を特別な物語に変える舞台なのです。
北西向きの窓からは、都心の喧騒とは一線を画す、柔らかな光が差し込みます。日々の忙しさを心の奥に隠し、静かに自分を取り戻すための時間を与えてくれるでしょう。洋室は8.2帖の広さを持ち、あなたの夢や希望が自由に羽ばたくことができる素敵な空間です。ここでは、読書に没頭したり、クリエイティブな活動にいそしんだりする姿が、まるで映画のヒロインのように思い描けます。
シーネクスプレミア浅草橋 503には、TVモニターホンやオートロック、宅配ボックスといった設備が整い、あなたの生活の質を高めます。まるで、しっかりとあなたを守る騎士のように、安心と快適を見守ってくれるのです。そこには、管理人の見守りや敷地内のゴミ置場、さらには駐輪場があり、便利で快適な生活を支えるために設けられた配慮が感じられます。
この物件は、単なる住まいではなく、台東区蔵前の文化と歴史に溶け込む、まさに芸術の一部。周囲には、下町情緒が漂い、伝統的な職人の技が息づく路地が隠れています。蔵前駅から徒歩7分の利便性を持ちながらも、古い街並みと新しい時代が調和した、なんとも魅力的なエリアなのです。お散歩がてら、近隣のアートギャラリーやカフェを巡ることも、心の栄養になることでしょう。毎日の生活が、まるで文化的な旅のように感じられることでしょう。
シーネクスプレミア浅草橋 503での生活は、味覚を刺激する美味しさにあふれた食事や、柔らかな夜風が吹き抜けるバルコニーでのひと時を思い描かせます。お気に入りのワインを片手に、ゆったりとした時間に浸ることができるのです。この場所で、あなたの人生は新たな章を迎え、色とりどりの経験が待ち受けていることでしょう。
シーネクスプレミア浅草橋 503は、単なる賃貸の枠を超え、あなたのライフスタイルを豊かにし、心の奥に深く根付く居場所となることを約束します。この特別な空間で、あなた自身のストーリーを紡いでみませんか。
北西向きの窓からは、都心の喧騒とは一線を画す、柔らかな光が差し込みます。日々の忙…シーネクスプレミア浅草橋 503、それは洗練されたデザインが織りなす、高級賃貸の真髄とも言える空間です。この特別な場所に足を踏み入れた瞬間、心地よい静寂とともに、微かな贅沢の香りが漂い、あなたの感覚を優しく揺さぶるでしょう。広さ25.2㎡のこの1Kは、単なる居住空間ではなく、日常を特別な物語に変える舞台なのです。
北西向きの窓からは、都心の喧騒とは一線を画す、柔らかな光が差し込みます。日々の忙しさを心の奥に隠し、静かに自分を取り戻すための時間を与えてくれるでしょう。洋室は8.2帖の広さを持ち、あなたの夢や希望が自由に羽ばたくことができる素敵な空間です。ここでは、読書に没頭したり、クリエイティブな活動にいそしんだりする姿が、まるで映画のヒロインのように思い描けます。
シーネクスプレミア浅草橋 503には、TVモニターホンやオートロック、宅配ボックスといった設備が整い、あなたの生活の質を高めます。まるで、しっかりとあなたを守る騎士のように、安心と快適を見守ってくれるのです。そこには、管理人の見守りや敷地内のゴミ置場、さらには駐輪場があり、便利で快適な生活を支えるために設けられた配慮が感じられます。
この物件は、単なる住まいではなく、台東区蔵前の文化と歴史に溶け込む、まさに芸術の一部。周囲には、下町情緒が漂い、伝統的な職人の技が息づく路地が隠れています。蔵前駅から徒歩7分の利便性を持ちながらも、古い街並みと新しい時代が調和した、なんとも魅力的なエリアなのです。お散歩がてら、近隣のアートギャラリーやカフェを巡ることも、心の栄養になることでしょう。毎日の生活が、まるで文化的な旅のように感じられることでしょう。
シーネクスプレミア浅草橋 503での生活は、味覚を刺激する美味しさにあふれた食事や、柔らかな夜風が吹き抜けるバルコニーでのひと時を思い描かせます。お気に入りのワインを片手に、ゆったりとした時間に浸ることができるのです。この場所で、あなたの人生は新たな章を迎え、色とりどりの経験が待ち受けていることでしょう。
シーネクスプレミア浅草橋 503は、単なる賃貸の枠を超え、あなたのライフスタイルを豊かにし、心の奥に深く根付く居場所となることを約束します。この特別な空間で、あなた自身のストーリーを紡いでみませんか。
バイブルスコア
バイブルスコア: 26.1
平均的なスコアです。
※バイブルスコア詳細はこちら
バイブルスコアとは独自のAI機械学習技術を利用した物件評価システムで、物件のおすすめ度を示します。最高得点は100点で、スコアが高いほど、よりおすすめの物件と評価されています。
写真
契約条件
| 賃料 | 予想金額:87,000〜107,000円程度 | 管理費 | 予想金額:6,000〜10,000円程度 |
| 礼金 | 非公開(アーカイブ) | 敷金 | 非公開(アーカイブ) |
| フリーレント | なし | 平米数 | 25.2㎡ |
| 間取り | 1K | 大型収納 | |
| 契約期間 |
| 方角 | 北西 |
| 更新料 | 契約形態 | 普通賃貸借契約 | |
| 取引態様 | 媒介 | 内見状況 | 入居中 |
| 入居時期 | 入居中 | SOHO・事務所 | |
| ペット | 間取り内訳 | 洋:8.2 | |
| キャンペーン情報・備考 | 本情報は賃料改定交渉の資料作成、収益物件の利回り試算、周辺エリアや最寄り駅の坪単価分析、次回募集開始時期の予測などにご活用いただけます。 | ||
※「どの不動産に頼めばいいのか分からない」「信頼できる営業マンの話を聞きたい」「一番親切な会社と契約したい」とお悩みの方におすすめなのが「高級賃貸バイブル」です。
高級賃貸バイブルは業界10年以上の熟練スタッフ群がお客様ファーストで対応します。
下記ボタンから、まずは無料でご相談下さい。
※内覧をご希望の際には、どうぞ物件のエントランス前にてお待ち合わせくださいませ。ご内覧後は、同じ場所でお別れとさせていただきます。お客様のご都合に合わせたスムーズなご案内を心がけておりますので、ご質問等がございましたら何なりとお申し付けください。 物件概要
| 物件名 |
| 築年月 |
|
|---|---|---|---|
| 所在地 | |||
| 交通 | |||
| 総戸数 |
| 総階数 |
|
| 構造 |
| ||
地図
物件までの道のりは、「拡大地図を表示」をクリックしてナビ機能をご利用ください。
部屋設備










建物設備

TVモニターホン

エレベーター

オートロック

宅配ボックス

敷地内ゴミ置場

管理人

駐輪場
シーネクスプレミア浅草橋の現在募集中のお部屋
- No rooms found for this property.











