
| 賃料 | 予想金額:86,000〜106,000円程度 | 管理費 | 予想金額:6,000〜10,000円程度 |
| 礼金/敷金 | 非公開(アーカイブ) | 平米数 | 25.2㎡ |
| 初期費用概算(参考) | 目安:389,500〜489,500 円 | みなし賃料(月額・参考) | 101,156〜121,156 円 |
| 備考 | 本ページは過去募集のアーカイブです。表示の金額は周辺相場・過去募集を踏まえた参考レンジであり、実際の契約金額・条件ではありません。 | ||
※上記みなし賃料(月額)は仲介手数料割引・無料&キャッシュバックを加味した高級賃貸バイブル限定の金額です。一般的なみなし賃料とは異なります。
【建物ページ】シーネクスプレミア浅草橋の詳細・最新空室はこちら▶▶選ばれる理由
仲介手数料無料・キャンペーン情報(毎月15名様限定)
〇仲介手数料割引キャンペーン
シーネクスプレミア浅草橋 303の口コミ・レビュー
シーネクスプレミア浅草橋 303。ここはただの住まいではなく、まるであなたの人生の舞台がここに広がっているかのような、特別な空間です。東京都台東区蔵前1-2-8の地で、あなたを待ち受けるこの物件は、北西の方角に位置し、静寂と都心の利便性を兼ね備えた理想的な場所に佇んでいます。
さあ、シーネクスプレミア浅草橋 303の扉を開けてみましょう。足元には美しいフローリングが広がり、あなたの足音が軽やかに…シーネクスプレミア浅草橋 303。ここはただの住まいではなく、まるであなたの人生の舞台がここに広がっているかのような、特別な空間です。東京都台東区蔵前1-2-8の地で、あなたを待ち受けるこの物件は、北西の方角に位置し、静寂と都心の利便性を兼ね備えた理想的な場所に佇んでいます。
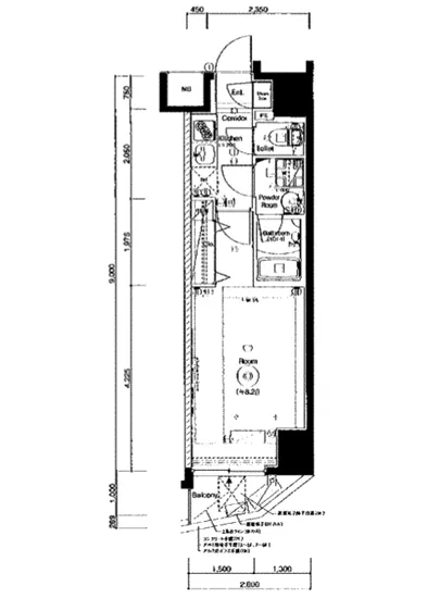
さあ、シーネクスプレミア浅草橋 303の扉を開けてみましょう。足元には美しいフローリングが広がり、あなたの足音が軽やかに響き渡ります。心地よい空気を感じながら、約25.2㎡の専有面積があなたを迎え入れます。ゆったりとした洋室8.2帖は、あなたの大切なひとときを彩る場所となります。ウィンドウから差し込む柔らかな光が、まるで朝の訪れを祝福するかのように、部屋を優しく包み込みます。
そして、シーネクスプレミア浅草橋 303は、生活の中でもっとも大切な瞬間をサポートします。TVモニターホンやオートロックなどの先進的な設備は、安心感をもたらし、あなたの日常をしっかりと支えます。宅配ボックスがあるため、忙しい毎日でも手間いらず。まるで、あなたの生活をしっかりと理解し、寄り添ってくれるパートナーのようです。
ここでの生活は、映画のワンシーンのように、日々の出来事が美しく描かれていきます。夕暮れ時、窓から見える街の灯りがともり、まるで星空が地上に降りてきたかのように幻想的です。あなたの好きな音楽を流しながら、コーヒーの香ばしい香りが漂うキッチンで、特別な料理を作ることができるのです。そんな瞬間、心の奥底から満たされる感覚があなたを包み込みます。
また、周辺には歴史的な文化が息づいています。古くからの下町情緒を感じさせる街並みは、あなたの心を豊かにしてくれることでしょう。シーネクスプレミア浅草橋 303から少し足を延ばせば、隠れたアートスポットや、地元の人々が愛する昔ながらの食堂が見つかります。味覚を刺激する絶品グルメもこうして生まれ、お腹も心も満たされることでしょう。
最後に、この物件は単なる居住空間ではなく、あなたの人生の舞台となる場です。シーネクスプレミア浅草橋 303で、毎日が映画のように素敵な瞬間の連続になることを、心より願っています。あなたの新たな物語が、ここから始まります。
さあ、シーネクスプレミア浅草橋 303の扉を開けてみましょう。足元には美しいフローリングが広がり、あなたの足音が軽やかに…シーネクスプレミア浅草橋 303。ここはただの住まいではなく、まるであなたの人生の舞台がここに広がっているかのような、特別な空間です。東京都台東区蔵前1-2-8の地で、あなたを待ち受けるこの物件は、北西の方角に位置し、静寂と都心の利便性を兼ね備えた理想的な場所に佇んでいます。
さあ、シーネクスプレミア浅草橋 303の扉を開けてみましょう。足元には美しいフローリングが広がり、あなたの足音が軽やかに響き渡ります。心地よい空気を感じながら、約25.2㎡の専有面積があなたを迎え入れます。ゆったりとした洋室8.2帖は、あなたの大切なひとときを彩る場所となります。ウィンドウから差し込む柔らかな光が、まるで朝の訪れを祝福するかのように、部屋を優しく包み込みます。
そして、シーネクスプレミア浅草橋 303は、生活の中でもっとも大切な瞬間をサポートします。TVモニターホンやオートロックなどの先進的な設備は、安心感をもたらし、あなたの日常をしっかりと支えます。宅配ボックスがあるため、忙しい毎日でも手間いらず。まるで、あなたの生活をしっかりと理解し、寄り添ってくれるパートナーのようです。
ここでの生活は、映画のワンシーンのように、日々の出来事が美しく描かれていきます。夕暮れ時、窓から見える街の灯りがともり、まるで星空が地上に降りてきたかのように幻想的です。あなたの好きな音楽を流しながら、コーヒーの香ばしい香りが漂うキッチンで、特別な料理を作ることができるのです。そんな瞬間、心の奥底から満たされる感覚があなたを包み込みます。
また、周辺には歴史的な文化が息づいています。古くからの下町情緒を感じさせる街並みは、あなたの心を豊かにしてくれることでしょう。シーネクスプレミア浅草橋 303から少し足を延ばせば、隠れたアートスポットや、地元の人々が愛する昔ながらの食堂が見つかります。味覚を刺激する絶品グルメもこうして生まれ、お腹も心も満たされることでしょう。
最後に、この物件は単なる居住空間ではなく、あなたの人生の舞台となる場です。シーネクスプレミア浅草橋 303で、毎日が映画のように素敵な瞬間の連続になることを、心より願っています。あなたの新たな物語が、ここから始まります。
バイブルスコア
バイブルスコア: 27.7
平均的なスコアです。
※バイブルスコア詳細はこちら
バイブルスコアとは独自のAI機械学習技術を利用した物件評価システムで、物件のおすすめ度を示します。最高得点は100点で、スコアが高いほど、よりおすすめの物件と評価されています。
写真
契約条件
| 賃料 | 予想金額:86,000〜106,000円程度 | 管理費 | 予想金額:6,000〜10,000円程度 |
| 礼金 | 非公開(アーカイブ) | 敷金 | 非公開(アーカイブ) |
| フリーレント | なし | 平米数 | 25.2㎡ |
| 間取り | 1K | 大型収納 | |
| 契約期間 |
| 方角 | 北西 |
| 更新料 | 契約形態 | 普通賃貸借契約 | |
| 取引態様 | 媒介 | 内見状況 | 入居中 |
| 入居時期 | 入居中 | SOHO・事務所 | |
| ペット | 間取り内訳 | 洋:8.2 | |
| キャンペーン情報・備考 | 本情報は賃料改定交渉の資料作成、収益物件の利回り試算、周辺エリアや最寄り駅の坪単価分析、次回募集開始時期の予測などにご活用いただけます。 | ||
※「どの不動産に頼めばいいのか分からない」「信頼できる営業マンの話を聞きたい」「一番親切な会社と契約したい」とお悩みの方におすすめなのが「高級賃貸バイブル」です。
高級賃貸バイブルは業界10年以上の熟練スタッフ群がお客様ファーストで対応します。
下記ボタンから、まずは無料でご相談下さい。
※内覧をご希望の際には、どうぞ物件のエントランス前にてお待ち合わせくださいませ。ご内覧後は、同じ場所でお別れとさせていただきます。お客様のご都合に合わせたスムーズなご案内を心がけておりますので、ご質問等がございましたら何なりとお申し付けください。 物件概要
| 物件名 |
| 築年月 |
|
|---|---|---|---|
| 所在地 | |||
| 交通 | |||
| 総戸数 |
| 総階数 |
|
| 構造 |
| ||
地図
物件までの道のりは、「拡大地図を表示」をクリックしてナビ機能をご利用ください。
部屋設備










建物設備

TVモニターホン

エレベーター

オートロック

宅配ボックス

敷地内ゴミ置場

管理人

駐輪場
シーネクスプレミア浅草橋の現在募集中のお部屋
- No rooms found for this property.











