
| 賃料 | 予想金額:280,000〜300,000円程度 | 管理費 | 予想金額:8,000〜12,000円程度 |
| 礼金/敷金 | 非公開(アーカイブ) | 平米数 | 50.23㎡ |
| 初期費用概算(参考) | 目安:1,171,000〜1,271,000 円 | みなし賃料(月額・参考) | 309,396〜329,396 円 |
| 備考 | 本ページは過去募集のアーカイブです。表示の金額は周辺相場・過去募集を踏まえた参考レンジであり、実際の契約金額・条件ではありません。 | ||
※上記みなし賃料(月額)は仲介手数料割引・無料&キャッシュバックを加味した高級賃貸バイブル限定の金額です。一般的なみなし賃料とは異なります。
【建物ページ】クオーレ中目黒の詳細・最新空室はこちら▶▶選ばれる理由
仲介手数料無料・キャンペーン情報(毎月15名様限定)
〇引っ越しお祝い金5000円プレゼント(キャッシュバック)
クオーレ中目黒 402の口コミ・レビュー
クオーレ中目黒 402。ここは、まるで時の魔法にかけられたかのような、特別な場所です。東京都目黒区中目黒の静かな通りにひっそりと佇むこの物件は、南向きの窓から柔らかい陽光が溢れ込み、住む人に暖かさと安らぎを与えてくれます。402という番号は、ただの数字ではなく、あなたの新しい人生のスタート地点を象徴しています。
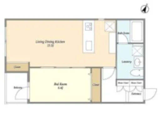
このお部屋は、専有面積50.23㎡の広がりを持ち、LDK13.5帖という贅沢な空間が…クオーレ中目黒 402。ここは、まるで時の魔法にかけられたかのような、特別な場所です。東京都目黒区中目黒の静かな通りにひっそりと佇むこの物件は、南向きの窓から柔らかい陽光が溢れ込み、住む人に暖かさと安らぎを与えてくれます。402という番号は、ただの数字ではなく、あなたの新しい人生のスタート地点を象徴しています。
このお部屋は、専有面積50.23㎡の広がりを持ち、LDK13.5帖という贅沢な空間が、あなたを迎え入れます。リビングからは、外の風景がまるで作品の一部のように映し出され、朝のコーヒーを片手に窓辺に立てば、静かな街並みを眺めることができます。陽の光が差し込み、柔らかなカーテンがそよぐその瞬間は、まるで映画のワンシーンのように心に刻まれるでしょう。
洋室6.4帖にはゆったりとしたベッドが似合い、その上で夢の続きを語り合ったり、読書に没頭したり、心豊かな時間を過ごせます。あなたがこの空間に身を置くと、どこか懐かしい香りの漂う書物のページをめくる感覚が刺激され、過去と未来が交差する奇妙な体験を味わえます。
クオーレ中目黒 402はただの住まいではなく、アートと文化の交差点でもあります。周囲には、多くのギャラリーやカフェが点在しており、芸術の香りが漂います。アートが好きなあなたには、いつでもインスピレーションを与えてくれる環境が広がっています。もちろん、心地よい音楽が流れるカフェで、友人と語り合う時間もまた、特別なひとときです。
この物件は、エレベーターやオートロック、宅配ボックスといった便利な設備も整っており、現代のライフスタイルにぴったりの選択肢です。それは、あなたが日々の忙しさの中でも、心地よい暮らしを実現するためのパートナーのようです。
クオーレ中目黒 402での生活は、まるで自分だけの物語を紡いでいく感覚です。この場所での新しい経験は、あなたの人生の彩りを豊かにし、毎日の生活が特別なものに変わります。目黒区中目黒3-3-4という地に根ざし、あなたの心に寄り添いながら、夢の実現に向けての一歩を踏み出す準備を整えています。ここでの毎日が、まるで幸福な夢の中にいるような、優雅で魅力的な時間となることでしょう。あなたの新しい生活の幕開けを、心よりお待ちしております。
このお部屋は、専有面積50.23㎡の広がりを持ち、LDK13.5帖という贅沢な空間が…クオーレ中目黒 402。ここは、まるで時の魔法にかけられたかのような、特別な場所です。東京都目黒区中目黒の静かな通りにひっそりと佇むこの物件は、南向きの窓から柔らかい陽光が溢れ込み、住む人に暖かさと安らぎを与えてくれます。402という番号は、ただの数字ではなく、あなたの新しい人生のスタート地点を象徴しています。
このお部屋は、専有面積50.23㎡の広がりを持ち、LDK13.5帖という贅沢な空間が、あなたを迎え入れます。リビングからは、外の風景がまるで作品の一部のように映し出され、朝のコーヒーを片手に窓辺に立てば、静かな街並みを眺めることができます。陽の光が差し込み、柔らかなカーテンがそよぐその瞬間は、まるで映画のワンシーンのように心に刻まれるでしょう。
洋室6.4帖にはゆったりとしたベッドが似合い、その上で夢の続きを語り合ったり、読書に没頭したり、心豊かな時間を過ごせます。あなたがこの空間に身を置くと、どこか懐かしい香りの漂う書物のページをめくる感覚が刺激され、過去と未来が交差する奇妙な体験を味わえます。
クオーレ中目黒 402はただの住まいではなく、アートと文化の交差点でもあります。周囲には、多くのギャラリーやカフェが点在しており、芸術の香りが漂います。アートが好きなあなたには、いつでもインスピレーションを与えてくれる環境が広がっています。もちろん、心地よい音楽が流れるカフェで、友人と語り合う時間もまた、特別なひとときです。
この物件は、エレベーターやオートロック、宅配ボックスといった便利な設備も整っており、現代のライフスタイルにぴったりの選択肢です。それは、あなたが日々の忙しさの中でも、心地よい暮らしを実現するためのパートナーのようです。
クオーレ中目黒 402での生活は、まるで自分だけの物語を紡いでいく感覚です。この場所での新しい経験は、あなたの人生の彩りを豊かにし、毎日の生活が特別なものに変わります。目黒区中目黒3-3-4という地に根ざし、あなたの心に寄り添いながら、夢の実現に向けての一歩を踏み出す準備を整えています。ここでの毎日が、まるで幸福な夢の中にいるような、優雅で魅力的な時間となることでしょう。あなたの新しい生活の幕開けを、心よりお待ちしております。
バイブルスコア
バイブルスコア: 66.9
かなり条件の良い物件です、即仮押さえをおすすめする物件です!
このお部屋は、現在ご入居中のため空室情報はございません。ただし、将来的に募集が開始される際、バイブルスコアにおいて非常に高い評価が期待されます。特にご興味をお持ちの方は、今のうちにブックマークやお気に入りに登録していただくと、募集開始のお知らせをすぐに受け取ることができます。是非ともご検討くださいませ。
※バイブルスコア詳細はこちら
バイブルスコアとは独自のAI機械学習技術を利用した物件評価システムで、物件のおすすめ度を示します。最高得点は100点で、スコアが高いほど、よりおすすめの物件と評価されています。
写真
現在写真が登録されていません契約条件
| 賃料 | 予想金額:280,000〜300,000円程度 | 管理費 | 予想金額:8,000〜12,000円程度 |
| 礼金 | 非公開(アーカイブ) | 敷金 | 非公開(アーカイブ) |
| フリーレント | なし | 平米数 | 50.23㎡ |
| 間取り | 1LDK | 大型収納 | なし |
| 契約期間 | 2年 | 方角 | 南 |
| 更新料 | 1ヶ月 | 契約形態 | 普通賃貸借契約 |
| 取引態様 | 媒介 | 内見状況 | 入居中 |
| 入居時期 | 入居中 | SOHO・事務所 | 不可 |
| ペット | 可 | 間取り内訳 | LDK13.5帖 洋室6.4帖 |
| キャンペーン情報・備考 | 本情報は賃料改定交渉の資料作成、収益物件の利回り試算、周辺エリアや最寄り駅の坪単価分析、次回募集開始時期の予測などにご活用いただけます。 | ||
※「どの不動産に頼めばいいのか分からない」「信頼できる営業マンの話を聞きたい」「一番親切な会社と契約したい」とお悩みの方におすすめなのが「高級賃貸バイブル」です。
高級賃貸バイブルは業界10年以上の熟練スタッフ群がお客様ファーストで対応します。
下記ボタンから、まずは無料でご相談下さい。
※内覧をご希望の際には、どうぞ物件のエントランス前にてお待ち合わせくださいませ。ご内覧後は、同じ場所でお別れとさせていただきます。お客様のご都合に合わせたスムーズなご案内を心がけておりますので、ご質問等がございましたら何なりとお申し付けください。 物件概要
| 物件名 |
| 築年月 |
|
|---|---|---|---|
| 所在地 | |||
| 交通 | |||
| 総戸数 | 総階数 |
| |
| 構造 |
| ||
地図
物件までの道のりは、「拡大地図を表示」をクリックしてナビ機能をご利用ください。
部屋設備












建物設備

TVモニターホン

エレベーター

オートロック

宅配ボックス

敷地内ゴミ置場
クオーレ中目黒の現在募集中のお部屋
- No rooms found for this property.
