
| 賃料 | 予想金額:275,000〜295,000円程度 | 管理費 | 予想金額:13,000〜17,000円程度 |
| 礼金/敷金 | 非公開(アーカイブ) | 平米数 | 50.22㎡ |
| 初期費用概算(参考) | 目安:1,158,250〜1,258,250 円 | みなし賃料(月額・参考) | 309,234〜329,234 円 |
| 備考 | 本ページは過去募集のアーカイブです。表示の金額は周辺相場・過去募集を踏まえた参考レンジであり、実際の契約金額・条件ではありません。 | ||
※上記みなし賃料(月額)は仲介手数料割引・無料&キャッシュバックを加味した高級賃貸バイブル限定の金額です。一般的なみなし賃料とは異なります。
【建物ページ】クオーレ中目黒の詳細・最新空室はこちら▶▶選ばれる理由
仲介手数料無料・キャンペーン情報(毎月15名様限定)
〇引っ越しお祝い金5000円プレゼント(キャッシュバック)
クオーレ中目黒 204の口コミ・レビュー
クオーレ中目黒 204、あなたの新しい家は、まるで街の心臓部に佇む美しい宝石のようです。東京都目黒区中目黒3-3-4に位置し、南向きの窓から差し込む光は、まるで朝の陽射しがあなたを優しく包み込むようです。この物件は、まさにあなたの人生の舞台となることでしょう。専有面積50.22㎡は、あなたの想像を超える広がりを提供し、LDK15.2帖と洋室5.1帖は、まるでありとあらゆる夢を実現するためのキャンバ…クオーレ中目黒 204、あなたの新しい家は、まるで街の心臓部に佇む美しい宝石のようです。東京都目黒区中目黒3-3-4に位置し、南向きの窓から差し込む光は、まるで朝の陽射しがあなたを優しく包み込むようです。この物件は、まさにあなたの人生の舞台となることでしょう。専有面積50.22㎡は、あなたの想像を超える広がりを提供し、LDK15.2帖と洋室5.1帖は、まるでありとあらゆる夢を実現するためのキャンバスのようです。
クオーレ中目黒 204の住人となることは、まるで映画の主人公になるかのよう。朝、目を覚ましたあなたは、清々しい空気を吸い込み、南向きの窓から差し込む柔らかな陽光を浴びることでしょう。優しい風がカーテンを揺らし、あなたの一日が始まります。そして、リビングダイニングを見渡すと、その広々とした空間は、まるで大切な友人たちを招待したくなる憩いの場所。この空間では、会話が弾み、笑い声が響き、心温まるひとときを作り出します。
そして、クオーレ中目黒 204のキッチンでは、料理を楽しむ時間が待っています。新鮮な食材を使い、味覚を刺激する美味しい料理があなたの手によって生み出される瞬間。キッチンの香ばしい匂いが漂い、あなたをさらなる創作へと誘います。ここでの料理は、単なる食事ではなく、愛する人たちと分かち合う特別な時間となることでしょう。
もちろん、クオーレ中目黒 204には、生活の便利さをサポートする設備も整っています。TVモニターホン、エレベーター、オートロック、宅配ボックス…。これらは、あなたの日常をより快適に、そして安心して過ごすための大切なパートナーです。まるで家が、あなたの生活をしっかりと支えてくれる守護者のようです。
周辺には、歴史と文化が息づく街並みがあります。目黒川沿いを散歩すれば、春には桜が咲き誇り、夏には緑が深くなり、秋には紅葉が美しく色づく様子を楽しめます。中目黒駅から徒歩6分という立地は、都会の喧騒を感じながらも、静寂を求めるあなたにぴったりです。クオーレ中目黒 204は、まさにその素晴らしいバランスを提供してくれる場所なのです。
この物件は、ただの住まいではありません。クオーレ中目黒 204は、あなたの人生に鮮やかな彩りを添え、日々の生活を特別なものに変えてくれる魔法の箱です。ここでの生活は、まるで心に残る映画のワンシーンのように、どこまでも美しく、感動的なのです。あなたの新しい物語が、ここで始まることを心から楽しみにしています。
クオーレ中目黒 204の住人となることは、まるで映画の主人公になるかのよう。朝、目を覚ましたあなたは、清々しい空気を吸い込み、南向きの窓から差し込む柔らかな陽光を浴びることでしょう。優しい風がカーテンを揺らし、あなたの一日が始まります。そして、リビングダイニングを見渡すと、その広々とした空間は、まるで大切な友人たちを招待したくなる憩いの場所。この空間では、会話が弾み、笑い声が響き、心温まるひとときを作り出します。
そして、クオーレ中目黒 204のキッチンでは、料理を楽しむ時間が待っています。新鮮な食材を使い、味覚を刺激する美味しい料理があなたの手によって生み出される瞬間。キッチンの香ばしい匂いが漂い、あなたをさらなる創作へと誘います。ここでの料理は、単なる食事ではなく、愛する人たちと分かち合う特別な時間となることでしょう。
もちろん、クオーレ中目黒 204には、生活の便利さをサポートする設備も整っています。TVモニターホン、エレベーター、オートロック、宅配ボックス…。これらは、あなたの日常をより快適に、そして安心して過ごすための大切なパートナーです。まるで家が、あなたの生活をしっかりと支えてくれる守護者のようです。
周辺には、歴史と文化が息づく街並みがあります。目黒川沿いを散歩すれば、春には桜が咲き誇り、夏には緑が深くなり、秋には紅葉が美しく色づく様子を楽しめます。中目黒駅から徒歩6分という立地は、都会の喧騒を感じながらも、静寂を求めるあなたにぴったりです。クオーレ中目黒 204は、まさにその素晴らしいバランスを提供してくれる場所なのです。
この物件は、ただの住まいではありません。クオーレ中目黒 204は、あなたの人生に鮮やかな彩りを添え、日々の生活を特別なものに変えてくれる魔法の箱です。ここでの生活は、まるで心に残る映画のワンシーンのように、どこまでも美しく、感動的なのです。あなたの新しい物語が、ここで始まることを心から楽しみにしています。
バイブルスコア
バイブルスコア: 56.4
条件のいい物件です、引っ越しが2か月以内の場合は仮申し込みを検討すべき物件です。
このお部屋は、現在ご入居中のため空室情報はございません。ただし、将来的に募集が開始される際、バイブルスコアにおいて非常に高い評価が期待されます。特にご興味をお持ちの方は、今のうちにブックマークやお気に入りに登録していただくと、募集開始のお知らせをすぐに受け取ることができます。是非ともご検討くださいませ。
※バイブルスコア詳細はこちら
バイブルスコアとは独自のAI機械学習技術を利用した物件評価システムで、物件のおすすめ度を示します。最高得点は100点で、スコアが高いほど、よりおすすめの物件と評価されています。
写真
現在写真が登録されていません契約条件
| 賃料 | 予想金額:275,000〜295,000円程度 | 管理費 | 予想金額:13,000〜17,000円程度 |
| 礼金 | 非公開(アーカイブ) | 敷金 | 非公開(アーカイブ) |
| フリーレント | なし | 平米数 | 50.22㎡ |
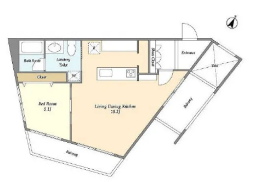
| 間取り | 1LDK | 大型収納 | なし |
| 契約期間 | 2年 | 方角 | 南 |
| 更新料 | 1ヶ月 | 契約形態 | 普通賃貸借契約 |
| 取引態様 | 媒介 | 内見状況 | 入居中 |
| 入居時期 | 入居中 | SOHO・事務所 | 不可 |
| ペット | 不可 | 間取り内訳 | LDK15.2帖 洋室5.1帖 |
| キャンペーン情報・備考 | 本情報は賃料改定交渉の資料作成、収益物件の利回り試算、周辺エリアや最寄り駅の坪単価分析、次回募集開始時期の予測などにご活用いただけます。 | ||
※「どの不動産に頼めばいいのか分からない」「信頼できる営業マンの話を聞きたい」「一番親切な会社と契約したい」とお悩みの方におすすめなのが「高級賃貸バイブル」です。
高級賃貸バイブルは業界10年以上の熟練スタッフ群がお客様ファーストで対応します。
下記ボタンから、まずは無料でご相談下さい。
※内覧をご希望の際には、どうぞ物件のエントランス前にてお待ち合わせくださいませ。ご内覧後は、同じ場所でお別れとさせていただきます。お客様のご都合に合わせたスムーズなご案内を心がけておりますので、ご質問等がございましたら何なりとお申し付けください。 物件概要
| 物件名 |
| 築年月 |
|
|---|---|---|---|
| 所在地 | |||
| 交通 | |||
| 総戸数 | 総階数 |
| |
| 構造 |
| ||
地図
物件までの道のりは、「拡大地図を表示」をクリックしてナビ機能をご利用ください。
部屋設備











建物設備

TVモニターホン

エレベーター

オートロック

宅配ボックス

敷地内ゴミ置場
クオーレ中目黒の現在募集中のお部屋
- No rooms found for this property.
