
| 賃料 | 予想金額:118,000〜138,000円程度 | 管理費 | 予想金額:8,000〜12,000円程度 |
| 礼金/敷金 | 非公開(アーカイブ) | 平米数 | 20.7㎡ |
| 初期費用概算(参考) | 目安:554,500〜654,500 円 | みなし賃料(月額・参考) | 137,927〜157,927 円 |
| 備考 | 本ページは過去募集のアーカイブです。表示の金額は周辺相場・過去募集を踏まえた参考レンジであり、実際の契約金額・条件ではありません。 | ||
※上記みなし賃料(月額)は仲介手数料割引・無料&キャッシュバックを加味した高級賃貸バイブル限定の金額です。一般的なみなし賃料とは異なります。
【建物ページ】クレセント虎ノ門新橋の詳細・最新空室はこちら▶▶選ばれる理由
仲介手数料無料・キャンペーン情報(毎月15名様限定)
〇引っ越しお祝い金5000円プレゼント(キャッシュバック)
クレセント虎ノ門新橋 602の口コミ・レビュー
クレセント虎ノ門新橋 602。まるで都会の喧騒から一歩離れた静謐な隠れ家のように、一人ひとりの生活を優雅に彩る特別な存在です。南東の陽射しが優しく差し込むこのお部屋は、まるで朝の光に包まれた夢の中で目を覚ますような、特別な体験を約束します。602号室という番号は、まるで新しい物語の始まりを告げる魔法の合言葉です。
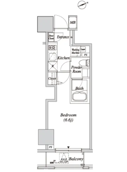
20.7㎡の空間に広がるのは、洗練されたデザインが施された洋室6.6帖。この部屋に…クレセント虎ノ門新橋 602。まるで都会の喧騒から一歩離れた静謐な隠れ家のように、一人ひとりの生活を優雅に彩る特別な存在です。南東の陽射しが優しく差し込むこのお部屋は、まるで朝の光に包まれた夢の中で目を覚ますような、特別な体験を約束します。602号室という番号は、まるで新しい物語の始まりを告げる魔法の合言葉です。
20.7㎡の空間に広がるのは、洗練されたデザインが施された洋室6.6帖。この部屋に足を踏み入れると、まずはその洗練されたインテリアが視覚を刺激します。優雅なカーテンがかかる大きな窓からは、柔らかな光が注ぎ込み、瞬時に心を穏やかにします。手のひらで触れる壁は滑らかで冷たい感触を纏い、心地よい静寂さが漂う中で、ちょっとした癒しの瞬間を提供してくれます。
このクレセント虎ノ門新橋 602では、TVモニターホンやオートロックといった現代の便利さも完備されており、安全かつ快適に生活を送ることができる環境が整っています。想像してみてください。朝、目を覚ましたあなたは、香ばしいコーヒーの香りに誘われ、キッチンで至福のひとときを過ごします。陽光が優しく舞い込む中、心に響く音楽が流れ、生活がまるで映画のワンシーンのように展開されます。
新橋駅まで徒歩5分の距離に位置するこの物件は、東京の文化と歴史の中心地へのアクセスも抜群です。都心の喧騒から一歩引いた立地は、まるであなたを心地よい惰性の世界へと誘います。ルネッサンスを感じさせる街並みや、隣接するアートギャラリー、カフェから漂うような甘い香りが、日常のひとときを特別なものに変えてくれることでしょう。
クレセント虎ノ門新橋 602は、自分だけの特別な空間を求める方にとって、心の拠り所となる場所です。まるで古い友人のように、日々の生活を共に歩んでいく存在として、あなたを優しく包み込んでくれます。心の中にある未踏の地を探索するかのように、この空間での新しい冒険が待っているのです。
この特別なお部屋で、日々の生活を味わい、あなた自身を表現してください。クレセント虎ノ門新橋 602が、あなたの新しい生活の舞台になることを、静かに待っています。さあ、扉を開けて、新しい物語を始めましょう。
20.7㎡の空間に広がるのは、洗練されたデザインが施された洋室6.6帖。この部屋に…クレセント虎ノ門新橋 602。まるで都会の喧騒から一歩離れた静謐な隠れ家のように、一人ひとりの生活を優雅に彩る特別な存在です。南東の陽射しが優しく差し込むこのお部屋は、まるで朝の光に包まれた夢の中で目を覚ますような、特別な体験を約束します。602号室という番号は、まるで新しい物語の始まりを告げる魔法の合言葉です。
20.7㎡の空間に広がるのは、洗練されたデザインが施された洋室6.6帖。この部屋に足を踏み入れると、まずはその洗練されたインテリアが視覚を刺激します。優雅なカーテンがかかる大きな窓からは、柔らかな光が注ぎ込み、瞬時に心を穏やかにします。手のひらで触れる壁は滑らかで冷たい感触を纏い、心地よい静寂さが漂う中で、ちょっとした癒しの瞬間を提供してくれます。
このクレセント虎ノ門新橋 602では、TVモニターホンやオートロックといった現代の便利さも完備されており、安全かつ快適に生活を送ることができる環境が整っています。想像してみてください。朝、目を覚ましたあなたは、香ばしいコーヒーの香りに誘われ、キッチンで至福のひとときを過ごします。陽光が優しく舞い込む中、心に響く音楽が流れ、生活がまるで映画のワンシーンのように展開されます。
新橋駅まで徒歩5分の距離に位置するこの物件は、東京の文化と歴史の中心地へのアクセスも抜群です。都心の喧騒から一歩引いた立地は、まるであなたを心地よい惰性の世界へと誘います。ルネッサンスを感じさせる街並みや、隣接するアートギャラリー、カフェから漂うような甘い香りが、日常のひとときを特別なものに変えてくれることでしょう。
クレセント虎ノ門新橋 602は、自分だけの特別な空間を求める方にとって、心の拠り所となる場所です。まるで古い友人のように、日々の生活を共に歩んでいく存在として、あなたを優しく包み込んでくれます。心の中にある未踏の地を探索するかのように、この空間での新しい冒険が待っているのです。
この特別なお部屋で、日々の生活を味わい、あなた自身を表現してください。クレセント虎ノ門新橋 602が、あなたの新しい生活の舞台になることを、静かに待っています。さあ、扉を開けて、新しい物語を始めましょう。
写真
契約条件
| 賃料 | 予想金額:118,000〜138,000円程度 | 管理費 | 予想金額:8,000〜12,000円程度 |
| 礼金 | 非公開(アーカイブ) | 敷金 | 非公開(アーカイブ) |
| フリーレント | なし | 平米数 | 20.7㎡ |
| 間取り | 1K | 大型収納 | なし |
| 契約期間 | 2年間 | 方角 | 南東 |
| 更新料 | 1ヶ月 | 契約形態 | 普通賃貸借契約 |
| 取引態様 | 媒介 | 内見状況 | 入居中 |
| 入居時期 | 入居中 | SOHO・事務所 | SOHO不可 |
| ペット | ペット飼育不可 | 間取り内訳 | 洋室6.6帖 |
| キャンペーン情報・備考 | 本情報は賃料改定交渉の資料作成、収益物件の利回り試算、周辺エリアや最寄り駅の坪単価分析、次回募集開始時期の予測などにご活用いただけます。 | ||
※「どの不動産に頼めばいいのか分からない」「信頼できる営業マンの話を聞きたい」「一番親切な会社と契約したい」とお悩みの方におすすめなのが「高級賃貸バイブル」です。
高級賃貸バイブルは業界10年以上の熟練スタッフ群がお客様ファーストで対応します。
下記ボタンから、まずは無料でご相談下さい。
※内覧をご希望の際には、どうぞ物件のエントランス前にてお待ち合わせくださいませ。ご内覧後は、同じ場所でお別れとさせていただきます。お客様のご都合に合わせたスムーズなご案内を心がけておりますので、ご質問等がございましたら何なりとお申し付けください。 物件概要
| 物件名 |
| 築年月 |
|
|---|---|---|---|
| 所在地 | |||
| 交通 | |||
| 総戸数 |
| 総階数 |
|
| 構造 |
| ||
地図
物件までの道のりは、「拡大地図を表示」をクリックしてナビ機能をご利用ください。
部屋設備









建物設備

TVモニターホン

エレベーター

オートロック

宅配ボックス

敷地内ゴミ置場

管理人

駐輪場
クレセント虎ノ門新橋の現在募集中のお部屋
- No rooms found for this property.






























