
| 賃料 | 予想金額:360,000〜380,000円程度 | 管理費 | 予想金額:0〜2,000円程度 |
| 礼金/敷金 | 非公開(アーカイブ) | 平米数 | 82.84㎡ |
| 初期費用概算(参考) | 目安:2,076,500〜2,176,500 円 | みなし賃料(月額・参考) | 396,594〜416,594 円 |
| 備考 | 本ページは過去募集のアーカイブです。表示の金額は周辺相場・過去募集を踏まえた参考レンジであり、実際の契約金額・条件ではありません。 | ||
※上記みなし賃料(月額)は仲介手数料割引・無料&キャッシュバックを加味した高級賃貸バイブル限定の金額です。一般的なみなし賃料とは異なります。
【建物ページ】麻布仙台坂ガーデンの詳細・最新空室はこちら▶▶選ばれる理由
仲介手数料無料・キャンペーン情報(毎月15名様限定)
〇仲介手数料割引キャンペーン
麻布仙台坂ガーデン 501の口コミ・レビュー
麻布仙台坂ガーデン 501。この物件はまるであなたを優雅な夢の世界へと誘う、都市のオアシスのような存在です。501という数値は、ただの階数の記号ではなく、ここから始まる新しい物語のページを意味しています。82.84㎡の広さは、あなたに自由な発想と豊かな生活空間を提供し、LD15.8帖とK3.5帖の広々としたリビングダイニングは、友人や家族とともに過ごす下地を整えています。時折窓から差し込む南の光が…麻布仙台坂ガーデン 501。この物件はまるであなたを優雅な夢の世界へと誘う、都市のオアシスのような存在です。501という数値は、ただの階数の記号ではなく、ここから始まる新しい物語のページを意味しています。82.84㎡の広さは、あなたに自由な発想と豊かな生活空間を提供し、LD15.8帖とK3.5帖の広々としたリビングダイニングは、友人や家族とともに過ごす下地を整えています。時折窓から差し込む南の光が、空間全体を柔らかな金色に包み込み、まるで輝く宝石のように、あなたの日々を彩ります。
麻布仙台坂ガーデン 501は、ただの住まいではなく、生活そのものがアートのように流れる場所です。洋室6.1帖と洋室5帖は、あなた自身の感性に呼応するキャンバスとなり、心の中に潜む夢を描くためのスペースを提供します。朝目覚めたとき、窓を開けると、街の喧騒から少し離れた静謐な空気がふわりと入って来て、心地よい香りの花々があなたを包み込みます。これからの生活がまるで映画のワンシーンのように、穏やかで、時には緊張感を持った感動的な瞬間へとあなたを導いてくれることでしょう。
この物件には、TVモニターホンやオートロックなどの最新の設備が整っており、安心感をもたらします。エレベーターでの移動は、まるで空に浮かぶかのようにスムーズで、毎日の疲れを感じさせません。宅配ボックスも完備されており、忙しい日々の中でも、あなたの時間を大切に守ってくれます。
麻布仙台坂ガーデン 501は、周辺の文化や歴史とも深く結びついています。麻布十番駅から徒歩9分の距離には、古くから続く伝統とモダンが交差する街並みが広がり、洗練されたカフェやアートギャラリーがあなたの生活を一層豊かにしてくれることでしょう。歴史的な街並みを散策しながら、あなたの感性をさらに磨く日々が待っています。
この特別な場所で新しい生活を始めることは、あなた自身を再発見する旅の始まりでもあります。麻布仙台坂ガーデン 501があなたに語りかけます。「ここでの生活は、ただの一日ではなく、一つ一つが特別な瞬間に溢れているのです。私とともに、あなたの新しいストーリーを描いてみませんか?」この物件で、あなたの人生をより美しく、豊かに彩り、心の深いところから満たされる体験をお約束します。
麻布仙台坂ガーデン 501は、ただの住まいではなく、生活そのものがアートのように流れる場所です。洋室6.1帖と洋室5帖は、あなた自身の感性に呼応するキャンバスとなり、心の中に潜む夢を描くためのスペースを提供します。朝目覚めたとき、窓を開けると、街の喧騒から少し離れた静謐な空気がふわりと入って来て、心地よい香りの花々があなたを包み込みます。これからの生活がまるで映画のワンシーンのように、穏やかで、時には緊張感を持った感動的な瞬間へとあなたを導いてくれることでしょう。
この物件には、TVモニターホンやオートロックなどの最新の設備が整っており、安心感をもたらします。エレベーターでの移動は、まるで空に浮かぶかのようにスムーズで、毎日の疲れを感じさせません。宅配ボックスも完備されており、忙しい日々の中でも、あなたの時間を大切に守ってくれます。
麻布仙台坂ガーデン 501は、周辺の文化や歴史とも深く結びついています。麻布十番駅から徒歩9分の距離には、古くから続く伝統とモダンが交差する街並みが広がり、洗練されたカフェやアートギャラリーがあなたの生活を一層豊かにしてくれることでしょう。歴史的な街並みを散策しながら、あなたの感性をさらに磨く日々が待っています。
この特別な場所で新しい生活を始めることは、あなた自身を再発見する旅の始まりでもあります。麻布仙台坂ガーデン 501があなたに語りかけます。「ここでの生活は、ただの一日ではなく、一つ一つが特別な瞬間に溢れているのです。私とともに、あなたの新しいストーリーを描いてみませんか?」この物件で、あなたの人生をより美しく、豊かに彩り、心の深いところから満たされる体験をお約束します。
バイブルスコア
バイブルスコア: 4.3
高級な物件でない場合は割高な物件です。。
※バイブルスコア詳細はこちら
バイブルスコアとは独自のAI機械学習技術を利用した物件評価システムで、物件のおすすめ度を示します。最高得点は100点で、スコアが高いほど、よりおすすめの物件と評価されています。
写真
契約条件
| 賃料 | 予想金額:360,000〜380,000円程度 | 管理費 | 予想金額:0〜2,000円程度 |
| 礼金 | 非公開(アーカイブ) | 敷金 | 非公開(アーカイブ) |
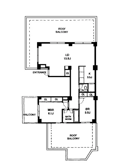
| フリーレント | なし | 平米数 | 82.84㎡ |
| 間取り | 2LDK | 大型収納 | |
| 契約期間 | 方角 | 南 北 | |
| 更新料 | 契約形態 | 定期借家契約 | |
| 取引態様 | 媒介 | 内見状況 | 入居中 |
| 入居時期 | 入居中 | SOHO・事務所 | |
| ペット | ペット可 | 間取り内訳 | LD15.8 K3.5 / 洋6.1 / 洋5 |
| キャンペーン情報・備考 | 本情報は賃料改定交渉の資料作成、収益物件の利回り試算、周辺エリアや最寄り駅の坪単価分析、次回募集開始時期の予測などにご活用いただけます。 | ||
※「どの不動産に頼めばいいのか分からない」「信頼できる営業マンの話を聞きたい」「一番親切な会社と契約したい」とお悩みの方におすすめなのが「高級賃貸バイブル」です。
高級賃貸バイブルは業界10年以上の熟練スタッフ群がお客様ファーストで対応します。
下記ボタンから、まずは無料でご相談下さい。
※内覧をご希望の際には、どうぞ物件のエントランス前にてお待ち合わせくださいませ。ご内覧後は、同じ場所でお別れとさせていただきます。お客様のご都合に合わせたスムーズなご案内を心がけておりますので、ご質問等がございましたら何なりとお申し付けください。 物件概要
| 物件名 |
| 築年月 |
|
|---|---|---|---|
| 所在地 | |||
| 交通 | |||
| 総戸数 | 総階数 |
| |
| 構造 |
| ||
地図
物件までの道のりは、「拡大地図を表示」をクリックしてナビ機能をご利用ください。
部屋設備














建物設備

TVモニターホン

エレベーター

オートロック

宅配ボックス

敷地内ゴミ置場

駐車場平置き

駐輪場
麻布仙台坂ガーデンの現在募集中のお部屋
- No rooms found for this property.
















