
| 賃料 | 予想金額:340,000〜360,000円程度 | 管理費 | 予想金額:0〜2,000円程度 |
| 礼金/敷金 | 非公開(アーカイブ) | 平米数 | 68.97㎡ |
| 初期費用概算(参考) | 目安:916,500〜1,016,500 円 | みなし賃料(月額・参考) | 352,844〜372,844 円 |
| 備考 | 本ページは過去募集のアーカイブです。表示の金額は周辺相場・過去募集を踏まえた参考レンジであり、実際の契約金額・条件ではありません。 | ||
※上記みなし賃料(月額)は仲介手数料割引・無料&キャッシュバックを加味した高級賃貸バイブル限定の金額です。一般的なみなし賃料とは異なります。
【建物ページ】レグノ・グランデ一番町タワーの詳細・最新空室はこちら▶▶選ばれる理由
仲介手数料無料・キャンペーン情報(毎月15名様限定)
〇仲介手数料割引キャンペーン
レグノ・グランデ一番町タワー 1002の口コミ・レビュー
レグノ・グランデ一番町タワー 1002。この高級賃貸物件は、まるで時を超えた夢の舞台のように、貴方を優雅な生活へと誘います。東京の中心、千代田区一番町に位置し、北西に向かうその姿は、周囲の美しい街並みと見事に調和しています。地上10階、息を呑むような眺望の中で、貴方の日常が非日常へと変わる瞬間を感じていただけることでしょう。
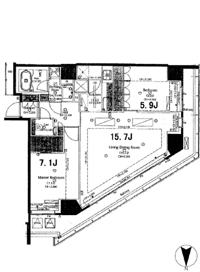
68.97㎡の広がりを持つこの空間は、優雅な2LDKとして、15.7帖…レグノ・グランデ一番町タワー 1002。この高級賃貸物件は、まるで時を超えた夢の舞台のように、貴方を優雅な生活へと誘います。東京の中心、千代田区一番町に位置し、北西に向かうその姿は、周囲の美しい街並みと見事に調和しています。地上10階、息を呑むような眺望の中で、貴方の日常が非日常へと変わる瞬間を感じていただけることでしょう。
68.97㎡の広がりを持つこの空間は、優雅な2LDKとして、15.7帖のリビングダイニングで家族や友人と笑顔を交わし、心温まる食卓を囲むことができる特別な場所です。窓から差し込む柔らかな光は、どんな朝でも貴方を優しく包み込み、日中は活気を与え、夕暮れ時には黄金色の光に染まります。その瞬間、まるで映画のワンシーンのように、貴方の心に残る思い出が生まれます。
デザイナーズというその名は、単なる標識ではありません。洗練された美しさが息づく空間は、現代アート作品のように、心を奪い、全ての訪問者を魅了します。フロントサービスがもたらす安心感は、日々の喧騒から解放され、自宅が安らぎのオアシスであることを思い起こさせてくれます。TVモニターホンやオートロックなどの設備は、あなたの暮らしをしっかりと守り、理想のプライバシーを提供します。
また、敷地内のゴミ置場や駐車場は、日常の煩わしさを軽減し、快適な生活空間を実現しています。駐輪場や機械式駐車場も完備されており、出かける際にはいつもスムーズに準備が整うことでしょう。生活の利便性を享受しつつ、都会の喧騒からわずか2分で半蔵門駅にアクセスできる贅沢さは、この地に住まう特権です。
開放感溢れる空間には、7.1帖の主寝室と5.9帖のセカンドルームが存在し、心地よい風が流れる中、静かな夜を迎えることでしょう。家族や友人との語らい、静かな自己反省の時間、あるいは新たなアイデアのインスピレーションが生まれる瞬間が待っています。そのすべては、レグノ・グランデ一番町タワー 1002での暮らしの中にあるのです。
さあ、一歩踏み出し、レグノ・グランデ一番町タワー 1002で新たな日々を紡いでみませんか?この場所には、貴方が求めるすべての要素が揃っています。一つ一つの瞬間が、特別な思い出へと変わり、貴方を包み込むでしょう。高級感あふれるこの空間で、貴方の心を豊かに満たす新たな生活が始まります。
68.97㎡の広がりを持つこの空間は、優雅な2LDKとして、15.7帖…レグノ・グランデ一番町タワー 1002。この高級賃貸物件は、まるで時を超えた夢の舞台のように、貴方を優雅な生活へと誘います。東京の中心、千代田区一番町に位置し、北西に向かうその姿は、周囲の美しい街並みと見事に調和しています。地上10階、息を呑むような眺望の中で、貴方の日常が非日常へと変わる瞬間を感じていただけることでしょう。
68.97㎡の広がりを持つこの空間は、優雅な2LDKとして、15.7帖のリビングダイニングで家族や友人と笑顔を交わし、心温まる食卓を囲むことができる特別な場所です。窓から差し込む柔らかな光は、どんな朝でも貴方を優しく包み込み、日中は活気を与え、夕暮れ時には黄金色の光に染まります。その瞬間、まるで映画のワンシーンのように、貴方の心に残る思い出が生まれます。
デザイナーズというその名は、単なる標識ではありません。洗練された美しさが息づく空間は、現代アート作品のように、心を奪い、全ての訪問者を魅了します。フロントサービスがもたらす安心感は、日々の喧騒から解放され、自宅が安らぎのオアシスであることを思い起こさせてくれます。TVモニターホンやオートロックなどの設備は、あなたの暮らしをしっかりと守り、理想のプライバシーを提供します。
また、敷地内のゴミ置場や駐車場は、日常の煩わしさを軽減し、快適な生活空間を実現しています。駐輪場や機械式駐車場も完備されており、出かける際にはいつもスムーズに準備が整うことでしょう。生活の利便性を享受しつつ、都会の喧騒からわずか2分で半蔵門駅にアクセスできる贅沢さは、この地に住まう特権です。
開放感溢れる空間には、7.1帖の主寝室と5.9帖のセカンドルームが存在し、心地よい風が流れる中、静かな夜を迎えることでしょう。家族や友人との語らい、静かな自己反省の時間、あるいは新たなアイデアのインスピレーションが生まれる瞬間が待っています。そのすべては、レグノ・グランデ一番町タワー 1002での暮らしの中にあるのです。
さあ、一歩踏み出し、レグノ・グランデ一番町タワー 1002で新たな日々を紡いでみませんか?この場所には、貴方が求めるすべての要素が揃っています。一つ一つの瞬間が、特別な思い出へと変わり、貴方を包み込むでしょう。高級感あふれるこの空間で、貴方の心を豊かに満たす新たな生活が始まります。
バイブルスコア
バイブルスコア: 25.0
平均的なスコアです。
※バイブルスコア詳細はこちら
バイブルスコアとは独自のAI機械学習技術を利用した物件評価システムで、物件のおすすめ度を示します。最高得点は100点で、スコアが高いほど、よりおすすめの物件と評価されています。
写真
契約条件
| 賃料 | 予想金額:340,000〜360,000円程度 | 管理費 | 予想金額:0〜2,000円程度 |
| 礼金 | 非公開(アーカイブ) | 敷金 | 非公開(アーカイブ) |
| フリーレント | なし | 平米数 | 68.97㎡ |
| 間取り | 2LDK | 大型収納 | WIC |
| 契約期間 |
| 方角 | 北西 |
| 更新料 | 契約形態 | 普通賃貸借契約 | |
| 取引態様 | 媒介 | 内見状況 | 入居中 |
| 入居時期 | 入居中 | SOHO・事務所 | |
| ペット | 間取り内訳 | LD=15.7J / K=3.3J / BR7.1J / BR5.9J | |
| キャンペーン情報・備考 | 本情報は賃料改定交渉の資料作成、収益物件の利回り試算、周辺エリアや最寄り駅の坪単価分析、次回募集開始時期の予測などにご活用いただけます。 | ||
※「どの不動産に頼めばいいのか分からない」「信頼できる営業マンの話を聞きたい」「一番親切な会社と契約したい」とお悩みの方におすすめなのが「高級賃貸バイブル」です。
高級賃貸バイブルは業界10年以上の熟練スタッフ群がお客様ファーストで対応します。
下記ボタンから、まずは無料でご相談下さい。
※内覧をご希望の際には、どうぞ物件のエントランス前にてお待ち合わせくださいませ。ご内覧後は、同じ場所でお別れとさせていただきます。お客様のご都合に合わせたスムーズなご案内を心がけておりますので、ご質問等がございましたら何なりとお申し付けください。 物件概要
| 物件名 |
| 築年月 |
|
|---|---|---|---|
| 所在地 | |||
| 交通 | |||
| 総戸数 |
| 総階数 |
|
| 構造 |
| ||
地図
物件までの道のりは、「拡大地図を表示」をクリックしてナビ機能をご利用ください。
部屋設備
















建物設備

24時間管理

TVモニターホン

エレベーター

オートロック

フロントサービス

宅配ボックス

敷地内ゴミ置場

駐車場平置き

駐車場機械式

駐輪場
レグノ・グランデ一番町タワーの現在募集中のお部屋
- レグノ・グランデ一番町タワー 15階 54.98㎡ - 間取り: 1LDK+WIC - 賃料: 35万円























