
| 賃料 | 予想金額:359,000〜379,000円程度 | 管理費 | 予想金額:18,000〜22,000円程度 |
| 礼金/敷金 | 非公開(アーカイブ) | 平米数 | 68.97㎡ |
| 初期費用概算(参考) | 目安:1,363,000〜1,463,000 円 | みなし賃料(月額・参考) | 400,750〜420,750 円 |
| 備考 | 本ページは過去募集のアーカイブです。表示の金額は周辺相場・過去募集を踏まえた参考レンジであり、実際の契約金額・条件ではありません。 | ||
※上記みなし賃料(月額)は仲介手数料割引・無料&キャッシュバックを加味した高級賃貸バイブル限定の金額です。一般的なみなし賃料とは異なります。
【建物ページ】レグノ・グランデ一番町タワーの詳細・最新空室はこちら▶▶選ばれる理由
仲介手数料無料・キャンペーン情報(毎月15名様限定)
〇仲介手数料割引キャンペーン
レグノ・グランデ一番町タワー 15階 68.97㎡の口コミ・レビュー
レグノ・グランデ一番町タワー 15階 68.97㎡は、まるで都会の喧騒から逃れた静謐な隠れ家のように、洗練された日常をあなたに届ける存在です。ここに住むことは、まさに映画のワンシーンのような贅沢な体験であり、あなたの人生に美しい色彩を加えること間違いありません。
この美しいタワーは、北西に向いた眺望から、東京の絶景を日々楽しむことができる贅沢を提供します。大都会の中心にいながらも、まるで高原の空…レグノ・グランデ一番町タワー 15階 68.97㎡は、まるで都会の喧騒から逃れた静謐な隠れ家のように、洗練された日常をあなたに届ける存在です。ここに住むことは、まさに映画のワンシーンのような贅沢な体験であり、あなたの人生に美しい色彩を加えること間違いありません。
この美しいタワーは、北西に向いた眺望から、東京の絶景を日々楽しむことができる贅沢を提供します。大都会の中心にいながらも、まるで高原の空の下にいるかのような開放感を感じさせてくれるのです。特に夕暮れ時、太陽が沈むにつれて、空はオレンジや紫に染まり、あなたの心をそっと癒してくれます。
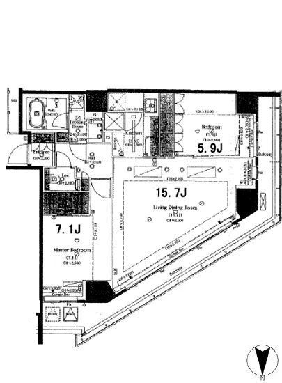
レグノ・グランデ一番町タワー 15階 68.97㎡の室内に入ると、まず感じるのは、空間を優雅に彩る洗練されたデザインです。15.7帖のリビングダイニングは、未来を感じさせるスタイリッシュな空間が広がり、自然光が優しく包み込みます。3.3帖のキッチンでは、四季折々の旬の食材を使って、自分だけの美味しい料理を創り出す楽しさが待っています。家族や友人と共に囲むテーブルは、笑顔が溢れる瞬間の舞台となることでしょう。
7.1帖と5.9帖の寝室は、まるで夢の中にいるかのような安らぎをもたらします。心地よい眠りに導くために、特別にデザインされた空間が、疲れた身体をリフレッシュさせてくれるのです。夜が訪れ、静まり返った街を見下ろすと、日中の喧騒を忘れさせる静寂が広がります。窓から差し込む月明かりが、まるで優しい手であなたを包み込んでくれるかのようです。
また、レグノ・グランデ一番町タワー 15階 68.97㎡の周辺には、歴史ある文化が息づいています。千代田区一番町は、文学や芸術が深く根付いた場所であり、数々の名作がここから生まれました。隣接する公園の木々からは、季節の移ろいを感じることができ、都会の喧騒を忘れさせる隠れたオアシスとなっています。この地域は、散策するたびに新たな発見があり、心を豊かにする経験をあなたに与えてくれることでしょう。
さらに、このタワーでは24時間管理がなされ、安心して暮らすことができます。オートロックやTVモニターホンも完備されており、あなたのプライバシーと安全がしっかりと守られています。まるであなた自身が高級ホテルに宿泊しているかのような、心地よいフロントサービスと、宅配ボックスの利便性が、日常生活を一層便利に彩ります。
レグノ・グランデ一番町タワー 15階 68.97㎡は、ただの住まいではなく、あなたの人生をより豊かにするための舞台です。この空間で、あなた自身のストーリーを紡ぎ、心に残る美しい瞬間を刻んでいくことができるでしょう。さあ、新たな章をこの場所から始めてみませんか。あなたの未来が、ここにあります。
この美しいタワーは、北西に向いた眺望から、東京の絶景を日々楽しむことができる贅沢を提供します。大都会の中心にいながらも、まるで高原の空…レグノ・グランデ一番町タワー 15階 68.97㎡は、まるで都会の喧騒から逃れた静謐な隠れ家のように、洗練された日常をあなたに届ける存在です。ここに住むことは、まさに映画のワンシーンのような贅沢な体験であり、あなたの人生に美しい色彩を加えること間違いありません。
この美しいタワーは、北西に向いた眺望から、東京の絶景を日々楽しむことができる贅沢を提供します。大都会の中心にいながらも、まるで高原の空の下にいるかのような開放感を感じさせてくれるのです。特に夕暮れ時、太陽が沈むにつれて、空はオレンジや紫に染まり、あなたの心をそっと癒してくれます。
レグノ・グランデ一番町タワー 15階 68.97㎡の室内に入ると、まず感じるのは、空間を優雅に彩る洗練されたデザインです。15.7帖のリビングダイニングは、未来を感じさせるスタイリッシュな空間が広がり、自然光が優しく包み込みます。3.3帖のキッチンでは、四季折々の旬の食材を使って、自分だけの美味しい料理を創り出す楽しさが待っています。家族や友人と共に囲むテーブルは、笑顔が溢れる瞬間の舞台となることでしょう。
7.1帖と5.9帖の寝室は、まるで夢の中にいるかのような安らぎをもたらします。心地よい眠りに導くために、特別にデザインされた空間が、疲れた身体をリフレッシュさせてくれるのです。夜が訪れ、静まり返った街を見下ろすと、日中の喧騒を忘れさせる静寂が広がります。窓から差し込む月明かりが、まるで優しい手であなたを包み込んでくれるかのようです。
また、レグノ・グランデ一番町タワー 15階 68.97㎡の周辺には、歴史ある文化が息づいています。千代田区一番町は、文学や芸術が深く根付いた場所であり、数々の名作がここから生まれました。隣接する公園の木々からは、季節の移ろいを感じることができ、都会の喧騒を忘れさせる隠れたオアシスとなっています。この地域は、散策するたびに新たな発見があり、心を豊かにする経験をあなたに与えてくれることでしょう。
さらに、このタワーでは24時間管理がなされ、安心して暮らすことができます。オートロックやTVモニターホンも完備されており、あなたのプライバシーと安全がしっかりと守られています。まるであなた自身が高級ホテルに宿泊しているかのような、心地よいフロントサービスと、宅配ボックスの利便性が、日常生活を一層便利に彩ります。
レグノ・グランデ一番町タワー 15階 68.97㎡は、ただの住まいではなく、あなたの人生をより豊かにするための舞台です。この空間で、あなた自身のストーリーを紡ぎ、心に残る美しい瞬間を刻んでいくことができるでしょう。さあ、新たな章をこの場所から始めてみませんか。あなたの未来が、ここにあります。
バイブルスコア
バイブルスコア: 18.5
高級な物件でない場合は割高な物件です。。
※バイブルスコア詳細はこちら
バイブルスコアとは独自のAI機械学習技術を利用した物件評価システムで、物件のおすすめ度を示します。最高得点は100点で、スコアが高いほど、よりおすすめの物件と評価されています。
写真
契約条件
| 賃料 | 予想金額:359,000〜379,000円程度 | 管理費 | 予想金額:18,000〜22,000円程度 |
| 礼金 | 非公開(アーカイブ) | 敷金 | 非公開(アーカイブ) |
| フリーレント | なし | 平米数 | 68.97㎡ |
| 間取り | 2LDK | 大型収納 | WIC |
| 契約期間 |
| 方角 | 北西 |
| 更新料 | 契約形態 | 普通賃貸借契約 | |
| 取引態様 | 媒介 | 内見状況 | 入居中 |
| 入居時期 | 入居中 | SOHO・事務所 | |
| ペット | 間取り内訳 | LD=15.7J / K=3.3J / BR7.1J / BR5.9J | |
| キャンペーン情報・備考 | 本情報は賃料改定交渉の資料作成、収益物件の利回り試算、周辺エリアや最寄り駅の坪単価分析、次回募集開始時期の予測などにご活用いただけます。 | ||
※「どの不動産に頼めばいいのか分からない」「信頼できる営業マンの話を聞きたい」「一番親切な会社と契約したい」とお悩みの方におすすめなのが「高級賃貸バイブル」です。
高級賃貸バイブルは業界10年以上の熟練スタッフ群がお客様ファーストで対応します。
下記ボタンから、まずは無料でご相談下さい。
※内覧をご希望の際には、どうぞ物件のエントランス前にてお待ち合わせくださいませ。ご内覧後は、同じ場所でお別れとさせていただきます。お客様のご都合に合わせたスムーズなご案内を心がけておりますので、ご質問等がございましたら何なりとお申し付けください。 物件概要
| 物件名 |
| 築年月 |
|
|---|---|---|---|
| 所在地 | |||
| 交通 | |||
| 総戸数 |
| 総階数 |
|
| 構造 |
| ||
地図
物件までの道のりは、「拡大地図を表示」をクリックしてナビ機能をご利用ください。
部屋設備














建物設備

24時間管理

TVモニターホン

エレベーター

オートロック

フロントサービス

宅配ボックス

敷地内ゴミ置場

駐車場平置き

駐車場機械式

駐輪場
レグノ・グランデ一番町タワーの現在募集中のお部屋
- レグノ・グランデ一番町タワー 15階 54.98㎡ - 間取り: 1LDK+WIC - 賃料: 35万円























