
| 賃料 | 予想金額:168,000〜188,000円程度 | 管理費 | 予想金額:20,500〜24,500円程度 |
| 礼金/敷金 | 非公開(アーカイブ) | 平米数 | 56.88㎡ |
| 初期費用概算(参考) | 目安:698,250〜798,250 円 | みなし賃料(月額・参考) | 202,380〜222,380 円 |
| 備考 | 本ページは過去募集のアーカイブです。表示の金額は周辺相場・過去募集を踏まえた参考レンジであり、実際の契約金額・条件ではありません。 | ||
※上記みなし賃料(月額)は仲介手数料割引・無料&キャッシュバックを加味した高級賃貸バイブル限定の金額です。一般的なみなし賃料とは異なります。
【建物ページ】ガーデンホーム品川シーサイドの詳細・最新空室はこちら▶▶選ばれる理由
仲介手数料無料・キャンペーン情報(毎月15名様限定)
〇仲介手数料割引キャンペーン
ガーデンホーム品川シーサイド 1003の口コミ・レビュー
ガーデンホーム品川シーサイド 1003。あなたの日常の舞台となるこの特別な場所は、まるで静かな物語の始まりを告げるかのように、穏やかな風が吹き抜ける南東と北東の角部屋から、日々の喧騒を優しく包み込みます。56.88㎡の空間は、まるで絵画のキャンバスのよう。その中に広がるのは、心に安らぎを与える静寂と、温もりを感じる色彩に満ちた生活の想像です。
暮らしの中で、ガーデンホーム品川シーサイド 1003…ガーデンホーム品川シーサイド 1003。あなたの日常の舞台となるこの特別な場所は、まるで静かな物語の始まりを告げるかのように、穏やかな風が吹き抜ける南東と北東の角部屋から、日々の喧騒を優しく包み込みます。56.88㎡の空間は、まるで絵画のキャンバスのよう。その中に広がるのは、心に安らぎを与える静寂と、温もりを感じる色彩に満ちた生活の想像です。
暮らしの中で、ガーデンホーム品川シーサイド 1003は、まるで懐の深い友人のように、あなたを迎え入れてくれます。リビング・ダイニング・キッチンは8.7帖の広さを誇り、あなたのアイデアを具現化する場所です。ここで、愛する人々と共に笑い声を響かせ、ゆったりとしたブランチを楽しむことができるのです。その料理の香ばしい匂いが、思い出の扉を開いていくことでしょう。
各洋室も、それぞれの独自の個性を持ち、自分だけの隠れ家のよう。6.7帖の洋室は、心を整える場所として、優雅なインテリアとともに心地よい静けさを与えます。5帖の洋室は、自由の象徴。創造力をかき立てる仕事場や、ただの休息スペースとしても活躍してくれるでしょう。
ガーデンホーム品川シーサイド 1003には、エレガントなモダンさが漂います。TVモニターホンやオートロックといった先進的な設備が、安心で快適な暮らしを提供し、宅配ボックスが生活の合理さを高めてくれます。これらの便利さは、物語をより豊かにするための道具。管理人の存在も安心の要素として、日々の暮らしをさりげなく支えてくれるのです。
そして、何よりも素敵なのは、この場所が持つ周辺の文化と歴史。品川の海に近いという特性は、古くからの港町の魅力と現代的なエネルギーが融合した、ユニークな体験をあなたに提供します。海のさざ波の音が聞こえ、潮の香りがあなたを包む。散策するたびに新たな発見があり、歩みを進めるごとに心が躍ります。
ガーデンホーム品川シーサイド 1003は、あなたにとっての新たな出発点。この家は、ただの住まいではなく、生活の舞台です。ここでの毎日は、映画のワンシーンのように演出され、あなたの物語を豊かに彩ることでしょう。さあ、新たな生活をこの場所で始めてみてはいかがでしょうか。あなたの心の中に、永遠に広がる物語が待っています。
暮らしの中で、ガーデンホーム品川シーサイド 1003…ガーデンホーム品川シーサイド 1003。あなたの日常の舞台となるこの特別な場所は、まるで静かな物語の始まりを告げるかのように、穏やかな風が吹き抜ける南東と北東の角部屋から、日々の喧騒を優しく包み込みます。56.88㎡の空間は、まるで絵画のキャンバスのよう。その中に広がるのは、心に安らぎを与える静寂と、温もりを感じる色彩に満ちた生活の想像です。
暮らしの中で、ガーデンホーム品川シーサイド 1003は、まるで懐の深い友人のように、あなたを迎え入れてくれます。リビング・ダイニング・キッチンは8.7帖の広さを誇り、あなたのアイデアを具現化する場所です。ここで、愛する人々と共に笑い声を響かせ、ゆったりとしたブランチを楽しむことができるのです。その料理の香ばしい匂いが、思い出の扉を開いていくことでしょう。
各洋室も、それぞれの独自の個性を持ち、自分だけの隠れ家のよう。6.7帖の洋室は、心を整える場所として、優雅なインテリアとともに心地よい静けさを与えます。5帖の洋室は、自由の象徴。創造力をかき立てる仕事場や、ただの休息スペースとしても活躍してくれるでしょう。
ガーデンホーム品川シーサイド 1003には、エレガントなモダンさが漂います。TVモニターホンやオートロックといった先進的な設備が、安心で快適な暮らしを提供し、宅配ボックスが生活の合理さを高めてくれます。これらの便利さは、物語をより豊かにするための道具。管理人の存在も安心の要素として、日々の暮らしをさりげなく支えてくれるのです。
そして、何よりも素敵なのは、この場所が持つ周辺の文化と歴史。品川の海に近いという特性は、古くからの港町の魅力と現代的なエネルギーが融合した、ユニークな体験をあなたに提供します。海のさざ波の音が聞こえ、潮の香りがあなたを包む。散策するたびに新たな発見があり、歩みを進めるごとに心が躍ります。
ガーデンホーム品川シーサイド 1003は、あなたにとっての新たな出発点。この家は、ただの住まいではなく、生活の舞台です。ここでの毎日は、映画のワンシーンのように演出され、あなたの物語を豊かに彩ることでしょう。さあ、新たな生活をこの場所で始めてみてはいかがでしょうか。あなたの心の中に、永遠に広がる物語が待っています。
バイブルスコア
バイブルスコア: 21.4
平均的なスコアです。
※バイブルスコア詳細はこちら
バイブルスコアとは独自のAI機械学習技術を利用した物件評価システムで、物件のおすすめ度を示します。最高得点は100点で、スコアが高いほど、よりおすすめの物件と評価されています。
写真
現在写真が登録されていません契約条件
| 賃料 | 予想金額:168,000〜188,000円程度 | 管理費 | 予想金額:20,500〜24,500円程度 |
| 礼金 | 非公開(アーカイブ) | 敷金 | 非公開(アーカイブ) |
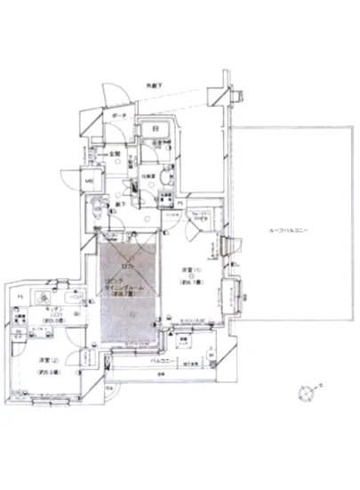
| フリーレント | なし | 平米数 | 56.88㎡ |
| 間取り | 2LDK | 大型収納 | WIC+LOFT |
| 契約期間 |
| 方角 | 南東 / 北東 |
| 更新料 | 契約形態 | 普通賃貸借契約 | |
| 取引態様 | 媒介 | 内見状況 | 入居中 |
| 入居時期 | 入居中 | SOHO・事務所 | |
| ペット | 間取り内訳 | 洋:6.7 洋:5 LD:8.7 K:3 | |
| キャンペーン情報・備考 | 本情報は賃料改定交渉の資料作成、収益物件の利回り試算、周辺エリアや最寄り駅の坪単価分析、次回募集開始時期の予測などにご活用いただけます。 | ||
※「どの不動産に頼めばいいのか分からない」「信頼できる営業マンの話を聞きたい」「一番親切な会社と契約したい」とお悩みの方におすすめなのが「高級賃貸バイブル」です。
高級賃貸バイブルは業界10年以上の熟練スタッフ群がお客様ファーストで対応します。
下記ボタンから、まずは無料でご相談下さい。
※内覧をご希望の際には、どうぞ物件のエントランス前にてお待ち合わせくださいませ。ご内覧後は、同じ場所でお別れとさせていただきます。お客様のご都合に合わせたスムーズなご案内を心がけておりますので、ご質問等がございましたら何なりとお申し付けください。 物件概要
| 物件名 |
| 築年月 |
|
|---|---|---|---|
| 所在地 | |||
| 交通 | |||
| 総戸数 |
| 総階数 |
|
| 構造 |
| ||
地図
物件までの道のりは、「拡大地図を表示」をクリックしてナビ機能をご利用ください。
部屋設備

















建物設備

TVモニターホン

エレベーター

オートロック

宅配ボックス

敷地内ゴミ置場

管理人

駐輪場
ガーデンホーム品川シーサイドの現在募集中のお部屋
- No rooms found for this property.
