
| 賃料 | 予想金額:81,000〜101,000円程度 | 管理費 | 予想金額:8,000〜12,000円程度 |
| 礼金/敷金 | 非公開(アーカイブ) | 平米数 | 28.58㎡ |
| 初期費用概算(参考) | 目安:375,000〜475,000 円 | みなし賃料(月額・参考) | 97,958〜117,958 円 |
| 備考 | 本ページは過去募集のアーカイブです。表示の金額は周辺相場・過去募集を踏まえた参考レンジであり、実際の契約金額・条件ではありません。 | ||
※上記みなし賃料(月額)は仲介手数料割引・無料&キャッシュバックを加味した高級賃貸バイブル限定の金額です。一般的なみなし賃料とは異なります。
【建物ページ】ミレーネ品川荏原の詳細・最新空室はこちら▶▶選ばれる理由
仲介手数料無料・キャンペーン情報(毎月15名様限定)
〇仲介手数料割引キャンペーン
ミレーネ品川荏原 404の口コミ・レビュー
ミレーネ品川荏原 404。ここは、東京都品川区荏原6-19-15に佇む洗練された空間であり、まるで現代的なアートの一部のように、あなたを待ち望んでいます。この特別な一室は、南東と南西に広がる光の道の中で、あなたの居住空間をより美しく彩ることでしょう。
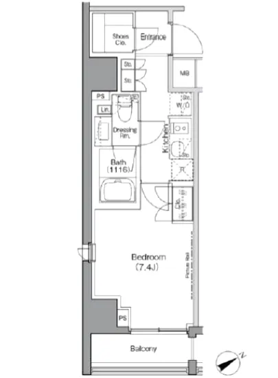
このミレーネ品川荏原 404は、28.58㎡の広さに、生活の優雅さと機能性を巧みに融合させた、1Kの理想的な間取りを提供します。7.4帖の洋室は、…ミレーネ品川荏原 404。ここは、東京都品川区荏原6-19-15に佇む洗練された空間であり、まるで現代的なアートの一部のように、あなたを待ち望んでいます。この特別な一室は、南東と南西に広がる光の道の中で、あなたの居住空間をより美しく彩ることでしょう。
このミレーネ品川荏原 404は、28.58㎡の広さに、生活の優雅さと機能性を巧みに融合させた、1Kの理想的な間取りを提供します。7.4帖の洋室は、まるで夢を吸い込むキャンバスのように、あなたの一日の物語を描き出すための場所です。静かで落ち着いた色合いの壁が、心地よい安らぎを与え、足元には柔らかなカーペットが広がり、まるで雲の上にいるような感覚さえ覚えることでしょう。
ここに住まうあなたは、朝日が窓から差し込む瞬間、優しい光が部屋を包み込むのを感じることができるでしょう。コーヒーの香りが漂うキッチンで、朝食を準備する際の静寂は、まるで映画のワンシーンのようであり、あなたの心を満たします。その際、ミレーネ品川荏原 404のエレガントなテレビモニターホンやオートロック設備が、セキュリティと安心を提供しますので、心配することはありません。
夕暮れが訪れると、南西の窓から夕日が差し込み、オレンジ色の光が部屋全体を優しく照らします。あなたはソファに腰を下ろし、目の前の風景に心を奪われ、まるで世界の喧騒から解放されたような瞬間を楽しむことでしょう。窓を開けると、外からは心地よい風が舞い込み、遠くの公園からは子供たちの笑い声が響き渡り、生活のリズムを感じることができます。
そして、ミレーネ品川荏原 404の魅力は、単なる設備にとどまりません。敷地内には管理人が常駐し、宅配ボックスも完備されているため、あなたは安心して日常を楽しむことができるのです。また、近くには荏原中延駅があり、東京急行電鉄東急池上線へのアクセスも良好。忙しい日常の中でも、心地よい余裕をもたらしてくれる立地です。
ここでの生活は、すぐそばの歴史的な文化とも深く結びついています。周辺には、古き良き日本の風情が残る街並みが広がり、散歩を楽しむことで、心の栄養を得ることができるでしょう。全てが、ミレーネ品川荏原 404での暮らしを一層特別なものにしてくれます。
この空間は、あなたの暮らしを映画のように演出するための舞台なのです。ぜひ、ミレーネ品川荏原 404で、あなた自身のストーリーを紡いでみてはいかがでしょうか。あなたを迎え入れる準備は、ここで整っています。
このミレーネ品川荏原 404は、28.58㎡の広さに、生活の優雅さと機能性を巧みに融合させた、1Kの理想的な間取りを提供します。7.4帖の洋室は、…ミレーネ品川荏原 404。ここは、東京都品川区荏原6-19-15に佇む洗練された空間であり、まるで現代的なアートの一部のように、あなたを待ち望んでいます。この特別な一室は、南東と南西に広がる光の道の中で、あなたの居住空間をより美しく彩ることでしょう。
このミレーネ品川荏原 404は、28.58㎡の広さに、生活の優雅さと機能性を巧みに融合させた、1Kの理想的な間取りを提供します。7.4帖の洋室は、まるで夢を吸い込むキャンバスのように、あなたの一日の物語を描き出すための場所です。静かで落ち着いた色合いの壁が、心地よい安らぎを与え、足元には柔らかなカーペットが広がり、まるで雲の上にいるような感覚さえ覚えることでしょう。
ここに住まうあなたは、朝日が窓から差し込む瞬間、優しい光が部屋を包み込むのを感じることができるでしょう。コーヒーの香りが漂うキッチンで、朝食を準備する際の静寂は、まるで映画のワンシーンのようであり、あなたの心を満たします。その際、ミレーネ品川荏原 404のエレガントなテレビモニターホンやオートロック設備が、セキュリティと安心を提供しますので、心配することはありません。
夕暮れが訪れると、南西の窓から夕日が差し込み、オレンジ色の光が部屋全体を優しく照らします。あなたはソファに腰を下ろし、目の前の風景に心を奪われ、まるで世界の喧騒から解放されたような瞬間を楽しむことでしょう。窓を開けると、外からは心地よい風が舞い込み、遠くの公園からは子供たちの笑い声が響き渡り、生活のリズムを感じることができます。
そして、ミレーネ品川荏原 404の魅力は、単なる設備にとどまりません。敷地内には管理人が常駐し、宅配ボックスも完備されているため、あなたは安心して日常を楽しむことができるのです。また、近くには荏原中延駅があり、東京急行電鉄東急池上線へのアクセスも良好。忙しい日常の中でも、心地よい余裕をもたらしてくれる立地です。
ここでの生活は、すぐそばの歴史的な文化とも深く結びついています。周辺には、古き良き日本の風情が残る街並みが広がり、散歩を楽しむことで、心の栄養を得ることができるでしょう。全てが、ミレーネ品川荏原 404での暮らしを一層特別なものにしてくれます。
この空間は、あなたの暮らしを映画のように演出するための舞台なのです。ぜひ、ミレーネ品川荏原 404で、あなた自身のストーリーを紡いでみてはいかがでしょうか。あなたを迎え入れる準備は、ここで整っています。
バイブルスコア
バイブルスコア: 36.8
平均的なスコアです。
※バイブルスコア詳細はこちら
バイブルスコアとは独自のAI機械学習技術を利用した物件評価システムで、物件のおすすめ度を示します。最高得点は100点で、スコアが高いほど、よりおすすめの物件と評価されています。
写真
現在写真が登録されていません契約条件
| 賃料 | 予想金額:81,000〜101,000円程度 | 管理費 | 予想金額:8,000〜12,000円程度 |
| 礼金 | 非公開(アーカイブ) | 敷金 | 非公開(アーカイブ) |
| フリーレント | なし | 平米数 | 28.58㎡ |
| 間取り | 1K | 大型収納 | SIC |
| 契約期間 |
| 方角 | 南東 / 南西 |
| 更新料 | 契約形態 | 普通賃貸借契約 | |
| 取引態様 | 媒介 | 内見状況 | 入居中 |
| 入居時期 | 入居中 | SOHO・事務所 | 事務所(SOHO)可 |
| ペット | ペット可 | 間取り内訳 | 洋:7.4 |
| キャンペーン情報・備考 | 本情報は賃料改定交渉の資料作成、収益物件の利回り試算、周辺エリアや最寄り駅の坪単価分析、次回募集開始時期の予測などにご活用いただけます。 | ||
※「どの不動産に頼めばいいのか分からない」「信頼できる営業マンの話を聞きたい」「一番親切な会社と契約したい」とお悩みの方におすすめなのが「高級賃貸バイブル」です。
高級賃貸バイブルは業界10年以上の熟練スタッフ群がお客様ファーストで対応します。
下記ボタンから、まずは無料でご相談下さい。
※内覧をご希望の際には、どうぞ物件のエントランス前にてお待ち合わせくださいませ。ご内覧後は、同じ場所でお別れとさせていただきます。お客様のご都合に合わせたスムーズなご案内を心がけておりますので、ご質問等がございましたら何なりとお申し付けください。 物件概要
| 物件名 |
| 築年月 |
|
|---|---|---|---|
| 所在地 | |||
| 交通 | |||
| 総戸数 |
| 総階数 |
|
| 構造 |
| ||
地図
物件までの道のりは、「拡大地図を表示」をクリックしてナビ機能をご利用ください。
部屋設備
















建物設備

TVモニターホン

エレベーター

オートロック

宅配ボックス

敷地内ゴミ置場

管理人

駐輪場
ミレーネ品川荏原の現在募集中のお部屋
- No rooms found for this property.
