
| 賃料 | 予想金額:180,000〜200,000円程度 | 管理費 | 予想金額:8,000〜12,000円程度 |
| 礼金/敷金 | 非公開(アーカイブ) | 平米数 | 51.25㎡ |
| 初期費用概算(参考) | 目安:721,500〜821,500 円 | みなし賃料(月額・参考) | 202,115〜222,115 円 |
| 備考 | 本ページは過去募集のアーカイブです。表示の金額は周辺相場・過去募集を踏まえた参考レンジであり、実際の契約金額・条件ではありません。 | ||
※上記みなし賃料(月額)は仲介手数料割引・無料&キャッシュバックを加味した高級賃貸バイブル限定の金額です。一般的なみなし賃料とは異なります。
【建物ページ】朝日サテライト六本木の詳細・最新空室はこちら▶▶選ばれる理由
仲介手数料無料・キャンペーン情報(毎月15名様限定)
〇仲介手数料割引キャンペーン
朝日サテライト六本木 603の口コミ・レビュー
朝日サテライト六本木 603。ここは、ただの住まいではなく、都会の喧騒から少し離れた静寂のオアシスです。東京都港区六本木3-17-12という特別な場所に、あなたの新たな物語の舞台が広がっています。南東を向いて、朝日が差し込むその瞬間、あなたの心もまた新たに光り輝くことでしょう。
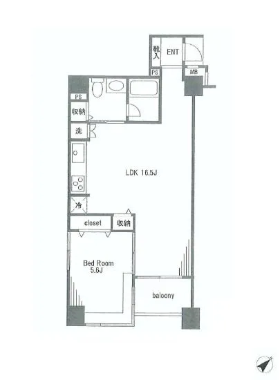
この603号室は、単なる間取り以上のものを提供します。51.25㎡の広がりを持つ1LDKは、まさに生活そのものがアート…朝日サテライト六本木 603。ここは、ただの住まいではなく、都会の喧騒から少し離れた静寂のオアシスです。東京都港区六本木3-17-12という特別な場所に、あなたの新たな物語の舞台が広がっています。南東を向いて、朝日が差し込むその瞬間、あなたの心もまた新たに光り輝くことでしょう。
この603号室は、単なる間取り以上のものを提供します。51.25㎡の広がりを持つ1LDKは、まさに生活そのものがアート。リビングダイニングキッチン(LDK)は、16.5帖の広さを誇り、あなたのクリエイティブな時間を存分に楽しむためのキャンバスです。ここには、日々の喧騒や複雑な日常を忘れさせてくれる、穏やかな空気が流れています。大きな窓からは、朝の光が優しく差し込み、柔らかな光がインテリアに溶け込む様子は、まるで絵画のようです。
あなたがキッチンに立つと、その場所はまるで魔法のように変化します。料理の香りが漂い、ハーブとスパイスの生命力が弾ける瞬間。家族や友人たちとの食卓を囲む姿が目に浮かんで、心が踊ります。夕暮れ時、6帖の洋室は、静けさの中で心を落ち着けるプライベート空間としての役割を果たします。心地よい寝具に包まれ、穏やかな眠りに身を委ねると、まるで世界の喧騒が遠くに消えてしまったかのよう。星が瞬く夜空に包まれた、この部屋はまさに夢の中の舞台です。
朝日サテライト六本木の特筆すべき点は、ただの設備ではありません。TVモニターホン、エレベーター、オートロック、宅配ボックス、駐車場平置き、駐輪場が揃い、あなたの生活を一層便利で快適にしてくれます。これらの設備は、まるで大切な仲間のように、あなたをしっかりとサポートします。
また、この立地は文化と芸術の交差点でもあります。六本木の豊かな歴史と現代アートが交じり合う空間の中で、数々の美術館やギャラリーがあなたを待っています。街を歩けば、アートの息吹を感じ、心が豊かになり、毎日が新たな発見の連続です。六本木駅からわずか徒歩7分という至便な距離も、あなたの心躍る冒険を後押しするでしょう。
朝日サテライト六本木 603は、あなたの人生の舞台を彩る新たなパートナー。ここに住むことは、ただの暮らしを超え、心の豊かさを追求すること。優雅な日々が、あなたを待っています。この特別な場所で、新たな物語を織り成してみませんか?
この603号室は、単なる間取り以上のものを提供します。51.25㎡の広がりを持つ1LDKは、まさに生活そのものがアート…朝日サテライト六本木 603。ここは、ただの住まいではなく、都会の喧騒から少し離れた静寂のオアシスです。東京都港区六本木3-17-12という特別な場所に、あなたの新たな物語の舞台が広がっています。南東を向いて、朝日が差し込むその瞬間、あなたの心もまた新たに光り輝くことでしょう。
この603号室は、単なる間取り以上のものを提供します。51.25㎡の広がりを持つ1LDKは、まさに生活そのものがアート。リビングダイニングキッチン(LDK)は、16.5帖の広さを誇り、あなたのクリエイティブな時間を存分に楽しむためのキャンバスです。ここには、日々の喧騒や複雑な日常を忘れさせてくれる、穏やかな空気が流れています。大きな窓からは、朝の光が優しく差し込み、柔らかな光がインテリアに溶け込む様子は、まるで絵画のようです。
あなたがキッチンに立つと、その場所はまるで魔法のように変化します。料理の香りが漂い、ハーブとスパイスの生命力が弾ける瞬間。家族や友人たちとの食卓を囲む姿が目に浮かんで、心が踊ります。夕暮れ時、6帖の洋室は、静けさの中で心を落ち着けるプライベート空間としての役割を果たします。心地よい寝具に包まれ、穏やかな眠りに身を委ねると、まるで世界の喧騒が遠くに消えてしまったかのよう。星が瞬く夜空に包まれた、この部屋はまさに夢の中の舞台です。
朝日サテライト六本木の特筆すべき点は、ただの設備ではありません。TVモニターホン、エレベーター、オートロック、宅配ボックス、駐車場平置き、駐輪場が揃い、あなたの生活を一層便利で快適にしてくれます。これらの設備は、まるで大切な仲間のように、あなたをしっかりとサポートします。
また、この立地は文化と芸術の交差点でもあります。六本木の豊かな歴史と現代アートが交じり合う空間の中で、数々の美術館やギャラリーがあなたを待っています。街を歩けば、アートの息吹を感じ、心が豊かになり、毎日が新たな発見の連続です。六本木駅からわずか徒歩7分という至便な距離も、あなたの心躍る冒険を後押しするでしょう。
朝日サテライト六本木 603は、あなたの人生の舞台を彩る新たなパートナー。ここに住むことは、ただの暮らしを超え、心の豊かさを追求すること。優雅な日々が、あなたを待っています。この特別な場所で、新たな物語を織り成してみませんか?
バイブルスコア
バイブルスコア: 50.5
条件のいい物件です、引っ越しが2か月以内の場合は仮申し込みを検討すべき物件です。
このお部屋は、現在ご入居中のため空室情報はございません。ただし、将来的に募集が開始される際、バイブルスコアにおいて非常に高い評価が期待されます。特にご興味をお持ちの方は、今のうちにブックマークやお気に入りに登録していただくと、募集開始のお知らせをすぐに受け取ることができます。是非ともご検討くださいませ。
※バイブルスコア詳細はこちら
バイブルスコアとは独自のAI機械学習技術を利用した物件評価システムで、物件のおすすめ度を示します。最高得点は100点で、スコアが高いほど、よりおすすめの物件と評価されています。
写真
契約条件
| 賃料 | 予想金額:180,000〜200,000円程度 | 管理費 | 予想金額:8,000〜12,000円程度 |
| 礼金 | 非公開(アーカイブ) | 敷金 | 非公開(アーカイブ) |
| フリーレント | なし | 平米数 | 51.25㎡ |
| 間取り | 1LDK | 大型収納 | |
| 契約期間 |
| 方角 | 南東 |
| 更新料 | 契約形態 | 普通賃貸借契約 | |
| 取引態様 | 媒介 | 内見状況 | 入居中 |
| 入居時期 | 入居中 | SOHO・事務所 | |
| ペット | 間取り内訳 | 洋:5.6 LDK:16.5 | |
| キャンペーン情報・備考 | 本情報は賃料改定交渉の資料作成、収益物件の利回り試算、周辺エリアや最寄り駅の坪単価分析、次回募集開始時期の予測などにご活用いただけます。 | ||
※「どの不動産に頼めばいいのか分からない」「信頼できる営業マンの話を聞きたい」「一番親切な会社と契約したい」とお悩みの方におすすめなのが「高級賃貸バイブル」です。
高級賃貸バイブルは業界10年以上の熟練スタッフ群がお客様ファーストで対応します。
下記ボタンから、まずは無料でご相談下さい。
※内覧をご希望の際には、どうぞ物件のエントランス前にてお待ち合わせくださいませ。ご内覧後は、同じ場所でお別れとさせていただきます。お客様のご都合に合わせたスムーズなご案内を心がけておりますので、ご質問等がございましたら何なりとお申し付けください。 物件概要
| 物件名 |
| 築年月 |
|
|---|---|---|---|
| 所在地 | |||
| 交通 | |||
| 総戸数 |
| 総階数 |
|
| 構造 |
| ||
地図
物件までの道のりは、「拡大地図を表示」をクリックしてナビ機能をご利用ください。
部屋設備
















建物設備

TVモニターホン

エレベーター

オートロック

宅配ボックス

敷地内ゴミ置場

駐車場平置き

駐輪場
朝日サテライト六本木の現在募集中のお部屋
- 朝日サテライト六本木 104 - 間取り: 1LDK+WIC - 賃料: 38万円




















