
| 賃料 | 予想金額:675,000〜695,000円程度 | 管理費 | 予想金額:0〜2,000円程度 |
| 礼金/敷金 | 非公開(アーカイブ) | 平米数 | 113.5㎡ |
| 初期費用概算(参考) | 目安:3,124,000〜3,224,000 円 | みなし賃料(月額・参考) | 726,854〜746,854 円 |
| 備考 | 本ページは過去募集のアーカイブです。表示の金額は周辺相場・過去募集を踏まえた参考レンジであり、実際の契約金額・条件ではありません。 | ||
※上記みなし賃料(月額)は仲介手数料割引・無料&キャッシュバックを加味した高級賃貸バイブル限定の金額です。一般的なみなし賃料とは異なります。
【建物ページ】ラ・トゥール千代田富士見の詳細・最新空室はこちら▶▶選ばれる理由
仲介手数料無料・キャンペーン情報(毎月15名様限定)
〇仲介手数料割引キャンペーン
ラ・トゥール千代田富士見 1102の口コミ・レビュー
ラ・トゥール千代田富士見 1102。この名前を耳にするたび、まるで優雅な楽曲のように心が躍り、期待に胸が高鳴ります。この高級賃貸物件は、東京都千代田区富士見の中心に、南に向かって優美に広がり、洗練されたライフスタイルを求めるあなたを迎え入れます。
入ってすぐ、広々としたLDK20.1帖は、まるで一枚の絵画のように、美しい風景が広がります。大きな窓からは、朝日がやさしく差し込み、心地よい光が部屋を…ラ・トゥール千代田富士見 1102。この名前を耳にするたび、まるで優雅な楽曲のように心が躍り、期待に胸が高鳴ります。この高級賃貸物件は、東京都千代田区富士見の中心に、南に向かって優美に広がり、洗練されたライフスタイルを求めるあなたを迎え入れます。
入ってすぐ、広々としたLDK20.1帖は、まるで一枚の絵画のように、美しい風景が広がります。大きな窓からは、朝日がやさしく差し込み、心地よい光が部屋を包み込みます。床に足を踏み入れると、温かな木材の感触があなたを優しく包み、柔らかな香りがふわりと漂います。香りは、朝のコーヒーが煎られる時のように、ほのかに甘く、心を安らげるものです。その横には、6.4帖のキッチンが広がり、料理をするたびに五感が刺激されることでしょう。食材が切られる音、湯気が立ち上がる香り、そして、食材が熱される際の音楽のようなシズル感。料理が完成する頃には、まるであなた自身がシェフになったかのような達成感に満たされます。
そして、寝室は12.7帖と10.1帖の2つを持ち、心地よい眠りへと誘います。夜になれば、柔らかなシーツに包まれ、静けさの中に包まれるのです。月明かりが窓から入り、まるで夢のような光景。ベッドに身を投じる楽しみは、この空間にしかない特別なもの。日々の疲れを癒し、新たなエネルギーで満たされることでしょう。
ラ・トゥール千代田富士見 1102は、ただの物件ではありません。まるで一人の友人のように、あなたを見守り、快適さを提供します。24時間管理される安心感、オートロックの堅牢さ、デザイナーズ仕様の内装は、全てがあなたの生活を豊かに彩ります。フィットネスルームで身体を動かすひととき、フロントサービスでの心温まる接客、宅配ボックスの便利さは、忙しい日常をさらにスムーズにすることでしょう。
このマンションはまた、東京メトロ東西線飯田橋駅から徒歩3分という好立地も魅力の一つです。周辺には歴史ある文化施設が点在し、まるで時を超えた旅に出ているかのよう。伝統と現代が交差する街並みは、日々の散歩の中で新しい発見をもたらし、心を豊かにします。
ラ・トゥール千代田富士見 1102での生活は、まるで映画の一幕を生きるかのような体験。自分だけの人生のシーンを演じる舞台がここにはあります。その一歩を踏み出す勇気は、きっとあなたに新しい可能性を開いてくれることでしょう。この特別な場所で、新たな物語を紡ぎ始めてみませんか。あなたを待っているのは、ただの住まいではなく、心温まる生活という最高の舞台です。
入ってすぐ、広々としたLDK20.1帖は、まるで一枚の絵画のように、美しい風景が広がります。大きな窓からは、朝日がやさしく差し込み、心地よい光が部屋を…ラ・トゥール千代田富士見 1102。この名前を耳にするたび、まるで優雅な楽曲のように心が躍り、期待に胸が高鳴ります。この高級賃貸物件は、東京都千代田区富士見の中心に、南に向かって優美に広がり、洗練されたライフスタイルを求めるあなたを迎え入れます。
入ってすぐ、広々としたLDK20.1帖は、まるで一枚の絵画のように、美しい風景が広がります。大きな窓からは、朝日がやさしく差し込み、心地よい光が部屋を包み込みます。床に足を踏み入れると、温かな木材の感触があなたを優しく包み、柔らかな香りがふわりと漂います。香りは、朝のコーヒーが煎られる時のように、ほのかに甘く、心を安らげるものです。その横には、6.4帖のキッチンが広がり、料理をするたびに五感が刺激されることでしょう。食材が切られる音、湯気が立ち上がる香り、そして、食材が熱される際の音楽のようなシズル感。料理が完成する頃には、まるであなた自身がシェフになったかのような達成感に満たされます。
そして、寝室は12.7帖と10.1帖の2つを持ち、心地よい眠りへと誘います。夜になれば、柔らかなシーツに包まれ、静けさの中に包まれるのです。月明かりが窓から入り、まるで夢のような光景。ベッドに身を投じる楽しみは、この空間にしかない特別なもの。日々の疲れを癒し、新たなエネルギーで満たされることでしょう。
ラ・トゥール千代田富士見 1102は、ただの物件ではありません。まるで一人の友人のように、あなたを見守り、快適さを提供します。24時間管理される安心感、オートロックの堅牢さ、デザイナーズ仕様の内装は、全てがあなたの生活を豊かに彩ります。フィットネスルームで身体を動かすひととき、フロントサービスでの心温まる接客、宅配ボックスの便利さは、忙しい日常をさらにスムーズにすることでしょう。
このマンションはまた、東京メトロ東西線飯田橋駅から徒歩3分という好立地も魅力の一つです。周辺には歴史ある文化施設が点在し、まるで時を超えた旅に出ているかのよう。伝統と現代が交差する街並みは、日々の散歩の中で新しい発見をもたらし、心を豊かにします。
ラ・トゥール千代田富士見 1102での生活は、まるで映画の一幕を生きるかのような体験。自分だけの人生のシーンを演じる舞台がここにはあります。その一歩を踏み出す勇気は、きっとあなたに新しい可能性を開いてくれることでしょう。この特別な場所で、新たな物語を紡ぎ始めてみませんか。あなたを待っているのは、ただの住まいではなく、心温まる生活という最高の舞台です。
バイブルスコア
バイブルスコア: 31
平均的なスコアです。
※バイブルスコア詳細はこちら
バイブルスコアとは独自のAI機械学習技術を利用した物件評価システムで、物件のおすすめ度を示します。最高得点は100点で、スコアが高いほど、よりおすすめの物件と評価されています。
写真
現在写真が登録されていません契約条件
| 賃料 | 予想金額:675,000〜695,000円程度 | 管理費 | 予想金額:0〜2,000円程度 |
| 礼金 | 非公開(アーカイブ) | 敷金 | 非公開(アーカイブ) |
| フリーレント | なし | 平米数 | 113.5㎡ |
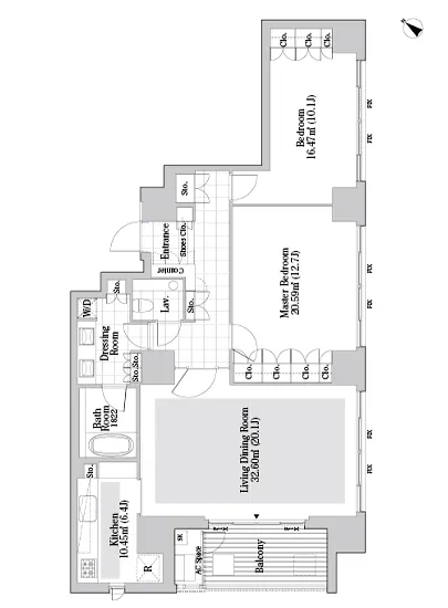
| 間取り | 2LDK | 大型収納 | |
| 契約期間 | 方角 | 南 | |
| 更新料 | 契約形態 | 定期借家契約 | |
| 取引態様 | 媒介 | 内見状況 | 入居中 |
| 入居時期 | 入居中 | SOHO・事務所 | |
| ペット | ペット可 | 間取り内訳 | LD=20.1J / K=6.4J / BR=12.7J / BR=10.1J |
| キャンペーン情報・備考 | 本情報は賃料改定交渉の資料作成、収益物件の利回り試算、周辺エリアや最寄り駅の坪単価分析、次回募集開始時期の予測などにご活用いただけます。 | ||
※「どの不動産に頼めばいいのか分からない」「信頼できる営業マンの話を聞きたい」「一番親切な会社と契約したい」とお悩みの方におすすめなのが「高級賃貸バイブル」です。
高級賃貸バイブルは業界10年以上の熟練スタッフ群がお客様ファーストで対応します。
下記ボタンから、まずは無料でご相談下さい。
※内覧をご希望の際には、どうぞ物件のエントランス前にてお待ち合わせくださいませ。ご内覧後は、同じ場所でお別れとさせていただきます。お客様のご都合に合わせたスムーズなご案内を心がけておりますので、ご質問等がございましたら何なりとお申し付けください。 物件概要
| 物件名 |
| 築年月 |
|
|---|---|---|---|
| 所在地 | |||
| 交通 | |||
| 総戸数 |
| 総階数 |
|
| 構造 |
| ||
地図
物件までの道のりは、「拡大地図を表示」をクリックしてナビ機能をご利用ください。
部屋設備



















建物設備

24時間管理

TVモニターホン

エレベーター

オートロック

バイク置場

フィットネス

フロントサービス

宅配ボックス

敷地内ゴミ置場

駐車場機械式

駐輪場
ラ・トゥール千代田富士見の現在募集中のお部屋
- No rooms found for this property.
