
| 賃料 | 予想金額:150,000〜170,000円程度 | 管理費 | 予想金額:10,000〜14,000円程度 |
| 礼金/敷金 | 非公開(アーカイブ) | 平米数 | 40.66㎡ |
| 初期費用概算(参考) | 目安:459,500〜559,500 円 | みなし賃料(月額・参考) | 169,281〜189,281 円 |
| 備考 | 本ページは過去募集のアーカイブです。表示の金額は周辺相場・過去募集を踏まえた参考レンジであり、実際の契約金額・条件ではありません。 | ||
※上記みなし賃料(月額)は仲介手数料割引・無料&キャッシュバックを加味した高級賃貸バイブル限定の金額です。一般的なみなし賃料とは異なります。
【建物ページ】アイディ日本橋水天宮の詳細・最新空室はこちら▶▶選ばれる理由
仲介手数料無料・キャンペーン情報(毎月15名様限定)
〇仲介手数料割引キャンペーン
アイディ日本橋水天宮 702の口コミ・レビュー
アイディ日本橋水天宮 702。そっと扉を開ければ、そこには貴女(あなた)だけの特別な世界が広がっています。北東の陽光が柔らかく差し込み、10.7帖のLDKはまるで心地よいカフェのように、温もりで包み込まれます。ここで過ごす時間は、まるで一幕の映画のように、感情を豊かにする瞬間を運んできます。
毎朝、目覚めた瞬間から新たな一日が始まる。5帖の洋室は、安らぎのオアシスとして貴女を招き入れ、静かな時間…アイディ日本橋水天宮 702。そっと扉を開ければ、そこには貴女(あなた)だけの特別な世界が広がっています。北東の陽光が柔らかく差し込み、10.7帖のLDKはまるで心地よいカフェのように、温もりで包み込まれます。ここで過ごす時間は、まるで一幕の映画のように、感情を豊かにする瞬間を運んできます。
毎朝、目覚めた瞬間から新たな一日が始まる。5帖の洋室は、安らぎのオアシスとして貴女を招き入れ、静かな時間に寄り添います。窓の外からは、日本橋の街並みが生み出す小さな営みの音が、優しく耳に届き、心をほぐしていくのです。大切な朝食の際には、焼きたてのパンの香ばしい香りが満ち、まるで熟練されたシェフがキッチンで腕を振るっているかのような錯覚を覚えます。
アイディ日本橋水天宮 702は、ただの住まいではありません。それは、貴女の人生の舞台装置であり、日々の営みを豊かに彩るアートピースです。デザイナーズの洗練されたデザインは、流行を超えた本物の価値を感じさせ、暮らすたびに新しい発見をもたらします。24時間管理された安心感に包まれ、オートロックで守られた空間は、まるで貴女のプライバシーを宝物のように大切にしてくれます。
時には、お友達を招いて小さなパーティーを開くこともできます。10.7帖のLDKは、ダイニングテーブルを囲み、笑い声が響く場所として完璧です。貴女が用意した料理の一口ごとに友人たちの表情がほころび、その瞬間が永遠に続くかのように感じられることでしょう。
また、宅配ボックスの便利さも、現代の生活をサポートします。忙しい貴女のために、荷物が届くその瞬間を気にする必要はありません。自由な時間が広がり、趣味や仕事に集中することができます。さらに、駐車場や駐輪場も完備され、ストレスフリーな移動を可能にします。
アイディ日本橋水天宮 702は、ただの住まいではなく、貴女の物語の舞台です。歴史ある日本橋の地で、文化や芸術に触れながら、貴女自身の人生を紡いでいくことができる。周囲には古き良き日本の風景と、現代の洗練された魅力が共存し、飽きることのない日々を演出します。
さあ、貴女の新しい生活が、どのような色彩をもって描かれていくのか。アイディ日本橋水天宮 702での暮らしは、まるで夢のような映画の一場面のように、貴女を待っています。心、体、そして生活そのものを豊かにするこの場所で、貴女の人生が真に輝く瞬間を、ぜひ体験してください。
毎朝、目覚めた瞬間から新たな一日が始まる。5帖の洋室は、安らぎのオアシスとして貴女を招き入れ、静かな時間…アイディ日本橋水天宮 702。そっと扉を開ければ、そこには貴女(あなた)だけの特別な世界が広がっています。北東の陽光が柔らかく差し込み、10.7帖のLDKはまるで心地よいカフェのように、温もりで包み込まれます。ここで過ごす時間は、まるで一幕の映画のように、感情を豊かにする瞬間を運んできます。
毎朝、目覚めた瞬間から新たな一日が始まる。5帖の洋室は、安らぎのオアシスとして貴女を招き入れ、静かな時間に寄り添います。窓の外からは、日本橋の街並みが生み出す小さな営みの音が、優しく耳に届き、心をほぐしていくのです。大切な朝食の際には、焼きたてのパンの香ばしい香りが満ち、まるで熟練されたシェフがキッチンで腕を振るっているかのような錯覚を覚えます。
アイディ日本橋水天宮 702は、ただの住まいではありません。それは、貴女の人生の舞台装置であり、日々の営みを豊かに彩るアートピースです。デザイナーズの洗練されたデザインは、流行を超えた本物の価値を感じさせ、暮らすたびに新しい発見をもたらします。24時間管理された安心感に包まれ、オートロックで守られた空間は、まるで貴女のプライバシーを宝物のように大切にしてくれます。
時には、お友達を招いて小さなパーティーを開くこともできます。10.7帖のLDKは、ダイニングテーブルを囲み、笑い声が響く場所として完璧です。貴女が用意した料理の一口ごとに友人たちの表情がほころび、その瞬間が永遠に続くかのように感じられることでしょう。
また、宅配ボックスの便利さも、現代の生活をサポートします。忙しい貴女のために、荷物が届くその瞬間を気にする必要はありません。自由な時間が広がり、趣味や仕事に集中することができます。さらに、駐車場や駐輪場も完備され、ストレスフリーな移動を可能にします。
アイディ日本橋水天宮 702は、ただの住まいではなく、貴女の物語の舞台です。歴史ある日本橋の地で、文化や芸術に触れながら、貴女自身の人生を紡いでいくことができる。周囲には古き良き日本の風景と、現代の洗練された魅力が共存し、飽きることのない日々を演出します。
さあ、貴女の新しい生活が、どのような色彩をもって描かれていくのか。アイディ日本橋水天宮 702での暮らしは、まるで夢のような映画の一場面のように、貴女を待っています。心、体、そして生活そのものを豊かにするこの場所で、貴女の人生が真に輝く瞬間を、ぜひ体験してください。
バイブルスコア
バイブルスコア: 25.4
平均的なスコアです。
※バイブルスコア詳細はこちら
バイブルスコアとは独自のAI機械学習技術を利用した物件評価システムで、物件のおすすめ度を示します。最高得点は100点で、スコアが高いほど、よりおすすめの物件と評価されています。
写真
契約条件
| 賃料 | 予想金額:150,000〜170,000円程度 | 管理費 | 予想金額:10,000〜14,000円程度 |
| 礼金 | 非公開(アーカイブ) | 敷金 | 非公開(アーカイブ) |
| フリーレント | なし | 平米数 | 40.66㎡ |
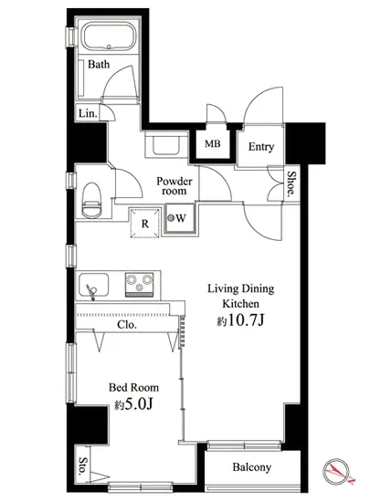
| 間取り | 1LDK | 大型収納 | |
| 契約期間 |
| 方角 | 北東 |
| 更新料 | 契約形態 | 普通賃貸借契約 | |
| 取引態様 | 媒介 | 内見状況 | 入居中 |
| 入居時期 | 入居中 | SOHO・事務所 | |
| ペット | ペット可 | 間取り内訳 | 洋:5 LDK:10.7 |
| キャンペーン情報・備考 | 本情報は賃料改定交渉の資料作成、収益物件の利回り試算、周辺エリアや最寄り駅の坪単価分析、次回募集開始時期の予測などにご活用いただけます。 | ||
※「どの不動産に頼めばいいのか分からない」「信頼できる営業マンの話を聞きたい」「一番親切な会社と契約したい」とお悩みの方におすすめなのが「高級賃貸バイブル」です。
高級賃貸バイブルは業界10年以上の熟練スタッフ群がお客様ファーストで対応します。
下記ボタンから、まずは無料でご相談下さい。
※内覧をご希望の際には、どうぞ物件のエントランス前にてお待ち合わせくださいませ。ご内覧後は、同じ場所でお別れとさせていただきます。お客様のご都合に合わせたスムーズなご案内を心がけておりますので、ご質問等がございましたら何なりとお申し付けください。 物件概要
| 物件名 |
| 築年月 |
|
|---|---|---|---|
| 所在地 | |||
| 交通 | |||
| 総戸数 |
| 総階数 |
|
| 構造 |
| ||
地図
物件までの道のりは、「拡大地図を表示」をクリックしてナビ機能をご利用ください。
部屋設備
















建物設備

24時間管理

TVモニターホン

エレベーター

オートロック

宅配ボックス

敷地内ゴミ置場

管理人

駐車場平置き

駐輪場
アイディ日本橋水天宮の現在募集中のお部屋
- No rooms found for this property.

























