
| 賃料 | 予想金額:330,000〜350,000円程度 | 管理費 | 予想金額:0〜2,000円程度 |
| 礼金/敷金 | 非公開(アーカイブ) | 平米数 | 70.85㎡ |
| 初期費用概算(参考) | 目安:1,571,500〜1,671,500 円 | みなし賃料(月額・参考) | 356,698〜376,698 円 |
| 備考 | 本ページは過去募集のアーカイブです。表示の金額は周辺相場・過去募集を踏まえた参考レンジであり、実際の契約金額・条件ではありません。 | ||
※上記みなし賃料(月額)は仲介手数料割引・無料&キャッシュバックを加味した高級賃貸バイブル限定の金額です。一般的なみなし賃料とは異なります。
【建物ページ】ディアナガーデン神宮前の詳細・最新空室はこちら▶▶選ばれる理由
仲介手数料無料・キャンペーン情報(毎月15名様限定)
〇仲介手数料割引キャンペーン
ディアナガーデン神宮前 4階 70.85㎡の口コミ・レビュー
ディアナガーデン神宮前 4階 70.85㎡。その名を聞いた瞬間、あなたは新しい物語の扉を開くことになるでしょう。ここに息づくのは、単なる住まいではなく、心の奥底に語りかけてくるような、現代のアートと歴史が交錯する空間です。神宮前という名の通り、文化とクリエイティブなエネルギーが渦巻くこの地で、あなたの生活は最高のシーンを彩ることでしょう。
このディアナガーデン神宮前の4階に足を運び、その71㎡近…ディアナガーデン神宮前 4階 70.85㎡。その名を聞いた瞬間、あなたは新しい物語の扉を開くことになるでしょう。ここに息づくのは、単なる住まいではなく、心の奥底に語りかけてくるような、現代のアートと歴史が交錯する空間です。神宮前という名の通り、文化とクリエイティブなエネルギーが渦巻くこの地で、あなたの生活は最高のシーンを彩ることでしょう。
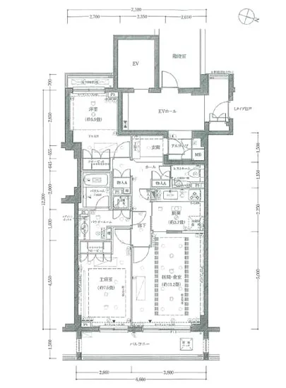
このディアナガーデン神宮前の4階に足を運び、その71㎡近い広がりの中で、あなたは人生の贅沢を感じます。陽の光が優しく差し込み、北東の方角からは朝の新鮮な空気が流れ込んできて、まだ夢の中にいるような穏やかな気持ちを抱かせてくれます。リビングダイニング(LDK11.2帖)では、友人たちと共に食卓を囲み、笑顔と笑い声が響き渡る、まるで映画のワンシーンのようなひとときを共有することができます。
想像してみてください。キッチン(K:3.7帖)で手作りの料理をするあなたの背後で、家族がリビングで楽しそうに過ごしている姿。料理の香ばしい匂いが漂い、ふと振り返ると、笑顔でお皿を持つ家族の姿が心を温めてくれます。それは、時間を忘れさせてくれる、至福の瞬間です。
寝室として使える洋室(洋:7.5帖、洋:5.9帖)は、まるであなたの心の隠れ家。静寂の中、心地よい布団に包まれて、夢の世界へと誘われていく感覚は、他では味わえない贅沢です。朝、目覚めたときの清々しい空気は、あなたを新たな一日へと導いてくれることでしょう。
ディアナガーデン神宮前では、住む人々が共鳴し合い、自然と繋がります。オートロックで守られたこの場所は、セキュリティも万全。あなただけのプライベートな時間が流れる特別な空間として、いつでもあなたを優しく迎えてくれます。エレベーターで上がれば、まるで自分だけの秘密の隠れ家にいるような気分になるでしょう。
周辺の歴史や文化もまた、あなたの生活に深みを与えてくれます。東京メトロ副都心線 北参道駅までは徒歩7分。歩くたびに、街のリズムを感じ、アートに触れ、創造性が刺激されることでしょう。渋谷区神宮前という場所は、まるでアートギャラリーのように、様々なカルチャーが交差する魅力的な空間です。
ディアナガーデン神宮前 4階 70.85㎡――この特別な住まいで、心の豊かさを感じながら、人生の素晴らしい物語を紡いでみませんか。あなたの新しい生活が、ここから始まることを、私たちは心から願っています。
このディアナガーデン神宮前の4階に足を運び、その71㎡近…ディアナガーデン神宮前 4階 70.85㎡。その名を聞いた瞬間、あなたは新しい物語の扉を開くことになるでしょう。ここに息づくのは、単なる住まいではなく、心の奥底に語りかけてくるような、現代のアートと歴史が交錯する空間です。神宮前という名の通り、文化とクリエイティブなエネルギーが渦巻くこの地で、あなたの生活は最高のシーンを彩ることでしょう。
このディアナガーデン神宮前の4階に足を運び、その71㎡近い広がりの中で、あなたは人生の贅沢を感じます。陽の光が優しく差し込み、北東の方角からは朝の新鮮な空気が流れ込んできて、まだ夢の中にいるような穏やかな気持ちを抱かせてくれます。リビングダイニング(LDK11.2帖)では、友人たちと共に食卓を囲み、笑顔と笑い声が響き渡る、まるで映画のワンシーンのようなひとときを共有することができます。
想像してみてください。キッチン(K:3.7帖)で手作りの料理をするあなたの背後で、家族がリビングで楽しそうに過ごしている姿。料理の香ばしい匂いが漂い、ふと振り返ると、笑顔でお皿を持つ家族の姿が心を温めてくれます。それは、時間を忘れさせてくれる、至福の瞬間です。
寝室として使える洋室(洋:7.5帖、洋:5.9帖)は、まるであなたの心の隠れ家。静寂の中、心地よい布団に包まれて、夢の世界へと誘われていく感覚は、他では味わえない贅沢です。朝、目覚めたときの清々しい空気は、あなたを新たな一日へと導いてくれることでしょう。
ディアナガーデン神宮前では、住む人々が共鳴し合い、自然と繋がります。オートロックで守られたこの場所は、セキュリティも万全。あなただけのプライベートな時間が流れる特別な空間として、いつでもあなたを優しく迎えてくれます。エレベーターで上がれば、まるで自分だけの秘密の隠れ家にいるような気分になるでしょう。
周辺の歴史や文化もまた、あなたの生活に深みを与えてくれます。東京メトロ副都心線 北参道駅までは徒歩7分。歩くたびに、街のリズムを感じ、アートに触れ、創造性が刺激されることでしょう。渋谷区神宮前という場所は、まるでアートギャラリーのように、様々なカルチャーが交差する魅力的な空間です。
ディアナガーデン神宮前 4階 70.85㎡――この特別な住まいで、心の豊かさを感じながら、人生の素晴らしい物語を紡いでみませんか。あなたの新しい生活が、ここから始まることを、私たちは心から願っています。
バイブルスコア
バイブルスコア: 20.4
平均的なスコアです。
※バイブルスコア詳細はこちら
バイブルスコアとは独自のAI機械学習技術を利用した物件評価システムで、物件のおすすめ度を示します。最高得点は100点で、スコアが高いほど、よりおすすめの物件と評価されています。
写真
契約条件
| 賃料 | 予想金額:330,000〜350,000円程度 | 管理費 | 予想金額:0〜2,000円程度 |
| 礼金 | 非公開(アーカイブ) | 敷金 | 非公開(アーカイブ) |
| フリーレント | なし | 平米数 | 70.85㎡ |
| 間取り | 2LDK | 大型収納 | |
| 契約期間 |
| 方角 | 北東 |
| 更新料 | 契約形態 | 普通賃貸借契約 | |
| 取引態様 | 媒介 | 内見状況 | 入居中 |
| 入居時期 | 入居中 | SOHO・事務所 | |
| ペット | 間取り内訳 | 洋:7.5 洋:5.9 LD:11.2 K:3.7 | |
| キャンペーン情報・備考 | 本情報は賃料改定交渉の資料作成、収益物件の利回り試算、周辺エリアや最寄り駅の坪単価分析、次回募集開始時期の予測などにご活用いただけます。 | ||
※「どの不動産に頼めばいいのか分からない」「信頼できる営業マンの話を聞きたい」「一番親切な会社と契約したい」とお悩みの方におすすめなのが「高級賃貸バイブル」です。
高級賃貸バイブルは業界10年以上の熟練スタッフ群がお客様ファーストで対応します。
下記ボタンから、まずは無料でご相談下さい。
※内覧をご希望の際には、どうぞ物件のエントランス前にてお待ち合わせくださいませ。ご内覧後は、同じ場所でお別れとさせていただきます。お客様のご都合に合わせたスムーズなご案内を心がけておりますので、ご質問等がございましたら何なりとお申し付けください。 物件概要
| 物件名 |
| 築年月 |
|
|---|---|---|---|
| 所在地 | |||
| 交通 |
| ||
| 総戸数 |
| 総階数 |
|
| 構造 |
| ||
地図
物件までの道のりは、「拡大地図を表示」をクリックしてナビ機能をご利用ください。
部屋設備














建物設備

TVモニターホン

エレベーター

オートロック

バイク置場

宅配ボックス

敷地内ゴミ置場

管理人

駐車場平置き

駐車場機械式

駐輪場
ディアナガーデン神宮前の現在募集中のお部屋
- No rooms found for this property.


















