
| 賃料 | 予想金額:101,000〜121,000円程度 | 管理費 | 予想金額:18,000〜22,000円程度 |
| 礼金/敷金 | 非公開(アーカイブ) | 平米数 | 25.9㎡ |
| 初期費用概算(参考) | 目安:127,000〜227,000 円 | みなし賃料(月額・参考) | 124,688〜144,688 円 |
| 備考 | 本ページは過去募集のアーカイブです。表示の金額は周辺相場・過去募集を踏まえた参考レンジであり、実際の契約金額・条件ではありません。 | ||
※上記みなし賃料(月額)は仲介手数料割引・無料&キャッシュバックを加味した高級賃貸バイブル限定の金額です。一般的なみなし賃料とは異なります。
【建物ページ】グランエール駒込の詳細・最新空室はこちら▶▶選ばれる理由
仲介手数料無料・キャンペーン情報(毎月15名様限定)
〇フリーレント1か月キャンペーン
グランエール駒込 311の口コミ・レビュー
グランエール駒込 311は、まるで時間を超えた物語の舞台のように、訪れる者を魅了する特別な住まいです。東京都豊島区駒込の静かで落ち着いた街並みの中に佇むこの物件は、あなたの日常を映画のワンシーンのように彩り、豊かな生活を約束します。最寄駅である東京メトロ南北線 駒込駅から徒歩1分という好立地は、まるで人生の舞台に向かうためのトンネルのように、あなたを待ち受ける新しい経験へと導きます。
311号室…グランエール駒込 311は、まるで時間を超えた物語の舞台のように、訪れる者を魅了する特別な住まいです。東京都豊島区駒込の静かで落ち着いた街並みの中に佇むこの物件は、あなたの日常を映画のワンシーンのように彩り、豊かな生活を約束します。最寄駅である東京メトロ南北線 駒込駅から徒歩1分という好立地は、まるで人生の舞台に向かうためのトンネルのように、あなたを待ち受ける新しい経験へと導きます。
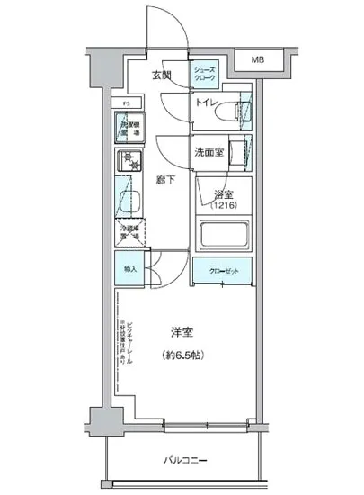
311号室の内部は、洗練されたデザインが施された1K、専有面積25.9㎡の空間が、まるで心の拠り所となるかのように、あなたを迎え入れてくれます。6.5帖の洋室は、朝日が差し込み、優しい光に包まれながら、安らぎのひとときを提供します。窓を開けると、風の香りが緑豊かな周辺の木々を運び入れ、自然との一体感を感じることができるでしょう。
グランエール駒込 311の魅力は、ただの間取りや設備に留まらず、ここでの生活が紡ぐ瞬間の数々にあります。朝の光が部屋を満たし、コーヒーの香ばしい香りが漂うキッチンで、あなたの一日が始まります。お気に入りの洋服に袖を通すと、背筋が伸びた瞬間、自分自身が特別であることを再確認できます。
そして、夜には、薄明かりの中での読書や、心和む音楽に耳を傾けるでしょう。グランエール駒込 311は、あなたが心から「帰る場所」として、ゆったりとした時間を提供し、毎日のストーリーを描いてくれます。北西の方角からは、夕暮れ時に美しい夕日が見え、心を癒してくれる最高の景色が広がります。
この物件には、オートロックや宅配ボックス、管理人が常駐しているため、安心感を纏いながら生活できる環境も整っています。また、バイク置き場や駐輪場も完備され、自由な移動をサポートします。これらの設備は、まるで美しい装飾品のように、あなたの生活を豊かにするための一部として存在しています。
周辺には、豊かな歴史と文化が息づいています。如意輪観音が祀られている駒込大観音や、近くの六義園の四季折々の風景は、あなたの日々に心の安らぎを加えてくれることでしょう。散策を楽しみながら、ふと見上げた空に、時折飛び交う鳥たちが駒込の自然とのつながりを感じさせてくれます。
グランエール駒込 311は、ただの物件ではなく、あなたの新しいライフスタイルを育むための舞台です。この場所での暮らしは、期待に満ちた冒険の始まりであり、毎日が美しい物語の一部となっていくことでしょう。あなたも、この特別な場所で、新たな人生の幕を開けてみませんか。どの瞬間も、記憶に残る価値ある体験が待っています。
311号室…グランエール駒込 311は、まるで時間を超えた物語の舞台のように、訪れる者を魅了する特別な住まいです。東京都豊島区駒込の静かで落ち着いた街並みの中に佇むこの物件は、あなたの日常を映画のワンシーンのように彩り、豊かな生活を約束します。最寄駅である東京メトロ南北線 駒込駅から徒歩1分という好立地は、まるで人生の舞台に向かうためのトンネルのように、あなたを待ち受ける新しい経験へと導きます。
311号室の内部は、洗練されたデザインが施された1K、専有面積25.9㎡の空間が、まるで心の拠り所となるかのように、あなたを迎え入れてくれます。6.5帖の洋室は、朝日が差し込み、優しい光に包まれながら、安らぎのひとときを提供します。窓を開けると、風の香りが緑豊かな周辺の木々を運び入れ、自然との一体感を感じることができるでしょう。
グランエール駒込 311の魅力は、ただの間取りや設備に留まらず、ここでの生活が紡ぐ瞬間の数々にあります。朝の光が部屋を満たし、コーヒーの香ばしい香りが漂うキッチンで、あなたの一日が始まります。お気に入りの洋服に袖を通すと、背筋が伸びた瞬間、自分自身が特別であることを再確認できます。
そして、夜には、薄明かりの中での読書や、心和む音楽に耳を傾けるでしょう。グランエール駒込 311は、あなたが心から「帰る場所」として、ゆったりとした時間を提供し、毎日のストーリーを描いてくれます。北西の方角からは、夕暮れ時に美しい夕日が見え、心を癒してくれる最高の景色が広がります。
この物件には、オートロックや宅配ボックス、管理人が常駐しているため、安心感を纏いながら生活できる環境も整っています。また、バイク置き場や駐輪場も完備され、自由な移動をサポートします。これらの設備は、まるで美しい装飾品のように、あなたの生活を豊かにするための一部として存在しています。
周辺には、豊かな歴史と文化が息づいています。如意輪観音が祀られている駒込大観音や、近くの六義園の四季折々の風景は、あなたの日々に心の安らぎを加えてくれることでしょう。散策を楽しみながら、ふと見上げた空に、時折飛び交う鳥たちが駒込の自然とのつながりを感じさせてくれます。
グランエール駒込 311は、ただの物件ではなく、あなたの新しいライフスタイルを育むための舞台です。この場所での暮らしは、期待に満ちた冒険の始まりであり、毎日が美しい物語の一部となっていくことでしょう。あなたも、この特別な場所で、新たな人生の幕を開けてみませんか。どの瞬間も、記憶に残る価値ある体験が待っています。
バイブルスコア
バイブルスコア: 28.9
平均的なスコアです。
※バイブルスコア詳細はこちら
バイブルスコアとは独自のAI機械学習技術を利用した物件評価システムで、物件のおすすめ度を示します。最高得点は100点で、スコアが高いほど、よりおすすめの物件と評価されています。
写真
現在写真が登録されていません契約条件
| 賃料 | 予想金額:101,000〜121,000円程度 | 管理費 | 予想金額:18,000〜22,000円程度 |
| 礼金 | 非公開(アーカイブ) | 敷金 | 非公開(アーカイブ) |
| フリーレント | 1ヶ月 | 平米数 | 25.9㎡ |
| 間取り | 1K | 大型収納 | |
| 契約期間 |
| 方角 | 北西 |
| 更新料 | 契約形態 | 普通賃貸借契約 | |
| 取引態様 | 媒介 | 内見状況 | 入居中 |
| 入居時期 | 入居中 | SOHO・事務所 | |
| ペット | ペット可 | 間取り内訳 | 洋:6.5 |
| キャンペーン情報・備考 | 本情報は賃料改定交渉の資料作成、収益物件の利回り試算、周辺エリアや最寄り駅の坪単価分析、次回募集開始時期の予測などにご活用いただけます。 | ||
※「どの不動産に頼めばいいのか分からない」「信頼できる営業マンの話を聞きたい」「一番親切な会社と契約したい」とお悩みの方におすすめなのが「高級賃貸バイブル」です。
高級賃貸バイブルは業界10年以上の熟練スタッフ群がお客様ファーストで対応します。
下記ボタンから、まずは無料でご相談下さい。
※内覧をご希望の際には、どうぞ物件のエントランス前にてお待ち合わせくださいませ。ご内覧後は、同じ場所でお別れとさせていただきます。お客様のご都合に合わせたスムーズなご案内を心がけておりますので、ご質問等がございましたら何なりとお申し付けください。 物件概要
| 物件名 |
| 築年月 |
|
|---|---|---|---|
| 所在地 | |||
| 交通 | |||
| 総戸数 |
| 総階数 |
|
| 構造 |
| ||
地図
物件までの道のりは、「拡大地図を表示」をクリックしてナビ機能をご利用ください。
部屋設備












建物設備

TVモニターホン

エレベーター

オートロック

バイク置場

宅配ボックス

敷地内ゴミ置場

管理人

駐輪場
グランエール駒込の現在募集中のお部屋
- No rooms found for this property.
