
| 賃料 | 予想金額:113,000〜133,000円程度 | 管理費 | 予想金額:8,000〜12,000円程度 |
| 礼金/敷金 | 非公開(アーカイブ) | 平米数 | 25.9㎡ |
| 初期費用概算(参考) | 目安:487,000〜587,000 円 | みなし賃料(月額・参考) | 131,625〜151,625 円 |
| 備考 | 本ページは過去募集のアーカイブです。表示の金額は周辺相場・過去募集を踏まえた参考レンジであり、実際の契約金額・条件ではありません。 | ||
※上記みなし賃料(月額)は仲介手数料割引・無料&キャッシュバックを加味した高級賃貸バイブル限定の金額です。一般的なみなし賃料とは異なります。
【建物ページ】グランエール駒込の詳細・最新空室はこちら▶▶選ばれる理由
仲介手数料無料・キャンペーン情報(毎月15名様限定)
〇仲介手数料割引キャンペーン
グランエール駒込 408の口コミ・レビュー
グランエール駒込 408。これが、あなたの新たな生活の舞台となる場所です。眼前に広がるのは、東京の喧騒を忘れさせてくれる静謐な空間。北西の方角から差し込む柔らかな光が、毎朝あなたを心地よく迎え入れてくれます。その優雅な光は、まるであなたの目覚めを待っているかのようです。
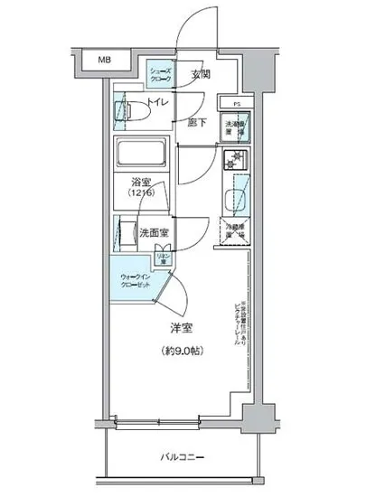
この特別な部屋、グランエール駒込 408は、心地よい生活を約束するために生まれた1Rの構造を持っています。9帖という広々とした…グランエール駒込 408。これが、あなたの新たな生活の舞台となる場所です。眼前に広がるのは、東京の喧騒を忘れさせてくれる静謐な空間。北西の方角から差し込む柔らかな光が、毎朝あなたを心地よく迎え入れてくれます。その優雅な光は、まるであなたの目覚めを待っているかのようです。
この特別な部屋、グランエール駒込 408は、心地よい生活を約束するために生まれた1Rの構造を持っています。9帖という広々とした洋室は、美術館の一角にいるような感覚を齎します。壁の色、床の質感、そして空気の流れまでもが、あなたを独自のストーリーへと誘ってくれるのです。想像してみてください。朝日が差し込む中、コーヒーの香りが漂うキッチンで、トーストが焼ける音を聞く。そんなシーンが、あなたの日常の一部になるのです。
グランエール駒込 408では、宅配ボックスやエレベーター、オートロックなどの最新設備が生活の質を高めてくれます。物件のエントランスに足を踏み入れると、まるで特別なギャラリーに招待されたような感覚を覚えます。管理人の温かい笑顔が交わされる中、あなたはこの場所がただの住まいではなく、心の拠り所であることを実感するでしょう。
また、この物件は駒込駅からわずか徒歩1分。東京メトロ南北線でのアクセスの便利さは、まるで世界中の文化が集まる大きな舞台への扉を開いているかのようです。近隣には、美術館や歴史的なスポットが点在しており、あなたの感性を揺さぶる瞬間が日常に溢れています。豊島区の文化の香りを感じながら、街を散策するひとときは、何物にも代えがたい喜びとなるでしょう。
グランエール駒込 408での生活は、まさに映画のワンシーンのように、あなたの感情を豊かに彩ります。夜、窓から見える街の灯りは、星空のように瞬き、あなたの感覚をさらなる高みに引き上げてくれることでしょう。友人を招いてのホームパーティーでは、9帖の洋室が笑い声と温もりの空間に変わります。焼きたての料理の香りと共に、会話が弾む心地よい時が流れ、また次の集まりが待ち遠しくなるはずです。
このように、グランエール駒込 408はただの住まいではなく、あなたの人生に新たな物語の幕開けをもたらす、特別な場所です。ここで刻まれるひとつひとつの瞬間が、あなたの心に色鮮やかな思い出となって残ることでしょう。美しい空間に包まれ、新たなライフスタイルを手に入れる準備を、今すぐ始めてください。あなたの未来が、グランエール駒込 408で待っています。
この特別な部屋、グランエール駒込 408は、心地よい生活を約束するために生まれた1Rの構造を持っています。9帖という広々とした…グランエール駒込 408。これが、あなたの新たな生活の舞台となる場所です。眼前に広がるのは、東京の喧騒を忘れさせてくれる静謐な空間。北西の方角から差し込む柔らかな光が、毎朝あなたを心地よく迎え入れてくれます。その優雅な光は、まるであなたの目覚めを待っているかのようです。
この特別な部屋、グランエール駒込 408は、心地よい生活を約束するために生まれた1Rの構造を持っています。9帖という広々とした洋室は、美術館の一角にいるような感覚を齎します。壁の色、床の質感、そして空気の流れまでもが、あなたを独自のストーリーへと誘ってくれるのです。想像してみてください。朝日が差し込む中、コーヒーの香りが漂うキッチンで、トーストが焼ける音を聞く。そんなシーンが、あなたの日常の一部になるのです。
グランエール駒込 408では、宅配ボックスやエレベーター、オートロックなどの最新設備が生活の質を高めてくれます。物件のエントランスに足を踏み入れると、まるで特別なギャラリーに招待されたような感覚を覚えます。管理人の温かい笑顔が交わされる中、あなたはこの場所がただの住まいではなく、心の拠り所であることを実感するでしょう。
また、この物件は駒込駅からわずか徒歩1分。東京メトロ南北線でのアクセスの便利さは、まるで世界中の文化が集まる大きな舞台への扉を開いているかのようです。近隣には、美術館や歴史的なスポットが点在しており、あなたの感性を揺さぶる瞬間が日常に溢れています。豊島区の文化の香りを感じながら、街を散策するひとときは、何物にも代えがたい喜びとなるでしょう。
グランエール駒込 408での生活は、まさに映画のワンシーンのように、あなたの感情を豊かに彩ります。夜、窓から見える街の灯りは、星空のように瞬き、あなたの感覚をさらなる高みに引き上げてくれることでしょう。友人を招いてのホームパーティーでは、9帖の洋室が笑い声と温もりの空間に変わります。焼きたての料理の香りと共に、会話が弾む心地よい時が流れ、また次の集まりが待ち遠しくなるはずです。
このように、グランエール駒込 408はただの住まいではなく、あなたの人生に新たな物語の幕開けをもたらす、特別な場所です。ここで刻まれるひとつひとつの瞬間が、あなたの心に色鮮やかな思い出となって残ることでしょう。美しい空間に包まれ、新たなライフスタイルを手に入れる準備を、今すぐ始めてください。あなたの未来が、グランエール駒込 408で待っています。
バイブルスコア
バイブルスコア: 16.5
高級な物件でない場合は割高な物件です。。
※バイブルスコア詳細はこちら
バイブルスコアとは独自のAI機械学習技術を利用した物件評価システムで、物件のおすすめ度を示します。最高得点は100点で、スコアが高いほど、よりおすすめの物件と評価されています。
写真
現在写真が登録されていません契約条件
| 賃料 | 予想金額:113,000〜133,000円程度 | 管理費 | 予想金額:8,000〜12,000円程度 |
| 礼金 | 非公開(アーカイブ) | 敷金 | 非公開(アーカイブ) |
| フリーレント | なし | 平米数 | 25.9㎡ |
| 間取り | 1R | 大型収納 | WIC |
| 契約期間 |
| 方角 | 北西 |
| 更新料 | 契約形態 | 普通賃貸借契約 | |
| 取引態様 | 媒介 | 内見状況 | 入居中 |
| 入居時期 | 入居中 | SOHO・事務所 | |
| ペット | ペット可 | 間取り内訳 | 洋:9 |
| キャンペーン情報・備考 | 本情報は賃料改定交渉の資料作成、収益物件の利回り試算、周辺エリアや最寄り駅の坪単価分析、次回募集開始時期の予測などにご活用いただけます。 | ||
※「どの不動産に頼めばいいのか分からない」「信頼できる営業マンの話を聞きたい」「一番親切な会社と契約したい」とお悩みの方におすすめなのが「高級賃貸バイブル」です。
高級賃貸バイブルは業界10年以上の熟練スタッフ群がお客様ファーストで対応します。
下記ボタンから、まずは無料でご相談下さい。
※内覧をご希望の際には、どうぞ物件のエントランス前にてお待ち合わせくださいませ。ご内覧後は、同じ場所でお別れとさせていただきます。お客様のご都合に合わせたスムーズなご案内を心がけておりますので、ご質問等がございましたら何なりとお申し付けください。 物件概要
| 物件名 |
| 築年月 |
|
|---|---|---|---|
| 所在地 | |||
| 交通 | |||
| 総戸数 |
| 総階数 |
|
| 構造 |
| ||
地図
物件までの道のりは、「拡大地図を表示」をクリックしてナビ機能をご利用ください。
部屋設備













建物設備

TVモニターホン

エレベーター

オートロック

バイク置場

宅配ボックス

敷地内ゴミ置場

管理人

駐輪場
グランエール駒込の現在募集中のお部屋
- No rooms found for this property.
