
| 賃料 | 予想金額:97,000〜117,000円程度 | 管理費 | 予想金額:18,000〜22,000円程度 |
| 礼金/敷金 | 非公開(アーカイブ) | 平米数 | 25.9㎡ |
| 初期費用概算(参考) | 目安:232,000〜332,000 円 | みなし賃料(月額・参考) | 120,646〜140,646 円 |
| 備考 | 本ページは過去募集のアーカイブです。表示の金額は周辺相場・過去募集を踏まえた参考レンジであり、実際の契約金額・条件ではありません。 | ||
※上記みなし賃料(月額)は仲介手数料割引・無料&キャッシュバックを加味した高級賃貸バイブル限定の金額です。一般的なみなし賃料とは異なります。
【建物ページ】グランエール駒込の詳細・最新空室はこちら▶▶選ばれる理由
仲介手数料無料・キャンペーン情報(毎月15名様限定)
〇仲介手数料割引キャンペーン
グランエール駒込 406の口コミ・レビュー
グランエール駒込 406。あなたがここに足を踏み入れた瞬間、まるで映画のワンシーンに引き込まれるかのような、特別な空間が広がります。406号室は、北西の優しい光が心地よく注ぐ場所で、その面積は25.9㎡。大きな窓からは、静かな街並みや四季折々の表情を持つ駒込の風景が望め、まるで自然のアートを眺めているかのようです。広がる景色と共に、心の中に穏やかな安らぎが広がります。
このお部屋は、あなたの生活…グランエール駒込 406。あなたがここに足を踏み入れた瞬間、まるで映画のワンシーンに引き込まれるかのような、特別な空間が広がります。406号室は、北西の優しい光が心地よく注ぐ場所で、その面積は25.9㎡。大きな窓からは、静かな街並みや四季折々の表情を持つ駒込の風景が望め、まるで自然のアートを眺めているかのようです。広がる景色と共に、心の中に穏やかな安らぎが広がります。
このお部屋は、あなたの生活を彩るためのキャンバスです。広々とした洋室6.5帖は、朝日が差し込む中で新たな一日の始まりを迎え、夜には落ち着いた光の中でリラックスする至福のひと時を提供します。あなたの好きな本や趣味の品々を並べれば、そこはまるであなただけの小さなギャラリー。このお部屋にいるだけで、心が満たされる感覚を抱くことでしょう。
グランエール駒込は、ただの住まいではありません。オートロックやエレベーター、宅配ボックスといった設備が、安心と便利さをもたらしてくれます。朝の忙しい時間帯には、スムーズに外に出かけられ、帰宅時には温かな家の中へと迎え入れてくれる。まるで、あなたの生活のパートナーとして日常を優雅にサポートしてくれる存在です。
また、周辺には歴史的な文化も息づいています。駒込の町は、古き良き伝統と現代のスタイルが共存する場所。散策するだけで、さまざまな発見に満ちています。近くには、美しい庭園や歴史的な寺院が点在し、緑豊かな空間が心を癒してくれるでしょう。秋の夕暮れ時、金色に染まる木々を眺めながら、静かなひとときを楽しむ。そんな風景が、まさにこのマンションでの日常を演出してくれます。
さらに、駒込駅まで徒歩1分という好立地は、都会の喧騒から解放される特権です。通勤や通学に便利でありながら、静かな環境が保たれているため、心の平穏を大切にしながら生活することができます。その距離感は、まるで親しい友人のようで、必要な時にすぐそばにいてくれる。
グランエール駒込 406は、ただの賃貸物件ではなく、生活の舞台としての役割を果たします。ここでの時間が、贅沢なひとときの連続であることを実感できるでしょう。あなたの新しい生活の一歩を、この特別な空間で踏み出してみてはいかがでしょうか。心地よい風と共に、幸福な日々が待っています。
このお部屋は、あなたの生活…グランエール駒込 406。あなたがここに足を踏み入れた瞬間、まるで映画のワンシーンに引き込まれるかのような、特別な空間が広がります。406号室は、北西の優しい光が心地よく注ぐ場所で、その面積は25.9㎡。大きな窓からは、静かな街並みや四季折々の表情を持つ駒込の風景が望め、まるで自然のアートを眺めているかのようです。広がる景色と共に、心の中に穏やかな安らぎが広がります。
このお部屋は、あなたの生活を彩るためのキャンバスです。広々とした洋室6.5帖は、朝日が差し込む中で新たな一日の始まりを迎え、夜には落ち着いた光の中でリラックスする至福のひと時を提供します。あなたの好きな本や趣味の品々を並べれば、そこはまるであなただけの小さなギャラリー。このお部屋にいるだけで、心が満たされる感覚を抱くことでしょう。
グランエール駒込は、ただの住まいではありません。オートロックやエレベーター、宅配ボックスといった設備が、安心と便利さをもたらしてくれます。朝の忙しい時間帯には、スムーズに外に出かけられ、帰宅時には温かな家の中へと迎え入れてくれる。まるで、あなたの生活のパートナーとして日常を優雅にサポートしてくれる存在です。
また、周辺には歴史的な文化も息づいています。駒込の町は、古き良き伝統と現代のスタイルが共存する場所。散策するだけで、さまざまな発見に満ちています。近くには、美しい庭園や歴史的な寺院が点在し、緑豊かな空間が心を癒してくれるでしょう。秋の夕暮れ時、金色に染まる木々を眺めながら、静かなひとときを楽しむ。そんな風景が、まさにこのマンションでの日常を演出してくれます。
さらに、駒込駅まで徒歩1分という好立地は、都会の喧騒から解放される特権です。通勤や通学に便利でありながら、静かな環境が保たれているため、心の平穏を大切にしながら生活することができます。その距離感は、まるで親しい友人のようで、必要な時にすぐそばにいてくれる。
グランエール駒込 406は、ただの賃貸物件ではなく、生活の舞台としての役割を果たします。ここでの時間が、贅沢なひとときの連続であることを実感できるでしょう。あなたの新しい生活の一歩を、この特別な空間で踏み出してみてはいかがでしょうか。心地よい風と共に、幸福な日々が待っています。
バイブルスコア
バイブルスコア: 34.5
平均的なスコアです。
※バイブルスコア詳細はこちら
バイブルスコアとは独自のAI機械学習技術を利用した物件評価システムで、物件のおすすめ度を示します。最高得点は100点で、スコアが高いほど、よりおすすめの物件と評価されています。
写真
現在写真が登録されていません契約条件
| 賃料 | 予想金額:97,000〜117,000円程度 | 管理費 | 予想金額:18,000〜22,000円程度 |
| 礼金 | 非公開(アーカイブ) | 敷金 | 非公開(アーカイブ) |
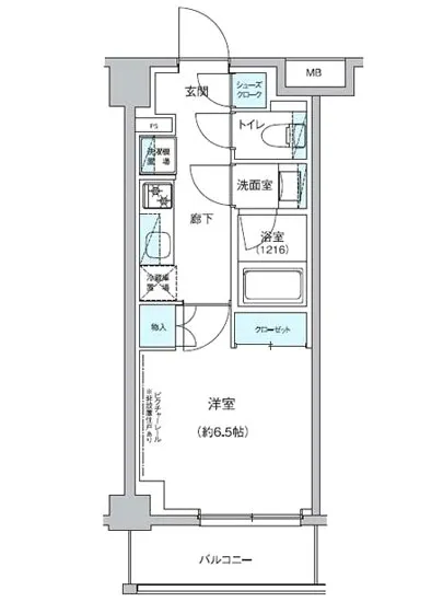
| フリーレント | なし | 平米数 | 25.9㎡ |
| 間取り | 1K | 大型収納 | |
| 契約期間 |
| 方角 | 北西 |
| 更新料 | 契約形態 | 普通賃貸借契約 | |
| 取引態様 | 媒介 | 内見状況 | 入居中 |
| 入居時期 | 入居中 | SOHO・事務所 | |
| ペット | ペット可 | 間取り内訳 | 洋:6.5 |
| キャンペーン情報・備考 | 本情報は賃料改定交渉の資料作成、収益物件の利回り試算、周辺エリアや最寄り駅の坪単価分析、次回募集開始時期の予測などにご活用いただけます。 | ||
※「どの不動産に頼めばいいのか分からない」「信頼できる営業マンの話を聞きたい」「一番親切な会社と契約したい」とお悩みの方におすすめなのが「高級賃貸バイブル」です。
高級賃貸バイブルは業界10年以上の熟練スタッフ群がお客様ファーストで対応します。
下記ボタンから、まずは無料でご相談下さい。
※内覧をご希望の際には、どうぞ物件のエントランス前にてお待ち合わせくださいませ。ご内覧後は、同じ場所でお別れとさせていただきます。お客様のご都合に合わせたスムーズなご案内を心がけておりますので、ご質問等がございましたら何なりとお申し付けください。 物件概要
| 物件名 |
| 築年月 |
|
|---|---|---|---|
| 所在地 | |||
| 交通 | |||
| 総戸数 |
| 総階数 |
|
| 構造 |
| ||
地図
物件までの道のりは、「拡大地図を表示」をクリックしてナビ機能をご利用ください。
部屋設備












建物設備

TVモニターホン

エレベーター

オートロック

バイク置場

宅配ボックス

敷地内ゴミ置場

管理人

駐輪場
グランエール駒込の現在募集中のお部屋
- No rooms found for this property.
