
| 賃料 | 予想金額:110,000〜130,000円程度 | 管理費 | 予想金額:8,000〜12,000円程度 |
| 礼金/敷金 | 非公開(アーカイブ) | 平米数 | 32.75㎡ |
| 初期費用概算(参考) | 目安:476,500〜576,500 円 | みなし賃料(月額・参考) | 128,469〜148,469 円 |
| 備考 | 本ページは過去募集のアーカイブです。表示の金額は周辺相場・過去募集を踏まえた参考レンジであり、実際の契約金額・条件ではありません。 | ||
※上記みなし賃料(月額)は仲介手数料割引・無料&キャッシュバックを加味した高級賃貸バイブル限定の金額です。一般的なみなし賃料とは異なります。
【建物ページ】アクシア新宿御苑の詳細・最新空室はこちら▶▶選ばれる理由
仲介手数料無料・キャンペーン情報(毎月15名様限定)
〇仲介手数料割引キャンペーン
アクシア新宿御苑 3階 32.75㎡の口コミ・レビュー
アクシア新宿御苑 3階 32.75㎡。あなたの生活の舞台が、ここにあります。この洗練された空間が、生活のひとつひとつを映画のように彩り、心に残る物語を描いてくれることでしょう。新宿の静寂の中に佇むこの物件は、ただの居住空間ではなく、心の拠り所としての役割を果たします。
玄関を開けた瞬間、ほのかな木の香りが心を和ませ、あなたをお出迎えします。広がるのは、11帖の洋室。無限の可能性を秘めたこの空間は…アクシア新宿御苑 3階 32.75㎡。あなたの生活の舞台が、ここにあります。この洗練された空間が、生活のひとつひとつを映画のように彩り、心に残る物語を描いてくれることでしょう。新宿の静寂の中に佇むこの物件は、ただの居住空間ではなく、心の拠り所としての役割を果たします。
玄関を開けた瞬間、ほのかな木の香りが心を和ませ、あなたをお出迎えします。広がるのは、11帖の洋室。無限の可能性を秘めたこの空間は、ご自身の個性を映し出すキャンバス。どんなインテリアにもなじみ、あなたの感性を刺激します。朝の光が北西の窓から差し込み、優しい陽射しが部屋を包み込み、一日の始まりを美しく演出します。
アクシア新宿御苑は、ただの家ではありません。このお部屋は、まるで親友が語りかけるように、あなたに日々の暮らしを語りかけます。オートロックのシステムが、安心の幕を降ろし、たとえ外の喧騒がどれほど大きくても、ここでは静けさと穏やかさがあなたを包み込みます。エレベーターでの移動も、まるで浮遊するかのような軽やかさを感じ、お部屋に戻るたびに心が豊かになることでしょう。
そして、ラウンジや宅配ボックスといった設備は、まるで友人との小さな集いを演出するかのよう。光のあふれるその空間で、友人や大切な人々と一緒に過ごすひとときが、宝物のような思い出を彩ります。自転車置き場も整っており、街を自由に駆け回ることができるのも、また新しい冒険の扉を開く鍵となるのです。
新宿御苑前駅から徒歩4分という立地は、まるで時間と空間を行き来する魔法のチケット。あなたは、自然豊かな新宿御苑で心をリフレッシュすることができる一方で、若者文化が息づく新宿の街並みを散策したり、飲食を楽しんだりすることもできます。都市の洗練された生活と自然の癒しが、ここでは見事に交差するのです。
アクシア新宿御苑 3階 32.75㎡。この空間は、まるで心の中の小さな夢が形を持ったかのように、あなたの思いと共に成長する場所です。美しい景色と心躍るエンターテイメントが織り成すこの地で、あなたの新たな物語が始まります。その物語の中で、あなたのすべての感覚が目覚め、五感が煌めく瞬間を是非体験してください。この特別な場所で、心に残るストーリーを共に描きませんか。
玄関を開けた瞬間、ほのかな木の香りが心を和ませ、あなたをお出迎えします。広がるのは、11帖の洋室。無限の可能性を秘めたこの空間は…アクシア新宿御苑 3階 32.75㎡。あなたの生活の舞台が、ここにあります。この洗練された空間が、生活のひとつひとつを映画のように彩り、心に残る物語を描いてくれることでしょう。新宿の静寂の中に佇むこの物件は、ただの居住空間ではなく、心の拠り所としての役割を果たします。
玄関を開けた瞬間、ほのかな木の香りが心を和ませ、あなたをお出迎えします。広がるのは、11帖の洋室。無限の可能性を秘めたこの空間は、ご自身の個性を映し出すキャンバス。どんなインテリアにもなじみ、あなたの感性を刺激します。朝の光が北西の窓から差し込み、優しい陽射しが部屋を包み込み、一日の始まりを美しく演出します。
アクシア新宿御苑は、ただの家ではありません。このお部屋は、まるで親友が語りかけるように、あなたに日々の暮らしを語りかけます。オートロックのシステムが、安心の幕を降ろし、たとえ外の喧騒がどれほど大きくても、ここでは静けさと穏やかさがあなたを包み込みます。エレベーターでの移動も、まるで浮遊するかのような軽やかさを感じ、お部屋に戻るたびに心が豊かになることでしょう。
そして、ラウンジや宅配ボックスといった設備は、まるで友人との小さな集いを演出するかのよう。光のあふれるその空間で、友人や大切な人々と一緒に過ごすひとときが、宝物のような思い出を彩ります。自転車置き場も整っており、街を自由に駆け回ることができるのも、また新しい冒険の扉を開く鍵となるのです。
新宿御苑前駅から徒歩4分という立地は、まるで時間と空間を行き来する魔法のチケット。あなたは、自然豊かな新宿御苑で心をリフレッシュすることができる一方で、若者文化が息づく新宿の街並みを散策したり、飲食を楽しんだりすることもできます。都市の洗練された生活と自然の癒しが、ここでは見事に交差するのです。
アクシア新宿御苑 3階 32.75㎡。この空間は、まるで心の中の小さな夢が形を持ったかのように、あなたの思いと共に成長する場所です。美しい景色と心躍るエンターテイメントが織り成すこの地で、あなたの新たな物語が始まります。その物語の中で、あなたのすべての感覚が目覚め、五感が煌めく瞬間を是非体験してください。この特別な場所で、心に残るストーリーを共に描きませんか。
バイブルスコア
バイブルスコア: 43.5
条件のいい物件です、引っ越しが2か月以内の場合は仮申し込みを検討すべき物件です。
※バイブルスコア詳細はこちら
バイブルスコアとは独自のAI機械学習技術を利用した物件評価システムで、物件のおすすめ度を示します。最高得点は100点で、スコアが高いほど、よりおすすめの物件と評価されています。
写真
契約条件
| 賃料 | 予想金額:110,000〜130,000円程度 | 管理費 | 予想金額:8,000〜12,000円程度 |
| 礼金 | 非公開(アーカイブ) | 敷金 | 非公開(アーカイブ) |
| フリーレント | なし | 平米数 | 32.75㎡ |
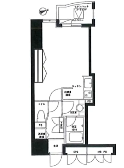
| 間取り | 1R | 大型収納 | |
| 契約期間 |
| 方角 | 北西 |
| 更新料 | 契約形態 | 普通賃貸借契約 | |
| 取引態様 | 媒介 | 内見状況 | 入居中 |
| 入居時期 | 入居中 | SOHO・事務所 | |
| ペット | 間取り内訳 | 洋:11 | |
| キャンペーン情報・備考 | 本情報は賃料改定交渉の資料作成、収益物件の利回り試算、周辺エリアや最寄り駅の坪単価分析、次回募集開始時期の予測などにご活用いただけます。 | ||
※「どの不動産に頼めばいいのか分からない」「信頼できる営業マンの話を聞きたい」「一番親切な会社と契約したい」とお悩みの方におすすめなのが「高級賃貸バイブル」です。
高級賃貸バイブルは業界10年以上の熟練スタッフ群がお客様ファーストで対応します。
下記ボタンから、まずは無料でご相談下さい。
※内覧をご希望の際には、どうぞ物件のエントランス前にてお待ち合わせくださいませ。ご内覧後は、同じ場所でお別れとさせていただきます。お客様のご都合に合わせたスムーズなご案内を心がけておりますので、ご質問等がございましたら何なりとお申し付けください。 物件概要
| 物件名 |
| 築年月 |
|
|---|---|---|---|
| 所在地 | |||
| 交通 | |||
| 総戸数 |
| 総階数 |
|
| 構造 |
| ||
地図
物件までの道のりは、「拡大地図を表示」をクリックしてナビ機能をご利用ください。
部屋設備













建物設備

TVモニターホン

エレベーター

オートロック

ラウンジ

宅配ボックス

敷地内ゴミ置場

管理人

駐輪場
アクシア新宿御苑の現在募集中のお部屋
- アクシア新宿御苑 7階 31㎡ - 間取り: 1R - 賃料: 15万円






















