
| 賃料 | 予想金額:110,000〜130,000円程度 | 管理費 | 予想金額:0〜2,000円程度 |
| 礼金/敷金 | 非公開(アーカイブ) | 平米数 | 25.52㎡ |
| 初期費用概算(参考) | 目安:221,500〜321,500 円 | みなし賃料(月額・参考) | 113,156〜133,156 円 |
| 備考 | 本ページは過去募集のアーカイブです。表示の金額は周辺相場・過去募集を踏まえた参考レンジであり、実際の契約金額・条件ではありません。 | ||
※上記みなし賃料(月額)は仲介手数料割引・無料&キャッシュバックを加味した高級賃貸バイブル限定の金額です。一般的なみなし賃料とは異なります。
【建物ページ】リヴシティ田町の詳細・最新空室はこちら▶▶選ばれる理由
仲介手数料無料・キャンペーン情報(毎月15名様限定)
〇仲介手数料割引キャンペーン
リヴシティ田町 301の口コミ・レビュー
リヴシティ田町 301。あなたはこの物件に足を踏み入れた時、まるで時空を超えた夢の世界に足を踏み入れたかのように感じるでしょう。301号室は、浮遊するような自由さと、心地よい安らぎが共存する空間を提供します。25.52㎡の広さは、まるで洗練されたキャンバスのように、あなたの生活の色を大胆に描き出すことができるのです。
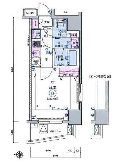
この特別な部屋には、7.5帖の贅沢な洋室と、2帖のキッチンがあります。洋室に足…リヴシティ田町 301。あなたはこの物件に足を踏み入れた時、まるで時空を超えた夢の世界に足を踏み入れたかのように感じるでしょう。301号室は、浮遊するような自由さと、心地よい安らぎが共存する空間を提供します。25.52㎡の広さは、まるで洗練されたキャンバスのように、あなたの生活の色を大胆に描き出すことができるのです。
この特別な部屋には、7.5帖の贅沢な洋室と、2帖のキッチンがあります。洋室に足を踏み入れれば、柔らかな光が窓から差し込み、まるで朝の優しい手があなたを包み込んでくれるかのようです。西向きの窓からは、夕暮れ時に美しい赤やオレンジ色の光が流れ込み、日が沈む瞬間を眺めることで、心を穏やかにすることができます。まるで毎晩異なる映画のワンシーンを楽しむかのように、自分だけの特等席がここには存在します。
キッチンでは、心躍る料理の時間が待っています。2帖のスペースには、香ばしいパンが焼ける香りや、フレッシュな野菜がはじける音が響き渡り、日々の食卓が一層豊かになることでしょう。さまざまな素材が触れ合うたびに、まるでアートを創り出すかのように、料理が進化していくのです。
リヴシティ田町 301では、生活の安心を常に感じさせる設備も整っています。エレベーターに乗り、オートロックの扉を通り抜ける瞬間、まるであなたのプライベートな世界が完全に守られているかのようです。TVモニターホンが、訪れる人々を鮮明に映し出し、宅配ボックスが、日常の小さなサプライズをそっと運んでくれます。これらの設備が、あなたの日々に少しのスリルを加えてくれるでしょう。
さらに、田町駅までの徒歩9分は、まるで小さな冒険のように感じられます。都会の喧騒から少し距離を置きつつ、便利さも手放さないこの立地は、まるで都会のオアシスそのものです。周辺には、歴史ある芝浦の風情溢れる街並みが広がり、地元の文化や芸術が息づいています。週末には、近くの公園で穏やかな日差しを浴びながら本を手に取ったり、ギャラリー巡りを楽しんだり、まるで自分が主役の映画のように、日々の生活が特別なものに変わることでしょう。
リヴシティ田町 301は、単なる居住空間ではありません。ここは、あなたの夢が現実となる舞台であり、毎日が新たな物語を紡ぐ場所です。五感を刺激するこの空間で、豊かな生活をお楽しみください。あなたの新しい生活が、ここから始まります。
この特別な部屋には、7.5帖の贅沢な洋室と、2帖のキッチンがあります。洋室に足…リヴシティ田町 301。あなたはこの物件に足を踏み入れた時、まるで時空を超えた夢の世界に足を踏み入れたかのように感じるでしょう。301号室は、浮遊するような自由さと、心地よい安らぎが共存する空間を提供します。25.52㎡の広さは、まるで洗練されたキャンバスのように、あなたの生活の色を大胆に描き出すことができるのです。
この特別な部屋には、7.5帖の贅沢な洋室と、2帖のキッチンがあります。洋室に足を踏み入れれば、柔らかな光が窓から差し込み、まるで朝の優しい手があなたを包み込んでくれるかのようです。西向きの窓からは、夕暮れ時に美しい赤やオレンジ色の光が流れ込み、日が沈む瞬間を眺めることで、心を穏やかにすることができます。まるで毎晩異なる映画のワンシーンを楽しむかのように、自分だけの特等席がここには存在します。
キッチンでは、心躍る料理の時間が待っています。2帖のスペースには、香ばしいパンが焼ける香りや、フレッシュな野菜がはじける音が響き渡り、日々の食卓が一層豊かになることでしょう。さまざまな素材が触れ合うたびに、まるでアートを創り出すかのように、料理が進化していくのです。
リヴシティ田町 301では、生活の安心を常に感じさせる設備も整っています。エレベーターに乗り、オートロックの扉を通り抜ける瞬間、まるであなたのプライベートな世界が完全に守られているかのようです。TVモニターホンが、訪れる人々を鮮明に映し出し、宅配ボックスが、日常の小さなサプライズをそっと運んでくれます。これらの設備が、あなたの日々に少しのスリルを加えてくれるでしょう。
さらに、田町駅までの徒歩9分は、まるで小さな冒険のように感じられます。都会の喧騒から少し距離を置きつつ、便利さも手放さないこの立地は、まるで都会のオアシスそのものです。周辺には、歴史ある芝浦の風情溢れる街並みが広がり、地元の文化や芸術が息づいています。週末には、近くの公園で穏やかな日差しを浴びながら本を手に取ったり、ギャラリー巡りを楽しんだり、まるで自分が主役の映画のように、日々の生活が特別なものに変わることでしょう。
リヴシティ田町 301は、単なる居住空間ではありません。ここは、あなたの夢が現実となる舞台であり、毎日が新たな物語を紡ぐ場所です。五感を刺激するこの空間で、豊かな生活をお楽しみください。あなたの新しい生活が、ここから始まります。
バイブルスコア
バイブルスコア: 28.5
平均的なスコアです。
※バイブルスコア詳細はこちら
バイブルスコアとは独自のAI機械学習技術を利用した物件評価システムで、物件のおすすめ度を示します。最高得点は100点で、スコアが高いほど、よりおすすめの物件と評価されています。
写真
契約条件
| 賃料 | 予想金額:110,000〜130,000円程度 | 管理費 | 予想金額:0〜2,000円程度 |
| 礼金 | 非公開(アーカイブ) | 敷金 | 非公開(アーカイブ) |
| フリーレント | なし | 平米数 | 25.52㎡ |
| 間取り | 1K | 大型収納 | |
| 契約期間 |
| 方角 | 西 |
| 更新料 | 契約形態 | 普通賃貸借契約 | |
| 取引態様 | 媒介 | 内見状況 | 入居中 |
| 入居時期 | 入居中 | SOHO・事務所 | |
| ペット | ペット可 | 間取り内訳 | 洋 : 7.5J / K:2J |
| キャンペーン情報・備考 | 本情報は賃料改定交渉の資料作成、収益物件の利回り試算、周辺エリアや最寄り駅の坪単価分析、次回募集開始時期の予測などにご活用いただけます。 | ||
※「どの不動産に頼めばいいのか分からない」「信頼できる営業マンの話を聞きたい」「一番親切な会社と契約したい」とお悩みの方におすすめなのが「高級賃貸バイブル」です。
高級賃貸バイブルは業界10年以上の熟練スタッフ群がお客様ファーストで対応します。
下記ボタンから、まずは無料でご相談下さい。
※内覧をご希望の際には、どうぞ物件のエントランス前にてお待ち合わせくださいませ。ご内覧後は、同じ場所でお別れとさせていただきます。お客様のご都合に合わせたスムーズなご案内を心がけておりますので、ご質問等がございましたら何なりとお申し付けください。 物件概要
| 物件名 |
| 築年月 |
|
|---|---|---|---|
| 所在地 | |||
| 交通 | |||
| 総戸数 |
| 総階数 |
|
| 構造 |
| ||
地図
物件までの道のりは、「拡大地図を表示」をクリックしてナビ機能をご利用ください。
部屋設備














建物設備

TVモニターホン

エレベーター

オートロック

宅配ボックス

敷地内ゴミ置場

駐輪場
リヴシティ田町の現在募集中のお部屋
- No rooms found for this property.





















