
| 賃料 | 予想金額:112,000〜132,000円程度 | 管理費 | 予想金額:0〜2,000円程度 |
| 礼金/敷金 | 非公開(アーカイブ) | 平米数 | 25.52㎡ |
| 初期費用概算(参考) | 目安:102,750〜202,750 円 | みなし賃料(月額・参考) | 115,682〜135,682 円 |
| 備考 | 本ページは過去募集のアーカイブです。表示の金額は周辺相場・過去募集を踏まえた参考レンジであり、実際の契約金額・条件ではありません。 | ||
※上記みなし賃料(月額)は仲介手数料割引・無料&キャッシュバックを加味した高級賃貸バイブル限定の金額です。一般的なみなし賃料とは異なります。
【建物ページ】リヴシティ田町の詳細・最新空室はこちら▶▶選ばれる理由
仲介手数料無料・キャンペーン情報(毎月15名様限定)
〇フリーレント1か月キャンペーン
リヴシティ田町 702の口コミ・レビュー
リヴシティ田町 702で、あなたの新たな物語の幕を開けませんか。東京都港区芝浦4-12-32に佇むこの物件は、まるで静かに息を潜め、訪れるあなたを待ち侘びているかのようです。702という数字は、まさにあなたとこの場所との特別な絆を結びつける番号。ここでの生活は、まるで映画のワンシーンのように、日常をアートに変えてくれることでしょう。
西の光が柔らかく差し込むこの空間は、洋室が7.5帖、そしてキッ…リヴシティ田町 702で、あなたの新たな物語の幕を開けませんか。東京都港区芝浦4-12-32に佇むこの物件は、まるで静かに息を潜め、訪れるあなたを待ち侘びているかのようです。702という数字は、まさにあなたとこの場所との特別な絆を結びつける番号。ここでの生活は、まるで映画のワンシーンのように、日常をアートに変えてくれることでしょう。
西の光が柔らかく差し込むこの空間は、洋室が7.5帖、そしてキッチンが2帖という絶妙なバランスを持っています。想像してください。朝日が窓から差し込み、あなたの目を覚ますと、心地よい香ばしいコーヒーの香りが漂う中、優雅に朝食を楽しむ。リヴシティ田町 702は、そんな至福のひとときを演出するための舞台装置です。料理の音が心地よく響くキッチンは、あなたの創造力を刺激し、自慢のレシピを披露するパートナーとなることでしょう。
この物件には、便利な設備も満載です。TVモニターホンを通じて、あなたの世界と外の世界がつながり、エレベーターでの移動はまさに軽やかな舞踏のよう。オートロックの安心感に包まれながら、宅配ボックスには日常の小さな喜びが届きます。敷地内のゴミ置場や駐輪場も、日常の煩わしさを軽減し、快適な生活をサポートしています。
田町駅までの徒歩9分は、まるで散歩するような心地よい距離。周囲には歴史ある街並みや、都会の喧騒の中にひっそりと息づくアートスポットが点在しています。この地は、古き良き文化が息づくところ。毎日新たな発見が待っていて、あなたの感性を豊かにしてくれるでしょう。ふとした瞬間に、アートの香りが漂ってきそうなこの街での暮らしは、心を豊かにし、日々を特別なものに変えてくれます。
リヴシティ田町 702は、ただの住居ではありません。ここで暮らすことは、まるで自分自身の物語を紡ぐような、特別な体験です。夕暮れ時、西の空がオレンジ色に染まる中、バルコニーに立ち、日が沈みゆく様子を見つめる。その瞬間、あなたはこの場所の一部となり、時間を超えた美しさに包まれるでしょう。まさに、あなたのライフスタイルを完璧に形作るためのステージなのです。
心を豊かにするリヴシティ田町 702で、新たな生活を始め、毎日を特別な映画のワンシーンのように彩ってみませんか。あなたの新しい物語は、ここで待っています。
西の光が柔らかく差し込むこの空間は、洋室が7.5帖、そしてキッ…リヴシティ田町 702で、あなたの新たな物語の幕を開けませんか。東京都港区芝浦4-12-32に佇むこの物件は、まるで静かに息を潜め、訪れるあなたを待ち侘びているかのようです。702という数字は、まさにあなたとこの場所との特別な絆を結びつける番号。ここでの生活は、まるで映画のワンシーンのように、日常をアートに変えてくれることでしょう。
西の光が柔らかく差し込むこの空間は、洋室が7.5帖、そしてキッチンが2帖という絶妙なバランスを持っています。想像してください。朝日が窓から差し込み、あなたの目を覚ますと、心地よい香ばしいコーヒーの香りが漂う中、優雅に朝食を楽しむ。リヴシティ田町 702は、そんな至福のひとときを演出するための舞台装置です。料理の音が心地よく響くキッチンは、あなたの創造力を刺激し、自慢のレシピを披露するパートナーとなることでしょう。
この物件には、便利な設備も満載です。TVモニターホンを通じて、あなたの世界と外の世界がつながり、エレベーターでの移動はまさに軽やかな舞踏のよう。オートロックの安心感に包まれながら、宅配ボックスには日常の小さな喜びが届きます。敷地内のゴミ置場や駐輪場も、日常の煩わしさを軽減し、快適な生活をサポートしています。
田町駅までの徒歩9分は、まるで散歩するような心地よい距離。周囲には歴史ある街並みや、都会の喧騒の中にひっそりと息づくアートスポットが点在しています。この地は、古き良き文化が息づくところ。毎日新たな発見が待っていて、あなたの感性を豊かにしてくれるでしょう。ふとした瞬間に、アートの香りが漂ってきそうなこの街での暮らしは、心を豊かにし、日々を特別なものに変えてくれます。
リヴシティ田町 702は、ただの住居ではありません。ここで暮らすことは、まるで自分自身の物語を紡ぐような、特別な体験です。夕暮れ時、西の空がオレンジ色に染まる中、バルコニーに立ち、日が沈みゆく様子を見つめる。その瞬間、あなたはこの場所の一部となり、時間を超えた美しさに包まれるでしょう。まさに、あなたのライフスタイルを完璧に形作るためのステージなのです。
心を豊かにするリヴシティ田町 702で、新たな生活を始め、毎日を特別な映画のワンシーンのように彩ってみませんか。あなたの新しい物語は、ここで待っています。
バイブルスコア
バイブルスコア: 25.7
平均的なスコアです。
※バイブルスコア詳細はこちら
バイブルスコアとは独自のAI機械学習技術を利用した物件評価システムで、物件のおすすめ度を示します。最高得点は100点で、スコアが高いほど、よりおすすめの物件と評価されています。
写真
契約条件
| 賃料 | 予想金額:112,000〜132,000円程度 | 管理費 | 予想金額:0〜2,000円程度 |
| 礼金 | 非公開(アーカイブ) | 敷金 | 非公開(アーカイブ) |
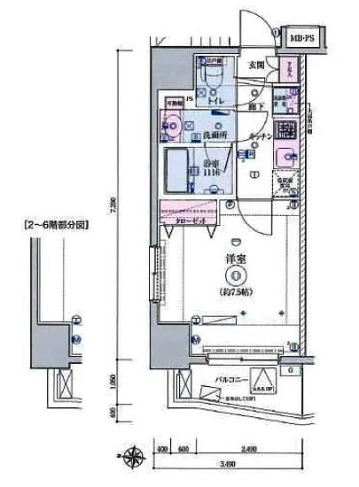
| フリーレント | 1ヶ月 | 平米数 | 25.52㎡ |
| 間取り | 1K | 大型収納 | |
| 契約期間 |
| 方角 | 西 |
| 更新料 | 契約形態 | 普通賃貸借契約 | |
| 取引態様 | 媒介 | 内見状況 | 入居中 |
| 入居時期 | 入居中 | SOHO・事務所 | |
| ペット | ペット可 | 間取り内訳 | 洋 : 7.5J / K:2J |
| キャンペーン情報・備考 | 本情報は賃料改定交渉の資料作成、収益物件の利回り試算、周辺エリアや最寄り駅の坪単価分析、次回募集開始時期の予測などにご活用いただけます。 | ||
※「どの不動産に頼めばいいのか分からない」「信頼できる営業マンの話を聞きたい」「一番親切な会社と契約したい」とお悩みの方におすすめなのが「高級賃貸バイブル」です。
高級賃貸バイブルは業界10年以上の熟練スタッフ群がお客様ファーストで対応します。
下記ボタンから、まずは無料でご相談下さい。
※内覧をご希望の際には、どうぞ物件のエントランス前にてお待ち合わせくださいませ。ご内覧後は、同じ場所でお別れとさせていただきます。お客様のご都合に合わせたスムーズなご案内を心がけておりますので、ご質問等がございましたら何なりとお申し付けください。 物件概要
| 物件名 |
| 築年月 |
|
|---|---|---|---|
| 所在地 | |||
| 交通 | |||
| 総戸数 |
| 総階数 |
|
| 構造 |
| ||
地図
物件までの道のりは、「拡大地図を表示」をクリックしてナビ機能をご利用ください。
部屋設備














建物設備

TVモニターホン

エレベーター

オートロック

宅配ボックス

敷地内ゴミ置場

駐輪場
リヴシティ田町の現在募集中のお部屋
- No rooms found for this property.





















