
| 賃料 | 予想金額:105,000〜125,000円程度 | 管理費 | 予想金額:8,000〜12,000円程度 |
| 礼金/敷金 | 非公開(アーカイブ) | 平米数 | 25.52㎡ |
| 初期費用概算(参考) | 目安:229,000〜329,000 円 | みなし賃料(月額・参考) | 118,417〜138,417 円 |
| 備考 | 本ページは過去募集のアーカイブです。表示の金額は周辺相場・過去募集を踏まえた参考レンジであり、実際の契約金額・条件ではありません。 | ||
※上記みなし賃料(月額)は仲介手数料割引・無料&キャッシュバックを加味した高級賃貸バイブル限定の金額です。一般的なみなし賃料とは異なります。
【建物ページ】リヴシティ田町の詳細・最新空室はこちら▶▶選ばれる理由
仲介手数料無料・キャンペーン情報(毎月15名様限定)
〇仲介手数料割引キャンペーン
リヴシティ田町 902の口コミ・レビュー
リヴシティ田町 902。これは、ただのアドレスではなく、あなたの新しい物語が始まる舞台となる場所です。この高貴な住居は、東京都港区芝浦4-12-32に位置し、心を躍らせる西向きの窓から、日々の喧騒から解放された穏やかな光が差し込んできます。
リヴシティ田町 902は、あなたを優雅なライフスタイルへと誘います。広さ25.52㎡の中に、心地よい風と静寂を感じる空間が広がり、まるで小さなアートギャラリ…リヴシティ田町 902。これは、ただのアドレスではなく、あなたの新しい物語が始まる舞台となる場所です。この高貴な住居は、東京都港区芝浦4-12-32に位置し、心を躍らせる西向きの窓から、日々の喧騒から解放された穏やかな光が差し込んできます。
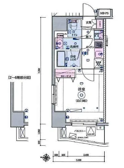
リヴシティ田町 902は、あなたを優雅なライフスタイルへと誘います。広さ25.52㎡の中に、心地よい風と静寂を感じる空間が広がり、まるで小さなアートギャラリーのように、あなた自身の個性を映し出すことができる場所です。リビングは洋室7.5帖、キッチンは2帖という甘美な配置で、生活の中心をなるべくクローズアップし、日常に彩りを与えています。
エレベーターで優雅に昇り、オートロックの扉をくぐれば、まるで秘密の庭に足を踏み入れるような感覚に包まれます。宅配ボックスも完備されていて、毎日の小さなサプライズを受け取る瞬間が待ち遠しくなります。住む方の手に馴染むような、温かみのある温もりを感じることでしょう。敷地内のゴミ置場や駐輪場も、あなたの生活をスマートにサポートし、無駄のない暮らしを実現します。
この物件の魅力は、ただ美しいだけではありません。田町駅から徒歩9分という絶妙な距離感は、都会の喧騒にも近く、同時にひとたび自宅の扉を閉じれば、静かなオアシスに変わります。短い通勤の道のりは、毎朝の新鮮な空気を感じながら、仕事へ向かうための心の準備を整える時間となるでしょう。忙しい日常の中でこそ、自分自身を見つけるための豊かな空間をリヴシティ田町 902が提供します。
周辺には歴史的な街並みや、文化的な香りが漂うアートスポットも点在しています。優雅で洗練された風景が、あなたの感性を刺激し、インスピレーションを与えます。日々の暮らしの中で、近所のカフェで淹れたてのコーヒーを味わい、友人と共に語らうひとときは、まさに映画のワンシーンのようです。
また、料理をする際のキッチンから漂う香ばしい匂いは、あなたの感情を豊かにし、食卓での会話をより華やかにしてくれます。リヴシティ田町 902は、単なる住居ではなく、日々の暮らしそのものがアートであり、あなた自身がその主人公であることを再確認させてくれるのです。
この物件で生活することは、あなたにとって新たな章の始まりです。リヴシティ田町 902で過ごす時間が、あなたの人生をより豊かにし、様々な感情を呼び起こすことでしょう。あなたの新しいお家は、ここにあります。
リヴシティ田町 902は、あなたを優雅なライフスタイルへと誘います。広さ25.52㎡の中に、心地よい風と静寂を感じる空間が広がり、まるで小さなアートギャラリ…リヴシティ田町 902。これは、ただのアドレスではなく、あなたの新しい物語が始まる舞台となる場所です。この高貴な住居は、東京都港区芝浦4-12-32に位置し、心を躍らせる西向きの窓から、日々の喧騒から解放された穏やかな光が差し込んできます。
リヴシティ田町 902は、あなたを優雅なライフスタイルへと誘います。広さ25.52㎡の中に、心地よい風と静寂を感じる空間が広がり、まるで小さなアートギャラリーのように、あなた自身の個性を映し出すことができる場所です。リビングは洋室7.5帖、キッチンは2帖という甘美な配置で、生活の中心をなるべくクローズアップし、日常に彩りを与えています。
エレベーターで優雅に昇り、オートロックの扉をくぐれば、まるで秘密の庭に足を踏み入れるような感覚に包まれます。宅配ボックスも完備されていて、毎日の小さなサプライズを受け取る瞬間が待ち遠しくなります。住む方の手に馴染むような、温かみのある温もりを感じることでしょう。敷地内のゴミ置場や駐輪場も、あなたの生活をスマートにサポートし、無駄のない暮らしを実現します。
この物件の魅力は、ただ美しいだけではありません。田町駅から徒歩9分という絶妙な距離感は、都会の喧騒にも近く、同時にひとたび自宅の扉を閉じれば、静かなオアシスに変わります。短い通勤の道のりは、毎朝の新鮮な空気を感じながら、仕事へ向かうための心の準備を整える時間となるでしょう。忙しい日常の中でこそ、自分自身を見つけるための豊かな空間をリヴシティ田町 902が提供します。
周辺には歴史的な街並みや、文化的な香りが漂うアートスポットも点在しています。優雅で洗練された風景が、あなたの感性を刺激し、インスピレーションを与えます。日々の暮らしの中で、近所のカフェで淹れたてのコーヒーを味わい、友人と共に語らうひとときは、まさに映画のワンシーンのようです。
また、料理をする際のキッチンから漂う香ばしい匂いは、あなたの感情を豊かにし、食卓での会話をより華やかにしてくれます。リヴシティ田町 902は、単なる住居ではなく、日々の暮らしそのものがアートであり、あなた自身がその主人公であることを再確認させてくれるのです。
この物件で生活することは、あなたにとって新たな章の始まりです。リヴシティ田町 902で過ごす時間が、あなたの人生をより豊かにし、様々な感情を呼び起こすことでしょう。あなたの新しいお家は、ここにあります。
バイブルスコア
バイブルスコア: 35.4
平均的なスコアです。
※バイブルスコア詳細はこちら
バイブルスコアとは独自のAI機械学習技術を利用した物件評価システムで、物件のおすすめ度を示します。最高得点は100点で、スコアが高いほど、よりおすすめの物件と評価されています。
写真
契約条件
| 賃料 | 予想金額:105,000〜125,000円程度 | 管理費 | 予想金額:8,000〜12,000円程度 |
| 礼金 | 非公開(アーカイブ) | 敷金 | 非公開(アーカイブ) |
| フリーレント | なし | 平米数 | 25.52㎡ |
| 間取り | 1K | 大型収納 | |
| 契約期間 |
| 方角 | 西 |
| 更新料 | 契約形態 | 普通賃貸借契約 | |
| 取引態様 | 媒介 | 内見状況 | 入居中 |
| 入居時期 | 入居中 | SOHO・事務所 | |
| ペット | ペット可 | 間取り内訳 | 洋 : 7.5J / K:2J |
| キャンペーン情報・備考 | 本情報は賃料改定交渉の資料作成、収益物件の利回り試算、周辺エリアや最寄り駅の坪単価分析、次回募集開始時期の予測などにご活用いただけます。 | ||
※「どの不動産に頼めばいいのか分からない」「信頼できる営業マンの話を聞きたい」「一番親切な会社と契約したい」とお悩みの方におすすめなのが「高級賃貸バイブル」です。
高級賃貸バイブルは業界10年以上の熟練スタッフ群がお客様ファーストで対応します。
下記ボタンから、まずは無料でご相談下さい。
※内覧をご希望の際には、どうぞ物件のエントランス前にてお待ち合わせくださいませ。ご内覧後は、同じ場所でお別れとさせていただきます。お客様のご都合に合わせたスムーズなご案内を心がけておりますので、ご質問等がございましたら何なりとお申し付けください。 物件概要
| 物件名 |
| 築年月 |
|
|---|---|---|---|
| 所在地 | |||
| 交通 | |||
| 総戸数 |
| 総階数 |
|
| 構造 |
| ||
地図
物件までの道のりは、「拡大地図を表示」をクリックしてナビ機能をご利用ください。
部屋設備














建物設備

TVモニターホン

エレベーター

オートロック

宅配ボックス

敷地内ゴミ置場

駐輪場
リヴシティ田町の現在募集中のお部屋
- No rooms found for this property.





















