
| 賃料 | 予想金額:117,000〜137,000円程度 | 管理費 | 予想金額:4,000〜8,000円程度 |
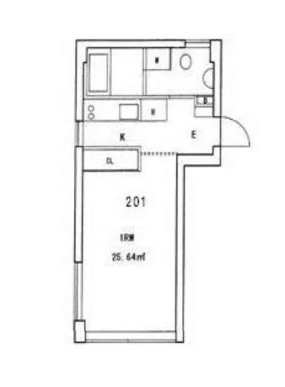
| 礼金/敷金 | 非公開(アーカイブ) | 平米数 | 25.64㎡ |
| 初期費用概算(参考) | 目安:414,600〜514,600 円 | みなし賃料(月額・参考) | 130,033〜150,033 円 |
| 備考 | 本ページは過去募集のアーカイブです。表示の金額は周辺相場・過去募集を踏まえた参考レンジであり、実際の契約金額・条件ではありません。 | ||
※上記みなし賃料(月額)は仲介手数料割引・無料&キャッシュバックを加味した高級賃貸バイブル限定の金額です。一般的なみなし賃料とは異なります。
【建物ページ】ベルファース芝パルクの詳細・最新空室はこちら▶▶選ばれる理由
仲介手数料無料・キャンペーン情報(毎月15名様限定)
〇引っ越しお祝い金25400円プレゼント(キャッシュバック)
〇仲介手数料無料キャンペーン
ベルファース芝パルク 201の口コミ・レビュー
この高級賃貸物件は、洋室8帖の広々とした空間を誇り、まるで舞踏会のフロアのように、あなたの心を躍ら…ベルファース芝パルク 201。あなたが今、目の前にいるのは、ただの住まいではありません。これは、人生の新たな章を開くための特別な舞台です。東京都港区芝公園2-9-10に佇むこの物件は、周囲の歴史的な香りが漂う場所で、南向きの窓から差し込む柔らかな陽射しが、あなたの日常に豊かな彩りを添えてくれます。
この高級賃貸物件は、洋室8帖の広々とした空間を誇り、まるで舞踏会のフロアのように、あなたの心を躍らせること間違いなしです。閑静な公園の近くに位置し、朝の目覚めに窓を開けると、心地よい風と鳥のさえずりが、まるでオーケストラのようにあなたを迎え入れてくれるでしょう。朝のコーヒータイムには、エレガントなカップから立ち上る香りが、心地よい余韻を与えてくれます。
ベルファース芝パルク 201は、あなたの生活と共に成長する存在です。オートロックのセキュリティが、あなたをしっかりと守り、安心感を与えてくれます。そして、宅配ボックスや駐輪場などの便利な設備が、都会の喧騒の中でも、ストレスフリーな生活を実現します。エレベーターの静かな動きは、あなたの移動を滑らかにし、まるで特別な旅路を楽しむかのように、心を満たしてくれます。
この物件の近隣には、歴史的な文化と芸術が息づいています。芝公園の緑あふれる景観や、伝統的な建物を眺めながら、あなたは日々の疲れを癒すことができるでしょう。夕暮れ時には、淡いオレンジ色の夕焼けが空を染め、あなたの部屋からその美しい景色を楽しむことができるのです。まるで映画のワンシーンのように、心に残る瞬間が日々の生活に彩りを加えてくれるでしょう。
ベルファース芝パルク 201は、あなたを待っています。この場所での生活は、単なる居住空間ではなく、あなたの夢を実現するための舞台です。ここでの毎日が、まるで美しい詩の一行のように、心に響くことでしょう。一緒にこの素敵な場所で、新たな物語を紡いでいきませんか。あなたの一歩が、素晴らしい未来への扉を開くのです。
バイブルスコア
バイブルスコア: 52.2
条件のいい物件です、引っ越しが2か月以内の場合は仮申し込みを検討すべき物件です。
このお部屋は、現在ご入居中のため空室情報はございません。ただし、将来的に募集が開始される際、バイブルスコアにおいて非常に高い評価が期待されます。特にご興味をお持ちの方は、今のうちにブックマークやお気に入りに登録していただくと、募集開始のお知らせをすぐに受け取ることができます。是非ともご検討くださいませ。
※バイブルスコア詳細はこちら
バイブルスコアとは独自のAI機械学習技術を利用した物件評価システムで、物件のおすすめ度を示します。最高得点は100点で、スコアが高いほど、よりおすすめの物件と評価されています。
写真
契約条件
| 賃料 | 予想金額:117,000〜137,000円程度 | 管理費 | 予想金額:4,000〜8,000円程度 |
| 礼金 | 非公開(アーカイブ) | 敷金 | 非公開(アーカイブ) |
| フリーレント | なし | 平米数 | 25.64㎡ |
| 間取り | 1K | 大型収納 | なし |
| 契約期間 | 2年 | 方角 | 南 |
| 更新料 | 1ヶ月 | 契約形態 | 普通賃貸借契約 |
| 取引態様 | 媒介 | 内見状況 | 入居中 |
| 入居時期 | 入居中 | SOHO・事務所 | 不可 |
| ペット | 不可 | 間取り内訳 | 洋室8帖 |
| キャンペーン情報・備考 | 本情報は賃料改定交渉の資料作成、収益物件の利回り試算、周辺エリアや最寄り駅の坪単価分析、次回募集開始時期の予測などにご活用いただけます。 | ||
※「どの不動産に頼めばいいのか分からない」「信頼できる営業マンの話を聞きたい」「一番親切な会社と契約したい」とお悩みの方におすすめなのが「高級賃貸バイブル」です。
高級賃貸バイブルは業界10年以上の熟練スタッフ群がお客様ファーストで対応します。
下記ボタンから、まずは無料でご相談下さい。
※内覧をご希望の際には、どうぞ物件のエントランス前にてお待ち合わせくださいませ。ご内覧後は、同じ場所でお別れとさせていただきます。お客様のご都合に合わせたスムーズなご案内を心がけておりますので、ご質問等がございましたら何なりとお申し付けください。 物件概要
| 物件名 |
| 築年月 |
|
|---|---|---|---|
| 所在地 | |||
| 交通 | |||
| 総戸数 |
| 総階数 |
|
| 構造 |
| ||
地図
物件までの道のりは、「拡大地図を表示」をクリックしてナビ機能をご利用ください。
部屋設備









建物設備

TVモニターホン

エレベーター

オートロック

宅配ボックス

敷地内ゴミ置場

駐輪場
ベルファース芝パルクの現在募集中のお部屋
- No rooms found for this property.

























