
| 賃料 | 予想金額:109,000〜129,000円程度 | 管理費 | 予想金額:4,000〜8,000円程度 |
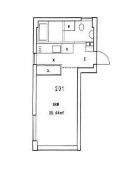
| 礼金/敷金 | 非公開(アーカイブ) | 平米数 | 25.64㎡ |
| 初期費用概算(参考) | 目安:388,200〜488,200 円 | みなし賃料(月額・参考) | 121,650〜141,650 円 |
| 備考 | 本ページは過去募集のアーカイブです。表示の金額は周辺相場・過去募集を踏まえた参考レンジであり、実際の契約金額・条件ではありません。 | ||
※上記みなし賃料(月額)は仲介手数料割引・無料&キャッシュバックを加味した高級賃貸バイブル限定の金額です。一般的なみなし賃料とは異なります。
【建物ページ】ベルファース芝パルクの詳細・最新空室はこちら▶▶選ばれる理由
仲介手数料無料・キャンペーン情報(毎月15名様限定)
〇引っ越しお祝い金23800円プレゼント(キャッシュバック)
〇仲介手数料無料キャンペーン
ベルファース芝パルク 301の口コミ・レビュー
ベルファース芝パルク 301は、あなたの心の奥深くに静かに語りかける、まるで一篇の詩のような住まいです。東京都港区芝公園2-9-10に位置するこの物件は、洗練されたデザインが施された1Kの間取りで、洋室は8帖の広さを誇ります。南向きの窓からは、優しい日差しが舞い込み、心を和ませる暖かな光に包まれます。この301号室での生活は、まさに日常から非日常へと誘う魔法の扉です。
まず、エレベーターを降りる…ベルファース芝パルク 301は、あなたの心の奥深くに静かに語りかける、まるで一篇の詩のような住まいです。東京都港区芝公園2-9-10に位置するこの物件は、洗練されたデザインが施された1Kの間取りで、洋室は8帖の広さを誇ります。南向きの窓からは、優しい日差しが舞い込み、心を和ませる暖かな光に包まれます。この301号室での生活は、まさに日常から非日常へと誘う魔法の扉です。
まず、エレベーターを降りると、あなたを迎え入れるのはおしゃれなデザイナーズ空間。目を引くのは、使い込まれたように温かみを感じる素材と洗練されたラインです。ここは、ただの住まいではなく、アートを身近に感じるステージ。あなたが一歩足を踏み入れるたびに、心躍る新しい物語が始まります。ふんわりと香る木の温もり、高級感溢れるインテリアがあなたの感性を刺激します。
ベルファース芝パルク 301の魅力は、ただの部屋に留まりません。宅配ボックスを使えば、外出の手間を省き、大切な時間を自分のために使うことができます。オートロックセキュリティのもと、静寂な午後に美しい音楽を流すような安心感に包まれ、心の安らぎを得ることができるでしょう。駐輪場も完備されており、周辺の魅力を自転車で巡る楽しみが広がります。静かな芝公園を舞台に、春には桜の花びらが舞い散り、夏には緑豊かな木々があなたを包み込み、秋には紅葉の美しさに息を呑むことでしょう。
この物件の特徴は、その場所に根差した歴史の息吹です。近くには、古くからの文化遺産が立ち並び、都会の喧騒とは対照的に、静かな時間が流れています。歴史ある芝公園は、散策するだけであなたの心に新たなインスピレーションを与えてくれるでしょう。ここでの生活は、まるで映画の一シーンのように、毎日が特別なエピソードに満ちているのです。
そして、夜が訪れると、部屋の灯りが柔らかく映し出す影は、あなたの生活を深く豊かにしてくれるでしょう。ソファに身を委ね、温かい飲み物を口に運ぶと、まるで時間が止まったかのような心地よさが広がります。目を閉じれば、都会の喧騒が遠くに消え、この特別な空間の中で、あなた自身を再発見することができるのです。
ベルファース芝パルク 301は、あなたにとっての「家」以上の存在です。それは、心を豊かにし、感性を刺激し、日常を特別なものに変えてくれる場所。この地での生活は、ただの毎日ではなく、特別な人生の物語を紡ぐための舞台となることでしょう。あなたの新たな生活の始まりを、ベルファース芝パルク 301でぜひ感じてみてください。
まず、エレベーターを降りる…ベルファース芝パルク 301は、あなたの心の奥深くに静かに語りかける、まるで一篇の詩のような住まいです。東京都港区芝公園2-9-10に位置するこの物件は、洗練されたデザインが施された1Kの間取りで、洋室は8帖の広さを誇ります。南向きの窓からは、優しい日差しが舞い込み、心を和ませる暖かな光に包まれます。この301号室での生活は、まさに日常から非日常へと誘う魔法の扉です。
まず、エレベーターを降りると、あなたを迎え入れるのはおしゃれなデザイナーズ空間。目を引くのは、使い込まれたように温かみを感じる素材と洗練されたラインです。ここは、ただの住まいではなく、アートを身近に感じるステージ。あなたが一歩足を踏み入れるたびに、心躍る新しい物語が始まります。ふんわりと香る木の温もり、高級感溢れるインテリアがあなたの感性を刺激します。
ベルファース芝パルク 301の魅力は、ただの部屋に留まりません。宅配ボックスを使えば、外出の手間を省き、大切な時間を自分のために使うことができます。オートロックセキュリティのもと、静寂な午後に美しい音楽を流すような安心感に包まれ、心の安らぎを得ることができるでしょう。駐輪場も完備されており、周辺の魅力を自転車で巡る楽しみが広がります。静かな芝公園を舞台に、春には桜の花びらが舞い散り、夏には緑豊かな木々があなたを包み込み、秋には紅葉の美しさに息を呑むことでしょう。
この物件の特徴は、その場所に根差した歴史の息吹です。近くには、古くからの文化遺産が立ち並び、都会の喧騒とは対照的に、静かな時間が流れています。歴史ある芝公園は、散策するだけであなたの心に新たなインスピレーションを与えてくれるでしょう。ここでの生活は、まるで映画の一シーンのように、毎日が特別なエピソードに満ちているのです。
そして、夜が訪れると、部屋の灯りが柔らかく映し出す影は、あなたの生活を深く豊かにしてくれるでしょう。ソファに身を委ね、温かい飲み物を口に運ぶと、まるで時間が止まったかのような心地よさが広がります。目を閉じれば、都会の喧騒が遠くに消え、この特別な空間の中で、あなた自身を再発見することができるのです。
ベルファース芝パルク 301は、あなたにとっての「家」以上の存在です。それは、心を豊かにし、感性を刺激し、日常を特別なものに変えてくれる場所。この地での生活は、ただの毎日ではなく、特別な人生の物語を紡ぐための舞台となることでしょう。あなたの新たな生活の始まりを、ベルファース芝パルク 301でぜひ感じてみてください。
バイブルスコア
バイブルスコア: 46
条件のいい物件です、引っ越しが2か月以内の場合は仮申し込みを検討すべき物件です。
※バイブルスコア詳細はこちら
バイブルスコアとは独自のAI機械学習技術を利用した物件評価システムで、物件のおすすめ度を示します。最高得点は100点で、スコアが高いほど、よりおすすめの物件と評価されています。
写真
契約条件
| 賃料 | 予想金額:109,000〜129,000円程度 | 管理費 | 予想金額:4,000〜8,000円程度 |
| 礼金 | 非公開(アーカイブ) | 敷金 | 非公開(アーカイブ) |
| フリーレント | なし | 平米数 | 25.64㎡ |
| 間取り | 1K | 大型収納 | なし |
| 契約期間 | 2年 | 方角 | 南 |
| 更新料 | 1ヶ月 | 契約形態 | 普通賃貸借契約 |
| 取引態様 | 媒介 | 内見状況 | 入居中 |
| 入居時期 | 入居中 | SOHO・事務所 | 不可 |
| ペット | 不可 | 間取り内訳 | 洋室8帖 |
| キャンペーン情報・備考 | 本情報は賃料改定交渉の資料作成、収益物件の利回り試算、周辺エリアや最寄り駅の坪単価分析、次回募集開始時期の予測などにご活用いただけます。 | ||
※「どの不動産に頼めばいいのか分からない」「信頼できる営業マンの話を聞きたい」「一番親切な会社と契約したい」とお悩みの方におすすめなのが「高級賃貸バイブル」です。
高級賃貸バイブルは業界10年以上の熟練スタッフ群がお客様ファーストで対応します。
下記ボタンから、まずは無料でご相談下さい。
※内覧をご希望の際には、どうぞ物件のエントランス前にてお待ち合わせくださいませ。ご内覧後は、同じ場所でお別れとさせていただきます。お客様のご都合に合わせたスムーズなご案内を心がけておりますので、ご質問等がございましたら何なりとお申し付けください。 物件概要
| 物件名 |
| 築年月 |
|
|---|---|---|---|
| 所在地 | |||
| 交通 | |||
| 総戸数 |
| 総階数 |
|
| 構造 |
| ||
地図
物件までの道のりは、「拡大地図を表示」をクリックしてナビ機能をご利用ください。
部屋設備









建物設備

TVモニターホン

エレベーター

オートロック

宅配ボックス

敷地内ゴミ置場

駐輪場
ベルファース芝パルクの現在募集中のお部屋
- No rooms found for this property.

























