
| 賃料 | 予想金額:278,000〜298,000円程度 | 管理費 | 予想金額:18,000〜22,000円程度 |
| 礼金/敷金 | 非公開(アーカイブ) | 平米数 | 55.32㎡ |
| 初期費用概算(参考) | 目安:1,367,500〜1,467,500 円 | みなし賃料(月額・参考) | 321,531〜341,531 円 |
| 備考 | 本ページは過去募集のアーカイブです。表示の金額は周辺相場・過去募集を踏まえた参考レンジであり、実際の契約金額・条件ではありません。 | ||
※上記みなし賃料(月額)は仲介手数料割引・無料&キャッシュバックを加味した高級賃貸バイブル限定の金額です。一般的なみなし賃料とは異なります。
【建物ページ】クレストプライムタワー芝の詳細・最新空室はこちら▶▶選ばれる理由
仲介手数料無料・キャンペーン情報(毎月15名様限定)
〇仲介手数料割引キャンペーン
クレストプライムタワー芝 2514の口コミ・レビュー
クレストプライムタワー芝 2514。これは、単なる住居ではなく、人生の新たな章を開くための舞台であり、洗練されたスタイルを持ったまるで一流のアート作品のような存在です。この美しいタワーは、東京の心臓部、港区芝に堂々と構え、その優雅さと気品は見る者を魅了してやみません。あなたがこの2514号室に一歩足を踏み入れると、まるで異次元の世界へと誘われる感覚を覚えることでしょう。
この高層のパノラマからは…クレストプライムタワー芝 2514。これは、単なる住居ではなく、人生の新たな章を開くための舞台であり、洗練されたスタイルを持ったまるで一流のアート作品のような存在です。この美しいタワーは、東京の心臓部、港区芝に堂々と構え、その優雅さと気品は見る者を魅了してやみません。あなたがこの2514号室に一歩足を踏み入れると、まるで異次元の世界へと誘われる感覚を覚えることでしょう。
この高層のパノラマからは、北の景色を巧みに捉え、東京の街並みが一望できます。どの窓からでも、晴れた日の光が柔らかく室内に差し込み、心地よい温もりを感じることができるでしょう。ここでの朝は、目覚めと共に新鮮な空気が心を清め、贅沢なコーヒーの香りがキッチンから漂ってきます。2.8㎡のキッチンは、シェフとしての腕を振るうことを喜びに変え、家族や友人たちを招いて美味しい料理を振る舞うことができる特別な空間です。
クレストプライムタワー芝 2514の生活は、まるで映画のワンシーンのように展開されます。リビングダイニングは、13.7㎡の広がりを持ち、あなたの心を豊かにする様々な瞬間を共有する場となるでしょう。ふかふかのソファに腰を下ろし、日が沈む瞬間を眺めながら、心地よい音楽が耳に届く――その様子はまるで名画の中の登場人物のよう。外からは街の音が微かに聞こえ、都会の喧騒と共存する贅沢な生活を実感することができます。
この物件は、ただの住まいではなく、生活を演出する舞台装置です。24時間管理された安心な環境の中、オートロックシステムがあなたのプライバシーをしっかりと守り、ゲストルームやラウンジなどの共用施設は、友人とのひとときを素晴らしいものに変える素敵な空間を提供します。また、フィットネスルームでの汗を流すひとときや、宅配ボックスを通じて届けられる美味しい食材も、生活の幅を広げる要素として彩りを添えます。
クレストプライムタワー芝 2514の近隣には、歴史的な文化や洗練されたアートが息づいています。浜松町駅からのアクセスはわずか徒歩6分。その立地は、ビジネスの中心地へもアクセスしやすいだけでなく、心の栄養となる美術館や静謐な公園へも徒歩で訪れることができるのです。東京の歴史と現代のエネルギーが交差する場所で、あなたの人生はさらに豊かに広がっていくことでしょう。
この2514号室に住まうことは、ただの生活ではなく、洗練されたライフスタイルを手に入れることなのです。新たな人生の物語を、このクレストプライムタワー芝 2514で始めてみてはいかがでしょうか。あなたを待っているのは、最高に素晴らしい日々と、心満たされる空間です。
この高層のパノラマからは…クレストプライムタワー芝 2514。これは、単なる住居ではなく、人生の新たな章を開くための舞台であり、洗練されたスタイルを持ったまるで一流のアート作品のような存在です。この美しいタワーは、東京の心臓部、港区芝に堂々と構え、その優雅さと気品は見る者を魅了してやみません。あなたがこの2514号室に一歩足を踏み入れると、まるで異次元の世界へと誘われる感覚を覚えることでしょう。
この高層のパノラマからは、北の景色を巧みに捉え、東京の街並みが一望できます。どの窓からでも、晴れた日の光が柔らかく室内に差し込み、心地よい温もりを感じることができるでしょう。ここでの朝は、目覚めと共に新鮮な空気が心を清め、贅沢なコーヒーの香りがキッチンから漂ってきます。2.8㎡のキッチンは、シェフとしての腕を振るうことを喜びに変え、家族や友人たちを招いて美味しい料理を振る舞うことができる特別な空間です。
クレストプライムタワー芝 2514の生活は、まるで映画のワンシーンのように展開されます。リビングダイニングは、13.7㎡の広がりを持ち、あなたの心を豊かにする様々な瞬間を共有する場となるでしょう。ふかふかのソファに腰を下ろし、日が沈む瞬間を眺めながら、心地よい音楽が耳に届く――その様子はまるで名画の中の登場人物のよう。外からは街の音が微かに聞こえ、都会の喧騒と共存する贅沢な生活を実感することができます。
この物件は、ただの住まいではなく、生活を演出する舞台装置です。24時間管理された安心な環境の中、オートロックシステムがあなたのプライバシーをしっかりと守り、ゲストルームやラウンジなどの共用施設は、友人とのひとときを素晴らしいものに変える素敵な空間を提供します。また、フィットネスルームでの汗を流すひとときや、宅配ボックスを通じて届けられる美味しい食材も、生活の幅を広げる要素として彩りを添えます。
クレストプライムタワー芝 2514の近隣には、歴史的な文化や洗練されたアートが息づいています。浜松町駅からのアクセスはわずか徒歩6分。その立地は、ビジネスの中心地へもアクセスしやすいだけでなく、心の栄養となる美術館や静謐な公園へも徒歩で訪れることができるのです。東京の歴史と現代のエネルギーが交差する場所で、あなたの人生はさらに豊かに広がっていくことでしょう。
この2514号室に住まうことは、ただの生活ではなく、洗練されたライフスタイルを手に入れることなのです。新たな人生の物語を、このクレストプライムタワー芝 2514で始めてみてはいかがでしょうか。あなたを待っているのは、最高に素晴らしい日々と、心満たされる空間です。
バイブルスコア
バイブルスコア: 12.6
高級な物件でない場合は割高な物件です。。
※バイブルスコア詳細はこちら
バイブルスコアとは独自のAI機械学習技術を利用した物件評価システムで、物件のおすすめ度を示します。最高得点は100点で、スコアが高いほど、よりおすすめの物件と評価されています。
写真
契約条件
| 賃料 | 予想金額:278,000〜298,000円程度 | 管理費 | 予想金額:18,000〜22,000円程度 |
| 礼金 | 非公開(アーカイブ) | 敷金 | 非公開(アーカイブ) |
| フリーレント | なし | 平米数 | 55.32㎡ |
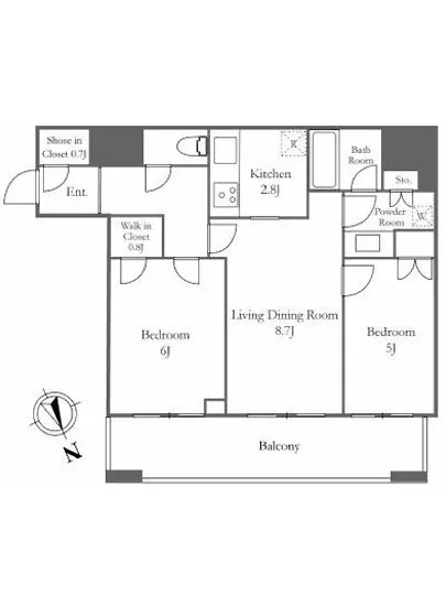
| 間取り | 1LDK | 大型収納 | WIC+SIC |
| 契約期間 | 方角 | 北 | |
| 更新料 | 契約形態 | 定期借家契約 | |
| 取引態様 | 媒介 | 内見状況 | 入居中 |
| 入居時期 | 入居中 | SOHO・事務所 | |
| ペット | 間取り内訳 | 洋:6.0 LD:13.7 K:2.8 | |
| キャンペーン情報・備考 | 本情報は賃料改定交渉の資料作成、収益物件の利回り試算、周辺エリアや最寄り駅の坪単価分析、次回募集開始時期の予測などにご活用いただけます。 | ||
※「どの不動産に頼めばいいのか分からない」「信頼できる営業マンの話を聞きたい」「一番親切な会社と契約したい」とお悩みの方におすすめなのが「高級賃貸バイブル」です。
高級賃貸バイブルは業界10年以上の熟練スタッフ群がお客様ファーストで対応します。
下記ボタンから、まずは無料でご相談下さい。
※内覧をご希望の際には、どうぞ物件のエントランス前にてお待ち合わせくださいませ。ご内覧後は、同じ場所でお別れとさせていただきます。お客様のご都合に合わせたスムーズなご案内を心がけておりますので、ご質問等がございましたら何なりとお申し付けください。 物件概要
| 物件名 |
| 築年月 |
|
|---|---|---|---|
| 所在地 | |||
| 交通 | |||
| 総戸数 |
| 総階数 |
|
| 構造 |
| ||
地図
物件までの道のりは、「拡大地図を表示」をクリックしてナビ機能をご利用ください。
部屋設備

















建物設備

24時間管理

TVモニターホン

エレベーター

オートロック

ゲストルーム

バイク置場

フィットネス

フロントサービス

ラウンジ

宅配ボックス

敷地内ゴミ置場

駐車場平置き

駐車場機械式

駐輪場
クレストプライムタワー芝の現在募集中のお部屋
- No rooms found for this property.






























