
| 賃料 | 予想金額:208,000〜228,000円程度 | 管理費 | 予想金額:18,000〜22,000円程度 |
| 礼金/敷金 | 非公開(アーカイブ) | 平米数 | 45.07㎡ |
| 初期費用概算(参考) | 目安:834,500〜934,500 円 | みなし賃料(月額・参考) | 241,885〜261,885 円 |
| 備考 | 本ページは過去募集のアーカイブです。表示の金額は周辺相場・過去募集を踏まえた参考レンジであり、実際の契約金額・条件ではありません。 | ||
※上記みなし賃料(月額)は仲介手数料割引・無料&キャッシュバックを加味した高級賃貸バイブル限定の金額です。一般的なみなし賃料とは異なります。
【建物ページ】コビキス銀座の詳細・最新空室はこちら▶▶選ばれる理由
仲介手数料無料・キャンペーン情報(毎月15名様限定)
〇仲介手数料割引キャンペーン
コビキス銀座 402の口コミ・レビュー
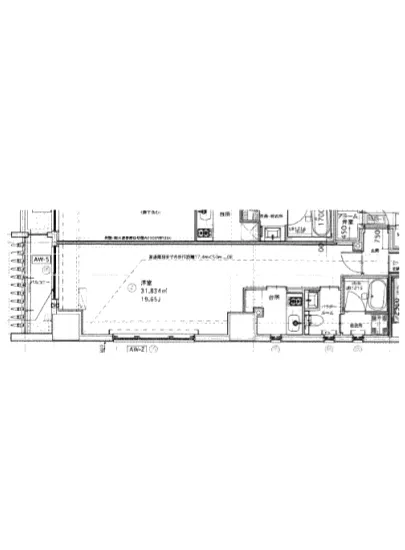
コビキス銀座 402。東京都中央区の華やかな銀座の中心地に佇むこの物件は、まるでこの街の宝石のように輝いています。402号室は、あなたが新たな生活の舞台として選ぶに値する、心躍る空間を提供します。専有面積45.07㎡の中には、さまざまな可能性が広がっており、あなた自身の個性を存分に表現できる場所です。
この1Kの住まいは、まるで貴族の居室のような広がりを秘めています。洋室は19.65帖の贅沢さを…コビキス銀座 402。東京都中央区の華やかな銀座の中心地に佇むこの物件は、まるでこの街の宝石のように輝いています。402号室は、あなたが新たな生活の舞台として選ぶに値する、心躍る空間を提供します。専有面積45.07㎡の中には、さまざまな可能性が広がっており、あなた自身の個性を存分に表現できる場所です。
この1Kの住まいは、まるで貴族の居室のような広がりを秘めています。洋室は19.65帖の贅沢さを持ち、窓から差し込む北西の光が、穏やかな木漏れ日のように部屋を包み込みます。その光の中で、あなたは毎日の生活を楽しむためのさまざまな場面を描くことができます。朝、カーテンを開けて新しい一日の訪れを感じる瞬間は、まるで映画のヒロインのようです。新鮮なコーヒーの香りが漂う朝食のテーブルに向かうと、それが一日の始まりを告げているかのように心が躍ります。
コビキス銀座 402には、あなたのプライバシーを守るためのオートロックや、宅配ボックスといった便利な設備が整っています。帰宅するたびに、管理人が優しく見守ってくれる安心感は、まるであなたが特別な人であるかのような感覚に浸らせてくれます。そのエレベーターに乗り込むたび、まるで高級ホテルのロビーに足を踏み入れたかのような高揚感を味わうことでしょう。
銀座という地名は、ただの場所ではありません。歴史や文化が織り成す、まるで一枚の絵画のような風景です。周囲には、美術館やギャラリー、ショップが点在し、あなたが歩くその一歩一歩が、芸術と文化に触れる旅となります。夜になると、銀座の街は美しくライトアップされ、まるで星空のようにきらめきます。その中に足を踏み入れることで、心が豊かになり、日常を忘れさせてくれる特別な体験が待っています。
また、東京メトロ日比谷線の東銀座駅まで徒歩2分というアクセスの良さも、このコビキス銀座 402の魅力の一つです。日々の忙しさの中でも、離れた場所への移動がスムーズで、仕事や遊び、所用など、あらゆるシーンにおいて自由に動き回ることができます。まるであなたの後ろに、心強いサポーターがついているかのような感覚です。
コビキス銀座 402は、単なる住まいではなく、あなたの人生を彩る舞台です。この場所での生活は、日々の小さな幸せとともに、心の豊かさをも育んでくれることでしょう。ぜひ、この物件で新たな物語を紡いでみませんか。あなたの人生のページに、この特別な場所を加えて、素晴らしい未来を描いてください。
この1Kの住まいは、まるで貴族の居室のような広がりを秘めています。洋室は19.65帖の贅沢さを…コビキス銀座 402。東京都中央区の華やかな銀座の中心地に佇むこの物件は、まるでこの街の宝石のように輝いています。402号室は、あなたが新たな生活の舞台として選ぶに値する、心躍る空間を提供します。専有面積45.07㎡の中には、さまざまな可能性が広がっており、あなた自身の個性を存分に表現できる場所です。
この1Kの住まいは、まるで貴族の居室のような広がりを秘めています。洋室は19.65帖の贅沢さを持ち、窓から差し込む北西の光が、穏やかな木漏れ日のように部屋を包み込みます。その光の中で、あなたは毎日の生活を楽しむためのさまざまな場面を描くことができます。朝、カーテンを開けて新しい一日の訪れを感じる瞬間は、まるで映画のヒロインのようです。新鮮なコーヒーの香りが漂う朝食のテーブルに向かうと、それが一日の始まりを告げているかのように心が躍ります。
コビキス銀座 402には、あなたのプライバシーを守るためのオートロックや、宅配ボックスといった便利な設備が整っています。帰宅するたびに、管理人が優しく見守ってくれる安心感は、まるであなたが特別な人であるかのような感覚に浸らせてくれます。そのエレベーターに乗り込むたび、まるで高級ホテルのロビーに足を踏み入れたかのような高揚感を味わうことでしょう。
銀座という地名は、ただの場所ではありません。歴史や文化が織り成す、まるで一枚の絵画のような風景です。周囲には、美術館やギャラリー、ショップが点在し、あなたが歩くその一歩一歩が、芸術と文化に触れる旅となります。夜になると、銀座の街は美しくライトアップされ、まるで星空のようにきらめきます。その中に足を踏み入れることで、心が豊かになり、日常を忘れさせてくれる特別な体験が待っています。
また、東京メトロ日比谷線の東銀座駅まで徒歩2分というアクセスの良さも、このコビキス銀座 402の魅力の一つです。日々の忙しさの中でも、離れた場所への移動がスムーズで、仕事や遊び、所用など、あらゆるシーンにおいて自由に動き回ることができます。まるであなたの後ろに、心強いサポーターがついているかのような感覚です。
コビキス銀座 402は、単なる住まいではなく、あなたの人生を彩る舞台です。この場所での生活は、日々の小さな幸せとともに、心の豊かさをも育んでくれることでしょう。ぜひ、この物件で新たな物語を紡いでみませんか。あなたの人生のページに、この特別な場所を加えて、素晴らしい未来を描いてください。
バイブルスコア
バイブルスコア: 69
かなり条件の良い物件です、即仮押さえをおすすめする物件です!
このお部屋は、現在ご入居中のため空室情報はございません。ただし、将来的に募集が開始される際、バイブルスコアにおいて非常に高い評価が期待されます。特にご興味をお持ちの方は、今のうちにブックマークやお気に入りに登録していただくと、募集開始のお知らせをすぐに受け取ることができます。是非ともご検討くださいませ。
※バイブルスコア詳細はこちら
バイブルスコアとは独自のAI機械学習技術を利用した物件評価システムで、物件のおすすめ度を示します。最高得点は100点で、スコアが高いほど、よりおすすめの物件と評価されています。
写真
現在写真が登録されていません契約条件
| 賃料 | 予想金額:208,000〜228,000円程度 | 管理費 | 予想金額:18,000〜22,000円程度 |
| 礼金 | 非公開(アーカイブ) | 敷金 | 非公開(アーカイブ) |
| フリーレント | なし | 平米数 | 45.07㎡ |
| 間取り | 1K | 大型収納 | |
| 契約期間 |
| 方角 | 北西 |
| 更新料 | 契約形態 | 普通賃貸借契約 | |
| 取引態様 | 媒介 | 内見状況 | 入居中 |
| 入居時期 | 入居中 | SOHO・事務所 | 事務所(SOHO)可 |
| ペット | 間取り内訳 | 洋:19.65 | |
| キャンペーン情報・備考 | 本情報は賃料改定交渉の資料作成、収益物件の利回り試算、周辺エリアや最寄り駅の坪単価分析、次回募集開始時期の予測などにご活用いただけます。 | ||
※「どの不動産に頼めばいいのか分からない」「信頼できる営業マンの話を聞きたい」「一番親切な会社と契約したい」とお悩みの方におすすめなのが「高級賃貸バイブル」です。
高級賃貸バイブルは業界10年以上の熟練スタッフ群がお客様ファーストで対応します。
下記ボタンから、まずは無料でご相談下さい。
※内覧をご希望の際には、どうぞ物件のエントランス前にてお待ち合わせくださいませ。ご内覧後は、同じ場所でお別れとさせていただきます。お客様のご都合に合わせたスムーズなご案内を心がけておりますので、ご質問等がございましたら何なりとお申し付けください。 物件概要
| 物件名 |
| 築年月 |
|
|---|---|---|---|
| 所在地 | |||
| 交通 | |||
| 総戸数 |
| 総階数 |
|
| 構造 |
| ||
地図
物件までの道のりは、「拡大地図を表示」をクリックしてナビ機能をご利用ください。
部屋設備












建物設備

TVモニターホン

エレベーター

オートロック

宅配ボックス

敷地内ゴミ置場

管理人

駐輪場
コビキス銀座の現在募集中のお部屋
- No rooms found for this property.
