
| 賃料 | 予想金額:328,000〜348,000円程度 | 管理費 | 予想金額:18,000〜22,000円程度 |
| 礼金/敷金 | 非公開(アーカイブ) | 平米数 | 55.82㎡ |
| 初期費用概算(参考) | 目安:1,254,500〜1,354,500 円 | みなし賃料(月額・参考) | 368,135〜388,135 円 |
| 備考 | 本ページは過去募集のアーカイブです。表示の金額は周辺相場・過去募集を踏まえた参考レンジであり、実際の契約金額・条件ではありません。 | ||
※上記みなし賃料(月額)は仲介手数料割引・無料&キャッシュバックを加味した高級賃貸バイブル限定の金額です。一般的なみなし賃料とは異なります。
【建物ページ】コビキス銀座の詳細・最新空室はこちら▶▶選ばれる理由
仲介手数料無料・キャンペーン情報(毎月15名様限定)
〇仲介手数料割引キャンペーン
コビキス銀座 1001の口コミ・レビュー
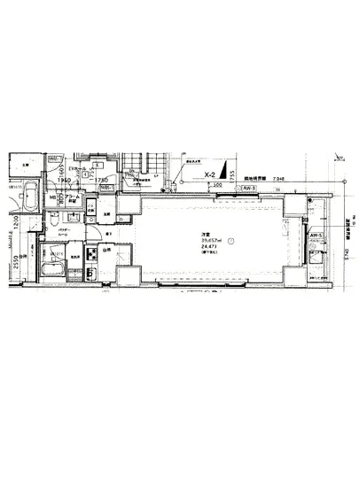
コビキス銀座 1001。この名は、まるで銀座の真髄を宿した高級な宝石のように、豊かな生活を約束する場所です。最上階に位置するこの一室は、南東の光が優雅に差し込む、まるで朝焼けが心を温めてくれるかのような特別な空間。55.82㎡の広がりを持ち、24.47Jの洋室は、まるで自分だけの美術館にいるかのように、心を豊かにするアートが宿っています。
朝、窓を開けると、銀座の街の賑わいと共に、喧騒の中に潜む…コビキス銀座 1001。この名は、まるで銀座の真髄を宿した高級な宝石のように、豊かな生活を約束する場所です。最上階に位置するこの一室は、南東の光が優雅に差し込む、まるで朝焼けが心を温めてくれるかのような特別な空間。55.82㎡の広がりを持ち、24.47Jの洋室は、まるで自分だけの美術館にいるかのように、心を豊かにするアートが宿っています。
朝、窓を開けると、銀座の街の賑わいと共に、喧騒の中に潜む優雅さが漂ってきます。高級なブティックの軒先で響く靴音、カフェの香ばしいコーヒーの香り、そして通りを行き交う人々の笑い声が、あなたの生活に色を添えてくれるのです。ここは、まるで映画のワンシーンにいるかのような心躍る街なのです。
コビキス銀座 1001は、ただの住まいではなく、心の故郷のように感じられる場所です。オートロックや宅配ボックスが備え付けられ、安心感に満ち溢れています。自分のプライバシーを守りつつ、自由に訪れる友人たちとの楽しい時間を享受できるのです。エレベーターに乗るたびに、まるで自分だけの特別な空間へと導かれているような感覚を味わえます。
夜が訪れると、コビキス銀座 1001はまた別の顔を見せます。東銀座駅から徒歩2分という立地は、夜の街の美しい灯りを手の届くところに呼び寄せます。お洒落なレストランやカフェでの食事、友人との楽しいひとときが、まるで高級なバンケットのような贅沢さで心を満たしてくれるでしょう。特別な料理の香ばしい香りが、微かに鼻腔をくすぐり、まるでシェフが自宅に訪れてくれるような贅沢を感じることでしょう。
この物件は、ただの賃貸ではなく、都心に生きる現代のアーティストたちに、何か特別なものを提供しています。周囲の歴史ある建物や文化的なサービスが、アートのように生活に色を添え、毎日が美しい瞬間の連続であることを実感させてくれるのです。自らのライフスタイルをアップデートし、まるで映画の主人公のように生活が展開していくことでしょう。
コビキス銀座 1001は、あなたの想像を超える素晴らしい体験が待っている場所です。ここでの日常は、まるで洗練された美術品のように、じっくりと味わうことでその真価が分かります。心を豊かにする生活が待っているこの場所は、人生を楽しむための最高の舞台装置なのです。住むことが芸術である、そんな新しい感覚を是非とも味わいに来てください。
朝、窓を開けると、銀座の街の賑わいと共に、喧騒の中に潜む…コビキス銀座 1001。この名は、まるで銀座の真髄を宿した高級な宝石のように、豊かな生活を約束する場所です。最上階に位置するこの一室は、南東の光が優雅に差し込む、まるで朝焼けが心を温めてくれるかのような特別な空間。55.82㎡の広がりを持ち、24.47Jの洋室は、まるで自分だけの美術館にいるかのように、心を豊かにするアートが宿っています。
朝、窓を開けると、銀座の街の賑わいと共に、喧騒の中に潜む優雅さが漂ってきます。高級なブティックの軒先で響く靴音、カフェの香ばしいコーヒーの香り、そして通りを行き交う人々の笑い声が、あなたの生活に色を添えてくれるのです。ここは、まるで映画のワンシーンにいるかのような心躍る街なのです。
コビキス銀座 1001は、ただの住まいではなく、心の故郷のように感じられる場所です。オートロックや宅配ボックスが備え付けられ、安心感に満ち溢れています。自分のプライバシーを守りつつ、自由に訪れる友人たちとの楽しい時間を享受できるのです。エレベーターに乗るたびに、まるで自分だけの特別な空間へと導かれているような感覚を味わえます。
夜が訪れると、コビキス銀座 1001はまた別の顔を見せます。東銀座駅から徒歩2分という立地は、夜の街の美しい灯りを手の届くところに呼び寄せます。お洒落なレストランやカフェでの食事、友人との楽しいひとときが、まるで高級なバンケットのような贅沢さで心を満たしてくれるでしょう。特別な料理の香ばしい香りが、微かに鼻腔をくすぐり、まるでシェフが自宅に訪れてくれるような贅沢を感じることでしょう。
この物件は、ただの賃貸ではなく、都心に生きる現代のアーティストたちに、何か特別なものを提供しています。周囲の歴史ある建物や文化的なサービスが、アートのように生活に色を添え、毎日が美しい瞬間の連続であることを実感させてくれるのです。自らのライフスタイルをアップデートし、まるで映画の主人公のように生活が展開していくことでしょう。
コビキス銀座 1001は、あなたの想像を超える素晴らしい体験が待っている場所です。ここでの日常は、まるで洗練された美術品のように、じっくりと味わうことでその真価が分かります。心を豊かにする生活が待っているこの場所は、人生を楽しむための最高の舞台装置なのです。住むことが芸術である、そんな新しい感覚を是非とも味わいに来てください。
バイブルスコア
バイブルスコア: 24.2
平均的なスコアです。
※バイブルスコア詳細はこちら
バイブルスコアとは独自のAI機械学習技術を利用した物件評価システムで、物件のおすすめ度を示します。最高得点は100点で、スコアが高いほど、よりおすすめの物件と評価されています。
写真
現在写真が登録されていません契約条件
| 賃料 | 予想金額:328,000〜348,000円程度 | 管理費 | 予想金額:18,000〜22,000円程度 |
| 礼金 | 非公開(アーカイブ) | 敷金 | 非公開(アーカイブ) |
| フリーレント | なし | 平米数 | 55.82㎡ |
| 間取り | 1K | 大型収納 | |
| 契約期間 |
| 方角 | 南東 |
| 更新料 | 契約形態 | 普通賃貸借契約 | |
| 取引態様 | 媒介 | 内見状況 | 入居中 |
| 入居時期 | 入居中 | SOHO・事務所 | 事務所(SOHO)可 |
| ペット | ペット可 | 間取り内訳 | 洋:24.47J |
| キャンペーン情報・備考 | 本情報は賃料改定交渉の資料作成、収益物件の利回り試算、周辺エリアや最寄り駅の坪単価分析、次回募集開始時期の予測などにご活用いただけます。 | ||
※「どの不動産に頼めばいいのか分からない」「信頼できる営業マンの話を聞きたい」「一番親切な会社と契約したい」とお悩みの方におすすめなのが「高級賃貸バイブル」です。
高級賃貸バイブルは業界10年以上の熟練スタッフ群がお客様ファーストで対応します。
下記ボタンから、まずは無料でご相談下さい。
※内覧をご希望の際には、どうぞ物件のエントランス前にてお待ち合わせくださいませ。ご内覧後は、同じ場所でお別れとさせていただきます。お客様のご都合に合わせたスムーズなご案内を心がけておりますので、ご質問等がございましたら何なりとお申し付けください。 物件概要
| 物件名 |
| 築年月 |
|
|---|---|---|---|
| 所在地 | |||
| 交通 | |||
| 総戸数 |
| 総階数 |
|
| 構造 |
| ||
地図
物件までの道のりは、「拡大地図を表示」をクリックしてナビ機能をご利用ください。
部屋設備














建物設備

TVモニターホン

エレベーター

オートロック

宅配ボックス

敷地内ゴミ置場

管理人

駐輪場
コビキス銀座の現在募集中のお部屋
- No rooms found for this property.
