
| 賃料 | 予想金額:275,000〜295,000円程度 | 管理費 | 予想金額:8,000〜12,000円程度 |
| 礼金/敷金 | 非公開(アーカイブ) | 平米数 | 51.02㎡ |
| 初期費用概算(参考) | 目安:1,087,000〜1,187,000 円 | みなし賃料(月額・参考) | 302,750〜322,750 円 |
| 備考 | 本ページは過去募集のアーカイブです。表示の金額は周辺相場・過去募集を踏まえた参考レンジであり、実際の契約金額・条件ではありません。 | ||
※上記みなし賃料(月額)は仲介手数料割引・無料&キャッシュバックを加味した高級賃貸バイブル限定の金額です。一般的なみなし賃料とは異なります。
【建物ページ】アジリア代々木J’sの詳細・最新空室はこちら▶▶選ばれる理由
仲介手数料無料・キャンペーン情報(毎月15名様限定)
〇仲介手数料割引キャンペーン
アジリア代々木J’s 301の口コミ・レビュー
「アジリア代々木J's 301」という名の翼を持つ住まいは、あなたの心に温もりをもたらすきらめきの空間です。この高級賃貸物件は、東京都渋谷区代々木1-21-16に位置し、まるで時を超えた名作映画のワンシーンに導いてくれるような魅力を秘めています。301号室の扉を開ければ、すぐに広がるのは、洗練されたデザインと機能性が共存する世界。北西の方角からは穏やかな風が吹き込み、心地よい陽射しがふわりと舞い込…「アジリア代々木J's 301」という名の翼を持つ住まいは、あなたの心に温もりをもたらすきらめきの空間です。この高級賃貸物件は、東京都渋谷区代々木1-21-16に位置し、まるで時を超えた名作映画のワンシーンに導いてくれるような魅力を秘めています。301号室の扉を開ければ、すぐに広がるのは、洗練されたデザインと機能性が共存する世界。北西の方角からは穏やかな風が吹き込み、心地よい陽射しがふわりと舞い込む様子が目に浮かびます。
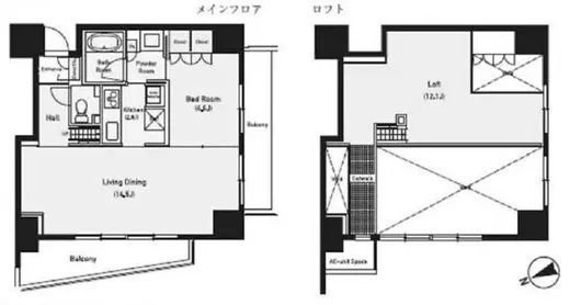
ルームに足を踏み入れると、14.5帖のLDKはまるでパリのカフェのように、あなたを迎え入れます。温かみのある木目のフローリングは素足で触れると、そのぬくもりが心に染みわたり、あたかも大地に抱かれているかのような感覚を味わえます。キッチンからは料理の香ばしい香りが立ち上り、まるであなた自身がシェフになったかのように、料理の楽しさを引き立てます。家族や友人と共に過ごす時間が、心温まるメロディのように奏でられることでしょう。
洋室6.6帖は、あなたのプライベートな隠れ家。柔らかな照明が夜の闇を優しく包み込み、静寂の中に身を委ねれば、時間がゆっくりと流れる感覚を楽しむことができます。ここは、あなたの夢や希望が息づく場所。朝の光が差し込む瞬間には、床に描かれる美しい影模様が、まるで新たな一日を告げるメッセージのように感じられます。
そして、この住まいの心躍るポイントの一つが、12.1帖のロフトです。この空間はまるで秘密の隠れ家のようで、あなた自身のアートスタジオや書斎として活用することができます。外の喧騒を忘れ、自分だけの創造の場に身を置けば、インスピレーションが沸きあがり、日常の中に新たな色彩を加えることでしょう。
アジリア代々木J's 301は、ただの住まいではありません。ここは、あなたの人生の一部となる舞台。周辺には歴史と文化が息づいており、代々木駅から徒歩3分という便利さは、まさに現代生活の利便性を象徴しています。周囲には美しい公園もあり、散策すれば自然の香りと共にアートイベントの情報を耳にすることもあるでしょう。心ドキドキするような出会いや発見が、きっと待っています。
この物件には、エレベーター、オートロック、宅配ボックスなど、現代的な便利さも備わっており、デザイナーズならではのスタイリッシュな雰囲気が漂います。管理人の温かいサポートもあり、安心して暮らすことができます。駐車場や駐輪場も完備されており、あなたのライフスタイルを豊かにするための舞台装置が整っています。
アジリア代々木J's 301という響きが心に響くあなたに、この空間での生活を通じて語りかけたいことがあります。それは、日々の小さな幸せを大切にし、自分だけのストーリーを紡いでほしいということ。ここで築かれる日常は、まるで心温まる映画の一シーンのように、あなたの人生を彩ることでしょう。
ルームに足を踏み入れると、14.5帖のLDKはまるでパリのカフェのように、あなたを迎え入れます。温かみのある木目のフローリングは素足で触れると、そのぬくもりが心に染みわたり、あたかも大地に抱かれているかのような感覚を味わえます。キッチンからは料理の香ばしい香りが立ち上り、まるであなた自身がシェフになったかのように、料理の楽しさを引き立てます。家族や友人と共に過ごす時間が、心温まるメロディのように奏でられることでしょう。
洋室6.6帖は、あなたのプライベートな隠れ家。柔らかな照明が夜の闇を優しく包み込み、静寂の中に身を委ねれば、時間がゆっくりと流れる感覚を楽しむことができます。ここは、あなたの夢や希望が息づく場所。朝の光が差し込む瞬間には、床に描かれる美しい影模様が、まるで新たな一日を告げるメッセージのように感じられます。
そして、この住まいの心躍るポイントの一つが、12.1帖のロフトです。この空間はまるで秘密の隠れ家のようで、あなた自身のアートスタジオや書斎として活用することができます。外の喧騒を忘れ、自分だけの創造の場に身を置けば、インスピレーションが沸きあがり、日常の中に新たな色彩を加えることでしょう。
アジリア代々木J's 301は、ただの住まいではありません。ここは、あなたの人生の一部となる舞台。周辺には歴史と文化が息づいており、代々木駅から徒歩3分という便利さは、まさに現代生活の利便性を象徴しています。周囲には美しい公園もあり、散策すれば自然の香りと共にアートイベントの情報を耳にすることもあるでしょう。心ドキドキするような出会いや発見が、きっと待っています。
この物件には、エレベーター、オートロック、宅配ボックスなど、現代的な便利さも備わっており、デザイナーズならではのスタイリッシュな雰囲気が漂います。管理人の温かいサポートもあり、安心して暮らすことができます。駐車場や駐輪場も完備されており、あなたのライフスタイルを豊かにするための舞台装置が整っています。
アジリア代々木J's 301という響きが心に響くあなたに、この空間での生活を通じて語りかけたいことがあります。それは、日々の小さな幸せを大切にし、自分だけのストーリーを紡いでほしいということ。ここで築かれる日常は、まるで心温まる映画の一シーンのように、あなたの人生を彩ることでしょう。
バイブルスコア
バイブルスコア: 57.4
条件のいい物件です、引っ越しが2か月以内の場合は仮申し込みを検討すべき物件です。
このお部屋は、現在ご入居中のため空室情報はございません。ただし、将来的に募集が開始される際、バイブルスコアにおいて非常に高い評価が期待されます。特にご興味をお持ちの方は、今のうちにブックマークやお気に入りに登録していただくと、募集開始のお知らせをすぐに受け取ることができます。是非ともご検討くださいませ。
※バイブルスコア詳細はこちら
バイブルスコアとは独自のAI機械学習技術を利用した物件評価システムで、物件のおすすめ度を示します。最高得点は100点で、スコアが高いほど、よりおすすめの物件と評価されています。
写真
契約条件
| 賃料 | 予想金額:275,000〜295,000円程度 | 管理費 | 予想金額:8,000〜12,000円程度 |
| 礼金 | 非公開(アーカイブ) | 敷金 | 非公開(アーカイブ) |
| フリーレント | なし | 平米数 | 51.02㎡ |
| 間取り | 1LDK+ロフト | 大型収納 | ロフト |
| 契約期間 | 2年 | 方角 | 北西 |
| 更新料 | 1ヶ月 | 契約形態 | 普通賃貸借契約 |
| 取引態様 | 媒介 | 内見状況 | 入居中 |
| 入居時期 | 入居中 | SOHO・事務所 | 可 敷金3ヶ月 |
| ペット | 可 敷金3ヶ月(償却1ヶ月) | 間取り内訳 | LDK14.5帖 洋室6.6帖 ロフト12.1帖 |
| キャンペーン情報・備考 | 本情報は賃料改定交渉の資料作成、収益物件の利回り試算、周辺エリアや最寄り駅の坪単価分析、次回募集開始時期の予測などにご活用いただけます。 | ||
※「どの不動産に頼めばいいのか分からない」「信頼できる営業マンの話を聞きたい」「一番親切な会社と契約したい」とお悩みの方におすすめなのが「高級賃貸バイブル」です。
高級賃貸バイブルは業界10年以上の熟練スタッフ群がお客様ファーストで対応します。
下記ボタンから、まずは無料でご相談下さい。
※内覧をご希望の際には、どうぞ物件のエントランス前にてお待ち合わせくださいませ。ご内覧後は、同じ場所でお別れとさせていただきます。お客様のご都合に合わせたスムーズなご案内を心がけておりますので、ご質問等がございましたら何なりとお申し付けください。 物件概要
| 物件名 |
| 築年月 |
|
|---|---|---|---|
| 所在地 | |||
| 交通 | |||
| 総戸数 |
| 総階数 |
|
| 構造 |
| ||
地図
物件までの道のりは、「拡大地図を表示」をクリックしてナビ機能をご利用ください。
部屋設備













建物設備

TVモニターホン

エレベーター

オートロック

バイク置場

ラウンジ

宅配ボックス

敷地内ゴミ置場

管理人

駐車場機械式

駐輪場
アジリア代々木J'sの現在募集中のお部屋
- No rooms found for this property.


















