
| 賃料 | 予想金額:135,000〜155,000円程度 | 管理費 | 予想金額:23,000〜27,000円程度 |
| 礼金/敷金 | 非公開(アーカイブ) | 平米数 | 43.79㎡ |
| 初期費用概算(参考) | 目安:441,500〜541,500 円 | みなし賃料(月額・参考) | 167,219〜187,219 円 |
| 備考 | 本ページは過去募集のアーカイブです。表示の金額は周辺相場・過去募集を踏まえた参考レンジであり、実際の契約金額・条件ではありません。 | ||
※上記みなし賃料(月額)は仲介手数料割引・無料&キャッシュバックを加味した高級賃貸バイブル限定の金額です。一般的なみなし賃料とは異なります。
【建物ページ】グランステューディオ市ヶ谷薬王寺の詳細・最新空室はこちら▶▶選ばれる理由
仲介手数料無料・キャンペーン情報(毎月15名様限定)
〇仲介手数料割引キャンペーン
グランステューディオ市ヶ谷薬王寺 2-401の口コミ・レビュー
グランステューディオ市ヶ谷薬王寺 2-401。あなたがこの特別な空間に足を踏み入れる瞬間、そこにはただの住居を超えた、心を癒やす「家」が待っています。専有面積43.79㎡に広がるのは、穏やかな日常と特別な瞬間が交錯する場所。南と東を向いた窓からは、柔らかな光が優しく室内を包み込み、朝の日差しがまるで思いやりのある友人のようにあなたを迎えてくれます。
この物件はただの物理的な空間ではなく、あなたの…グランステューディオ市ヶ谷薬王寺 2-401。あなたがこの特別な空間に足を踏み入れる瞬間、そこにはただの住居を超えた、心を癒やす「家」が待っています。専有面積43.79㎡に広がるのは、穏やかな日常と特別な瞬間が交錯する場所。南と東を向いた窓からは、柔らかな光が優しく室内を包み込み、朝の日差しがまるで思いやりのある友人のようにあなたを迎えてくれます。
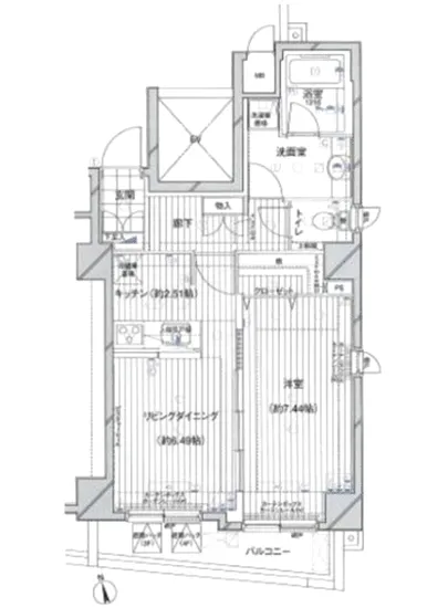
この物件はただの物理的な空間ではなく、あなたの時間を豊かにするための舞台装置です。ここでは、LDK 6.49帖の居心地良い空間が、家族や友人との会話を楽しむための理想的な場所となり、料理の香りが漂うキッチン 2.51帖では、愛情を込めた手料理が家族の笑顔を引き出します。そして、7.4帖の洋室は、あなただけのプライベート空間。創造力をかきたてる静けさの中で、読書に耽ったり、心地よい音楽に耳を傾けたり、自由な時間を楽しむことができるのです。
グランステューディオ市ヶ谷薬王寺 2-401の魅力は、それだけに留まりません。都営地下鉄大江戸線牛込柳町駅から徒歩5分という立地は、まさに心地よい生活への扉。忙しい日常の中でも、すぐにアクセスできる利便性が、あなたのライフスタイルにさらなる彩りを加えてくれます。そして、周辺には歴史を感じる街並みが広がり、古き良き日本の文化を体感しながら、新たな発見を楽しむことができます。台町界隈の歴史的建築物や、静謐な空気に包まれた公園での散策は、まるで映画のワンシーンのような美しい瞬間をあなたに提供することでしょう。
施設も充実しています。オートロックやTVモニターホンは、あなたの安全を守る頼もしい守護者。24時間の管理体制の中で、心配事はすべてそっと置いていきましょう。宅配ボックスも完備されているため、外出中でも大切な荷物をしっかりと受け取ることができます。まるで生活の一部として、この空間が常にあなたを支えてくれるような感覚です。
グランステューディオ市ヶ谷薬王寺 2-401は、ただの住まいではありません。それは、あなたの心を心地よく包み込み、生活に光と色を与える場所です。友人を招いてのディナーパーティ、静かな夜に感じる風のぬくもり、朝のコーヒーが静かに目覚める瞬間—すべてがここで特別な記憶となり、あなたの人生を豊かにしてくれるでしょう。この場所での新たな物語が、今まさに始まろうとしています。あなたの居場所が、ここにあるのです。
この物件はただの物理的な空間ではなく、あなたの…グランステューディオ市ヶ谷薬王寺 2-401。あなたがこの特別な空間に足を踏み入れる瞬間、そこにはただの住居を超えた、心を癒やす「家」が待っています。専有面積43.79㎡に広がるのは、穏やかな日常と特別な瞬間が交錯する場所。南と東を向いた窓からは、柔らかな光が優しく室内を包み込み、朝の日差しがまるで思いやりのある友人のようにあなたを迎えてくれます。
この物件はただの物理的な空間ではなく、あなたの時間を豊かにするための舞台装置です。ここでは、LDK 6.49帖の居心地良い空間が、家族や友人との会話を楽しむための理想的な場所となり、料理の香りが漂うキッチン 2.51帖では、愛情を込めた手料理が家族の笑顔を引き出します。そして、7.4帖の洋室は、あなただけのプライベート空間。創造力をかきたてる静けさの中で、読書に耽ったり、心地よい音楽に耳を傾けたり、自由な時間を楽しむことができるのです。
グランステューディオ市ヶ谷薬王寺 2-401の魅力は、それだけに留まりません。都営地下鉄大江戸線牛込柳町駅から徒歩5分という立地は、まさに心地よい生活への扉。忙しい日常の中でも、すぐにアクセスできる利便性が、あなたのライフスタイルにさらなる彩りを加えてくれます。そして、周辺には歴史を感じる街並みが広がり、古き良き日本の文化を体感しながら、新たな発見を楽しむことができます。台町界隈の歴史的建築物や、静謐な空気に包まれた公園での散策は、まるで映画のワンシーンのような美しい瞬間をあなたに提供することでしょう。
施設も充実しています。オートロックやTVモニターホンは、あなたの安全を守る頼もしい守護者。24時間の管理体制の中で、心配事はすべてそっと置いていきましょう。宅配ボックスも完備されているため、外出中でも大切な荷物をしっかりと受け取ることができます。まるで生活の一部として、この空間が常にあなたを支えてくれるような感覚です。
グランステューディオ市ヶ谷薬王寺 2-401は、ただの住まいではありません。それは、あなたの心を心地よく包み込み、生活に光と色を与える場所です。友人を招いてのディナーパーティ、静かな夜に感じる風のぬくもり、朝のコーヒーが静かに目覚める瞬間—すべてがここで特別な記憶となり、あなたの人生を豊かにしてくれるでしょう。この場所での新たな物語が、今まさに始まろうとしています。あなたの居場所が、ここにあるのです。
バイブルスコア
バイブルスコア: 41.6
条件のいい物件です、引っ越しが2か月以内の場合は仮申し込みを検討すべき物件です。
※バイブルスコア詳細はこちら
バイブルスコアとは独自のAI機械学習技術を利用した物件評価システムで、物件のおすすめ度を示します。最高得点は100点で、スコアが高いほど、よりおすすめの物件と評価されています。
写真
契約条件
| 賃料 | 予想金額:135,000〜155,000円程度 | 管理費 | 予想金額:23,000〜27,000円程度 |
| 礼金 | 非公開(アーカイブ) | 敷金 | 非公開(アーカイブ) |
| フリーレント | なし | 平米数 | 43.79㎡ |
| 間取り | 1LDK | 大型収納 | |
| 契約期間 |
| 方角 | 南 / 東 |
| 更新料 | 契約形態 | 普通賃貸借契約 | |
| 取引態様 | 媒介 | 内見状況 | 入居中 |
| 入居時期 | 入居中 | SOHO・事務所 | |
| ペット | 間取り内訳 | 洋:7.4 LD:6.49 K:2.51 | |
| キャンペーン情報・備考 | 本情報は賃料改定交渉の資料作成、収益物件の利回り試算、周辺エリアや最寄り駅の坪単価分析、次回募集開始時期の予測などにご活用いただけます。 | ||
※「どの不動産に頼めばいいのか分からない」「信頼できる営業マンの話を聞きたい」「一番親切な会社と契約したい」とお悩みの方におすすめなのが「高級賃貸バイブル」です。
高級賃貸バイブルは業界10年以上の熟練スタッフ群がお客様ファーストで対応します。
下記ボタンから、まずは無料でご相談下さい。
※内覧をご希望の際には、どうぞ物件のエントランス前にてお待ち合わせくださいませ。ご内覧後は、同じ場所でお別れとさせていただきます。お客様のご都合に合わせたスムーズなご案内を心がけておりますので、ご質問等がございましたら何なりとお申し付けください。 物件概要
| 物件名 |
| 築年月 |
|
|---|---|---|---|
| 所在地 | |||
| 交通 | |||
| 総戸数 |
| 総階数 |
|
| 構造 |
| ||
地図
物件までの道のりは、「拡大地図を表示」をクリックしてナビ機能をご利用ください。
部屋設備

















建物設備

24時間管理

TVモニターホン

エレベーター

オートロック

宅配ボックス

敷地内ゴミ置場

管理人

駐輪場
グランステューディオ市ヶ谷薬王寺の現在募集中のお部屋
- No rooms found for this property.























