
| 賃料 | 予想金額:690,000〜710,000円程度 | 管理費 | 予想金額:0〜2,000円程度 |
| 礼金/敷金 | 非公開(アーカイブ) | 平米数 | 109.21㎡ |
| 初期費用概算(参考) | 目安:3,891,500〜3,991,500 円 | みなし賃料(月額・参考) | 757,531〜777,531 円 |
| 備考 | 本ページは過去募集のアーカイブです。表示の金額は周辺相場・過去募集を踏まえた参考レンジであり、実際の契約金額・条件ではありません。 | ||
※上記みなし賃料(月額)は仲介手数料割引・無料&キャッシュバックを加味した高級賃貸バイブル限定の金額です。一般的なみなし賃料とは異なります。
【建物ページ】表参道コートの詳細・最新空室はこちら▶▶選ばれる理由
仲介手数料無料・キャンペーン情報(毎月15名様限定)
〇仲介手数料割引キャンペーン
表参道コート 106Eの口コミ・レビュー
表参道コート 106Eは、まるで都会のオアシスのように、洗練された日常をあなたに提供します。この特別な空間は、東京都渋谷区神宮前5-5-5の中心に位置し、北東の方角からの柔らかな光が、心地よい温もりをもたらします。104.21㎡の贅沢な専有面積は、まるで一つの芸術作品のように、あなたの生活を彩るキャンバスとなることでしょう。
まず、玄関の扉を開けると、あなたを迎えるのは広がる空間の中に感じる、解…表参道コート 106Eは、まるで都会のオアシスのように、洗練された日常をあなたに提供します。この特別な空間は、東京都渋谷区神宮前5-5-5の中心に位置し、北東の方角からの柔らかな光が、心地よい温もりをもたらします。104.21㎡の贅沢な専有面積は、まるで一つの芸術作品のように、あなたの生活を彩るキャンバスとなることでしょう。
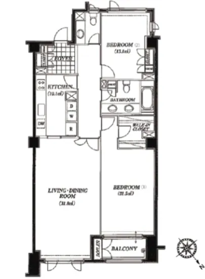
まず、玄関の扉を開けると、あなたを迎えるのは広がる空間の中に感じる、解放感と静けさ。K6.23のキッチンは、料理を愛するあなたのためのアトリエです。新鮮な食材の香りが漂い、ナイフがまな板に優しく触れる音が、まるでオーケストラの序曲のように心を躍らせます。そして、このキッチンは、料理の合間に流れる会話のハーモニーを生み出す場所であり、友人や家族との絆を深める舞台でもあります。
次に、LD19.62は、陽光が降り注ぐ広々としたリビングルーム。ふわりとしたカーテンが風に揺れ、外の喧騒を優しく包み込みます。お気に入りのソファに腰掛け、心地よい読書の時間を過ごしたり、時には贅沢な映画のひとときを演出したり。この空間は、あなたの夢の舞台となり、贅沢なライフスタイルを実現します。
洋室8.08と洋室13.27は、まさにプライベートな聖域。心地よい布団に身を委ねれば、ふんわりとした夢の世界へと誘われることでしょう。優しい光が差し込み、静かな夜が心を満たします。ここでの瞬間が、あなたにとっての宝物となることでしょう。
表参道コート 106Eでは、24時間の管理サービスとフロントサービスが、安心で快適な生活を約束します。オートロックやエレベーター、宅配ボックス、駐車場、駐輪場など、あなたのライフスタイルに合わせた設備が整い、ストレスフリーな日常をサポートします。また、フィットネスやラウンジの完備により、心と身体のバランスを保ちながら、アートに触れ合う余暇を楽しむことも可能です。
最寄駅の東京メトロ銀座線 表参道駅までの徒歩4分は、まるでおしゃれな散歩道のような感覚です。周囲には歴史と文化が息づく空間が広がり、アートギャラリーやカフェ、ブティックがあなたの感性を刺激します。そんな街で過ごす時間は、映画のワンシーンのように美しく、毎日が新しい物語を紡ぎ出します。表参道コート 106Eは、ただの住まいではなく、あなたの人生を豊かにするためのステージです。この素晴らしい場所で、心の底から満ち足りた生活をお楽しみください。あなたの物語が、ここから始まります。
まず、玄関の扉を開けると、あなたを迎えるのは広がる空間の中に感じる、解…表参道コート 106Eは、まるで都会のオアシスのように、洗練された日常をあなたに提供します。この特別な空間は、東京都渋谷区神宮前5-5-5の中心に位置し、北東の方角からの柔らかな光が、心地よい温もりをもたらします。104.21㎡の贅沢な専有面積は、まるで一つの芸術作品のように、あなたの生活を彩るキャンバスとなることでしょう。
まず、玄関の扉を開けると、あなたを迎えるのは広がる空間の中に感じる、解放感と静けさ。K6.23のキッチンは、料理を愛するあなたのためのアトリエです。新鮮な食材の香りが漂い、ナイフがまな板に優しく触れる音が、まるでオーケストラの序曲のように心を躍らせます。そして、このキッチンは、料理の合間に流れる会話のハーモニーを生み出す場所であり、友人や家族との絆を深める舞台でもあります。
次に、LD19.62は、陽光が降り注ぐ広々としたリビングルーム。ふわりとしたカーテンが風に揺れ、外の喧騒を優しく包み込みます。お気に入りのソファに腰掛け、心地よい読書の時間を過ごしたり、時には贅沢な映画のひとときを演出したり。この空間は、あなたの夢の舞台となり、贅沢なライフスタイルを実現します。
洋室8.08と洋室13.27は、まさにプライベートな聖域。心地よい布団に身を委ねれば、ふんわりとした夢の世界へと誘われることでしょう。優しい光が差し込み、静かな夜が心を満たします。ここでの瞬間が、あなたにとっての宝物となることでしょう。
表参道コート 106Eでは、24時間の管理サービスとフロントサービスが、安心で快適な生活を約束します。オートロックやエレベーター、宅配ボックス、駐車場、駐輪場など、あなたのライフスタイルに合わせた設備が整い、ストレスフリーな日常をサポートします。また、フィットネスやラウンジの完備により、心と身体のバランスを保ちながら、アートに触れ合う余暇を楽しむことも可能です。
最寄駅の東京メトロ銀座線 表参道駅までの徒歩4分は、まるでおしゃれな散歩道のような感覚です。周囲には歴史と文化が息づく空間が広がり、アートギャラリーやカフェ、ブティックがあなたの感性を刺激します。そんな街で過ごす時間は、映画のワンシーンのように美しく、毎日が新しい物語を紡ぎ出します。表参道コート 106Eは、ただの住まいではなく、あなたの人生を豊かにするためのステージです。この素晴らしい場所で、心の底から満ち足りた生活をお楽しみください。あなたの物語が、ここから始まります。
バイブルスコア
バイブルスコア: 15.2
高級な物件でない場合は割高な物件です。。
※バイブルスコア詳細はこちら
バイブルスコアとは独自のAI機械学習技術を利用した物件評価システムで、物件のおすすめ度を示します。最高得点は100点で、スコアが高いほど、よりおすすめの物件と評価されています。
写真
契約条件
| 賃料 | 予想金額:690,000〜710,000円程度 | 管理費 | 予想金額:0〜2,000円程度 |
| 礼金 | 非公開(アーカイブ) | 敷金 | 非公開(アーカイブ) |
| フリーレント | なし | 平米数 | 109.21㎡ |
| 間取り | 4LDK | 大型収納 | WIC |
| 契約期間 |
| 方角 | 北東 |
| 更新料 | 契約形態 | 普通賃貸借契約 | |
| 取引態様 | 媒介 | 内見状況 | 入居中 |
| 入居時期 | 入居中 | SOHO・事務所 | |
| ペット | ペット可 | 間取り内訳 | K6.23LD19.62洋室8.08洋室13.27 |
| キャンペーン情報・備考 | 本情報は賃料改定交渉の資料作成、収益物件の利回り試算、周辺エリアや最寄り駅の坪単価分析、次回募集開始時期の予測などにご活用いただけます。 | ||
※「どの不動産に頼めばいいのか分からない」「信頼できる営業マンの話を聞きたい」「一番親切な会社と契約したい」とお悩みの方におすすめなのが「高級賃貸バイブル」です。
高級賃貸バイブルは業界10年以上の熟練スタッフ群がお客様ファーストで対応します。
下記ボタンから、まずは無料でご相談下さい。
※内覧をご希望の際には、どうぞ物件のエントランス前にてお待ち合わせくださいませ。ご内覧後は、同じ場所でお別れとさせていただきます。お客様のご都合に合わせたスムーズなご案内を心がけておりますので、ご質問等がございましたら何なりとお申し付けください。 物件概要
| 物件名 |
| 築年月 |
|
|---|---|---|---|
| 所在地 | |||
| 交通 |
| ||
| 総戸数 |
| 総階数 |
|
| 構造 |
| ||
地図
物件までの道のりは、「拡大地図を表示」をクリックしてナビ機能をご利用ください。
部屋設備
















建物設備

24時間管理

TVモニターホン

エレベーター

オートロック

バイク置場

フィットネス

フロントサービス

ラウンジ

宅配ボックス

敷地内ゴミ置場

管理人

駐車場平置き

駐車場機械式

駐輪場
表参道コートの現在募集中のお部屋
- No rooms found for this property.



















