
| 賃料 | 予想金額:2,490,000〜2,510,000円程度 | 管理費 | 予想金額:0〜2,000円程度 |
| 礼金/敷金 | 非公開(アーカイブ) | 平米数 | 327.08㎡ |
| 初期費用概算(参考) | 目安:13,791,500〜13,891,500 円 | みなし賃料(月額・参考) | 2,726,281〜2,746,281 円 |
| 備考 | 本ページは過去募集のアーカイブです。表示の金額は周辺相場・過去募集を踏まえた参考レンジであり、実際の契約金額・条件ではありません。 | ||
※上記みなし賃料(月額)は仲介手数料割引・無料&キャッシュバックを加味した高級賃貸バイブル限定の金額です。一般的なみなし賃料とは異なります。
【建物ページ】六本木プラシッドの詳細・最新空室はこちら▶▶選ばれる理由
仲介手数料無料・キャンペーン情報(毎月15名様限定)
〇仲介手数料割引キャンペーン
六本木プラシッド 701の口コミ・レビュー
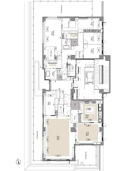
六本木プラシッド 701。これはただの住所ではなく、あなたの新しい人生の舞台となる場所です。701という数字は、まるで空に舞い上がる飛行機のように、無限の可能性を秘めています。そして、その大きな翼を広げたのは、327.08㎡という広大な専有面積。ここでは、あなたの日常がまるで映画のワンシーンのように色彩豊かに展開されます。
この家の扉を開けた瞬間、あなたは異次元の世界へと誘われるでしょう。足元に…六本木プラシッド 701。これはただの住所ではなく、あなたの新しい人生の舞台となる場所です。701という数字は、まるで空に舞い上がる飛行機のように、無限の可能性を秘めています。そして、その大きな翼を広げたのは、327.08㎡という広大な専有面積。ここでは、あなたの日常がまるで映画のワンシーンのように色彩豊かに展開されます。
この家の扉を開けた瞬間、あなたは異次元の世界へと誘われるでしょう。足元に広がる温かみのある素材が、まるで母なる大地が優しく迎え入れてくれているかのように、あなたを包み込んでくれます。南向きの窓から差し込む柔らかな陽光は、リビングの40.7帖の広さをさらに際立たせ、空間を輝かせます。そこでは、香ばしいコーヒーの香りが立ち上り、穏やかな音楽が流れる中、リラックスしたひとときを楽しむことができるのです。
次に、16.1帖のキッチンが待つ。ここはまるで愛の詩が奏でられる舞台。彼方から漂う新鮮な素材の香りは、食材の美しさを引き立て、料理をすることがかけがえのないアートとなることでしょう。ダイニングの17.5帖では、家族や友人たちとの会話がまるで波のように広がり、笑い声が響き渡ります。味わい深い料理を囲むその瞬間、心が一つになり、絆が深まることでしょう。
さらに、洋室はそれぞれの個性をもった空間として、贅沢に配置されています。17.6帖の洋室は、あなたの夢を育むプライベートな空間。また9.4帖、8.2帖、6.8帖の洋室たちは、訪れる人々に思い出を刻むための素敵なゲストルームへと変貌を遂げるのです。サービスルームの9.2帖は、あなたのクリエイティビティが爆発する場所として、アトリエや書斎に最適です。
六本木プラシッド 701は、ただ住むための空間ではなく、歴史と文化が息づく街の魅力と一体化した生活空間です。近くには伝統的な美術館がさりげなく佇み、アートの香りが街全体を包み込んでいます。東京都港区六本木は、現代美術と古き良き日本文化が交錯する場所であり、あなたの生活はその中に新たな色を加えることになるでしょう。
24時間管理された安心感、オートロックシステムがもたらす安全、フロントサービスがあなたの日常をサポートし、フィットネスやラウンジが生活に潤いを与えます。宅配ボックスも完備され、忙しいあなたのライフスタイルに寄り添います。
さあ、あなたもこの素晴らしい空間、六本木プラシッド 701に住まいを構え、人生の新たな物語を紡いでみませんか。そこには、感動が待っているのです。あなたの笑顔が、この場所をさらに輝かせてくれることでしょう。あなたの新生活が、まさに今ここから始まります。
この家の扉を開けた瞬間、あなたは異次元の世界へと誘われるでしょう。足元に…六本木プラシッド 701。これはただの住所ではなく、あなたの新しい人生の舞台となる場所です。701という数字は、まるで空に舞い上がる飛行機のように、無限の可能性を秘めています。そして、その大きな翼を広げたのは、327.08㎡という広大な専有面積。ここでは、あなたの日常がまるで映画のワンシーンのように色彩豊かに展開されます。
この家の扉を開けた瞬間、あなたは異次元の世界へと誘われるでしょう。足元に広がる温かみのある素材が、まるで母なる大地が優しく迎え入れてくれているかのように、あなたを包み込んでくれます。南向きの窓から差し込む柔らかな陽光は、リビングの40.7帖の広さをさらに際立たせ、空間を輝かせます。そこでは、香ばしいコーヒーの香りが立ち上り、穏やかな音楽が流れる中、リラックスしたひとときを楽しむことができるのです。
次に、16.1帖のキッチンが待つ。ここはまるで愛の詩が奏でられる舞台。彼方から漂う新鮮な素材の香りは、食材の美しさを引き立て、料理をすることがかけがえのないアートとなることでしょう。ダイニングの17.5帖では、家族や友人たちとの会話がまるで波のように広がり、笑い声が響き渡ります。味わい深い料理を囲むその瞬間、心が一つになり、絆が深まることでしょう。
さらに、洋室はそれぞれの個性をもった空間として、贅沢に配置されています。17.6帖の洋室は、あなたの夢を育むプライベートな空間。また9.4帖、8.2帖、6.8帖の洋室たちは、訪れる人々に思い出を刻むための素敵なゲストルームへと変貌を遂げるのです。サービスルームの9.2帖は、あなたのクリエイティビティが爆発する場所として、アトリエや書斎に最適です。
六本木プラシッド 701は、ただ住むための空間ではなく、歴史と文化が息づく街の魅力と一体化した生活空間です。近くには伝統的な美術館がさりげなく佇み、アートの香りが街全体を包み込んでいます。東京都港区六本木は、現代美術と古き良き日本文化が交錯する場所であり、あなたの生活はその中に新たな色を加えることになるでしょう。
24時間管理された安心感、オートロックシステムがもたらす安全、フロントサービスがあなたの日常をサポートし、フィットネスやラウンジが生活に潤いを与えます。宅配ボックスも完備され、忙しいあなたのライフスタイルに寄り添います。
さあ、あなたもこの素晴らしい空間、六本木プラシッド 701に住まいを構え、人生の新たな物語を紡いでみませんか。そこには、感動が待っているのです。あなたの笑顔が、この場所をさらに輝かせてくれることでしょう。あなたの新生活が、まさに今ここから始まります。
バイブルスコア
バイブルスコア: 1.4
高級な物件でない場合は割高な物件です。。
※バイブルスコア詳細はこちら
バイブルスコアとは独自のAI機械学習技術を利用した物件評価システムで、物件のおすすめ度を示します。最高得点は100点で、スコアが高いほど、よりおすすめの物件と評価されています。
写真
契約条件
| 賃料 | 予想金額:2,490,000〜2,510,000円程度 | 管理費 | 予想金額:0〜2,000円程度 |
| 礼金 | 非公開(アーカイブ) | 敷金 | 非公開(アーカイブ) |
| フリーレント | なし | 平米数 | 327.08㎡ |
| 間取り | 5LDK | 大型収納 | 4WIC+SIC+Sto |
| 契約期間 |
| 方角 | 南 |
| 更新料 | 契約形態 | 普通賃貸借契約 | |
| 取引態様 | 媒介 | 内見状況 | 入居中 |
| 入居時期 | 入居中 | SOHO・事務所 | 事務所(SOHO)可 |
| ペット | ペット可 | 間取り内訳 | リビング:40.7畳、キッチン:16.1畳、ダイニング:17.5畳、洋室:17.6畳、洋室:9.4畳、洋室:8.2畳、洋室:6.8畳、サービスルーム:9.2畳 |
| キャンペーン情報・備考 | 本情報は賃料改定交渉の資料作成、収益物件の利回り試算、周辺エリアや最寄り駅の坪単価分析、次回募集開始時期の予測などにご活用いただけます。 | ||
※「どの不動産に頼めばいいのか分からない」「信頼できる営業マンの話を聞きたい」「一番親切な会社と契約したい」とお悩みの方におすすめなのが「高級賃貸バイブル」です。
高級賃貸バイブルは業界10年以上の熟練スタッフ群がお客様ファーストで対応します。
下記ボタンから、まずは無料でご相談下さい。
※内覧をご希望の際には、どうぞ物件のエントランス前にてお待ち合わせくださいませ。ご内覧後は、同じ場所でお別れとさせていただきます。お客様のご都合に合わせたスムーズなご案内を心がけておりますので、ご質問等がございましたら何なりとお申し付けください。 物件概要
| 物件名 |
| 築年月 |
|
|---|---|---|---|
| 所在地 | |||
| 交通 | |||
| 総戸数 |
| 総階数 |
|
| 構造 |
| ||
地図
物件までの道のりは、「拡大地図を表示」をクリックしてナビ機能をご利用ください。
部屋設備
























建物設備

24時間管理

TVモニターホン

エレベーター

オートロック

フィットネス

フロントサービス

ラウンジ

宅配ボックス

敷地内ゴミ置場

管理人

駐車場平置き

駐輪場
六本木プラシッドの現在募集中のお部屋
- No rooms found for this property.





























