
| 賃料 | 予想金額:145,000〜165,000円程度 | 管理費 | 予想金額:8,000〜12,000円程度 |
| 礼金/敷金 | 非公開(アーカイブ) | 平米数 | 33.23㎡ |
| 初期費用概算(参考) | 目安:599,000〜699,000 円 | みなし賃料(月額・参考) | 165,292〜185,292 円 |
| 備考 | 本ページは過去募集のアーカイブです。表示の金額は周辺相場・過去募集を踏まえた参考レンジであり、実際の契約金額・条件ではありません。 | ||
※上記みなし賃料(月額)は仲介手数料割引・無料&キャッシュバックを加味した高級賃貸バイブル限定の金額です。一般的なみなし賃料とは異なります。
【建物ページ】カーサスプレンディッド代官山の詳細・最新空室はこちら▶▶選ばれる理由
仲介手数料無料・キャンペーン情報(毎月15名様限定)
〇仲介手数料割引キャンペーン
カーサスプレンディッド代官山 203の口コミ・レビュー
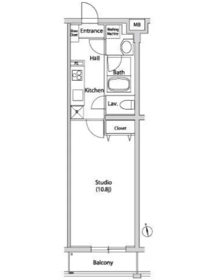
カーサスプレンディッド代官山 203。この名は、洗練されたライフスタイルを求めるあなたに贈る、特別な物件です。203号室は、南向きの明るい空間が広がり、優雅な生活を約束します。33.23㎡の専有面積は、あなたの日常を彩るための完璧なキャンバス。広々とした洋室は、10.8帖のゆったりとした空間で、あなたの心の休息所となるでしょう。
想像してみてください。朝、静かな街が目覚める頃、あなたはカーサスプ…カーサスプレンディッド代官山 203。この名は、洗練されたライフスタイルを求めるあなたに贈る、特別な物件です。203号室は、南向きの明るい空間が広がり、優雅な生活を約束します。33.23㎡の専有面積は、あなたの日常を彩るための完璧なキャンバス。広々とした洋室は、10.8帖のゆったりとした空間で、あなたの心の休息所となるでしょう。
想像してみてください。朝、静かな街が目覚める頃、あなたはカーサスプレンディッド代官山の窓を開け、温かな日差しと共に新鮮な空気が室内に舞い込む瞬間。窓からは南側の緑豊かな景色が眼前に広がり、心地よい風が優しく頬をなでます。まるで自然との対話のような、その感覚は、あなたの一日を祝福しているかのようです。
夕暮れ時には、オートロックの扉を通り抜け、落ち着いた雰囲気のエントランスに足を踏み入れます。エレベーターの扉が音もなく開き、あなたを203号室へと運びます。部屋に入れば、シックなデザインの中に細やかな気配りが行き届いた空間が広がり、まるで都会のオアシスのよう。TVモニターホンが、あなたの安全を守り、管理人がいつも温かく見守ってくれています。
カーサスプレンディッド代官山には、生活を便利にするための設備も整っています。宅配ボックスは忙しい日々にぴったりの助け手。敷地内のゴミ置場も管理が行き届いており、清潔感のある環境が、あなたの心に安らぎをもたらします。駐輪場も完備され、街を自転車で散策する楽しみも広がります。代官山駅まで徒歩5分という立地は、まさに利便性の象徴。周囲には、おしゃれなカフェやブティックが点在し、週末にはアートギャラリー巡りを楽しむこともできるでしょう。
この場所は、代官山という歴史豊かな地区に位置し、ストリートそのものが文化や芸術の香りをまとっています。古き良き日本の風情と、現代の洗練されたスタイルが交わるこのエリアで、あなたの生活はまるで映画のワンシーンのように、色鮮やかに展開されます。お洒落なカフェでのひととき、大切な人とのディナー、そして休日には美術館で心を潤す贅沢な時間が、あなたの生活に潤いを与えます。
カーサスプレンディッド代官山 203での生活は、日々の些細なことから大きな喜びまで、全てが特別な体験となることでしょう。ここでのあなたの物語は、これから始まります。どうぞ、この美しい暮らしへ足を踏み入れてみてください。あなたを待っているのは、心を豊かにする贅沢な日常です。カーサスプレンディッド代官山 203は、ただの住まいではなく、あなたの新しい人生の舞台です。
想像してみてください。朝、静かな街が目覚める頃、あなたはカーサスプ…カーサスプレンディッド代官山 203。この名は、洗練されたライフスタイルを求めるあなたに贈る、特別な物件です。203号室は、南向きの明るい空間が広がり、優雅な生活を約束します。33.23㎡の専有面積は、あなたの日常を彩るための完璧なキャンバス。広々とした洋室は、10.8帖のゆったりとした空間で、あなたの心の休息所となるでしょう。
想像してみてください。朝、静かな街が目覚める頃、あなたはカーサスプレンディッド代官山の窓を開け、温かな日差しと共に新鮮な空気が室内に舞い込む瞬間。窓からは南側の緑豊かな景色が眼前に広がり、心地よい風が優しく頬をなでます。まるで自然との対話のような、その感覚は、あなたの一日を祝福しているかのようです。
夕暮れ時には、オートロックの扉を通り抜け、落ち着いた雰囲気のエントランスに足を踏み入れます。エレベーターの扉が音もなく開き、あなたを203号室へと運びます。部屋に入れば、シックなデザインの中に細やかな気配りが行き届いた空間が広がり、まるで都会のオアシスのよう。TVモニターホンが、あなたの安全を守り、管理人がいつも温かく見守ってくれています。
カーサスプレンディッド代官山には、生活を便利にするための設備も整っています。宅配ボックスは忙しい日々にぴったりの助け手。敷地内のゴミ置場も管理が行き届いており、清潔感のある環境が、あなたの心に安らぎをもたらします。駐輪場も完備され、街を自転車で散策する楽しみも広がります。代官山駅まで徒歩5分という立地は、まさに利便性の象徴。周囲には、おしゃれなカフェやブティックが点在し、週末にはアートギャラリー巡りを楽しむこともできるでしょう。
この場所は、代官山という歴史豊かな地区に位置し、ストリートそのものが文化や芸術の香りをまとっています。古き良き日本の風情と、現代の洗練されたスタイルが交わるこのエリアで、あなたの生活はまるで映画のワンシーンのように、色鮮やかに展開されます。お洒落なカフェでのひととき、大切な人とのディナー、そして休日には美術館で心を潤す贅沢な時間が、あなたの生活に潤いを与えます。
カーサスプレンディッド代官山 203での生活は、日々の些細なことから大きな喜びまで、全てが特別な体験となることでしょう。ここでのあなたの物語は、これから始まります。どうぞ、この美しい暮らしへ足を踏み入れてみてください。あなたを待っているのは、心を豊かにする贅沢な日常です。カーサスプレンディッド代官山 203は、ただの住まいではなく、あなたの新しい人生の舞台です。
バイブルスコア
バイブルスコア: 31.9
平均的なスコアです。
※バイブルスコア詳細はこちら
バイブルスコアとは独自のAI機械学習技術を利用した物件評価システムで、物件のおすすめ度を示します。最高得点は100点で、スコアが高いほど、よりおすすめの物件と評価されています。
写真
契約条件
| 賃料 | 予想金額:145,000〜165,000円程度 | 管理費 | 予想金額:8,000〜12,000円程度 |
| 礼金 | 非公開(アーカイブ) | 敷金 | 非公開(アーカイブ) |
| フリーレント | なし | 平米数 | 33.23㎡ |
| 間取り | 1K | 大型収納 | |
| 契約期間 |
| 方角 | 南 |
| 更新料 | 契約形態 | 普通賃貸借契約 | |
| 取引態様 | 媒介 | 内見状況 | 入居中 |
| 入居時期 | 入居中 | SOHO・事務所 | 事務所(SOHO)可 |
| ペット | ペット可 | 間取り内訳 | 洋:10.8 |
| キャンペーン情報・備考 | 本情報は賃料改定交渉の資料作成、収益物件の利回り試算、周辺エリアや最寄り駅の坪単価分析、次回募集開始時期の予測などにご活用いただけます。 | ||
※「どの不動産に頼めばいいのか分からない」「信頼できる営業マンの話を聞きたい」「一番親切な会社と契約したい」とお悩みの方におすすめなのが「高級賃貸バイブル」です。
高級賃貸バイブルは業界10年以上の熟練スタッフ群がお客様ファーストで対応します。
下記ボタンから、まずは無料でご相談下さい。
※内覧をご希望の際には、どうぞ物件のエントランス前にてお待ち合わせくださいませ。ご内覧後は、同じ場所でお別れとさせていただきます。お客様のご都合に合わせたスムーズなご案内を心がけておりますので、ご質問等がございましたら何なりとお申し付けください。 物件概要
| 物件名 |
| 築年月 |
|
|---|---|---|---|
| 所在地 | |||
| 交通 | |||
| 総戸数 |
| 総階数 |
|
| 構造 |
| ||
地図
物件までの道のりは、「拡大地図を表示」をクリックしてナビ機能をご利用ください。
部屋設備



















建物設備

TVモニターホン

エレベーター

オートロック

宅配ボックス

敷地内ゴミ置場

管理人

駐輪場
カーサスプレンディッド代官山の現在募集中のお部屋
- カーサスプレンディッド代官山 107 - 間取り: 1K - 賃料: 16.8万円
- カーサスプレンディッド代官山 206 - 間取り: 1K - 賃料: 18万円




















