
| 賃料 | 予想金額:150,000〜170,000円程度 | 管理費 | 予想金額:13,000〜17,000円程度 |
| 礼金/敷金 | 非公開(アーカイブ) | 平米数 | 45.88㎡ |
| 初期費用概算(参考) | 目安:304,000〜404,000 円 | みなし賃料(月額・参考) | 169,042〜189,042 円 |
| 備考 | 本ページは過去募集のアーカイブです。表示の金額は周辺相場・過去募集を踏まえた参考レンジであり、実際の契約金額・条件ではありません。 | ||
※上記みなし賃料(月額)は仲介手数料割引・無料&キャッシュバックを加味した高級賃貸バイブル限定の金額です。一般的なみなし賃料とは異なります。
【建物ページ】KNOTS浅草の詳細・最新空室はこちら▶▶選ばれる理由
仲介手数料無料・キャンペーン情報(毎月15名様限定)
〇仲介手数料割引キャンペーン
KNOTS浅草 901の口コミ・レビュー
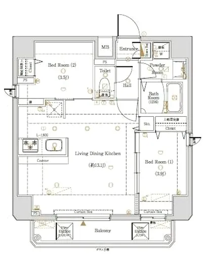
KNOTS浅草 901。この美しい名前が響き渡る瞬間、あなたはただの住まいを越えた特別な場所へと足を踏み入れることになります。東京の歴史深い台東区、浅草の中心部に位置するこの高級賃貸物件は、まるで時空を超えた別世界の扉を開くかのようです。901号室の扉を開けた瞬間、あなたを迎えるのは、洋室3.9帖、洋室3.5帖、そしてLDK13.1帖からなる、見事なレイアウトです。
西の光が優しく差し込む901…KNOTS浅草 901。この美しい名前が響き渡る瞬間、あなたはただの住まいを越えた特別な場所へと足を踏み入れることになります。東京の歴史深い台東区、浅草の中心部に位置するこの高級賃貸物件は、まるで時空を超えた別世界の扉を開くかのようです。901号室の扉を開けた瞬間、あなたを迎えるのは、洋室3.9帖、洋室3.5帖、そしてLDK13.1帖からなる、見事なレイアウトです。
西の光が優しく差し込む901号室は、日々を彩る優雅な光の舞踏会を開催します。朝の光が窓から差し込み、静かな朝食の時間をより特別なものに変えてくれるでしょう。コーヒーの香りが漂うキッチンでのひとときは、まるで映画のワンシーンのごとく、味わい深く、心を豊かにしてくれます。
KNOTS浅草 901には、最新の設備が整い、快適な生活を提供します。エレベーターで上がる度に感じる、軽やかな浮遊感と、オートロックが守るプライベートな空間は、まさに自分だけの城。外の喧騒とは裏腹に、深い静けさに包まれた室内は、あなたにとっての隠れ家となることでしょう。ここでは、日常の喧騒がまるで遠くの世界のもののように感じられ、心を穏やかに癒してくれるのです。
住まいを越えて、周辺には深い文化の香りが漂います。浅草の歴史的な街並みに溶け込みながら、あなたの日常がまるで一幅の絵画のように美しく描かれていくのを感じることでしょう。伝統的な街並みが残るこの地では、長い歴史の中で育まれた文化や芸術が生き生きと息づいています。近くの浅草寺や雷門を散策することで、歴史を感じ、さらには心が躍るようなイベントにも大いに触れ合うことができます。
KNOTS浅草 901での生活は、単なる日常ではなく、毎日が特別なストーリーとなるのです。夜になると、窓の外には煌めく街の明かりが広がり、心地よい風が頬を撫でる。バルコニーでリラックスしながら、ゆったりと過ぎる時間に身を委ねる贅沢を味わうことでしょう。そして、あなたの日常には、味覚を刺激するおしゃれなレストランやカフェも点在し、食の冒険にも事欠きません。
この住まいはただの居住空間ではなく、あなたのライフスタイルを豊かにするための舞台なのです。KNOTS浅草 901での新しい章が、あなたの人生に新たな彩りを与え、心に残る思い出を紡いでいくことでしょう。さあ、あなたもこの特別な場所で、新しい物語の幕を開けてみませんか。
西の光が優しく差し込む901…KNOTS浅草 901。この美しい名前が響き渡る瞬間、あなたはただの住まいを越えた特別な場所へと足を踏み入れることになります。東京の歴史深い台東区、浅草の中心部に位置するこの高級賃貸物件は、まるで時空を超えた別世界の扉を開くかのようです。901号室の扉を開けた瞬間、あなたを迎えるのは、洋室3.9帖、洋室3.5帖、そしてLDK13.1帖からなる、見事なレイアウトです。
西の光が優しく差し込む901号室は、日々を彩る優雅な光の舞踏会を開催します。朝の光が窓から差し込み、静かな朝食の時間をより特別なものに変えてくれるでしょう。コーヒーの香りが漂うキッチンでのひとときは、まるで映画のワンシーンのごとく、味わい深く、心を豊かにしてくれます。
KNOTS浅草 901には、最新の設備が整い、快適な生活を提供します。エレベーターで上がる度に感じる、軽やかな浮遊感と、オートロックが守るプライベートな空間は、まさに自分だけの城。外の喧騒とは裏腹に、深い静けさに包まれた室内は、あなたにとっての隠れ家となることでしょう。ここでは、日常の喧騒がまるで遠くの世界のもののように感じられ、心を穏やかに癒してくれるのです。
住まいを越えて、周辺には深い文化の香りが漂います。浅草の歴史的な街並みに溶け込みながら、あなたの日常がまるで一幅の絵画のように美しく描かれていくのを感じることでしょう。伝統的な街並みが残るこの地では、長い歴史の中で育まれた文化や芸術が生き生きと息づいています。近くの浅草寺や雷門を散策することで、歴史を感じ、さらには心が躍るようなイベントにも大いに触れ合うことができます。
KNOTS浅草 901での生活は、単なる日常ではなく、毎日が特別なストーリーとなるのです。夜になると、窓の外には煌めく街の明かりが広がり、心地よい風が頬を撫でる。バルコニーでリラックスしながら、ゆったりと過ぎる時間に身を委ねる贅沢を味わうことでしょう。そして、あなたの日常には、味覚を刺激するおしゃれなレストランやカフェも点在し、食の冒険にも事欠きません。
この住まいはただの居住空間ではなく、あなたのライフスタイルを豊かにするための舞台なのです。KNOTS浅草 901での新しい章が、あなたの人生に新たな彩りを与え、心に残る思い出を紡いでいくことでしょう。さあ、あなたもこの特別な場所で、新しい物語の幕を開けてみませんか。
バイブルスコア
バイブルスコア: 21.4
平均的なスコアです。
※バイブルスコア詳細はこちら
バイブルスコアとは独自のAI機械学習技術を利用した物件評価システムで、物件のおすすめ度を示します。最高得点は100点で、スコアが高いほど、よりおすすめの物件と評価されています。
写真
現在写真が登録されていません契約条件
| 賃料 | 予想金額:150,000〜170,000円程度 | 管理費 | 予想金額:13,000〜17,000円程度 |
| 礼金 | 非公開(アーカイブ) | 敷金 | 非公開(アーカイブ) |
| フリーレント | なし | 平米数 | 45.88㎡ |
| 間取り | 1LDK | 大型収納 | |
| 契約期間 |
| 方角 | 西 |
| 更新料 | 契約形態 | 普通賃貸借契約 | |
| 取引態様 | 媒介 | 内見状況 | 入居中 |
| 入居時期 | 入居中 | SOHO・事務所 | |
| ペット | ペット可 | 間取り内訳 | 洋:3.9 洋:3.5 LDK:13.1 |
| キャンペーン情報・備考 | 本情報は賃料改定交渉の資料作成、収益物件の利回り試算、周辺エリアや最寄り駅の坪単価分析、次回募集開始時期の予測などにご活用いただけます。 | ||
※「どの不動産に頼めばいいのか分からない」「信頼できる営業マンの話を聞きたい」「一番親切な会社と契約したい」とお悩みの方におすすめなのが「高級賃貸バイブル」です。
高級賃貸バイブルは業界10年以上の熟練スタッフ群がお客様ファーストで対応します。
下記ボタンから、まずは無料でご相談下さい。
※内覧をご希望の際には、どうぞ物件のエントランス前にてお待ち合わせくださいませ。ご内覧後は、同じ場所でお別れとさせていただきます。お客様のご都合に合わせたスムーズなご案内を心がけておりますので、ご質問等がございましたら何なりとお申し付けください。 物件概要
| 物件名 |
| 築年月 |
|
|---|---|---|---|
| 所在地 | |||
| 交通 | |||
| 総戸数 |
| 総階数 |
|
| 構造 |
| ||
地図
物件までの道のりは、「拡大地図を表示」をクリックしてナビ機能をご利用ください。
部屋設備















建物設備

TVモニターホン

エレベーター

オートロック

バイク置場

宅配ボックス

敷地内ゴミ置場

管理人

駐車場平置き

駐輪場
KNOTS浅草の現在募集中のお部屋
- No rooms found for this property.
