
| 賃料 | 予想金額:228,000〜248,000円程度 | 管理費 | 予想金額:0〜2,000円程度 |
| 礼金/敷金 | 非公開(アーカイブ) | 平米数 | 42.62㎡ |
| 初期費用概算(参考) | 目安:636,500〜736,500 円 | みなし賃料(月額・参考) | 237,344〜257,344 円 |
| 備考 | 本ページは過去募集のアーカイブです。表示の金額は周辺相場・過去募集を踏まえた参考レンジであり、実際の契約金額・条件ではありません。 | ||
※上記みなし賃料(月額)は仲介手数料割引・無料&キャッシュバックを加味した高級賃貸バイブル限定の金額です。一般的なみなし賃料とは異なります。
【建物ページ】マジェスタワー六本木の詳細・最新空室はこちら▶▶選ばれる理由
仲介手数料無料・キャンペーン情報(毎月15名様限定)
〇仲介手数料割引キャンペーン
マジェスタワー六本木 2001の口コミ・レビュー
マジェスタワー六本木 2001は、まるで洗練されたアートのキャンバスのように、都市の喧騒から一歩離れた高級感に包まれています。東京都港区六本木7-6-18という立地は、歴史と文化が融合した地であり、あなたを新しい感覚へと誘います。この物件は、南東を向くその窓から、朝日がやさしく差し込み、贅沢な朝の始まりを告げることでしょう。
エレベーターに乗ると、静かに上昇する感覚が、まるで別世界へと連れて行っ…マジェスタワー六本木 2001は、まるで洗練されたアートのキャンバスのように、都市の喧騒から一歩離れた高級感に包まれています。東京都港区六本木7-6-18という立地は、歴史と文化が融合した地であり、あなたを新しい感覚へと誘います。この物件は、南東を向くその窓から、朝日がやさしく差し込み、贅沢な朝の始まりを告げることでしょう。
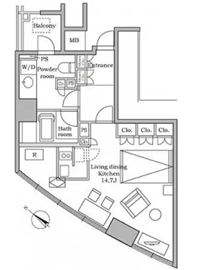
エレベーターに乗ると、静かに上昇する感覚が、まるで別世界へと連れて行ってくれるかのようです。2001年という数字が、あなたの新しい生活の扉を開く鍵となることでしょう。この1K、洋室14.7帖の空間は、あなたの想像力をかき立てる場所です。42.62㎡の広さに、心を解きほぐす時間を持つことができるのです。
マジェスタワー六本木 2001のデザイナーズ空間は、ただの住まい以上のものです。洗練されたインテリアは、美術館のような居心地の良さを提供し、あなたが帰るたびに感性が磨かれていくことでしょう。フィットネスルームでは、身体を鍛えることができ、フロントサービスによって毎日が特別な日になることを実感することでしょう。そして、大切な荷物を受け取る宅配ボックスが、無駄な時間を省いてくれます。
周囲にはおしゃれなカフェや美術館が点在し、六本木の文化的な香りに包まれています。夜になると、眺める夜景がまるでキャンバスに描かれた絵画のように、街を輝かせることでしょう。風に乗って漂ってくる美味しい料理の香りや、賑やかな会話が響く中、あなたの心も、まるで映画の主人公のように高揚することでしょう。
そして、特に大切な瞬間を共有する友人たちと共に、マジェスタワー六本木 2001のアメニティを楽しむことで、あなたの人生が豊かに彩られていくのです。管理人が常駐し、安心感があなたを包み込むことで、心地良い生活が育まれます。駐車場や駐輪場も完備されており、移動がスムーズであることも、日常のストレスを軽減してくれるでしょう。
マジェスタワー六本木 2001は、ただの住まいではなく、あなたの生活そのものを特別なものにするための舞台です。日々の生活が映画のワンシーンのように、どこか特別な色合いを持つ瞬間に満ちているのです。この物件を選ぶことは、あなた自身の人生をより豊かにする選択であり、心に残る物語の始まりなのです。魅力的な六本木での新しい一歩を、ぜひ踏み出してみてはいかがでしょうか。
エレベーターに乗ると、静かに上昇する感覚が、まるで別世界へと連れて行っ…マジェスタワー六本木 2001は、まるで洗練されたアートのキャンバスのように、都市の喧騒から一歩離れた高級感に包まれています。東京都港区六本木7-6-18という立地は、歴史と文化が融合した地であり、あなたを新しい感覚へと誘います。この物件は、南東を向くその窓から、朝日がやさしく差し込み、贅沢な朝の始まりを告げることでしょう。
エレベーターに乗ると、静かに上昇する感覚が、まるで別世界へと連れて行ってくれるかのようです。2001年という数字が、あなたの新しい生活の扉を開く鍵となることでしょう。この1K、洋室14.7帖の空間は、あなたの想像力をかき立てる場所です。42.62㎡の広さに、心を解きほぐす時間を持つことができるのです。
マジェスタワー六本木 2001のデザイナーズ空間は、ただの住まい以上のものです。洗練されたインテリアは、美術館のような居心地の良さを提供し、あなたが帰るたびに感性が磨かれていくことでしょう。フィットネスルームでは、身体を鍛えることができ、フロントサービスによって毎日が特別な日になることを実感することでしょう。そして、大切な荷物を受け取る宅配ボックスが、無駄な時間を省いてくれます。
周囲にはおしゃれなカフェや美術館が点在し、六本木の文化的な香りに包まれています。夜になると、眺める夜景がまるでキャンバスに描かれた絵画のように、街を輝かせることでしょう。風に乗って漂ってくる美味しい料理の香りや、賑やかな会話が響く中、あなたの心も、まるで映画の主人公のように高揚することでしょう。
そして、特に大切な瞬間を共有する友人たちと共に、マジェスタワー六本木 2001のアメニティを楽しむことで、あなたの人生が豊かに彩られていくのです。管理人が常駐し、安心感があなたを包み込むことで、心地良い生活が育まれます。駐車場や駐輪場も完備されており、移動がスムーズであることも、日常のストレスを軽減してくれるでしょう。
マジェスタワー六本木 2001は、ただの住まいではなく、あなたの生活そのものを特別なものにするための舞台です。日々の生活が映画のワンシーンのように、どこか特別な色合いを持つ瞬間に満ちているのです。この物件を選ぶことは、あなた自身の人生をより豊かにする選択であり、心に残る物語の始まりなのです。魅力的な六本木での新しい一歩を、ぜひ踏み出してみてはいかがでしょうか。
バイブルスコア
バイブルスコア: 24.2
平均的なスコアです。
※バイブルスコア詳細はこちら
バイブルスコアとは独自のAI機械学習技術を利用した物件評価システムで、物件のおすすめ度を示します。最高得点は100点で、スコアが高いほど、よりおすすめの物件と評価されています。
写真
契約条件
| 賃料 | 予想金額:228,000〜248,000円程度 | 管理費 | 予想金額:0〜2,000円程度 |
| 礼金 | 非公開(アーカイブ) | 敷金 | 非公開(アーカイブ) |
| フリーレント | なし | 平米数 | 42.62㎡ |
| 間取り | 1K | 大型収納 | |
| 契約期間 | 方角 | 南東 | |
| 更新料 | 契約形態 | 定期借家契約 | |
| 取引態様 | 媒介 | 内見状況 | 入居中 |
| 入居時期 | 入居中 | SOHO・事務所 | 事務所(SOHO)可 |
| ペット | ペット可 | 間取り内訳 | 洋室14.7帖 |
| キャンペーン情報・備考 | 本情報は賃料改定交渉の資料作成、収益物件の利回り試算、周辺エリアや最寄り駅の坪単価分析、次回募集開始時期の予測などにご活用いただけます。 | ||
※「どの不動産に頼めばいいのか分からない」「信頼できる営業マンの話を聞きたい」「一番親切な会社と契約したい」とお悩みの方におすすめなのが「高級賃貸バイブル」です。
高級賃貸バイブルは業界10年以上の熟練スタッフ群がお客様ファーストで対応します。
下記ボタンから、まずは無料でご相談下さい。
※内覧をご希望の際には、どうぞ物件のエントランス前にてお待ち合わせくださいませ。ご内覧後は、同じ場所でお別れとさせていただきます。お客様のご都合に合わせたスムーズなご案内を心がけておりますので、ご質問等がございましたら何なりとお申し付けください。 物件概要
| 物件名 |
| 築年月 |
|
|---|---|---|---|
| 所在地 | |||
| 交通 | |||
| 総戸数 |
| 総階数 |
|
| 構造 |
| ||
地図
物件までの道のりは、「拡大地図を表示」をクリックしてナビ機能をご利用ください。
部屋設備


















建物設備

TVモニターホン

エレベーター

オートロック

フィットネス

フロントサービス

宅配ボックス

敷地内ゴミ置場

管理人

駐車場機械式

駐輪場
マジェスタワー六本木の現在募集中のお部屋
- No rooms found for this property.

















