
| 賃料 | 予想金額:113,000〜133,000円程度 | 管理費 | 予想金額:10,000〜14,000円程度 |
| 礼金/敷金 | 非公開(アーカイブ) | 平米数 | 30.27㎡ |
| 初期費用概算(参考) | 目安:367,000〜467,000 円 | みなし賃料(月額・参考) | 131,125〜151,125 円 |
| 備考 | 本ページは過去募集のアーカイブです。表示の金額は周辺相場・過去募集を踏まえた参考レンジであり、実際の契約金額・条件ではありません。 | ||
※上記みなし賃料(月額)は仲介手数料割引・無料&キャッシュバックを加味した高級賃貸バイブル限定の金額です。一般的なみなし賃料とは異なります。
【建物ページ】メインステージ信濃町の詳細・最新空室はこちら▶▶選ばれる理由
仲介手数料無料・キャンペーン情報(毎月15名様限定)
〇仲介手数料割引キャンペーン
メインステージ信濃町 1002の口コミ・レビュー
メインステージ信濃町 1002。この美しい名前は、あなたが新たな生活の舞台へと踏み出すための扉を象徴しています。東京都新宿区信濃町1-7に位置するこの物件は、まるで映画のワンシーンのように、都会の喧騒の中にいることを忘れさせてくれる隠れ家です。10階からの素晴らしい景色は、朝日が昇る瞬間を捉え、あなたの一日に美しい色彩を添えます。
専有面積30.27㎡のこの空間に足を踏み入れると、どこか懐かしさ…メインステージ信濃町 1002。この美しい名前は、あなたが新たな生活の舞台へと踏み出すための扉を象徴しています。東京都新宿区信濃町1-7に位置するこの物件は、まるで映画のワンシーンのように、都会の喧騒の中にいることを忘れさせてくれる隠れ家です。10階からの素晴らしい景色は、朝日が昇る瞬間を捉え、あなたの一日に美しい色彩を添えます。
専有面積30.27㎡のこの空間に足を踏み入れると、どこか懐かしさを感じる香りが漂います。10帖の洋室は、まるで心地よいひと時を過ごすためのカフェのように、柔らかな光に包まれます。窓から差し込む光は、穏やかな音色のハーモニーを奏で、日々の疲れを癒やしてくれるでしょう。あなたがこの空間で織り成す日々は、まるで一篇の詩のように音を立てず、しかし確実に心に響きます。
メインステージ信濃町 1002は、洗練された生活を求めるあなたにぴったりの場所です。オートロックや宅配ボックス、そして管理人の目が行き届いた安心感は、まるで優雅な振る舞いを求める貴族のように、あなたを守りながら日常を彩ります。エレベーターでの上昇は、まさに浮遊する感覚をもたらし、特別な時間を運んでくれるのです。
周辺には四谷三丁目駅が徒歩5分という絶好の立地があり、東京メトロ丸ノ内線があなたを都心の中心へと導きます。歴史と現代が交錯するこの地は、かつて多くの文化が息づいた場所。散策することで、通り過ぎる風の中に苔むした石碑の物語や往年の文学者たちの足跡を感じることができるのです。
一日の終わりに、メインステージ信濃町 1002のリビングに身を委ねると、外の喧騒から解放された静寂の中で自分と向き合うことができます。窓辺に立ち、星空を見上げる瞬間、都会の喧騒がまるで小さな幻想のように思えることでしょう。そして、心地よい風が頬を撫で、遠くに響く街の音が、まるで過去からのメロディーのように耳に残ります。
この物件は、単なる住まいではなく、あなたの人生の新たな一章を飾る舞台なのです。毎日が特別な物語として始まり、そして終わりを迎えるメインステージ信濃町 1002で、新しい生活の幕を上げてみませんか。その瞬間、心の中にある希望の光が、より一層明るく輝くことでしょう。あなたの物語の主人公として、ここからの生活をぜひとも実現していただきたいと思います。
専有面積30.27㎡のこの空間に足を踏み入れると、どこか懐かしさ…メインステージ信濃町 1002。この美しい名前は、あなたが新たな生活の舞台へと踏み出すための扉を象徴しています。東京都新宿区信濃町1-7に位置するこの物件は、まるで映画のワンシーンのように、都会の喧騒の中にいることを忘れさせてくれる隠れ家です。10階からの素晴らしい景色は、朝日が昇る瞬間を捉え、あなたの一日に美しい色彩を添えます。
専有面積30.27㎡のこの空間に足を踏み入れると、どこか懐かしさを感じる香りが漂います。10帖の洋室は、まるで心地よいひと時を過ごすためのカフェのように、柔らかな光に包まれます。窓から差し込む光は、穏やかな音色のハーモニーを奏で、日々の疲れを癒やしてくれるでしょう。あなたがこの空間で織り成す日々は、まるで一篇の詩のように音を立てず、しかし確実に心に響きます。
メインステージ信濃町 1002は、洗練された生活を求めるあなたにぴったりの場所です。オートロックや宅配ボックス、そして管理人の目が行き届いた安心感は、まるで優雅な振る舞いを求める貴族のように、あなたを守りながら日常を彩ります。エレベーターでの上昇は、まさに浮遊する感覚をもたらし、特別な時間を運んでくれるのです。
周辺には四谷三丁目駅が徒歩5分という絶好の立地があり、東京メトロ丸ノ内線があなたを都心の中心へと導きます。歴史と現代が交錯するこの地は、かつて多くの文化が息づいた場所。散策することで、通り過ぎる風の中に苔むした石碑の物語や往年の文学者たちの足跡を感じることができるのです。
一日の終わりに、メインステージ信濃町 1002のリビングに身を委ねると、外の喧騒から解放された静寂の中で自分と向き合うことができます。窓辺に立ち、星空を見上げる瞬間、都会の喧騒がまるで小さな幻想のように思えることでしょう。そして、心地よい風が頬を撫で、遠くに響く街の音が、まるで過去からのメロディーのように耳に残ります。
この物件は、単なる住まいではなく、あなたの人生の新たな一章を飾る舞台なのです。毎日が特別な物語として始まり、そして終わりを迎えるメインステージ信濃町 1002で、新しい生活の幕を上げてみませんか。その瞬間、心の中にある希望の光が、より一層明るく輝くことでしょう。あなたの物語の主人公として、ここからの生活をぜひとも実現していただきたいと思います。
バイブルスコア
バイブルスコア: 28.9
平均的なスコアです。
※バイブルスコア詳細はこちら
バイブルスコアとは独自のAI機械学習技術を利用した物件評価システムで、物件のおすすめ度を示します。最高得点は100点で、スコアが高いほど、よりおすすめの物件と評価されています。
写真
現在写真が登録されていません契約条件
| 賃料 | 予想金額:113,000〜133,000円程度 | 管理費 | 予想金額:10,000〜14,000円程度 |
| 礼金 | 非公開(アーカイブ) | 敷金 | 非公開(アーカイブ) |
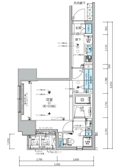
| フリーレント | なし | 平米数 | 30.27㎡ |
| 間取り | 1K | 大型収納 | |
| 契約期間 |
| 方角 | 東 |
| 更新料 | 契約形態 | 普通賃貸借契約 | |
| 取引態様 | 媒介 | 内見状況 | 入居中 |
| 入居時期 | 入居中 | SOHO・事務所 | |
| ペット | ペット可 | 間取り内訳 | 洋:10 |
| キャンペーン情報・備考 | 本情報は賃料改定交渉の資料作成、収益物件の利回り試算、周辺エリアや最寄り駅の坪単価分析、次回募集開始時期の予測などにご活用いただけます。 | ||
※「どの不動産に頼めばいいのか分からない」「信頼できる営業マンの話を聞きたい」「一番親切な会社と契約したい」とお悩みの方におすすめなのが「高級賃貸バイブル」です。
高級賃貸バイブルは業界10年以上の熟練スタッフ群がお客様ファーストで対応します。
下記ボタンから、まずは無料でご相談下さい。
※内覧をご希望の際には、どうぞ物件のエントランス前にてお待ち合わせくださいませ。ご内覧後は、同じ場所でお別れとさせていただきます。お客様のご都合に合わせたスムーズなご案内を心がけておりますので、ご質問等がございましたら何なりとお申し付けください。 物件概要
| 物件名 |
| 築年月 |
|
|---|---|---|---|
| 所在地 | |||
| 交通 | |||
| 総戸数 |
| 総階数 |
|
| 構造 |
| ||
地図
物件までの道のりは、「拡大地図を表示」をクリックしてナビ機能をご利用ください。
部屋設備














建物設備

TVモニターホン

エレベーター

オートロック

宅配ボックス

敷地内ゴミ置場

管理人

駐輪場
メインステージ信濃町の現在募集中のお部屋
- No rooms found for this property.
