
| 賃料 | 予想金額:210,000〜230,000円程度 | 管理費 | 予想金額:6,000〜10,000円程度 |
| 礼金/敷金 | 非公開(アーカイブ) | 平米数 | 66.41㎡ |
| 初期費用概算(参考) | 目安:1,043,500〜1,143,500 円 | みなし賃料(月額・参考) | 236,198〜256,198 円 |
| 備考 | 本ページは過去募集のアーカイブです。表示の金額は周辺相場・過去募集を踏まえた参考レンジであり、実際の契約金額・条件ではありません。 | ||
※上記みなし賃料(月額)は仲介手数料割引・無料&キャッシュバックを加味した高級賃貸バイブル限定の金額です。一般的なみなし賃料とは異なります。
【建物ページ】コンパートメント東京中央の詳細・最新空室はこちら▶▶選ばれる理由
仲介手数料無料・キャンペーン情報(毎月15名様限定)
〇仲介手数料割引キャンペーン
コンパートメント東京中央 422の口コミ・レビュー
コンパートメント東京中央 422は、まるで都会のオアシスのような佇まいを見せる高級賃貸物件です。この美しい建物は、東京都中央区八丁堀3-24-1に位置し、北向きの窓からは爽やかな朝の光が差し込みます。まるで愛する人を迎えるかのように、住む人を優しく包み込む空間が広がっています。
この物件の魅力はただの数字や設備には収まらない、まるで心の琴線に触れるようなストーリー性があります。422号室に足を踏…コンパートメント東京中央 422は、まるで都会のオアシスのような佇まいを見せる高級賃貸物件です。この美しい建物は、東京都中央区八丁堀3-24-1に位置し、北向きの窓からは爽やかな朝の光が差し込みます。まるで愛する人を迎えるかのように、住む人を優しく包み込む空間が広がっています。
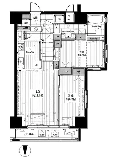
この物件の魅力はただの数字や設備には収まらない、まるで心の琴線に触れるようなストーリー性があります。422号室に足を踏み入れると、まず目に飛び込んでくるのは、LDK11.9帖の広々とした空間です。これから始まる映画のワンシーンのように、ここで過ごす毎日がどれほど彩り豊かなものになるか、想像するだけで心が躍ります。友人たちと囲む食卓、休日のブランチ、おしゃれなカクテルを片手に語らう夜。ひとつひとつの瞬間が、特別な思い出へと変わっていくのです。
キッチン3.2帖は、料理を愛するあなたのための舞台です。調理の香ばしい香りが漂い、包丁の音がリズムを刻む。ここで生まれる料理は、ただの食事ではなく、心のこもったアートなのです。お料理に挑戦することに意味があるのだと、あなたを後押ししてくれることでしょう。
また、寝室には6.3帖と6.1帖の2つの寝室が備わっており、リラックスした夢の世界へと誘います。ここでは、一日の疲れを癒し、心地良い眠りに身を委ねることができます。細やかな配慮が施された空間で、翌朝の目覚めはまるで新たな世界への扉を開く鍵のように感じられます。
コンパートメント東京中央 422の設備もまた、生活を豊かにする要素です。TVモニターホンやオートロックといった安心のセキュリティ機能は、まるであなたを見守る親友のよう。フロントサービスや宅配ボックスは、忙しい日常を少しだけ楽にしてくれる恩恵です。さらに駐車場も完備しており、車でのお出かけもスムーズに行えます。
周囲には八丁堀駅が徒歩1分という好立地が、日常の利便性を何倍にも引き上げてくれます。歴史ある街並みと近代的なビル群が混在するこのエリアは、文化と芸術にあふれる宝石箱のような場所。近くには多くのギャラリーやカフェがあり、散策するだけで心が豊かになる時間が流れています。ここでの生活は、単なる日常ではなく、まるで映画の中の主人公のように、豊かで多彩な体験に満ちています。
コンパートメント東京中央 422が織りなすその物語は、あなたの生活をより一層輝かせることでしょう。さあ、ここから始まる新しい章に一歩踏み出してみませんか。あなたを待ち望むこの空間が、特別な瞬間を数え切れないほど与えてくれることを、心より楽しみにしています。
この物件の魅力はただの数字や設備には収まらない、まるで心の琴線に触れるようなストーリー性があります。422号室に足を踏…コンパートメント東京中央 422は、まるで都会のオアシスのような佇まいを見せる高級賃貸物件です。この美しい建物は、東京都中央区八丁堀3-24-1に位置し、北向きの窓からは爽やかな朝の光が差し込みます。まるで愛する人を迎えるかのように、住む人を優しく包み込む空間が広がっています。
この物件の魅力はただの数字や設備には収まらない、まるで心の琴線に触れるようなストーリー性があります。422号室に足を踏み入れると、まず目に飛び込んでくるのは、LDK11.9帖の広々とした空間です。これから始まる映画のワンシーンのように、ここで過ごす毎日がどれほど彩り豊かなものになるか、想像するだけで心が躍ります。友人たちと囲む食卓、休日のブランチ、おしゃれなカクテルを片手に語らう夜。ひとつひとつの瞬間が、特別な思い出へと変わっていくのです。
キッチン3.2帖は、料理を愛するあなたのための舞台です。調理の香ばしい香りが漂い、包丁の音がリズムを刻む。ここで生まれる料理は、ただの食事ではなく、心のこもったアートなのです。お料理に挑戦することに意味があるのだと、あなたを後押ししてくれることでしょう。
また、寝室には6.3帖と6.1帖の2つの寝室が備わっており、リラックスした夢の世界へと誘います。ここでは、一日の疲れを癒し、心地良い眠りに身を委ねることができます。細やかな配慮が施された空間で、翌朝の目覚めはまるで新たな世界への扉を開く鍵のように感じられます。
コンパートメント東京中央 422の設備もまた、生活を豊かにする要素です。TVモニターホンやオートロックといった安心のセキュリティ機能は、まるであなたを見守る親友のよう。フロントサービスや宅配ボックスは、忙しい日常を少しだけ楽にしてくれる恩恵です。さらに駐車場も完備しており、車でのお出かけもスムーズに行えます。
周囲には八丁堀駅が徒歩1分という好立地が、日常の利便性を何倍にも引き上げてくれます。歴史ある街並みと近代的なビル群が混在するこのエリアは、文化と芸術にあふれる宝石箱のような場所。近くには多くのギャラリーやカフェがあり、散策するだけで心が豊かになる時間が流れています。ここでの生活は、単なる日常ではなく、まるで映画の中の主人公のように、豊かで多彩な体験に満ちています。
コンパートメント東京中央 422が織りなすその物語は、あなたの生活をより一層輝かせることでしょう。さあ、ここから始まる新しい章に一歩踏み出してみませんか。あなたを待ち望むこの空間が、特別な瞬間を数え切れないほど与えてくれることを、心より楽しみにしています。
バイブルスコア
バイブルスコア: 39.7
平均的なスコアです。
※バイブルスコア詳細はこちら
バイブルスコアとは独自のAI機械学習技術を利用した物件評価システムで、物件のおすすめ度を示します。最高得点は100点で、スコアが高いほど、よりおすすめの物件と評価されています。
写真
契約条件
| 賃料 | 予想金額:210,000〜230,000円程度 | 管理費 | 予想金額:6,000〜10,000円程度 |
| 礼金 | 非公開(アーカイブ) | 敷金 | 非公開(アーカイブ) |
| フリーレント | なし | 平米数 | 66.41㎡ |
| 間取り | 2LDK | 大型収納 | SIC |
| 契約期間 |
| 方角 | 北 |
| 更新料 | 契約形態 | 普通賃貸借契約 | |
| 取引態様 | 媒介 | 内見状況 | 入居中 |
| 入居時期 | 入居中 | SOHO・事務所 | |
| ペット | 間取り内訳 | LD=11.9J / K=3.2J / BR=6.3J / BR=6.1J | |
| キャンペーン情報・備考 | 本情報は賃料改定交渉の資料作成、収益物件の利回り試算、周辺エリアや最寄り駅の坪単価分析、次回募集開始時期の予測などにご活用いただけます。 | ||
※「どの不動産に頼めばいいのか分からない」「信頼できる営業マンの話を聞きたい」「一番親切な会社と契約したい」とお悩みの方におすすめなのが「高級賃貸バイブル」です。
高級賃貸バイブルは業界10年以上の熟練スタッフ群がお客様ファーストで対応します。
下記ボタンから、まずは無料でご相談下さい。
※内覧をご希望の際には、どうぞ物件のエントランス前にてお待ち合わせくださいませ。ご内覧後は、同じ場所でお別れとさせていただきます。お客様のご都合に合わせたスムーズなご案内を心がけておりますので、ご質問等がございましたら何なりとお申し付けください。 物件概要
| 物件名 |
| 築年月 |
|
|---|---|---|---|
| 所在地 | |||
| 交通 | |||
| 総戸数 |
| 総階数 |
|
| 構造 |
| ||
地図
物件までの道のりは、「拡大地図を表示」をクリックしてナビ機能をご利用ください。
部屋設備














建物設備

TVモニターホン

エレベーター

オートロック

フロントサービス

宅配ボックス

敷地内ゴミ置場

管理人

駐車場平置き

駐車場機械式

駐輪場
コンパートメント東京中央の現在募集中のお部屋
- コンパートメント東京中央 3階 30.48㎡ - 間取り: 1K - 賃料: 11.5万円




















