
| 賃料 | 予想金額:358,000〜378,000円程度 | 管理費 | 予想金額:18,000〜22,000円程度 |
| 礼金/敷金 | 非公開(アーカイブ) | 平米数 | 79.29㎡ |
| 初期費用概算(参考) | 目安:1,359,500〜1,459,500 円 | みなし賃料(月額・参考) | 399,698〜419,698 円 |
| 備考 | 本ページは過去募集のアーカイブです。表示の金額は周辺相場・過去募集を踏まえた参考レンジであり、実際の契約金額・条件ではありません。 | ||
※上記みなし賃料(月額)は仲介手数料割引・無料&キャッシュバックを加味した高級賃貸バイブル限定の金額です。一般的なみなし賃料とは異なります。
【建物ページ】パークコート文京小石川ザ・タワーの詳細・最新空室はこちら▶▶選ばれる理由
仲介手数料無料・キャンペーン情報(毎月15名様限定)
〇仲介手数料割引キャンペーン
パークコート文京小石川ザ・タワー 914の口コミ・レビュー
パークコート文京小石川ザ・タワー 914。それは、あなたの夢の舞台への扉です。この物件は、東京都文京区小石川という洗練された街並みにひっそりと佇み、地上に広がる空間はまるで大空の星々が集まり、絵画のような一枚のキャンバスを描き出すかのよう。914という番号は、ただの住所ではなく、センスが宿る特別な場所を意味しています。
このタワーは、あなたを迎え入れるために、優雅且つ適切な装飾が施されています。…パークコート文京小石川ザ・タワー 914。それは、あなたの夢の舞台への扉です。この物件は、東京都文京区小石川という洗練された街並みにひっそりと佇み、地上に広がる空間はまるで大空の星々が集まり、絵画のような一枚のキャンバスを描き出すかのよう。914という番号は、ただの住所ではなく、センスが宿る特別な場所を意味しています。
このタワーは、あなたを迎え入れるために、優雅且つ適切な装飾が施されています。エレベーターの扉が開くと、希少な美しさが漂う79.29㎡の空間が展開されます。そこは、温かな陽光が降り注ぎ、日々の疲れを癒してくれるリトリートのよう。リビングダイニング(LDK)12帖は、心地よい風が舞い込むこの場所で、友人たちと共に笑い声を響かせ、特別な瞬間を分かち合うことができるでしょう。美しいカーテンが揺れ、コーヒーの香りが空気を満たす中、あなたのライフスタイルがそのまま映画のワンシーンのように生き生きと描かれます。
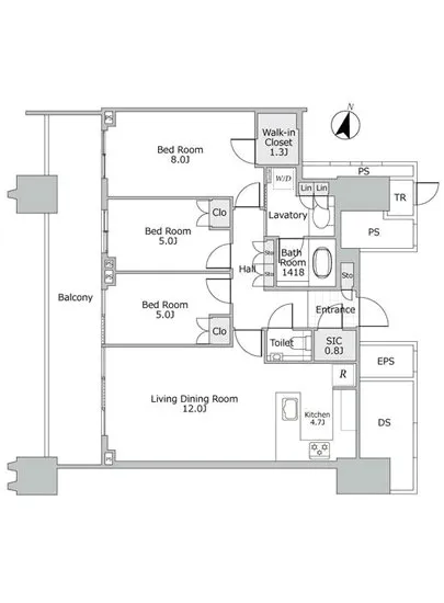
この物件の醍醐味は、贅沢な3LDKの間取りです。洋室8帖、洋室5帖、洋室5帖は、それぞれがあなたの個性を表現する小さなアトリエとなることができます。心地よいベッドに身を委ねた際、やさしくささやくような夢の中で、あなたは心の奥深くに秘めた思いを発見するかもしれません。この空間があなたの生活の舞台となり、季節の移ろいを感じさせ、四季折々の芸術があなたの心を満たすのです。
また、暮らしを豊かにする設備も充実しています。24時間管理による安心感、オートロックシステムによるセキュリティ、そしてフロントサービスが、まるで親友のように日々の暮らしをサポートしてくれます。ラウンジでは、心地よい静けさの中で本を手に取り、知識の扉を開くことができるでしょう。宅配ボックスがあれば、あなたの生活はさらに便利に、快適になります。
さらには、都営地下鉄大江戸線の春日駅から徒歩1分というアクセスの良さ。歴史ある文京区は、文化や芸術が根付いた場所。近隣には美術館や劇場が点在し、心を豊かにするインスピレーションを与えてくれます。夕暮れ時の散歩では、歴史的な建物があなたを取り囲み、まるで北海道の彫刻家による美しい作品に囲まれているかのような感覚にも浸れます。
パークコート文京小石川ザ・タワー 914は、ただの住まいではなく、あなたの人生を彩るステージです。あなた自身のストーリーを、この選ばれた場所で描いてみませんか。心の奥底に湧き上がる情熱を、この特別な物件で形にしていく旅が、今始まるのです。勇気を出して、その扉を開いてみてください。
このタワーは、あなたを迎え入れるために、優雅且つ適切な装飾が施されています。…パークコート文京小石川ザ・タワー 914。それは、あなたの夢の舞台への扉です。この物件は、東京都文京区小石川という洗練された街並みにひっそりと佇み、地上に広がる空間はまるで大空の星々が集まり、絵画のような一枚のキャンバスを描き出すかのよう。914という番号は、ただの住所ではなく、センスが宿る特別な場所を意味しています。
このタワーは、あなたを迎え入れるために、優雅且つ適切な装飾が施されています。エレベーターの扉が開くと、希少な美しさが漂う79.29㎡の空間が展開されます。そこは、温かな陽光が降り注ぎ、日々の疲れを癒してくれるリトリートのよう。リビングダイニング(LDK)12帖は、心地よい風が舞い込むこの場所で、友人たちと共に笑い声を響かせ、特別な瞬間を分かち合うことができるでしょう。美しいカーテンが揺れ、コーヒーの香りが空気を満たす中、あなたのライフスタイルがそのまま映画のワンシーンのように生き生きと描かれます。
この物件の醍醐味は、贅沢な3LDKの間取りです。洋室8帖、洋室5帖、洋室5帖は、それぞれがあなたの個性を表現する小さなアトリエとなることができます。心地よいベッドに身を委ねた際、やさしくささやくような夢の中で、あなたは心の奥深くに秘めた思いを発見するかもしれません。この空間があなたの生活の舞台となり、季節の移ろいを感じさせ、四季折々の芸術があなたの心を満たすのです。
また、暮らしを豊かにする設備も充実しています。24時間管理による安心感、オートロックシステムによるセキュリティ、そしてフロントサービスが、まるで親友のように日々の暮らしをサポートしてくれます。ラウンジでは、心地よい静けさの中で本を手に取り、知識の扉を開くことができるでしょう。宅配ボックスがあれば、あなたの生活はさらに便利に、快適になります。
さらには、都営地下鉄大江戸線の春日駅から徒歩1分というアクセスの良さ。歴史ある文京区は、文化や芸術が根付いた場所。近隣には美術館や劇場が点在し、心を豊かにするインスピレーションを与えてくれます。夕暮れ時の散歩では、歴史的な建物があなたを取り囲み、まるで北海道の彫刻家による美しい作品に囲まれているかのような感覚にも浸れます。
パークコート文京小石川ザ・タワー 914は、ただの住まいではなく、あなたの人生を彩るステージです。あなた自身のストーリーを、この選ばれた場所で描いてみませんか。心の奥底に湧き上がる情熱を、この特別な物件で形にしていく旅が、今始まるのです。勇気を出して、その扉を開いてみてください。
バイブルスコア
バイブルスコア: 72.3
かなり条件の良い物件です、即仮押さえをおすすめする物件です!
このお部屋は、現在ご入居中のため空室情報はございません。ただし、将来的に募集が開始される際、バイブルスコアにおいて非常に高い評価が期待されます。特にご興味をお持ちの方は、今のうちにブックマークやお気に入りに登録していただくと、募集開始のお知らせをすぐに受け取ることができます。是非ともご検討くださいませ。
※バイブルスコア詳細はこちら
バイブルスコアとは独自のAI機械学習技術を利用した物件評価システムで、物件のおすすめ度を示します。最高得点は100点で、スコアが高いほど、よりおすすめの物件と評価されています。
写真
契約条件
| 賃料 | 予想金額:358,000〜378,000円程度 | 管理費 | 予想金額:18,000〜22,000円程度 |
| 礼金 | 非公開(アーカイブ) | 敷金 | 非公開(アーカイブ) |
| フリーレント | なし | 平米数 | 79.29㎡ |
| 間取り | 3LDK | 大型収納 | WIC+SIC |
| 契約期間 |
| 方角 | 西 |
| 更新料 | 契約形態 | 普通賃貸借契約 | |
| 取引態様 | 媒介 | 内見状況 | 入居中 |
| 入居時期 | 入居中 | SOHO・事務所 | |
| ペット | ペット可 | 間取り内訳 | 洋:8 洋:5 洋:5 LD:12 K:4.7 |
| キャンペーン情報・備考 | 本情報は賃料改定交渉の資料作成、収益物件の利回り試算、周辺エリアや最寄り駅の坪単価分析、次回募集開始時期の予測などにご活用いただけます。 | ||
※「どの不動産に頼めばいいのか分からない」「信頼できる営業マンの話を聞きたい」「一番親切な会社と契約したい」とお悩みの方におすすめなのが「高級賃貸バイブル」です。
高級賃貸バイブルは業界10年以上の熟練スタッフ群がお客様ファーストで対応します。
下記ボタンから、まずは無料でご相談下さい。
※内覧をご希望の際には、どうぞ物件のエントランス前にてお待ち合わせくださいませ。ご内覧後は、同じ場所でお別れとさせていただきます。お客様のご都合に合わせたスムーズなご案内を心がけておりますので、ご質問等がございましたら何なりとお申し付けください。 物件概要
| 物件名 |
| 築年月 |
|
|---|---|---|---|
| 所在地 | |||
| 交通 | |||
| 総戸数 |
| 総階数 |
|
| 構造 |
| ||
地図
物件までの道のりは、「拡大地図を表示」をクリックしてナビ機能をご利用ください。
部屋設備




















建物設備

24時間管理

TVモニターホン

エレベーター

オートロック

ゲストルーム

バイク置場

フロントサービス

ラウンジ

宅配ボックス

敷地内ゴミ置場

管理人

駐車場平置き

駐車場機械式

駐輪場
パークコート文京小石川ザ・タワーの現在募集中のお部屋
- パークコート文京小石川ザ・タワー 22階 67.65㎡ - 間取り: 2LDK+WIC - 賃料: 49.5万円
- パークコート文京小石川ザ・タワー 26階 43.14㎡ - 間取り: 1LDK+WIC - 賃料: 29.5万円





























