
| 賃料 | 予想金額:780,000〜800,000円程度 | 管理費 | 予想金額:0〜2,000円程度 |
| 礼金/敷金 | 非公開(アーカイブ) | 平米数 | 123.3㎡ |
| 初期費用概算(参考) | 目安:2,806,500〜2,906,500 円 | みなし賃料(月額・参考) | 823,052〜843,052 円 |
| 備考 | 本ページは過去募集のアーカイブです。表示の金額は周辺相場・過去募集を踏まえた参考レンジであり、実際の契約金額・条件ではありません。 | ||
※上記みなし賃料(月額)は仲介手数料割引・無料&キャッシュバックを加味した高級賃貸バイブル限定の金額です。一般的なみなし賃料とは異なります。
【建物ページ】ラ・トゥール半蔵門の詳細・最新空室はこちら▶▶選ばれる理由
仲介手数料無料・キャンペーン情報(毎月15名様限定)
〇仲介手数料割引キャンペーン
ラ・トゥール半蔵門 1305の口コミ・レビュー
ラ・トゥール半蔵門 1305は、まるで都心のオアシスのように、あなたを歓迎する特別な住空間です。東京都千代田区麹町1-4に位置し、優雅な生活を演出するこの高級賃貸物件は、あなたの人生に新たな物語を紡ぎ出すことでしょう。この1305号室は、東向きに広がる朝陽の光が優しく包み込み、目覚めの瞬間から気持ちを明るくしてくれることでしょう。
123.3㎡の広々としたスペースを持つラ・トゥール半蔵門 130…ラ・トゥール半蔵門 1305は、まるで都心のオアシスのように、あなたを歓迎する特別な住空間です。東京都千代田区麹町1-4に位置し、優雅な生活を演出するこの高級賃貸物件は、あなたの人生に新たな物語を紡ぎ出すことでしょう。この1305号室は、東向きに広がる朝陽の光が優しく包み込み、目覚めの瞬間から気持ちを明るくしてくれることでしょう。
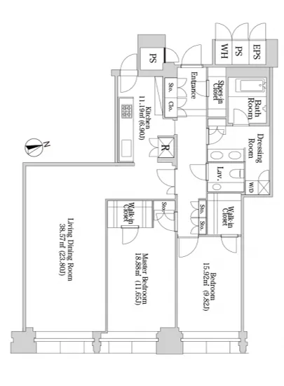
123.3㎡の広々としたスペースを持つラ・トゥール半蔵門 1305は、まるで洗練されたアートのように、住む人々に心地よい贅沢を与えるために創造された高級な隠れ家です。23.8帖のリビングダイニングは、ダイナミックな空間を創り出し、特別なひとときを演出することでしょう。友人を招いてのディナーパーティーや、家族との温かい団欒が、この空間で繰り広げられる様子はまるで映画のワンシーンのようです。6.9帖のキッチンは、料理のアートを表現するための舞台であり、食材の香りが漂い、シェフとしてのあなたの腕前を存分に発揮させてくれるでしょう。
さらに、11.65帖と9.82帖の2つのベッドルームは、あなたの心と身体を癒す安息の場です。静かな夜には、月明かりが優しく差し込み、夢の中へと誘ってくれることでしょう。また、それぞれの部屋には個性があり、特別な場所を求めるあなたの感性に、しっかりと寄り添います。
ラ・トゥール半蔵門 1305は、ただの住まいではなく、生活そのものを豊かに彩る舞台装置として存在しています。24時間体制の管理やオートロックシステムによる安心感、デザイナーズの魅力を感じるフロントサービスやラウンジが、日常を特別なものにしてくれるのです。宅配ボックスや駐車場も充実しており、ライフスタイルに合わせた利便性を追求しています。
この物件の魅力は、その立地にも宿っています。東京メトロ半蔵門線半蔵門駅から徒歩3分の距離は、洗練された都市生活を享受するための絶好の場所。周囲には名門の文化や歴史が息づいており、美術館や公園、歴史的な建造物が点在し、日常の中に芸術が息づいています。都心の喧騒を忘れさせてくれる静かな環境の中で、毎日の生活が特別なものになることをお約束します。
ラ・トゥール半蔵門 1305は、あなたの人生をより豊かに、より美しく変えてくれる空間。ここでの生活は、まるで自らの映画の主人公となるような特別な体験をもたらしてくれることでしょう。ぜひこの贅沢な時間を味わい、心の奥深くに刻み込んでください。
123.3㎡の広々としたスペースを持つラ・トゥール半蔵門 130…ラ・トゥール半蔵門 1305は、まるで都心のオアシスのように、あなたを歓迎する特別な住空間です。東京都千代田区麹町1-4に位置し、優雅な生活を演出するこの高級賃貸物件は、あなたの人生に新たな物語を紡ぎ出すことでしょう。この1305号室は、東向きに広がる朝陽の光が優しく包み込み、目覚めの瞬間から気持ちを明るくしてくれることでしょう。
123.3㎡の広々としたスペースを持つラ・トゥール半蔵門 1305は、まるで洗練されたアートのように、住む人々に心地よい贅沢を与えるために創造された高級な隠れ家です。23.8帖のリビングダイニングは、ダイナミックな空間を創り出し、特別なひとときを演出することでしょう。友人を招いてのディナーパーティーや、家族との温かい団欒が、この空間で繰り広げられる様子はまるで映画のワンシーンのようです。6.9帖のキッチンは、料理のアートを表現するための舞台であり、食材の香りが漂い、シェフとしてのあなたの腕前を存分に発揮させてくれるでしょう。
さらに、11.65帖と9.82帖の2つのベッドルームは、あなたの心と身体を癒す安息の場です。静かな夜には、月明かりが優しく差し込み、夢の中へと誘ってくれることでしょう。また、それぞれの部屋には個性があり、特別な場所を求めるあなたの感性に、しっかりと寄り添います。
ラ・トゥール半蔵門 1305は、ただの住まいではなく、生活そのものを豊かに彩る舞台装置として存在しています。24時間体制の管理やオートロックシステムによる安心感、デザイナーズの魅力を感じるフロントサービスやラウンジが、日常を特別なものにしてくれるのです。宅配ボックスや駐車場も充実しており、ライフスタイルに合わせた利便性を追求しています。
この物件の魅力は、その立地にも宿っています。東京メトロ半蔵門線半蔵門駅から徒歩3分の距離は、洗練された都市生活を享受するための絶好の場所。周囲には名門の文化や歴史が息づいており、美術館や公園、歴史的な建造物が点在し、日常の中に芸術が息づいています。都心の喧騒を忘れさせてくれる静かな環境の中で、毎日の生活が特別なものになることをお約束します。
ラ・トゥール半蔵門 1305は、あなたの人生をより豊かに、より美しく変えてくれる空間。ここでの生活は、まるで自らの映画の主人公となるような特別な体験をもたらしてくれることでしょう。ぜひこの贅沢な時間を味わい、心の奥深くに刻み込んでください。
バイブルスコア
バイブルスコア: 36.8
平均的なスコアです。
※バイブルスコア詳細はこちら
バイブルスコアとは独自のAI機械学習技術を利用した物件評価システムで、物件のおすすめ度を示します。最高得点は100点で、スコアが高いほど、よりおすすめの物件と評価されています。
写真
契約条件
| 賃料 | 予想金額:780,000〜800,000円程度 | 管理費 | 予想金額:0〜2,000円程度 |
| 礼金 | 非公開(アーカイブ) | 敷金 | 非公開(アーカイブ) |
| フリーレント | なし | 平米数 | 123.3㎡ |
| 間取り | 2LDK | 大型収納 | 2WIC+SIC |
| 契約期間 | 方角 | 東 | |
| 更新料 | 契約形態 | 定期借家契約 | |
| 取引態様 | 媒介 | 内見状況 | 入居中 |
| 入居時期 | 入居中 | SOHO・事務所 | |
| ペット | ペット可 | 間取り内訳 | LD=23.8J / K=6.9J / BR=11.65J / BR=9.82J |
| キャンペーン情報・備考 | 本情報は賃料改定交渉の資料作成、収益物件の利回り試算、周辺エリアや最寄り駅の坪単価分析、次回募集開始時期の予測などにご活用いただけます。 | ||
※「どの不動産に頼めばいいのか分からない」「信頼できる営業マンの話を聞きたい」「一番親切な会社と契約したい」とお悩みの方におすすめなのが「高級賃貸バイブル」です。
高級賃貸バイブルは業界10年以上の熟練スタッフ群がお客様ファーストで対応します。
下記ボタンから、まずは無料でご相談下さい。
※内覧をご希望の際には、どうぞ物件のエントランス前にてお待ち合わせくださいませ。ご内覧後は、同じ場所でお別れとさせていただきます。お客様のご都合に合わせたスムーズなご案内を心がけておりますので、ご質問等がございましたら何なりとお申し付けください。 物件概要
地図
物件までの道のりは、「拡大地図を表示」をクリックしてナビ機能をご利用ください。
部屋設備

















建物設備

24時間管理

TVモニターホン

エレベーター

オートロック

フロントサービス

ラウンジ

宅配ボックス

敷地内ゴミ置場

駐車場平置き

駐車場機械式

駐輪場
ラ・トゥール半蔵門の現在募集中のお部屋
- ラ・トゥール半蔵門 1206 - 間取り: 3LDK+WIC+SIC - 賃料: 180万円




















