
| 賃料 | 予想金額:939,000〜959,000円程度 | 管理費 | 予想金額:0〜2,000円程度 |
| 礼金/敷金 | 非公開(アーカイブ) | 平米数 | 110.2㎡ |
| 初期費用概算(参考) | 目安:3,363,000〜3,463,000 円 | みなし賃料(月額・参考) | 990,333〜1,010,333 円 |
| 備考 | 本ページは過去募集のアーカイブです。表示の金額は周辺相場・過去募集を踏まえた参考レンジであり、実際の契約金額・条件ではありません。 | ||
※上記みなし賃料(月額)は仲介手数料割引・無料&キャッシュバックを加味した高級賃貸バイブル限定の金額です。一般的なみなし賃料とは異なります。
【建物ページ】ラ・トゥール半蔵門の詳細・最新空室はこちら▶▶選ばれる理由
仲介手数料無料・キャンペーン情報(毎月15名様限定)
〇仲介手数料割引キャンペーン
ラ・トゥール半蔵門 1506の口コミ・レビュー
「ラ・トゥール半蔵門 1506」は、まるで現代の貴族にふさわしいお城のように、あなたを迎え入れる準備が整っています。この物件は、東京都千代田区麹町1-4に位置し、東向きの窓からは朝日が差し込み、穏やかな光に包まれる生活が待っています。1506号室のドアを開けると、広々とした110.2㎡の空間があなたを優しく包み込み、心地よい余裕を感じさせることでしょう。
この住まいは、2LDKの間取りで、LDが…「ラ・トゥール半蔵門 1506」は、まるで現代の貴族にふさわしいお城のように、あなたを迎え入れる準備が整っています。この物件は、東京都千代田区麹町1-4に位置し、東向きの窓からは朝日が差し込み、穏やかな光に包まれる生活が待っています。1506号室のドアを開けると、広々とした110.2㎡の空間があなたを優しく包み込み、心地よい余裕を感じさせることでしょう。
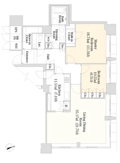
この住まいは、2LDKの間取りで、LDが21.7帖、キッチンが7.1帖、そして二つの寝室がそれぞれ11.56帖と6.51帖という、まさに生活の芸術を体現した空間です。リビングダイニングには、温かみのある素材が使われており、家族や友人との特別な時間を共に過ごすための完璧な舞台となっています。豊かな香りのコーヒーが漂うキッチンからは、優雅に並んだ食器や調理器具が、あなたをさらに高みへと導いてくれることでしょう。
「ラ・トゥール半蔵門 1506」は、ただの賃貸物件ではなく、まるで一篇の詩のように、あなたの心に響きます。この高級デザイナーズ物件は、24時間体制での管理とフロントサービスが整い、まるであなた専属の執事が常に寄り添っているかのよう。セキュリティがしっかりと構築されたオートロックシステムや、TVモニターホンが安心感を与えてくれます。エレベーターでの上昇は、まるで空へと羽ばたくような、高揚感をもたらします。
周囲には、文化と歴史が息づいており、古き良き日本の面影が残る街並みを散策することができます。半蔵門駅から徒歩3分という絶好の立地は、都会の喧騒と静謐が共存する場所であり、心の安らぎを求めるあなたにぴったりです。街の中を歩くと、朝の清々しい空気があなたの頬を撫で、すぐそばで響く鳥のさえずりが日常のストレスを洗い流してくれることでしょう。
この物件での暮らしは、まるで映画のワンシーンのようです。例えば、週末の朝、柔らかな日差しが差し込むリビングで、家族と共にブランチを楽しむ姿が目に浮かびます。新鮮なフルーツの甘い香りが食卓を彩り、温かいパンの香ばしさがあなたを包み込む。一口かじると、香り豊かなコーヒーが口の中で広がり、優雅な時間が流れていくのです。ラウンジでのひとときは、友人との語らいにぴったりの空間であり、高級感漂うカクテルの味わいがより一層その魅力を引き立てます。
「ラ・トゥール半蔵門 1506」は、あなたに新たなライフスタイルを提供するだけでなく、心の中に深く残る思い出を育む場所です。その空間に身を委ね、人生の新しい章を始めてみませんか?これこそが、あなたのために用意された特別な舞台なのです。
この住まいは、2LDKの間取りで、LDが…「ラ・トゥール半蔵門 1506」は、まるで現代の貴族にふさわしいお城のように、あなたを迎え入れる準備が整っています。この物件は、東京都千代田区麹町1-4に位置し、東向きの窓からは朝日が差し込み、穏やかな光に包まれる生活が待っています。1506号室のドアを開けると、広々とした110.2㎡の空間があなたを優しく包み込み、心地よい余裕を感じさせることでしょう。
この住まいは、2LDKの間取りで、LDが21.7帖、キッチンが7.1帖、そして二つの寝室がそれぞれ11.56帖と6.51帖という、まさに生活の芸術を体現した空間です。リビングダイニングには、温かみのある素材が使われており、家族や友人との特別な時間を共に過ごすための完璧な舞台となっています。豊かな香りのコーヒーが漂うキッチンからは、優雅に並んだ食器や調理器具が、あなたをさらに高みへと導いてくれることでしょう。
「ラ・トゥール半蔵門 1506」は、ただの賃貸物件ではなく、まるで一篇の詩のように、あなたの心に響きます。この高級デザイナーズ物件は、24時間体制での管理とフロントサービスが整い、まるであなた専属の執事が常に寄り添っているかのよう。セキュリティがしっかりと構築されたオートロックシステムや、TVモニターホンが安心感を与えてくれます。エレベーターでの上昇は、まるで空へと羽ばたくような、高揚感をもたらします。
周囲には、文化と歴史が息づいており、古き良き日本の面影が残る街並みを散策することができます。半蔵門駅から徒歩3分という絶好の立地は、都会の喧騒と静謐が共存する場所であり、心の安らぎを求めるあなたにぴったりです。街の中を歩くと、朝の清々しい空気があなたの頬を撫で、すぐそばで響く鳥のさえずりが日常のストレスを洗い流してくれることでしょう。
この物件での暮らしは、まるで映画のワンシーンのようです。例えば、週末の朝、柔らかな日差しが差し込むリビングで、家族と共にブランチを楽しむ姿が目に浮かびます。新鮮なフルーツの甘い香りが食卓を彩り、温かいパンの香ばしさがあなたを包み込む。一口かじると、香り豊かなコーヒーが口の中で広がり、優雅な時間が流れていくのです。ラウンジでのひとときは、友人との語らいにぴったりの空間であり、高級感漂うカクテルの味わいがより一層その魅力を引き立てます。
「ラ・トゥール半蔵門 1506」は、あなたに新たなライフスタイルを提供するだけでなく、心の中に深く残る思い出を育む場所です。その空間に身を委ね、人生の新しい章を始めてみませんか?これこそが、あなたのために用意された特別な舞台なのです。
バイブルスコア
バイブルスコア: 13.9
高級な物件でない場合は割高な物件です。。
※バイブルスコア詳細はこちら
バイブルスコアとは独自のAI機械学習技術を利用した物件評価システムで、物件のおすすめ度を示します。最高得点は100点で、スコアが高いほど、よりおすすめの物件と評価されています。
写真
契約条件
| 賃料 | 予想金額:939,000〜959,000円程度 | 管理費 | 予想金額:0〜2,000円程度 |
| 礼金 | 非公開(アーカイブ) | 敷金 | 非公開(アーカイブ) |
| フリーレント | なし | 平米数 | 110.2㎡ |
| 間取り | 2LDK | 大型収納 | WIC+SIC |
| 契約期間 | 方角 | 東 | |
| 更新料 | 契約形態 | 定期借家契約 | |
| 取引態様 | 媒介 | 内見状況 | 入居中 |
| 入居時期 | 入居中 | SOHO・事務所 | |
| ペット | ペット可 | 間取り内訳 | LD=21.7J / K=7.1J / BR=11.56J / BR=6.51 |
| キャンペーン情報・備考 | 本情報は賃料改定交渉の資料作成、収益物件の利回り試算、周辺エリアや最寄り駅の坪単価分析、次回募集開始時期の予測などにご活用いただけます。 | ||
※「どの不動産に頼めばいいのか分からない」「信頼できる営業マンの話を聞きたい」「一番親切な会社と契約したい」とお悩みの方におすすめなのが「高級賃貸バイブル」です。
高級賃貸バイブルは業界10年以上の熟練スタッフ群がお客様ファーストで対応します。
下記ボタンから、まずは無料でご相談下さい。
※内覧をご希望の際には、どうぞ物件のエントランス前にてお待ち合わせくださいませ。ご内覧後は、同じ場所でお別れとさせていただきます。お客様のご都合に合わせたスムーズなご案内を心がけておりますので、ご質問等がございましたら何なりとお申し付けください。 物件概要
地図
物件までの道のりは、「拡大地図を表示」をクリックしてナビ機能をご利用ください。
部屋設備


















建物設備

24時間管理

TVモニターホン

エレベーター

オートロック

フロントサービス

ラウンジ

宅配ボックス

敷地内ゴミ置場

駐車場平置き

駐車場機械式

駐輪場
ラ・トゥール半蔵門の現在募集中のお部屋
- ラ・トゥール半蔵門 1206 - 間取り: 3LDK+WIC+SIC - 賃料: 180万円




















